



Maison Tauriers 7 pièce(s) 200 m2
Ref. 445458FLCQ
TAURIERS (07110)
170 000 €
850 €/m²
200 m²
7 pièces
6 chambres
Séjour de 50m²
Terrain de 865m²
Atouts
Autres
Informations complémentaires
Classe énérgétique
Emissions GES
Description
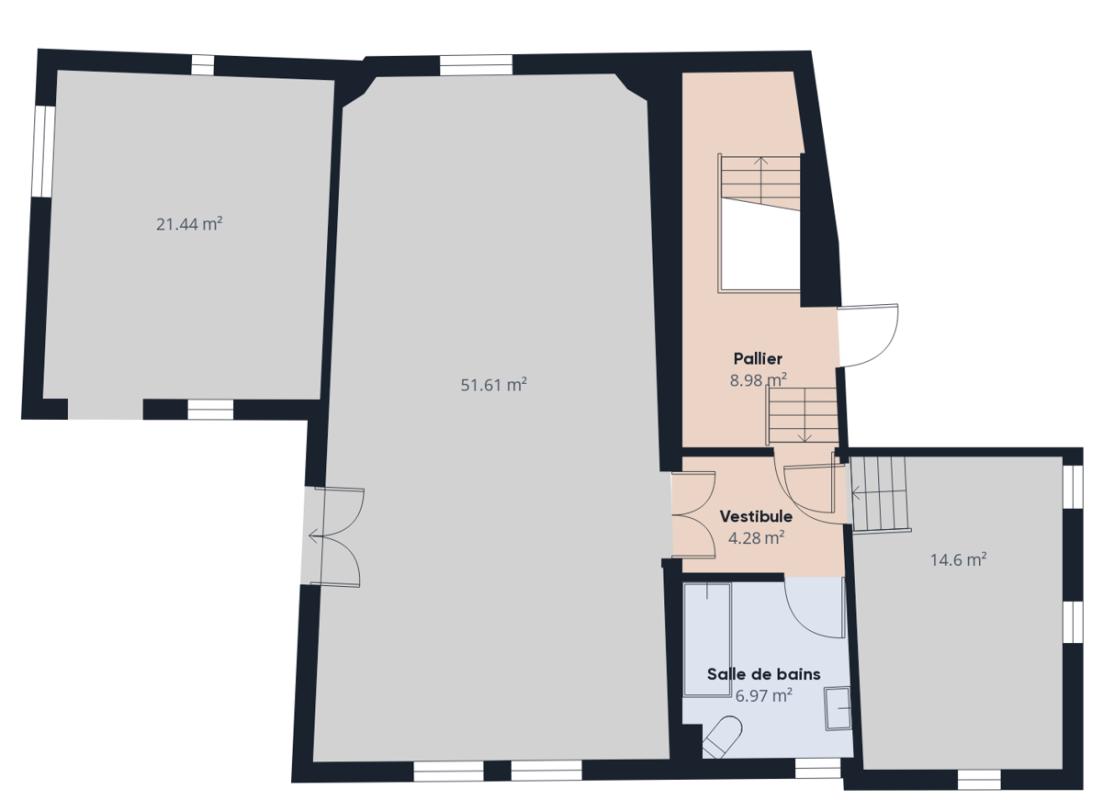
Secteur Joyeuse (07260).Grande maison en pierre de caractère d'environ 200 M² , sur site exceptionnel proche rivière. 6 chambres, séjour 50M² avec cheminée, cuisine donnant sur terrasse, balcon, beaucoup de cachet, dépendances 80m² , caves, sur un terrain arboré de 865m2 proche de LARGENTIERE à pieds, avec tous commerces et services.Prévoir mis aux normes fosse septique . Prix de vente 170 000 euros Honoraires TTC charge vendeurLes informations sur les risques auxquels ce bien est exposé sont disponibles sur le site Géorisques : www.georisques.gouv.frDPE CLASSE G 445 ET F99 Consommation mini 5020 et maxi 6830 EUROS à la date du 01/01/2021Pour visiter et vous accompagner dans votre projet, contactez Franck LECLERCQ, au 0634993466 ou par courriel à f.leclercq@proprietes-privees.comSelon l'article L.561.5 du Code Monétaire et Financier, pour l'organisation de la visite, la présentation d'une pièce d'identité vous sera demandée.Cette vente est garantie 12 mois.Cette présente annonce a été rédigée sous la responsabilité éditoriale de Franck LECLERCQ agissant sous le statut d'agent commercial immatriculé au RSAC 328198791 auprès de la SAS PROPRIETES PRIVEES, au capital de 40 000 euros, ZAC LE CHÊNE FERRÉ - 44 ALLÉE DES CINQ CONTINENTS 44120 VERTOU; SIRET 487 624 777 00040, RCS Nantes. Carte professionnelle Transactions sur immeubles et fonds de commerce (T) et Gestion immobilière (G) n° CPI 4401 2016 000 010 388 délivrée par la CCI Nantes - Saint Nazaire. Compte séquestre n°30932508467 BPA SAINT-SEBASTIEN-SUR-LOIRE (44230) ; Garantie GALIAN - 89 rue de la Boétie, 75008 Paris - n°28137 J pour 2 000 000 euros pour T et 120 000 euros pour G. Assurance responsabilité civile professionnelle par MMA Entreprise n° de police 120.137.405Mandat réf : 445458 Le professionnel garantit et sécurise votre projet immobilier. Franck LECLERCQ (EI) Agent Commercial - Numéro RSAC : 328198791 - .
Ce bien vous est présenté par
Franck LECLERCQ

Les biens à proximité

Maison
Ref. 447629MRM
249 000 €
2 441 €/m²
Maison de caractère 102 m² - Terrain 1 560 m² - Tauriers (07110)Chez Romain - Propriétés PrivéesJe vous invite à découvrir cette superbe maison de caractère d'environ 102 m², idéalement située à Tauriers, dans un environnement privilégié offrant une vue exceptionnelle à 180° sur la nature.Un lieu unique où charme, confort et authenticité se conjuguent pour offrir une qualité de vie rare, au coeur d'un village chargé d'histoire, dominé par son château emblématique et à proximité immédiate de sites touristiques renommés tels que la grotte Chauvet et les trésors naturels de l'Ardèche.Une maison lumineuse et accueillanteDès l'entrée, la maison séduit par sa luminosité naturelle.en rez-de-chaussée :Un hall d'entrée spacieux de 9 m²Une véranda avec vue panoramique sur la natureUn salon convivialUne cuisine semi-ouverte, aménagée et équipéeDeux chambres de 13 m² chacuneUn espace bureau ou dressing selon vos besoinsUne salle d'eauUn WC indépendantLa pièce de vie est sublimée par un poêle à granulés et s'ouvre sur une magnifique véranda parfaitement exposée, idéale pour profiter de la vue en toute saison.Des espaces annexes fonctionnels et évolutifs :Au rez-de-jardin :Deux superbes caves voûtées en pierre, parfaites pour le stockage ou la conservation de 50 m²Un garage de 37 m²Une terrasse agréable pour les beaux joursDes prestations de qualité :Terrain clos et arboré de 1 560 m²Jardin paysagé sans vis-à-visPlace de stationnement privative devant la maisonMenuiseries PVC double vitrageChauffage électrique + poêle à granulésExposition idéaleUn cadre de vie exceptionnelImplantée dans un environnement calme et verdoyant, cette propriété bénéficie d'une situation idéale : un cadre authentique et préservé, tout en restant proche des richesses culturelles et naturelles de la région.Un bien rare sur le secteurVolumes généreux, prestations de qualité, charme de l'ancien et potentiel d'évolution font de cette maison un véritable coup de coeur.Taxe foncière : 440 eurosA découvrir sans attendre !Je vous propose cette propriété au prix de 249 000.00 euros HAI charge vendeur.DPE : Classe C -GES : classe A. Montant moyen estimé des dépenses annuelles d'énergie pour un usage standard établi à partir des prix de l'énergie des années 2021, 2022, 2023 : entre 1260 euros et 1770 euros.Pour visiter et vous accompagner dans votre projet, contactez Romain MARIE, au 0650868565 ou, par courriel à r.marie@proprietes-privees.com.Selon l'article L.561.5 du Code Monétaire et Financier, pour l'organisation de la visite, la présentation d'une pièce d'identité vous sera demandée.Cette présente annonce a été rédigée sous la responsabilité éditoriale de Romain MARIE agissant sous le statut d'agent commercial immatriculé au RSAC CAEN 888 838 166 auprès de SAS PROPRIETES PRIVEES, au capital de 44 920 euros, ZAC LE CHÊNE FERRÉ - 44 ALLÉE DES CINQ CONTINENTS 44120 VERTOU; SIRET 487 624 777 00040, RCS Nantes. Carte Professionnelle Transactions sur immeubles et fonds de commerce (T) et Gestion immobilière (G) n°CPI 4401 2016 000 010 388 délivrée par la CCI Nantes - Saint Nazaire. Compte séquestre n°30932508467 BPA SAINT-SEBASTIEN-SUR-LOIRE (44230). Garantie GALIAN-SMABTP - 89 rue de la Boétie, 75008 Paris - n°28137 J pour 2 000 000 euros pour T et 120 000 euros pour G. Assurance responsabilité civile professionnelle par GALIAN-SMABTP n° de police 28137.JMandat réf : 447629 - Le professionnel garantit et sécurise votre projet immobilier. Romain MARIE (EI) Agent Commercial - Numéro RSAC : CAEN 888 838 166 - .Les informations sur les risques auxquels ce bien est exposé sont disponibles sur le site Géorisques : www. georisques. gouv. fr
102 m²
4 p
2 ch

Maison
Ref. 440961ITE
530 000 €
4 045 €/m²
SUD ARDÈCHE - VINEZAC -Superbe mas en pierre de 134 m², meublé, entièrement rénové avec goût et matériaux de qualité.A l'abri des regards, ce bien rare marie magnifiquement authenticité, confort moderne et intimité.Dès l'entrée, vous serez séduit par la luminosité et la chaleur des lieux.Le rez-de-chaussée offre une cuisine entièrement équipée, ouverte sur un séjour cocooning, ainsi qu'une première chambre avec salle d'eau privative.A l'étage, un agréable espace détente vous attend ainsi qu'une chambre spacieuse avec dressing et salle d'eau.La troisième chambre, accessible directement par la terrasse, bénéficie également de sa salle d'eau privative, idéale pour recevoir en toute indépendance.A l'extérieur, un vaste jardin paysager et arboré, sans vis-à-vis, offre un cadre de vie paisible et verdoyant.Vous profiterez des belles journées autour de la spacieuse piscine au sel parfaite pour des moments de détente en famille ou entre amis.Ce bien unique, rare sur le secteur, séduira autant en résidence principale qu'en maison de vacances.Un véritable coup de coeur à découvrir sans tarder !Prix: 530 000 euros Honoraires charge vendeurDPE E GES DMontant estimé des dépenses annuelles d'énergie pour un usage standard entre 3150 euros et 4340 euros indexées aux années 2021, 2022 et 2023Pour visiter et vous accompagner dans votre projet, contactez Isabelle TERRIER, au 0663740270 ou, par courriel à i.terrier@proprietes-privees.com.Selon l'article L.561.5 du Code Monétaire et Financier, pour l'organisation de la visite, la présentation d'une pièce d'identité vous sera demandée.Cette présente annonce a été rédigée sous la responsabilité éditoriale de Isabelle TERRIER agissant sous le statut d'agent commercial immatriculé au RSAC AUBENAS 980870893 auprès de SAS PROPRIETES PRIVEES, au capital de 44 920 euros, ZAC LE CHÊNE FERRÉ - 44 ALLÉE DES CINQ CONTINENTS 44120 VERTOU; SIRET 487 624 777 00040, RCS Nantes. Carte Professionnelle Transactions sur immeubles et fonds de commerce (T) et Gestion immobilière (G) n°CPI 4401 2016 000 010 388 délivrée par la CCI Nantes - Saint Nazaire. Compte séquestre n°30932508467 BPA SAINT-SEBASTIEN-SUR-LOIRE (44230). Garantie GALIAN-SMABTP - 89 rue de la Boétie, 75008 Paris - n°28137 J pour 2 000 000 euros pour T et 120 000 euros pour G. Assurance responsabilité civile professionnelle par GALIAN-SMABTP n° de police 28137.JMandat réf : 440961 - Le professionnel garantit et sécurise votre projet immobilier. Isabelle TERRIER (EI) Agent Commercial - Numéro RSAC : AUBENAS 980870893 - .Les informations sur les risques auxquels ce bien est exposé sont disponibles sur le site Géorisques : www. georisques. gouv. fr
131 m²
4 p
3 ch

Maison
Ref. 443448FLCQ
990 000 €
2 682 €/m²
A vendre : demeure d'exception en Sud ArdècheA proximité de Largentière, dans le Sud Ardèche, se trouve une ancienne ferme monastique du XVI siècle, élégamment restaurée et entourée de 6 hectares de nature préservée.Aujourd'hui résidence principale des propriétaires, cette demeure de caractère fut autrefois exploitée comme maison d'hôtes. Elle conserve tout son potentiel pour relancer une activité touristique ou accueillir de nouveaux projets (hébergements, séminaires, retraites bien-être), tout en restant idéale comme maison familiale de prestige.Ses atouts uniquesUne surface habitable d'environ 350 m² offrant de beaux volumes, plusieurs chambres et pièces de réception, alliant authenticité et confort.Autant de dépendances (environ 350 m² supplémentaires), dont de magnifiques caves voûtées et des annexes à aménager selon vos projets.Un cadre naturel préservé : jardins en terrasses, haies champêtres, faune et flore locales protégées, démarche écologique sans produits chimiques.Une réserve d'eau de 140 m³ permettant d'assurer l'arrosage et de sécuriser la gestion des espaces verts.Une piscine entourée de platanes centenaires : un espace de détente rare et harmonieux, intégré au jardin paysager.Un charme architectural authentique : pierre, poutres anciennes, volumes généreux et restauration respectueuse de l'histoire du lieu.Un potentiel modulable : possibilité de créer deux ou trois gîtes indépendants en plus de la maison principale, permettant d'allier habitation privée et activité touristique.Un emplacement recherchéAu coeur du Sud Ardèche, à quelques minutes de Largentière, cette propriété bénéficie d'un fort attrait touristique, tout en garantissant un environnement calme et ressourçant. Sa localisation, entre Cévennes et Provence, en fait un point de départ privilégié pour découvrir les Gorges de l'Ardèche, les villages de caractère et les paysages remarquables de la région.Accès facile : à environ 35 minutes de l'autoroute A7, 45 minutes de Montélimar et moins de 2 heures des gares TGV de Valence et d'Avignon.Pourquoi choisir cette demeureUne résidence principale unique au charme intemporel.Un lieu prêt à redevenir une activité d'accueil si souhaité, avec la possibilité d'aménager plusieurs gîtes.Un patrimoine rare dans une région prisée.Un cadre de vie exceptionnel alliant authenticité, confort et nature.Cette propriété est une opportunité rare : que vous recherchiez une maison de famille d'exception ou un projet à développer, elle saura vous séduire par son histoire, son cadre et son potentiel..Contactez nous dés aujourd'hui pour organisez une visite et laissez vous séduire par le charme intemporel de ce mas en pierres .DPE classe D246et GES B9Montant estimé des depenses energétiques pour un usage standart à partir des prix de l'energie de l année 2021 entre 4490et 6120 Euros .Prix 990000 Euros honoraires charge vendeur.Pour visiter et vous accompagner dans votre projet, contactez Franck LECLERCQ, au 0634993466 ou, par courriel à f.leclercq@proprietes-privees.com.Selon l'article L.561.5 du Code Monétaire et Financier, pour l'organisation de la visite, la présentation d'une pièce d'identité vous sera demandée.Cette présente annonce a été rédigée sous la responsabilité éditoriale de Franck LECLERCQ agissant sous le statut d'agent commercial immatriculé au RSAC 328198791 auprès de SAS PROPRIETES PRIVEES, au capital de 44 920 euros, ZAC LE CHÊNE FERRÉ - 44 ALLÉE DES CINQ CONTINENTS 44120 VERTOU; SIRET 487 624 777 00040, RCS Nantes. Carte Professionnelle Transactions sur immeubles et fonds de commerce (T) et Gestion immobilière (G) n°CPI 4401 2016 000 010 388 délivrée par la CCI Nantes - Saint Nazaire. Compte séquestre n°30932508467 BPA SAINT-SEBASTIEN-SUR-LOIRE (44230). Garantie GALIAN-SMABTP - 89 rue de la Boétie, 75008 Paris - n°28137 J pour 2 000 000 euros pour T et 120 000 euros pour G. Assurance responsabilité civile professionnelle par GALIAN-SMABTP n° de police 28137.JMandat réf :-443448 Le professionnel garantit et sécurise votre projet immobilier Franck LECLERCQ (EI) Agent Commercial - Numéro RSAC : 328198791 - .Les informations sur les risques auxquels ce bien est exposé sont disponibles sur le site Géorisques : www. georisques. gouv. fr
369 m²
8 p
6 ch

Maison
Ref. 430106MZR
200 000 €
2 985 €/m²
Sur la commune de Rocher (07110), découvrez cette charmante villa contemporaine de 67 m², édifiée en 2022, offrant confort, luminosité et prestations récentes.Érigée sur un terrain entièrement clôturé de 569 m², cette maison de plain-pied bénéficie d'une exposition plein sud, idéale pour profiter de la luminosité tout au long de la journée.Elle se compose d'une agréable pièce de vie d'environ 30 m², très lumineuse, avec cuisine aménagée, équipée et ouverte, offrant un bel espace convivial. Vous trouverez également un cellier attenant, pratique pour le rangement.La partie nuit propose deux chambres de taille confortable, une salle d'eau moderne ainsi qu'un WC indépendant.A l'extérieur, vous apprécierez une terrasse, parfaite pour les moments de détente, ainsi que deux places de stationnement.La villa est équipée d'un climatisage réversible, assurant confort été comme hiver, ainsi que d'une entrée avec placard, optimisant l'espace.Diagnostics :DPE : Classe AGES : Classe ADes performances énergétiques idéales, synonymes d'économies et de confortMontant des dépenses énergétique comprise entre 290 et 440 euros.Les informations sur les risques auxquels ce bien est exposé sont disponibles sur le site Géorisques : www. georisques. gouv. frPrix 200000 euros charge vendeur.Pour visiter et vous accompagner dans votre projet, contactez Michael MANZANERO, au 0659153508 ou, par courriel à m.manzanero@proprietes-privees.com.Selon l'article L.561.5 du Code Monétaire et Financier, pour l'organisation de la visite, la présentation d'une pièce d'identité vous sera demandée.Cette présente annonce a été rédigée sous la responsabilité éditoriale de Michael MANZANERO agissant sous le statut d'agent commercial immatriculé au RSAC AUBENAS 813 425 881 auprès de SAS PROPRIETES PRIVEES, au capital de 44 920 euros, ZAC LE CHÊNE FERRÉ - 44 ALLÉE DES CINQ CONTINENTS 44120 VERTOU; SIRET 487 624 777 00040, RCS Nantes. Carte Professionnelle Transactions sur immeubles et fonds de commerce (T) et Gestion immobilière (G) n°CPI 4401 2016 000 010 388 délivrée par la CCI Nantes - Saint Nazaire. Compte séquestre n°30932508467 BPA SAINT-SEBASTIEN-SUR-LOIRE (44230). Garantie GALIAN-SMABTP - 89 rue de la Boétie, 75008 Paris - n°28137 J pour 2 000 000 euros pour T et 120 000 euros pour G. Assurance responsabilité civile professionnelle par GALIAN-SMABTP n° de police 28137.JMandat réf : 430106 - Le professionnel garantit et sécurise votre projet immobilier. Michael MANZANERO (EI) Agent Commercial - Numéro RSAC : AUBENAS 813 425 881 - .
67 m²
4 p
2 ch



