



MONTREUIL - DROIT AU BAIL, Local commercial polyvalent 202 m² (Quartier Nature - ZAC Boissière Acacia - Métro 11 La Dhuys)
Ref. 427867B-SARZ
MONTREUIL (93100)
106 000 €
524 €/m²
202 m²
Atouts
Autres
Informations complémentaires
Description
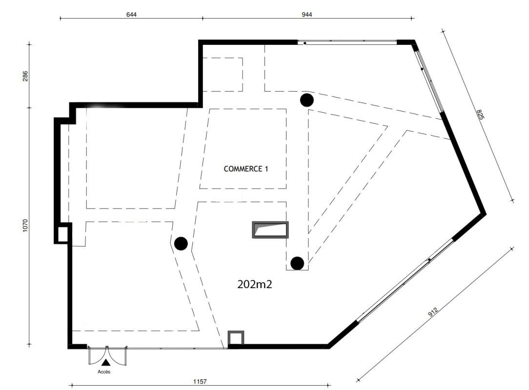
Sarah Aslani sur un Emplacement premium au coeur d'un nouveau quartier à l'est de Montreuil, au sein d'une résidence, le bail de ce local deCe projet phare incarne un urbanisme durable et qualitatif, au sein d'un environnement résidentiel dynamique et verdoyant.Le local donne sur une belle place arborée très fréquentée par les habitants du quartier, offrant une excellente visibilité et une attractivité croissante grâce aux nouvelles livraisons de logements prévues pour 2026 et 2027.Le secteur bénéficie d'un fort développement et d'un potentiel commercial considérable et est situé à proximité du métro ligne 11.- Surface totale : 202 m² (dont 40 m² aménagés + 162 m² actuellement utilisés en entrepôt)- Hauteur sous plafond : 4,50 m superbe volume, poutres béton, esprit atelier / industriel- Rénové en 2024 : env. 150.000 euros de travaux (électricité, plomberie, baies vitrées neuves)- Bail en cours- Loyer mensuel : 3.400 EURO- Charges mensuelles : 150 EURO- Activités autorisées : Vente en gros, demi-gros, de produits alimentaire, café etc, vente de boissons alcoolisées et non alcoolisés, vente de produits non alimentaires, vente de matériel pour la restauration, vente de franchises Import, export.Conseil en CHR (café Hôtel restaurant). Apporteur d'affaires dans ce domaine. Petite et grande restauration. Cafétéria, bar et glacier.- Deux accès : façade principale + cour intérieure- Large baie vitrée donnant sur la place- 2 sanitaires PMR- Possibilité de terrasse- Extraction existante (demande à finaliser)Local à fort potentiel, idéal pour de nombreuses activités :- Restaurant / bar à vin / coffee shop- Salle de sport, studio de yoga ou bien-être- Primeur, épicerie fine, commerce de proximité, concept store- Showroom, atelier d'artisan ou espace de coworking- Prix de cession du droit au bail : 106 000 euros HAI (dont 8 000 euros d'honoraires TTC à la charge de l'acquéreur)Non soumis au DPE.Mandat de vente numéro: 427867.Pour visiter et vous accompagner dans votre projet, contactez Sarah ASLANI, au 06 95 60 34 57 ou, par courriel à sa.aslani@proprietes-privees.com.Selon l'article L.561.5 du Code Monétaire et Financier, pour l'organisation de la visite, la présentation d'une pièce d'identité vous sera demandée.Cette présente annonce a été rédigée sous la responsabilité éditoriale de Sarah ASLANI agissant sous le statut d'agent commercial immatriculé au RSAC PARIS 934159542 auprès de SAS PROPRIETES PRIVEES, au capital de 44 920 euros, ZAC LE CHÊNE FERRÉ - 44 ALLÉE DES CINQ CONTINENTS 44120 VERTOU; SIRET 487 624 777 00040, RCS Nantes. Carte Professionnelle Transactions sur immeubles et fonds de commerce (T) et Gestion immobilière (G) n°CPI 4401 2016 000 010 388 délivrée par la CCI Nantes - Saint Nazaire. Compte séquestre n°30932508467 BPA SAINT-SEBASTIEN-SUR-LOIRE (44230). Garantie GALIAN-SMABTP - 89 rue de la Boétie, 75008 Paris - n°28137 J pour 2 000 000 euros pour T et 120 000 euros pour G. Assurance responsabilité civile professionnelle par GALIAN-SMABTP n° de police 28137.JMandat réf : 427867SARZ - Le professionnel sécurise votre projet immobilier.Sarah ASLANI (EI) Agent Commercial - Numéro RSAC : PARIS 934159542 - .Les informations sur les risques auxquels ce bien est exposé sont disponibles sur le site Géorisques : www. georisques. gouv. fr (8.16 % honoraires TTC à la charge de l'acquéreur.) Sarah ASLANI (EI) Agent Commercial - Numéro RSAC : PARIS 934159542 - .
Ce bien vous est présenté par
Sarah ASLANI

Les biens à proximité

Local commercial
Ref. 407770B-BMAG
49 000 €
75012 PARIS : LOCAL COMMERCIAL 80 M² - RUE TRÈS PASSANTE EMPLACEMENT N° 1. ACTIVITÉS : PROFESSION LIBÉRALE, ARTISANS, BUREAUX, SOLDERIE OU BOUTIQUE DE VÊTEMENTS, CRÊCHE CANINE, SALON DE TOILETTAGE, FLEURISTE, LIBRAIRIE PAPÈTERIE, SALON DE COIFFURE, SOIN DES ONGLES, UNE ENSEIGNE TYPE BUREAU VALÉE, etc...Brigitte MAGNIN vous propose la cession de bail de ce local commercial jouissant d'un bel espace de vente de près de 50 m² de plain pied et près de 30 m² de sous-sol directement accessible, bénéficiant d'une vitrine de 5 mètres linéaires lui assurant une belle visibilité.La boutique est idéalement située sur la rue de Reuilly, très dynamisme, réputée pour son fort potentiel commercial et bénéficiant de l'accès à de nombreux transports publics, ce qui génère un flux constant et élevé de piétons.Loyer attractif : 1.300 euros / mois - Nouveau bailPrix de cession du bail : 49.000 euros, honoraires charge vendeur.Pour visiter et vous accompagner dans votre projet : contactez Mme Brigitte MAGNIN au 06 50 72 66 36 ou par mail b.magnin@proprietes-privees.com, votre spécialiste en cession de fonds de commerce, cession de bail, location, murs de boutiques et entreprises, agissant en tant que chargée d'affaires indépendante.Selon l'article L.561.5 du Code Monétaire et Financier, pour l'organisation de la visite, la présentation d'une pièce d'identité vous sera demandée.Cette présente annonce a été rédigée sous la responsabilité éditoriale de Brigitte MAGNIN agissant sous le statut d'agent commercial immatriculé au RSAC paris 914140645 auprès de SAS PROPRIETES PRIVEES, au capital de 44 920 euros, ZAC LE CHÊNE FERRÉ - 44 ALLÉE DES CINQ CONTINENTS 44120 VERTOU; SIRET 487 624 777 00040, RCS Nantes. Carte Professionnelle Transactions sur immeubles et fonds de commerce (T) et Gestion immobilière (G) n°CPI 4401 2016 000 010 388 délivrée par la CCI Nantes - Saint Nazaire. Compte séquestre n°30932508467 BPA SAINT-SEBASTIEN-SUR-LOIRE (44230). Garantie GALIAN-SMABTP - 89 rue de la Boétie, 75008 Paris - n°28137 J pour 2 000 000 euros pour T et 120 000 euros pour G. Assurance responsabilité civile professionnelle par GALIAN-SMABTP n° de police 28137.JMandat réf : 407770 - En tant que professionnel je vous conseille et sécurise votre projet d'installation. Brigitte MAGNIN (EI) Agent Commercial - Numéro RSAC : paris 914140645 - .
80 m²

Local commercial
Ref. 437122B-BMAG
26 000 €
75020 PARIS QUARTIER MÉNILMONTANT - LOCAL COMMERCIAL 31,10 M² - RUE TRÈS PASSANTEBrigitte MAGNIN vous propose en EXCLUSIVITÉ, la cession de bail de ce local commercial d'une superficie de 31,10 m² de plain-pied avec sa boutique et son arrière boutique disposant, d'une cuisine, des toilettes, un espace bureau et une petite remise. Ce local bénéficie d'une vitrine sécurisée par la fermeture d'un rideau métallique électrique. Il est idéalement situé sur un axe dynamique à forte circulation et aux flux constant de piétons au coeur du quartier connu de Ménilmontant, entouré d'enseignes locomotives qui boostent la fréquentation de la zone dans ce secteur à toute proximité de la rue des Pyrénées, entre Jourdain et la place Gambetta.Activité, tout commerce possible sauf de la restauration avec extraction.Loyer mensuel : 1 600 euros hc ht. Nouveau bailCharges mensuelles 66 eurosCession de bail : 26 000 euros honoraires à la charges du vendeurPour visiter et vous accompagner dans votre projet : contactez Mme Brigitte MAGNIN au 06 50 72 66 36 ou par mail b.magnin@proprietes-privees.com, votre spécialiste en cession de fonds de commerce, cession de bail, location et murs commerciaux et entreprises, agissant en tant que chargée d'affaires indépendante.Selon l'article L.561.5 du Code Monétaire et Financier, pour l'organisation de la visite, la présentation d'une pièce d'identité vous sera demandée.Cette présente annonce a été rédigée sous la responsabilité éditoriale de Brigitte MAGNIN agissant sous le statut d'agent commercial immatriculé au RSAC paris 914140645 auprès de SAS PROPRIETES PRIVEES, au capital de 44 920 euros, ZAC LE CHÊNE FERRÉ - 44 ALLÉE DES CINQ CONTINENTS 44120 VERTOU; SIRET 487 624 777 00040, RCS Nantes. Carte Professionnelle Transactions sur immeubles et fonds de commerce (T) et Gestion immobilière (G) n°CPI 4401 2016 000 010 388 délivrée par la CCI Nantes - Saint Nazaire. Compte séquestre n°30932508467 BPA SAINT-SEBASTIEN-SUR-LOIRE (44230). Garantie GALIAN-SMABTP - 89 rue de la Boétie, 75008 Paris - n°28137 J pour 2 000 000 euros pour T et 120 000 euros pour G. Assurance responsabilité civile professionnelle par GALIAN-SMABTP n° de police 28137.JMandat réf : 437122 - En tant que professionnel je vous conseille et sécurise votre projet d'installation.Copropriété de 9 lots. Brigitte MAGNIN (EI) Agent Commercial - Numéro RSAC : paris 914140645 - .Les informations sur les risques auxquels ce bien est exposé sont disponibles sur le site Géorisques : www. georisques. gouv. fr
32 m²

Local commercial
Ref. 435098B-AFAT
165 000 €
Fatiha AMARA vous propose ce fonds de commerce de traiteur, exploité dans un local commercial de 140 m², idéal pour une activité de restauration, traiteur ou laboratoire de production, situé dans le 12è arrondissement de Paris, à proximité immédiate de Gare de Lyon.L'établissement bénéficie d'une clientèle fidèle et d'un outil digital performant, incluant une plateforme e-commerce intégrée permettant la gestion complète des commandes. Ouvert le midi et le soir, il dispose d'un équipement complet et d'une extraction 300 conforme.Caractéristiques principales :Superficie totale : 140 m²Laboratoire tout équipé, en parfait étatNombreuses chambres froidesCuisine ouverte + cuisine ferméeTerrasse : 13 mètres linéairesBureau indépendantExtraction 300Local traversant, fonctionnel et très bien agencéDonnées financièresChiffre d'affaires : 535 313 eurosLoyer : 5 000 euros HT charges comprisesDroit au bail : 165 000 eurosBail neuf, toutes activités possibles (sous réserve d'acceptation du bailleur)Possibilité de louer deux emplacements de parkingAtoutsEmplacement stratégique à fort passageLocal rare, clé en main, très bien équipéActivité stable avec un réel potentiel de développementProximité immédiate de Gare de Lyon, flux important et clientèle variéeOptions complémentairesPossibilité d'acquérir le fonds de commerce seulPossibilité d'acquérir le business incluant la plateforme e-commercePossibilité d'acquérir les mursPour visiter et vous accompagner dans votre projet, contactez Fatiha AMARA, au 0612275212 ou, par courriel à a.fatiha@proprietes-privees.com.Selon l'article L.561.5 du Code Monétaire et Financier, pour l'organisation de la visite, la présentation d'une pièce d'identité vous sera demandée.Cette présente annonce a été rédigée sous la responsabilité éditoriale de Fatiha AMARA agissant sous le statut d'agent commercial immatriculé au RSAC NANTERRE 902745389 auprès de SAS PROPRIETES PRIVEES, au capital de 44 920 euros, ZAC LE CHÊNE FERRÉ - 44 ALLÉE DES CINQ CONTINENTS 44120 VERTOU; SIRET 487 624 777 00040, RCS Nantes. Carte Professionnelle Transactions sur immeubles et fonds de commerce (T) et Gestion immobilière (G) n°CPI 4401 2016 000 010 388 délivrée par la CCI Nantes - Saint Nazaire. Compte séquestre n°30932508467 BPA SAINT-SEBASTIEN-SUR-LOIRE (44230). Garantie GALIAN-SMABTP - 89 rue de la Boétie, 75008 Paris - n°28137 J pour 2 000 000 euros pour T et 120 000 euros pour G. Assurance responsabilité civile professionnelle par GALIAN-SMABTP n° de police 28137.JMandat Réf : 435098Le professionnel garanti et sécurise votre projet immobilier.F. AMARA (EI) Agent Commercial - Numéro RSAC : NANTERRE 902745389 F. AMARA (EI) Agent Commercial - Numéro RSAC : NANTERRE 902745389 - .Les informations sur les risques auxquels ce bien est exposé sont disponibles sur le site Géorisques : www. georisques. gouv. fr
140 m²

Local commercial
Ref. 439577B-MIT
25 000 €
PARIS 75012 - secteur Nation. Catherine BELLOC vous propose ce LOCAL COMMERCIAL très lumineux et d'une superficie de 55m2 idéalement situé à proximité immédiate des transports en commun. Sa large vitrine de 6ml offre une grande visibilité sur un axe très passant et circulant. Cet emplacement est parfait pour toutes activités sans nuisances type : vintage store, prêt à porter, petit mobilier déco, esthétique onglerie, fleuriste, bureaux, services de réparations, téléphonie, salon de thé..). Le loyer mensuel de 1.600 euros hc est faible pour le secteur.Bail 3/6/9 récent.Prix : 25.000 euros, honoraires à la charge du vendeur. Renseignements et visites: contactez Mme Catherine BELLOC, votre spécialiste Business agissant sous le statut de conseiller immobilier indépendant pour le compte de la SAS PROPRIETES PRIVEES en précisant la référence 439577 au 06 76 62 59 35. Plus d'informations sur www.proprietes-privees.com RCS 487 624 777. Catherine BELLOC (EI) Agent Commercial - Numéro RSAC : - .
55 m²



