



Maison 5 pièces jardin garage
Ref. 428436ABON
ROUMAZIERES-LOUBERT (16270)
74 900 €
902 €/m²
83 m²
5 pièces
2 chambres
Séjour de 23m²
Terrain de 800m²
1 WC
Atouts
Jardin privatif
Terrasse
Cheminée
Autres
Informations complémentaires
Classe énérgétique
Emissions GES
Description
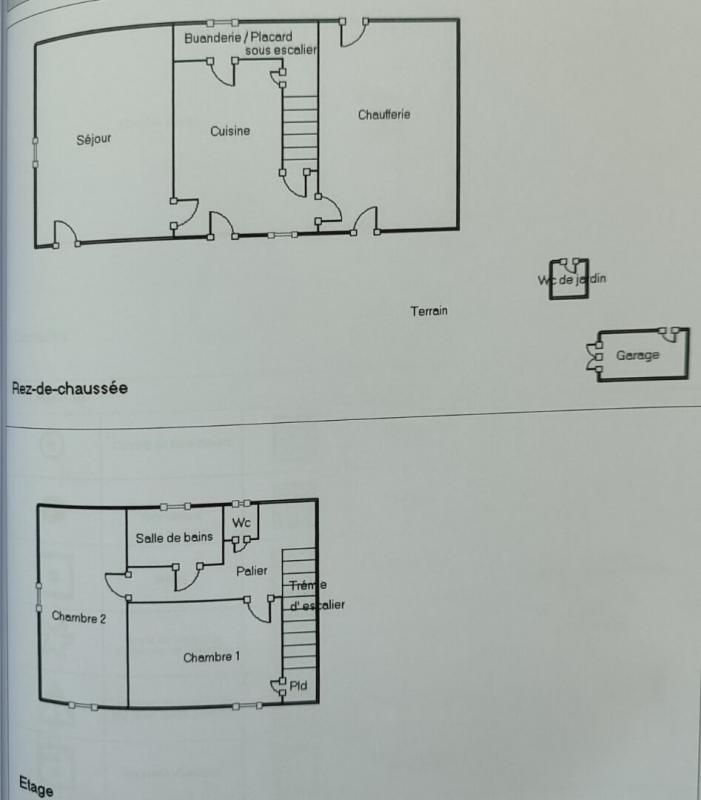
Situé à proximité de Roumazières très agréable petite maison à finir de rénover, de plus son DPE est en D GES B, Fibre, Assainissement Tout à l'égout, Pompe à chaleur air eau et chauffe eau thermodynamique 2021.Huisseries PVC double vitrage 2019. !!! En réez de jardin vous disposerez de 3 pièces pouvant être modulées du fait de la conception avec accès terrasse dont une cuisine indépendante, une réserve avec point d'eau, 2 pièces avec cheminée dont une avec accès au grenier aménageable de 22 m2 avec fenêtre et volets. Le niveau supérieur se compose d'un palier, 2 chambres de 14 et 15 m2 une salle de douche à finir, un wc. L' extérieur, se compose d'une terrasse, un garage avec électricité, un terrain arboré entièrement clos....Prix 74900 HAI Taxes foncières 900 eurosDPE D GES B Montant estimé des dépenses annuelles d'énergie pour un usage standard entre 1100 et 1540 euros indexées aux années 2021, 2022 et 2023 Pour visiter et vous accompagner dans votre projet, contactez Agnès BONNEAU, au 0783288757 ou, par courriel à ag.bonneau@proprietes-privees.com. Selon l'article L.561.5 du Code Monétaire et Financier, pour l'organisation de la visite, la présentation d'une pièce d'identité vous sera demandée. Cette annonce a été rédigée sous la responsabilité éditoriale de Agnes BONNEAU agissant sous le statut d'agent commercial immatriculé au RSAC Angoulême 905 158 531 auprès de SAS PROPRIETES PRIVEES, au capital de 44 920 euros, ZAC LE CHÊNE FERRÉ - 44 ALLÉE DES CINQ CONTINENTS 44120 VERTOU ; SIRET 487 624 777 00040, RCS Nantes. Carte Professionnelle Transactions sur immeubles et fonds de commerce (T) et Gestion immobilière (G) n°CPI 4401 2016 000 010 388 délivrée par la CCI Nantes - Saint Nazaire. Compte séquestre n°30932508467 BPA SAINT-SEBASTIEN-SUR-LOIRE (44230). Garantie GALIAN-SMABTP - 89 rue de la Boétie, 75008 Paris - n°28137 J pour 2 000 000 euros pour T et 120 000 euros pour G. Assurance responsabilité civile professionnelle par GALIAN-SMABTP n° de police 28137.J Mandat réf : 428436 - Le professionnel garantit et sécurise votre projet immobilier. Agnes BONNEAU (EI) Agent Commercial - Numéro RSAC : Angoulême 905 158 531 - .Les informations sur les risques auxquels ce bien est exposé sont disponibles sur le site Géorisques : www. georisques. gouv. fr










