



SALON DE PROVENCE - Murs commerciaux, Bureaux
Ref. 430027B-KCH
SALON-DE-PROVENCE (13300)
800 €
13 €/m²
60 m²
Atouts
Autres
Informations complémentaires
Description
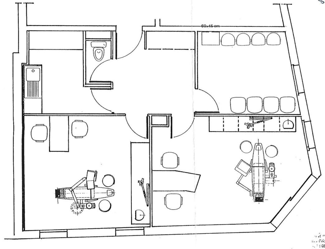
Bureaux professionnels présentés en exclusivité par Pascaline et Kevin ChevalierSitués au 1er étage d'une petite résidence, ces bureaux T4 de 60 m² bénéficient d'un emplacement stratégique sur un axe très passant, idéal pour garantir visibilité et accessibilité à toute activité professionnelle. Anciennement dédié au secteur médical, l'espace propose une configuration polyvalente et modulable, parfaitement adaptée à un cabinet, une agence, des bureaux de services ou un espace de consultation.Ce local commercial T4 se compose de quatre pièces indépendantes, d'un WC et d'un coin cuisine, permettant une installation immédiate et fonctionnelle pour un large panel de professions.Caractéristiques principales :- Accessibilité optimale : emplacement en plein centre-ville.- Connectivité performante : fibre optique installée.- Confort : climatisation réversible pour un environnement agréable toute l'année.- Tranquillité : résidence calme et bien entretenue.Points forts :Visibilité maximale, grâce à un axe très fréquenté générant un fort passage.- Résidence sécurisée et discrète, idéale pour recevoir une clientèle.- Espace modulable, adapté aux professions médicales, libérales, immobilières, de conseil ou de services.- Configuration T4 fonctionnelle, avec WC et coin cuisine intégrés.La combinaison visibilité + accessibilité + modularité fait de ce bien une valeur sûre dans un marché où les locaux bien situés se raréfient.Pascaline et Kevin Chevalier vous proposent donc ces bureaux comme une opportunité unique : un espace fonctionnel, attractif et idéalement placé, parfait pour lancer ou développer une activité.Loyer : 800 euros + 84 euros de chargesDêpot de garantie : 800 eurosHonoraires d'agence : 1500 eurosPour visiter et vous accompagner dans votre projet, contactez Kévin CHEVALIER, au 0619948347 ou par courriel à k.chevalier@proprietes-privees.comSelon l'article L.561.5 du Code Monétaire et Financier, pour l'organisation de la visite, la présentation d'une pièce d'identité vous sera demandée.Cette annonce a été réalisée sous la responsabilité éditoriale de Kévin CHEVALIER agissant en qualité de conseiller immobilier indépendant sous portage salarial auprès de la SAS PROPRIETES PRIVEES, au capital de 44 920 euros, ZAC LE CHÊNE FERRÉ - 44 ALLÉE DES CINQ CONTINENTS 44120 VERTOU; SIRET 487 624 777 00040, RCS Nantes. Carte professionnelle Transactions sur immeubles et fonds de commerce (T) et Gestion immobilière (G) n° CPI 4401 2016 000 010 388 délivrée par la CCI Nantes - Saint Nazaire. Compte séquestre n°30932508467 BPA SAINT-SEBASTIEN-SUR-LOIRE (44230) ; Garantie GALIAN - 89 rue de la Boétie, 75008 Paris - n°28137 J pour 2 000 000 euros pour T et 120 000 euros pour G. Assurance responsabilité civile professionnelle par MMA Entreprise n° de police 120.137.405 Mandat réf : 430027 - Le professionnel garantit et sécurise votre projet immobilier. Kévin CHEVALIER (EI) Agent Commercial - Numéro RSAC : - .Les informations sur les risques auxquels ce bien est exposé sont disponibles sur le site Géorisques : www. georisques. gouv. fr
Ce bien vous est présenté par
Kévin CHEVALIER

Les biens à proximité

Local commercial
Ref. 445347B-KCH
350 €
Bureaux professionnels présentés en exclusivité par Pascaline et Kevin ChevalierSitués au 1er étage d'une petite résidence, ce bureau de 11m2 bénéficie d'un emplacement stratégique sur un axe très passant, idéal pour garantir visibilité et accessibilité à toute activité professionnelle.Anciennement dédié au secteur médical, parfaitement adaptée à un cabinet, une agence, un bureau de services ou un espace de consultation.Vous disposez d'une salle d'attente commune, d'un WC est une cuisine commune.Caractéristiques principales :- Accessibilité optimale : emplacement en plein centre-ville.- Connectivité performante : fibre optique installée.- Confort : climatisation réversible pour un environnement agréable toute l'année.- Tranquillité : résidence calme et bien entretenue.Points forts :Visibilité maximale, grâce à un axe très fréquenté générant un fort passage.- Résidence sécurisée et discrète, idéale pour recevoir une clientèle.- Espace modulable, adapté aux professions médicales, libérales, immobilières, de conseil ou de services.- Avec WC et coin cuisine intégrés.La combinaison visibilité + accessibilité + modularité fait de ce bien une valeur sûre dans un marché où les locaux bien situés se raréfient.Pascaline et Kevin Chevalier vous proposent donc ces bureaux comme une opportunité unique : un espace fonctionnel, attractif et idéalement placé, parfait pour lancer une activité ou pour constituer un investissement patrimonial rentable et pérenne.Loyer : 350 eurosDêpot de garantie : 700 eurosHonoraires d'agence : 1000 eurosSi votre activité demande plus d'espace, plusieurs bureaux sont disponibles Prix entre 350 et 420 eurosPour visiter et vous accompagner dans votre projet, contactez Kévin CHEVALIER, au 0619948347 ou par courriel à k.chevalier@proprietes-privees.comSelon l'article L.561.5 du Code Monétaire et Financier, pour l'organisation de la visite, la présentation d'une pièce d'identité vous sera demandée.Cette annonce a été réalisée sous la responsabilité éditoriale de Kévin CHEVALIER agissant en qualité de conseiller immobilier indépendant sous portage salarial auprès de la SAS PROPRIETES PRIVEES, au capital de 44 920 euros, ZAC LE CHÊNE FERRÉ - 44 ALLÉE DES CINQ CONTINENTS 44120 VERTOU; SIRET 487 624 777 00040, RCS Nantes. Carte professionnelle Transactions sur immeubles et fonds de commerce (T) et Gestion immobilière (G) n° CPI 4401 2016 000 010 388 délivrée par la CCI Nantes - Saint Nazaire. Compte séquestre n°30932508467 BPA SAINT-SEBASTIEN-SUR-LOIRE (44230) ; Garantie GALIAN - 89 rue de la Boétie, 75008 Paris - n°28137 J pour 2 000 000 euros pour T et 120 000 euros pour G. Assurance responsabilité civile professionnelle par MMA Entreprise n° de police 120.137.405 Mandat réf :445347 - Le professionnel garantit et sécurise votre projet immobilier. Kévin CHEVALIER (EI) Agent Commercial - Numéro RSAC : - .Les informations sur les risques auxquels ce bien est exposé sont disponibles sur le site Géorisques : www. georisques. gouv. fr
11 m²

Local commercial
Ref. 437516B-KCH
950 €
Local professionnels présenté en exclusivité par Pascaline et Kevin ChevalierSitué en Centre-ville près de la place du Général De Gaulle., ce local de 85 m² bénéficie d'un emplacement stratégique sur un axe passant, idéal pour garantir visibilité et accessibilité à toute activité professionnelle.L'espace propose une configuration polyvalente et modulable, parfaitement adaptée à toute activité.Caractéristiques principales :- Accessibilité optimale : emplacement en plein centre-ville.- Tranquillité : résidence calme et bien entretenue.Points forts :Visibilité maximale, grâce à un axe très fréquenté générant un fort passage.La combinaison visibilité + accessibilité + modularité fait de ce bien une valeur sûre dans un marché où les locaux bien situés se raréfient.Pascaline et Kevin Chevalier vous proposent donc ces bureaux comme une opportunité unique : un espace fonctionnel, attractif et idéalement placé, parfait pour lancer ou développer une activité.Loyer : 950 euros + 150 euros de chargesDêpot de garantie : 950 eurosHonoraires d'agence : 6000 eurosPour visiter et vous accompagner dans votre projet, contactez Kévin CHEVALIER, au 0619948347 ou par courriel à k.chevalier@proprietes-privees.comSelon l'article L.561.5 du Code Monétaire et Financier, pour l'organisation de la visite, la présentation d'une pièce d'identité vous sera demandée.Cette annonce a été réalisée sous la responsabilité éditoriale de Kévin CHEVALIER agissant en qualité de conseiller immobilier indépendant sous portage salarial auprès de la SAS PROPRIETES PRIVEES, au capital de 44 920 euros, ZAC LE CHÊNE FERRÉ - 44 ALLÉE DES CINQ CONTINENTS 44120 VERTOU; SIRET 487 624 777 00040, RCS Nantes. Carte professionnelle Transactions sur immeubles et fonds de commerce (T) et Gestion immobilière (G) n° CPI 4401 2016 000 010 388 délivrée par la CCI Nantes - Saint Nazaire. Compte séquestre n°30932508467 BPA SAINT-SEBASTIEN-SUR-LOIRE (44230) ; Garantie GALIAN - 89 rue de la Boétie, 75008 Paris - n°28137 J pour 2 000 000 euros pour T et 120 000 euros pour G. Assurance responsabilité civile professionnelle par MMA Entreprise n° de police 120.137.405 Mandat réf : 437516 - Le professionnel garantit et sécurise votre projet immobilier. Kévin CHEVALIER (EI) Agent Commercial - Numéro RSAC : - .Les informations sur les risques auxquels ce bien est exposé sont disponibles sur le site Géorisques : www. georisques. gouv. fr
85 m²

Local commercial
Ref. 422497B-KCH
55 000 €
A VENDRE Cession de BAIL Salon-de-Provence (Centre-ville)Exclusivité proposée par Kevin ChevalierSitué en plein coeur de Salon-de-Provence, sur un axe très passant au sein d'une zone commerçante dynamique, ce commerce bénéficie d'un emplacement premium avec une forte visibilité et un passage voiture et piéton .- Local attractif :Le local est moderne, bien agencé d'une surface de plus de 110 m², et prêt à accueillir les clients dans un cadre professionnel et accueillant. Il est idéal pour un entrepreneur souhaitant développer un concept .- Belle opportunité :Un emplacement stratégique,Prix de cession du droit au bail 55 000 euros honoraires à la charge du vendeurPour toute information ou pour organiser une visite, contactez Kevin Chevalier au 0619948347 ou par courriel à k.chevalier@proprietes-privees.com, votre interlocuteur privilégié pour cette exclusivité.Cette présente annonce a été rédigée sous la responsabilité éditoriale de Kévin CHEVALIER agissant sous le statut d'agent commercial immatriculé au RSAC SALON DE PROVENCE 879 208 106 auprès de la SAS PROPRIETES PRIVEES, Réseau national immobilier, au capital de 40000 euros, 44 ALLÉE DES CINQ CONTINENTS - ZAC LE CHÊNE FERRÉ, 44120 VERTOU, RCS Nantes n° 487 624 777 00040, Carte professionnelle T et G n° CPI 4401 2016 000 010 388 CCI Nantes-Saint Nazaire. Garantie GALIAN - 89 rue de la Boétie, 75008 ParisMandat réf : 422497 Le professionnel garantit et sécurise votre projet immobilier. Kévin CHEVALIER (EI) Agent Commercial - Numéro RSAC : - .Les informations sur les risques auxquels ce bien est exposé sont disponibles sur le site Géorisques : www. georisques. gouv. fr
110 m²

Local commercial
Ref. 425906B-ALCO
35 000 €
Emplacement numéro 1 en plein coeur de Salon-de-Provence, Alain CONSTANT vous propose le bail de ce local de 58 m² bénéficiant d'une visibilité exceptionnelle et d'un fort passage, piéton et voiture.Idéal pour développer votre activité dans un environnement dynamique et recherché.Actuellement exploité en salon d'esthétique, ce bien conviendra parfaitement à de nombreuses activités : agence immobilière, cabinet de profession libérale, boutique spécialisée, show-room, ou bureau de services.Le local se compose d'un espace principal lumineux, de deux bureaux ou salle de soin, de deux réserves et d'un coin sanitaire.Le tout en excellent état, refait a neuf il y a peu de temps, prêt à accueillir votre activité sans travaux majeurs.Superficie : 58 m²Loyer : très abordable pour le secteurEmplacement : centre ville, à proximité immédiate des commerces, parkings et transportsIdéale pour s'implanter durablement à Salon-de-Provence !Pour visiter et vous accompagner dans votre projet, contactez Alain CONSTANT, au 0609272084 ou, par courriel à a.constant@proprietes-privees.com. Selon l'article L.561.5 du Code Monétaire et Financier, pour l'organisation de la visite, la présentation d'une pièce d'identité vous sera demandée. Cette présente annonce a été réalisée sous la responsabilité éditoriale de Alain CONSTANT agissant sous le statut d'agent commercial immatriculé au RSAC 488 163 171 CLERMONT FERRAND auprès de SAS PROPRIETES PRIVEES, au capital de 44 920 euros, ZAC LE CHÊNE FERRÉ - 44 ALLÉE DES CINQ CONTINENTS 44120 VERTOU ; SIRET 487 624 777 00040, RCS Nantes. Carte Professionnelle Transactions sur immeubles et fonds de commerce (T) et Gestion immobilière (G) n°CPI 4401 2016 000 010 388 délivrée par la CCI Nantes - Saint Nazaire. Compte séquestre n°30932508467 BPA SAINT-SEBASTIEN-SUR-LOIRE (44230). Garantie GALIAN-SMABTP - 89 rue de la Boétie, 75008 Paris - n°28137 J pour 2 000 000 euros pour T et 120 000 euros pour G. Assurance responsabilité civile professionnelle par GALIAN-SMABTP n° de police 28137.J Mandat réf : 425906 - Le professionnel garantit et sécurise votre projet immobilier. Alain CONSTANT (EI) Agent Commercial - Numéro RSAC : 488 163 171 CLERMONT FERRAND - .Les informations sur les risques auxquels ce bien est exposé sont disponibles sur le site Géorisques : www. georisques. gouv. fr
58 m²







