



AUREC-SUR-LOIRE 43110 TERRAIN CONSTRUCTIBLE AVEC PROJET DE VILLA D'ARCHITECTE AVEC VUE PANORAMIQUE
Ref. 3805WZA
AUREC-SUR-LOIRE (43110)
229 000 €
100 €/m²
2289 m²
Terrain de 2289m²
Atouts
Autres
Informations complémentaires
Description
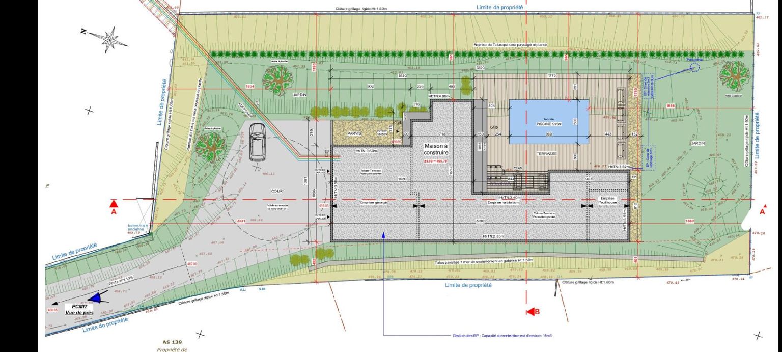
En Exclusivité! Opportunité unique et rare.Je vous propose sur la commune d'Aurec-sur-Loire un magnifique terrain de 2 289 m², situé dans un environnement résidentiel calme et verdoyant, sans aucun vis-à-vis, bénéficiant d'une vue panoramique exceptionnelle.Ce terrain est vendu avec un projet de villa contemporaine d'architecte, aux lignes modernes et élégantes, offrant de belles possibilités de personnalisation selon vos besoins et votre mode de vie.Le projet bénéficie d'un permis de construire accepté et purgé de tout recours, permettant un gain de temps considérable pour les futurs acquéreurs.Les premiers travaux structurants ont déjà été réalisés, notamment la gestion des niveaux du terrain (terrassement) avec un mur de soutènement en béton armé de 60m de long, garantissant une implantation sécurisée et optimisée du projet.Les menuiseries du projet sont déjà commandées et intégralement comprises dans le prix comprenant (baies vitrées de 4m, portes de garages sectionnelles motorisées) représentant une économie immédiate et une avancée significative dans la réalisation de la maison.Secteur pavillonnaire recherché, à proximité des commodités, idéal pour une résidence principale de standing ou un projet patrimonial sécurisé.budget 229 000 eurosPour visiter et vous accompagner dans votre projet, contactez Wissam ZAMRANI, au 0650318532 ou, par courriel à w.zamrani@proprietes-privees.com.Selon l'article L.561.5 du Code Monétaire et Financier, pour l'organisation de la visite, la présentation d'une pièce d'identité vous sera demandée.Cette présente annonce a été rédigée sous la responsabilité éditoriale de Wissam ZAMRANI agissant sous le statut d'agent commercial auprès de SAS AGENCE IMMOBILIERE DE ST GENEST MALIFAUX, au capital de 8 000 euros, SIREN 450 309 422 00019, RCS Saint Étienne. Carte professionnelle ?Transactions sur immeubles et fonds de commerce' n° CPI 42022016000010412 délivrée par la CCI de Lyon Métropole Saint Étienne Roanne. L'agence ne doit recevoir ni détenir d'autres fonds que ceux représentatifs de sa rémunération ou de sa commission.Assurance responsabilité civile professionnelle par ALLIANZ ACTIF PRO n° de police 54768063. Tous nos conseillers sont des agents mandataires indépendants détenteurs d'une attestation de la CCIMandat réf : 3805 Wissam ZAMRANI (EI) Agent Commercial - Numéro RSAC : 830 612 180 R.S.A.C. Saint Etienne - .Les informations sur les risques auxquels ce bien est exposé sont disponibles sur le site Géorisques : www. georisques. gouv. fr


















