


TERRAIN À BÂTIR VIABILISÉ 369 M² - 44680 SAINTE PAZANNE - BUDGET 107 000 HAI
Ref. 425845VAP
SAINTE-PAZANNE (44680)
107 000 €
289 €/m²
369 m²
Terrain de 369m²
Atouts
Autres
Informations complémentaires
Description
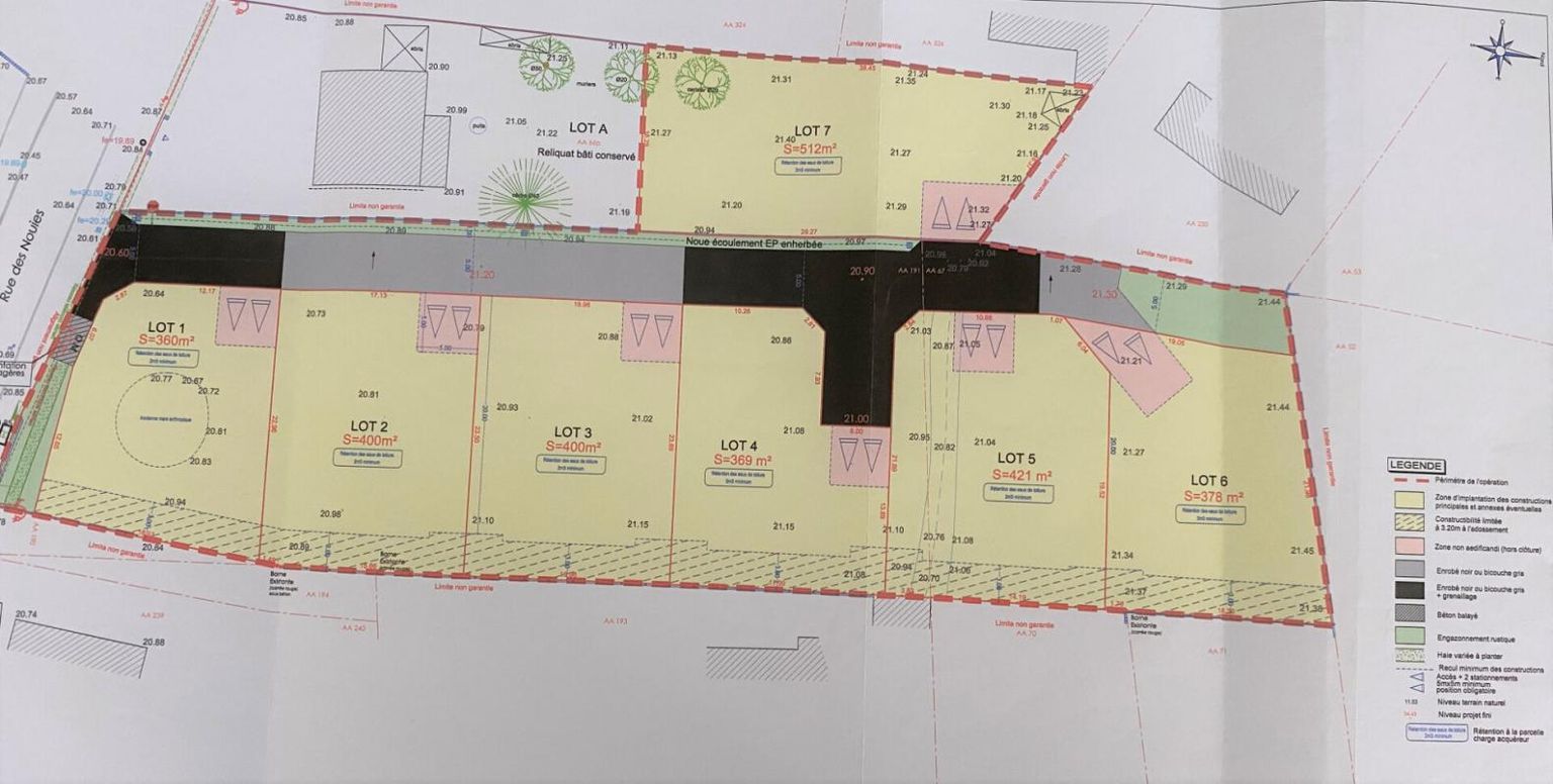
Petit LOTISSEMENT de 7 Lots dans un bel environnement pour votre futur projet de construction sur un terrain à bâtir viabilisé de 369 M² (LOT4) idéalement situé (maison médicale, cabinet dentaire, commerces, écoles et à seulement 5 minutes de la gare à pied) sur la commune de SAINTE PAZANNE entre NANTES et PORNIC.Libre de constructeur pour votre futur projet de construction d'une maison de plain pied ou R+1 , terrain viabilisé (eau, électricité, télécom, assainissement collectif )Prix de vente : 107 000 euros honoraires à la charge du vendeurPour visiter et vous accompagner dans votre projet, contacter Patrice VASSEUX au 06-51-35-24-61 ou par mail: p.vasseux@proprietes-privees.comSelon l'article L.561.5 du Code Monétaire et Financier, pour l'organisation de la visite, la présentation d'une pièce d'identité vous sera demandée.Cette présente annonce a été rédigée sous la responsabilité éditoriale de Patrice VASSEUX agissant sous le statut d'agent commercial immatriculé au RSAC NANTES2016AC00022 auprès de la SAS PROPRIETES PRIVEES, au capital de 44 920 euros- ZAC LE CHÊNE FERRÉ - 44 ALLÉE DES CINQ CONTINENTS 44120 VERTOU; SIRET 487 624 777 00040, RCS Nantes. Carte professionnelle Transactions sur immeubles et fonds de commerce (T) et Gestion immobilière (G) n° CPI 4401 2016 000 010 388 délivrée par la CCI Nantes-Saint Nazaire. Compte séquestre n° 30932508467 BPA SAINT-SEBASTIEN-SUR-LOIRE (44230) ; Garantie GALIAN-SMABTP - 89 rue de la boétie, 75008 PARIS - n° 28137 J pour 2 000 000 euros pour T et 120 000 euros pour G.Assurance responsabilité civile professionnelle par GALIAN-SMABTP n° de police 28137.JMandat réf : 425845 - Le professionnel garantit et sécurise votre projet immobilier. Patrice VASSEUX (EI) Agent Commercial - Numéro RSAC : NANTES2016AC00022 - .



