



29520 Châteauneuf du Faou maison familiale avec vue 4 - 6 chambres sous sol complet
Ref. 438103BCP
CHATEAUNEUF-DU-FAOU (29520)
154 000 €
1 184 €/m²
130 m²
8 pièces
4 chambres
Terrain de 1000m²
Atouts
Autres
Informations complémentaires
Classe énérgétique
Emissions GES
Description
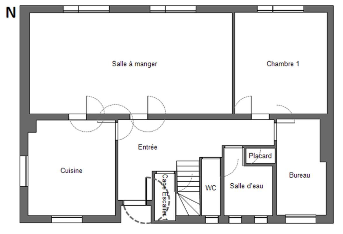
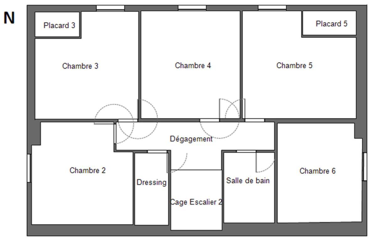
Maison familiale de 1972 avec vue, proche toutes commodités.4 chambres et 2 bureaux ou chambres d'enfants dont 1 en Rez-de-chaussée.Entrée, cuisine, salon séjour de 30 m² avec vue imprenable, baies vitrées et balcon.1 chambre de 14 m², 1 salle d'eau récente, 1 wc, 1 bureau - dressingEtage : 3 chambres, 2 bureaux ou chambres d'enfant, salle de bain, wc, dressing.Sous sol complet 80 m² haut de plafond avec chaufferie et pièce, porte électrique.Tout à l'égout, sur vitrage , chauffage au fioul.Jardin arboré et entretenu. Terrasse au SudBudget : 154 000 euros honoraires à la charge des vendeurs.Cette présente annonce a été rédigée sous la responsabilité éditoriale de Philippe BALAC agissant sous le statut d'agent commercial immatriculé au RSAC QUIMPER 753373794 auprès de la SAS PROPRIETES PRIVEES, Réseau national immobilier, au capital de 40000 euros, 44 ALLÉE DES CINQ CONTINENTS - ZAC LE CHÊNE FERRÉ, 44120 VERTOU, RCS Nantes n° 487 624 777 00040, Carte professionnelle T et G n° CPI 4401 2016 000 010 388 CCI Nantes-Saint Nazaire. Garantie GALIAN - 89 rue de la Boétie, 75008 ParisMandat réf : 438103 - Le professionnel garantit et sécurise votre projet immobilier.Honoraires de 5.5 % à la charge du vendeur.Consommation énergie primaire F 286 kWh/m2 par anGaz Effet de Serre F 89 CO2/m2/anLes informations sur les risques auxquels ce bien est exposé sont disponibles sur le site Géorisques : www. georisques. gouv. fr
Ce bien vous est présenté par
Philippe BALAC

Les biens à proximité

Maison
Ref. 446283BCP
70 000 €
1 000 €/m²
Maison au calme avec vue, terrasse avec vue.Entrée sur pièce de vie de 14 m².1 cuisine de 14 m².En étage : 2 chambres et 1 pièce pouvant être une troisième chambres.Salle de bain. WCChaufferie attenante de 14 m².Chauffage au fioul, double vitrage, toit en bon état, tout à l'égout.Budget : 70 000 euros honoraires à la charge de l'acquéreurPour visiter et vous accompagner dans votre projet, contactez Philippe BALAC, au 07 60 72 60 23 ou par courriel à p.balac@proprietes-privees.comCette présente annonce a été rédigée sous la responsabilité éditoriale de Philippe BALAC agissant sous le statut d'agent commercial immatriculé au RSAC QUIMPER 753373794 auprès de la SAS PROPRIETES PRIVEES, Réseau national immobilier, au capital de 40000 euros, 44 ALLÉE DES CINQ CONTINENTS - ZAC LE CHÊNE FERRÉ, 44120 VERTOU, RCS Nantes n° 487 624 777 00040, Carte professionnelle T et G n° CPI 4401 2016 000 010 388 CCI Nantes-Saint Nazaire. Garantie GALIAN - 89 rue de la Boétie, 75008 ParisMandat réf : 446283 - Le professionnel garantit et sécurise votre projet immobilier.Honoraires à la charge des acquéreurs forfait minimum de 5990 euros.Consommation énergie primaire F 278 kWh/m2 par anGaz Effet de Serre F 74 CO2/m2/anLes informations sur les risques auxquels ce bien est exposé sont disponibles sur le site Géorisques : www. georisques. gouv. fr (8 % honoraires TTC à la charge de l'acquéreur.) (11.11 % honoraires TTC à la charge de l'acquéreur.)
70 m²
5 p
3 ch

Maison
Ref. 430178ALGA
319 300 €
2 956 €/m²
Située à seulement 2 minutes du bourg de Spézet, dans un environnement calme et en impasse, cette belle maison de 2018 vous séduira par sa luminosité, ses volumes généreux et son cadre de vie paisible.- Un bien rare : DE PLAIN-PIED, sans vis-à-vis, encore sous garantie décennale, et classé A au DPE.- Un intérieur lumineux et fonctionnel (Plain-pied)Dès l'entrée, vous découvrez une spacieuse pièce de vie de 40 m², baignée de lumière grâce à ses 3 grandes baies vitrées, avec cuisine ouverte entièrement équipée (cuisine Schmidt) : Plan de travail Plaques induction Four pyrolyse Micro-ondes encastré Lave-vaisselle Réfrigérateur encastré Hotte centrale décorative- Espace nuit : Suite parentale de 15 m² avec dressing et salle d'eau privative(douche, double vasque, WC, sèche-serviettes, porte à galandage) 2 chambres de 11 m² et 12,5 m² Salle de bain entièrement carrelée avec baignoire WC suspendu indépendant avec lave-mains- Grand cellier avec rangements et évier- Un extérieur spacieux et sans vis-à-vis Terrain herbacé d'environ 1 500 m², quasiment clos Grande terrasse exposée Sud-Est avec store banne électrique Seconde terrasse côté pignon Grande cour gravillonnée (plusieurs véhicules) - Dépendance en dur de 28 m² avec porte de garage, fenêtres et porte classique, avec eau et électricité.Idéal pour atelier, stockage ou stationnement- Garage attenant à la maison + potentiel d'aménagement à l'étage Garage de 23 m² (porte motorisée) Coin buanderie avec pompe à chaleur air/eau Grenier aménageable de 23 m² au sol à l'étage- Prestations et confort DPE A / A (performance énergétique exceptionnelle) Chauffage au sol par pompe à chaleur Menuiseries aluminium Volets roulants électriques Toiture en ardoises naturelles (crochets inox) Fibre optique Tout-à-l'égout conforme Vide sanitaire accessible Maison très bien isolée (thermique et acoustique) Grand terrain plat - Localisation stratégique 2 min du bourg de Spézet 10 min de Gourin 10 min de Châteauneuf-du-Faou 20 min de Carhaix-Plouguer 35 min de Quimper 40 min du littoral - Les points forts Maison quasi neuve (2018) De plain-pied Sans aucun vis-à-vis Aucun travaux à prévoir Grande parcelle de 1 500 m² Dépendance en dur avec eau et électricité Quartier calme en impasse Excellente performance énergétiqueSi vous recherchez le calme, la modernité et le confort énergétique, tout en restant proche des commodités, cette maison est faite pour vous.NE RATEZ PAS CE BIEN AVEC SES NOMBREUX ATOUTS.Informations complémentaires :- Prix euros : 319300 euros- Honoraires à la charge de l'acquéreur : 3.00%- Prix hors honoraires : 310 000 eurosDPE A GES A DPE réalisé en 10/2023Montant estimé des dépenses annuelles d'énergie pour un usage standard entre 490 euros et 710 euros indexées à l'année 2021.Pour visiter et vous accompagner dans votre projet, contactez Alain LE GALL, au 07.87.25.90.45 ou, par courriel à a.legall@proprietes-privees.com.Selon l'article L.561.5 du Code Monétaire et Financier, pour l'organisation de la visite, la présentation d'une pièce d'identité vous sera demandée.Cette présente annonce a été rédigée sous la responsabilité éditoriale de Alain LE GALL agissant sous le statut d'agent commercial immatriculé au RSAC 792859613 LORIENT auprès de SAS PROPRIETES PRIVEES, au capital de 44 920 euros, ZAC LE CHÊNE FERRÉ - 44 ALLÉE DES CINQ CONTINENTS 44120 VERTOU; SIRET 487 624 777 00040, RCS Nantes. Carte Professionnelle Transactions sur immeubles et fonds de commerce (T) et Gestion immobilière (G) n°CPI 4401 2016 000 010 388 délivrée par la CCI Nantes - Saint Nazaire. Compte séquestre n°30932508467 BPA SAINT-SEBASTIEN-SUR-LOIRE (44230). Garantie GALIAN-SMABTP - 89 rue de la Boétie, 75008 Paris - n°28137 J pour 2 000 000 euros pour T et 120 000 euros pour G. Assurance responsabilité civile professionnelle par GALIAN-SMABTP n° de police 28137.JMandat réf : 430 178 - Le professionnel garantit et sécurise votre projet immobilier. (3.00 % honoraires TTC à la charge de l'acquéreur.) Alain LE GALL (EI) Agent Commercial - Numéro RSAC : 792859613 LORIENT - .Les informations sur les risques auxquels ce bien est exposé sont disponibles sur le site Géorisques : www. georisques. gouv. fr
108 m²
5 p
3 ch

Maison
Ref. 443966BCP
116 000 €
1 705 €/m²
Proche de toutes commodités, maison de ville avec terrain de 500 m², au calme, résidentielEntrée sur petite véranda, cuisine, salon séjour, 3 chambres, salle d'eau, wc.Sous sol complet, combles aménageables.Chauffage au fioul, double vitrageBudget : 116 000 euros inclus les honoraires à la charge des acquéreurs.Pour visiter et vous accompagner dans votre projet, contactez Philippe BALAC, au 07 60 72 60 23 ou par courriel à p.balac@proprietes-privees.comCette présente annonce a été rédigée sous la responsabilité éditoriale de Philippe BALAC agissant sous le statut d'agent commercial immatriculé au RSAC QUIMPER 753373794 auprès de la SAS PROPRIETES PRIVEES, Réseau national immobilier, au capital de 40000 euros, 44 ALLÉE DES CINQ CONTINENTS - ZAC LE CHÊNE FERRÉ, 44120 VERTOU, RCS Nantes n° 487 624 777 00040, Carte professionnelle T et G n° CPI 4401 2016 000 010 388 CCI Nantes-Saint Nazaire. Garantie GALIAN - 89 rue de la Boétie, 75008 ParisMandat réf : 443966 - Le professionnel garantit et sécurise votre projet immobilier.Honoraires à la charge des acquéreurs forfait minimum de 5990 euros.Consommation énergie primaire G 455 kWh/m2 par anGaz Effet de Serre G 143 CO2/m2/anLes informations sur les risques auxquels ce bien est exposé sont disponibles sur le site Géorisques : www. georisques. gouv. fr (5.45 % honoraires TTC à la charge de l'acquéreur.)
68 m²
5 p
3 ch

Maison
Ref. 439307BCP
145 000 €
1 542 €/m²
Maison de bourg avec une vie de plain pied.1 chambre en rez-de-chaussée, salle d'eau récente, wc indépendant.Cuisine aménagée avec espace repas.Salon séjour avec cheminée ancienne.En étage : 2 chambres et bureau.Garage, jardin clos de murs et sans vis à vis.Tout à l'égout, électricité récente, chauffage au gaz de ville.Budget : 145 000 euros honoraires à la charge des acquéreursPour visiter et vous accompagner dans votre projet, contactez Philippe BALAC07 60 72 60 23 ou par courriel à p.balac@proprietes-privees.comCette présente annonce a été rédigée sous la responsabilité éditoriale de Philippe BALAC agissant sous le statut d'agent commercial immatriculé au RSAC QUIMPER 753373794 auprès de la SAS PROPRIETES PRIVEES, Réseau national immobilier, au capital de 40000 euros, 44 ALLÉE DES CINQ CONTINENTS - ZAC LE CHÊNE FERRÉ, 44120 VERTOU, RCS Nantes n° 487 624 777 00040, Carte professionnelle T et G n° CPI 4401 2016 000 010 388 CCI Nantes-Saint Nazaire. Garantie GALIAN - 89 rue de la Boétie, 75008 ParisMandat réf : 439307 honoraires charge acquéreur de 7.4 %Consommation énergie primaire D 141 kWh/m2 par anGaz Effet de Serre D 30 CO2/m2/anLe professionnel garantit et sécurise votre projet .Les informations sur les risques auxquels ce bien est exposé sont disponibles sur le site Géorisques : www. georisques. gouv. fr (7.41 % honoraires TTC à la charge de l'acquéreur.)
94 m²
5 p
3 ch










