



Maison Gattieres 6 pièce(s) 114 m2
Ref. 444870SGIU
GATTIERES (06510)
349 000 €
3 061 €/m²
114 m²
6 pièces
4 chambres
Terrain de 480m²
1 WC
Atouts
Jardin privatif
Cave
Balcon
Interphone
Autres
Informations complémentaires
Classe énérgétique
Emissions GES
Description
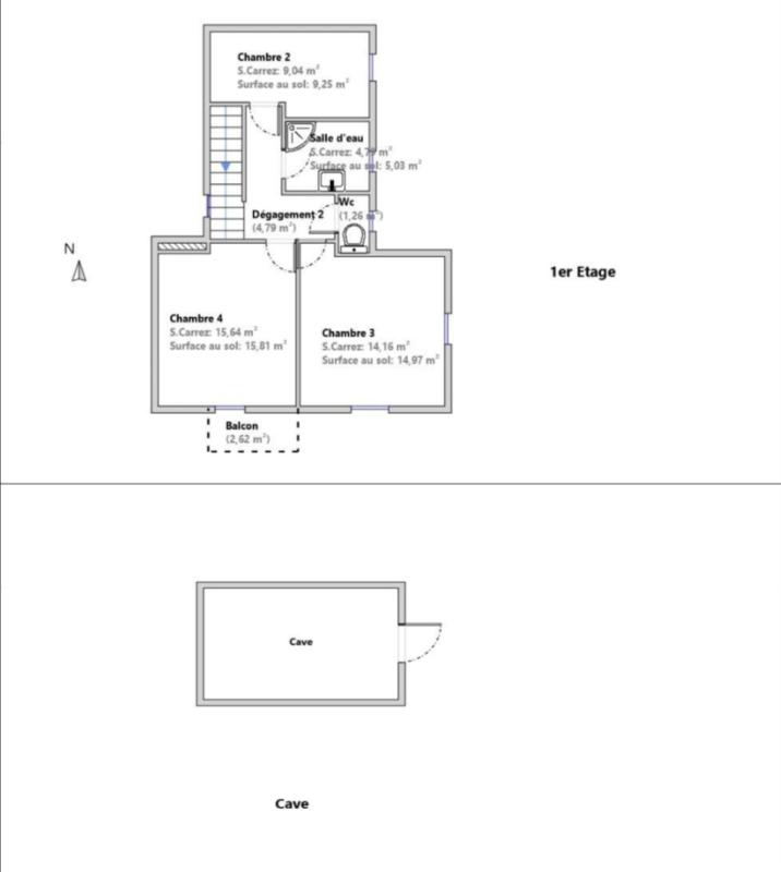
** MAISON SOUS OFFRE ACCEPTEE**Je vous propose cette charmante maison individuelle de 114 m² à Gattières, idéale pour une famille car à proximité des écoles et des commerces.Maison comprenant 6 pièces :- Une salle à manger avec cuisine ouverte- un salon avec cheminée fonctionnelle- 4 chambres ( 2 grandes et 2 plus petites )- 1 salle de douche avec double vasques- WC indépendant- 1 pièce buanderie/ chaufferie avec pompe à chaleur récenteDouble vitrage PVC dans toutes les piècesUne grande cave complète ce bien ainsi que 2 places de parking situées en face de la maison.Exposition Sud sur 390 m² de terrain.Des travaux sont à prévoir.Prix du bien 349000 euros honoraires d'agence inclus charge vendeur.DPE : CGES : BDiagnostics réalisés le 04/03/2026Estimation des coûts annuels d'énergie du logement entre 1680 euros et 2300 euros par an sur les années 2021,2022 et 2023 ( abonnements compris ).Pour visiter et vous accompagner dans votre projet, contactezSéverine Giussani au 06.83.51.72.28 ou par courriel s.giussani@propriétés-privees.com. Selon l'article L.561.5 du code monétaire et financier, pour l'organisation de la visite, la présentation d'une pièce d'identité vous sera demandée.Cette présente annonce a été rédigée sous la responsabilité éditoriale de Séverine Giussani agissant sous le statut d'agent commercial (sous EI ou EIRL)immatriculé au RSAC de Grasse 939619276 auprès de la SAS PROPRIETES PRIVEES,Réseau national immobilier, au capital de 44 920 euros, 44 ALLÉE DES CINQCONTINENTS - ZAC LE CHÊNE FERRÉ, 44120 VERTOU, RCS Nantes n° 487 624777, Carte professionnelle T et G n° CPI 4401 2016 000 010 388 CCI Nantes-SaintNazaire. Garantie GALIAN-SMABTP - 89 rue de la Boétie, 75008 Paris.Mandat réf : 444870. Severine GIUSSANI (EI) Agent Commercial - Numéro RSAC : GRASSE 939619276 - .Les informations sur les risques auxquels ce bien est exposé sont disponibles sur le site Géorisques : www. georisques. gouv. fr
Ce bien vous est présenté par
Severine GIUSSANI

Les biens à proximité

Maison
Ref. 441852PERR
849 000 €
4 964 €/m²
** SOUS OFFRE ACCEPTÉE ** SI vous souhaitez acheter, vendre ou investir, contactez-moi sans plus attendre au 07 81 24 08 53. A bientôt ! **Nouvelle EXCLUSIVITÉ - Véritable have de paix aux portes de Gattières et de Vence. Dans un environnement naturel privilégié sur la commune de CARROS, cette villa de charme de 171 m² habitable est implantée sur un magnifique terrain arboré d'environ 2000 m², sans vis-à-vis avec piscine et vue dégagé sur les collines.Cette magnifique villa offre de beaux volumes avec un vaste séjour-salle à manger convivial, une grande cuisine et trois belles chambres. Les sols, en terre cuite vitrifiée, apportent un charme provençal très chaleureux.La configuration sur deux niveaux (rez-de-chaussée et rez-de-jardin) permet d'envisager un espace indépendant ou l'accueil de deux familles.De nombreux espaces annexes complètent ce bien : garage de 56m2, buanderie, cellier, et cave a vin de 33 m2 ! Le tout représentant plus 150 m² supplémentaires et portant la surface utile totale à plus de 320 m².A l'extérieur, vous profiterez d'un superbe terrain paysager, d'une belle piscine et d'un environnement calme et verdoyant.Les propriétés offrant un tel cadre de vie sont rares sur le secteur.Ce bien est susceptible de séduire rapidement les amateurs de nature et de calme. Premières visite en cours - N'attendez pas et contactez-moi pour visiter à votre tour. Plans et vidéos sur demande.PRIX : 849 000 euros - (Honoraires inclus charge vendeur)DPE C - GES AMontant estimé des dépenses annuelles d'énergie pour un usage standard entre 2139 et 2893 euros indexées aux années 2021, 2022 et 2023 (ou 2021 uniquement) (si logement F ou G 'Logement à consommation énergétique excessive : classe F ou G')Pour visiter et vous accompagner dans votre projet, contactez Milena PERRAULT, au 0781240853 ou, par courriel à m.perrault@proprietes-privees.com.Selon l'article L.561.5 du Code Monétaire et Financier, pour l'organisation de la visite, la présentation d'une pièce d'identité vous sera demandée.Cette présente annonce a été rédigée sous la responsabilité éditoriale de Milena PERRAULT agissant sous le statut d'agent commercial immatriculé au RSAC NICE 978924645 auprès de SAS PROPRIETES PRIVEES, au capital de 44 920 euros, ZAC LE CHÊNE FERRÉ - 44 ALLÉE DES CINQ CONTINENTS 44120 VERTOU; SIRET 487 624 777 00040, RCS Nantes. Carte Professionnelle Transactions sur immeubles et fonds de commerce (T) et Gestion immobilière (G) n°CPI 4401 2016 000 010 388 délivrée par la CCI Nantes - Saint Nazaire. Compte séquestre n°30932508467 BPA SAINT-SEBASTIEN-SUR-LOIRE (44230). Garantie GALIAN-SMABTP - 89 rue de la Boétie, 75008 Paris - n°28137 J pour 2 000 000 euros pour T et 120 000 euros pour G. Assurance responsabilité civile professionnelle par GALIAN-SMABTP n° de police 28137.JMandat réf : 441 852 - Le professionnel garantit et sécurise votre projet immobilier. Milena PERRAULT (EI) Agent Commercial - Numéro RSAC : NICE 978924645 - .Les informations sur les risques auxquels ce bien est exposé sont disponibles sur le site Géorisques : www. georisques. gouv. fr
171 m²
4 p
3 ch

Maison
Ref. 430102PERR
500 000 €
6 250 €/m²
** SOUS OFFRE ** Si vous souhaitez acheter, vendre ou investir, contactez-moi pour me parler de votre projet au 07 81 24 08 53 -Situé à Carros, ne manquez pas cette belle opportunité de venir vivre dans un quartier résidentiel prisé, à seulement 15 mn de Nice.Découvrez cette CHARMANTE MAISON de 80 m2, nichée dans un véritable petit coin de paradis, avec plus de 2000 m2 DE TERRAIN. La parcelle comprend un espace constructible de 675 m2 avec une emprise au sol de 15%.La maison actuelle se compose, d'un séjour-salon, d'une véranda, d'une cuisine, de deux chambres ainsi que d'une salle d'eau avec wc indépendant. En complément, vous bénéficierez d'une terrasse de 12m2, d'une cave, et de diverses dépendances extérieures (garage, abri bois, abri de jardin).Un MAGNIFIQUE JARDIN entoure la maison avec une piscine hors -sol.Quelques travaux sont à prévoir pour optimiser le confort.Pour visiter, contactez-moi sans plus attendre au 07.81.24.08.53.Prix : 500 000 euros (honoraires charges vendeur)DPE D (243) GES C (12)Montant estimé des dépenses annuelles d'énergie pour un usage standard entre 1280 et 1790 euros indexées aux années 2021, 2022 et 2023 (ou 2021 uniquement) (si logement F ou G 'Logement à consommation énergétique excessive : classe F ou G')Pour visiter et vous accompagner dans votre projet, contactez Milena PERRAULT, au 0781240853 ou, par courriel à m.perrault@proprietes-privees.com.Selon l'article L.561.5 du Code Monétaire et Financier, pour l'organisation de la visite, la présentation d'une pièce d'identité vous sera demandée.Cette présente annonce a été rédigée sous la responsabilité éditoriale de Milena PERRAULT agissant sous le statut d'agent commercial immatriculé au RSAC NICE 978924645 auprès de SAS PROPRIETES PRIVEES, au capital de 44 920 euros, ZAC LE CHÊNE FERRÉ - 44 ALLÉE DES CINQ CONTINENTS 44120 VERTOU; SIRET 487 624 777 00040, RCS Nantes. Carte Professionnelle Transactions sur immeubles et fonds de commerce (T) et Gestion immobilière (G) n°CPI 4401 2016 000 010 388 délivrée par la CCI Nantes - Saint Nazaire. Compte séquestre n°30932508467 BPA SAINT-SEBASTIEN-SUR-LOIRE (44230). Garantie GALIAN-SMABTP - 89 rue de la Boétie, 75008 Paris - n°28137 J pour 2 000 000 euros pour T et 120 000 euros pour G. Assurance responsabilité civile professionnelle par GALIAN-SMABTP n° de police 28137.JMandat réf : 403102 - Le professionnel vous accompagne dans votre projet immobilier. Milena PERRAULT (EI) Agent Commercial - Numéro RSAC : NICE 978924645 - .
80 m²
3 p
2 ch







