



Terrain Plan D Aups Sainte Baume 2000 m2
Ref. 447057MNA
PLAN-D'AUPS-SAINTE-BAUME (83640)
199 000 €
99 €/m²
2000 m²
Terrain de 2000m²
Atouts
Autres
Informations complémentaires
Description
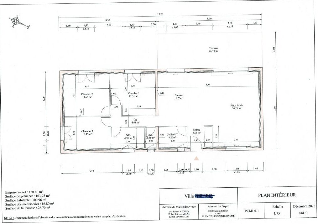
En exclusivité, pour les amoureux de la nature, au plan d aups, Nadine Mas vous propose ce terrain situe au calme dans une impasse et proche du village.Permis pour une maison de 101m² accorde.Le terrain de 2000m² n est pas divisible.Assainissement autonome (tout a l égout)Compteur d eauLibre constructeurPrix 199 000 euros Honoraires frais d agence compris charge vendeurPour visiter et vous accompagner dans votre projet, contactez Nadine Mas au 06 28 79 15 40 ou, par courriel à n.mas@proprietes-privees.com.Selon l'article L.561.5 du Code Monétaire et Financier, pour l'organisation de la visite, la présentation d'une pièce d'identité vous sera demandée.Cette présente annonce a été rédigée sous la responsabilité éditoriale de Nadine MAS agissant en qualité de conseiller immobilier indépendant sous portage salarial auprès de SAS PROPRIETES PRIVEES, au capital de 44 920 euros, ZAC LE CHÊNE FERRÉ - 44 ALLÉE DES CINQ CONTINENTS 44120 VERTOU; SIRET 487 624 777 00040, RCS Nantes. Carte Professionnelle Transactions sur immeubles et fonds de commerce (T) et Gestion immobilière (G) n°CPI 4401 2016 000 010 388 délivrée par la CCI Nantes - Saint Nazaire. Compte séquestre n°30932508467 BPA SAINT-SEBASTIEN-SUR-LOIRE (44230). Garantie GALIAN-SMABTP - 89 rue de la Boétie, 75008 Paris - n°28137 J pour 2 000 000 euros pour T et 120 000 euros pour G. Assurance responsabilité civile professionnelle par GALIAN-SMABTP n° de police 28137.JMandat réf :. 447057- Le professionnel garantit et sécurise votre projet immobilier.Les informations sur les risques auxquels ce bien est exposé sont disponibles sur le site Géorisques : www. georisques. gouv. fr
Ce bien vous est présenté par
Nadine MAS

Les biens à proximité

Terrain
Ref. 448131SPJ
160 000 €
216 €/m²
83640 Plan d'Aups la Sainte Baume, je vous propose au 07.60.01.14.86 un très beau terrain plat viabilisé de 700 m2 niché au coeur d'essences méditerranéennes à quelques minutes du centre du village de Plan d'Aups. Ce terrain est situé dans un lotissement à taille humaine comprenant 5 lots.Mandat 448131- Prix 160000 euros honoraires à charge vendeur.Pour visiter et vous accompagner dans votre projet, contactez Jean Philippe SUSPLUGAS, au 07 60 01 14 86, par courriel : jp.susplugas@proprietes-privees.com.Selon l'article L.561.5 du Code Monétaire et Financier, pour l'organisation de la visite, la présentation d'une pièce d'identité vous sera demandée.Cette présente annonce a été rédigée sous la responsabilité éditoriale de Jean Philippe SUSPLUGAS agissant sous le statut d'agent commercial immatriculé au RSAC de Toulon sous le n° 901186908 auprès de la SAS PROPRIETES PRIVEES, au capital de 44 920 euros - ZAC LE CHÊNE FERRÉ, 44 ALLÉE DES CINQ CONTINENTS 44120 VERTOU; SIRET 487 624 777 00040, RCS Nantes. Carte professionnelle Transactions sur immeubles et fonds de commerce (T) et et Gestion immobilière (G) n° CPI 4401 2016 000 010 388 délivrée par la CCI Nantes-Saint Nazaire. Garantie séquestre 30932508467 BPA SAINT-SEBASTIEN-SUR-LOIRE (44230). Garantie GALIAN-SMABTP - 89 rue de la Boétie, 75008 Paris - n°28137 J pour 2 000 000 euros pour T et 120 000 euros pour G. Assurance responsabilité civile professionnelle par GALIAN-SMABTP n° de police 28137. Les informations sur les risques auxquels ce bien est exposé sont disponibles sur le site Géorisques : www.géorisques.gouv.frMandat 448131 - Le professionnel garantit et sécurise votre projet immobilier. Jean Philippe SUSPLUGAS (EI) Agent Commercial - Numéro RSAC : toulon 901186908 - .Les informations sur les risques auxquels ce bien est exposé sont disponibles sur le site Géorisques : www. georisques. gouv. fr
740 m²

Terrain
Ref. 407154MNA
199 000 €
99 €/m²
En exclusivité, pour les amoureux de la nature, au plan d aups, Nadine Mas vous propose ce terrain plat situe au calme avec permis accordé et purgé de tout recours pour une maison de plus de 130m² avec garage et piscine.Le terrain de 2000m² n est pas divisible.Assainissement individuel avec un avis favorable du SPANCLibre constructeurPrix 199 000 euros Honoraires frais d agence compris charge vendeurPour visiter et vous accompagner dans votre projet, contactez Nadine Mas au 06 28 79 15 40 ou, par courriel à n.mas@proprietes-privees.com.Selon l'article L.561.5 du Code Monétaire et Financier, pour l'organisation de la visite, la présentation d'une pièce d'identité vous sera demandée.Cette présente annonce a été rédigée sous la responsabilité éditoriale de Nadine MAS agissant en qualité de conseiller immobilier indépendant sous portage salarial auprès de SAS PROPRIETES PRIVEES, au capital de 44 920 euros, ZAC LE CHÊNE FERRÉ - 44 ALLÉE DES CINQ CONTINENTS 44120 VERTOU; SIRET 487 624 777 00040, RCS Nantes. Carte Professionnelle Transactions sur immeubles et fonds de commerce (T) et Gestion immobilière (G) n°CPI 4401 2016 000 010 388 délivrée par la CCI Nantes - Saint Nazaire. Compte séquestre n°30932508467 BPA SAINT-SEBASTIEN-SUR-LOIRE (44230). Garantie GALIAN-SMABTP - 89 rue de la Boétie, 75008 Paris - n°28137 J pour 2 000 000 euros pour T et 120 000 euros pour G. Assurance responsabilité civile professionnelle par GALIAN-SMABTP n° de police 28137.JMandat réf :. 407154- Le professionnel garantit et sécurise votre projet immobilier.
2000 m²

Terrain
Ref. 407915MNA
170 000 €
103 €/m²
Nadine Mas vous propose ce terrain situe au calme avec permis accordé et purgé de tout recours. RT 2012.Vous êtes entre une zone naturelle et une zone agricole.Eau et électricité en bordure,.Assainissement individuel avec un avis favorable du SPANCLibre constructeurTaxe d aménagement payéePrix 170 000 euros Frais d agence inclus charge vendeur.Pour visiter et vous accompagner dans votre projet, contactez Nadine Mas au 06 28 79 15 40 ou, par courriel à n.mas@proprietes-privees.com.Selon l'article L.561.5 du Code Monétaire et Financier, pour l'organisation de la visite, la présentation d'une pièce d'identité vous sera demandée.Cette présente annonce a été rédigée sous la responsabilité éditoriale de Nadine MAS agissant en qualité de conseiller immobilier indépendant sous portage salarial auprès de SAS PROPRIETES PRIVEES, au capital de 44 920 euros, ZAC LE CHÊNE FERRÉ - 44 ALLÉE DES CINQ CONTINENTS 44120 VERTOU; SIRET 487 624 777 00040, RCS Nantes. Carte Professionnelle Transactions sur immeubles et fonds de commerce (T) et Gestion immobilière (G) n°CPI 4401 2016 000 010 388 délivrée par la CCI Nantes - Saint Nazaire. Compte séquestre n°30932508467 BPA SAINT-SEBASTIEN-SUR-LOIRE (44230). Garantie GALIAN-SMABTP - 89 rue de la Boétie, 75008 Paris - n°28137 J pour 2 000 000 euros pour T et 120 000 euros pour G. Assurance responsabilité civile professionnelle par GALIAN-SMABTP n° de police 28137.JMandat réf :. 407915- Le professionnel garantit et sécurise votre projet immobilier.
1650 m²



