



MONTELIMAR - Entrepôt / Local industriel & Artisanal 635 m²
Ref. 428116B-NJE
MONTELIMAR (26200)
648 900 €
1 021 €/m²
635 m²
Atouts
Autres
Informations complémentaires
Description
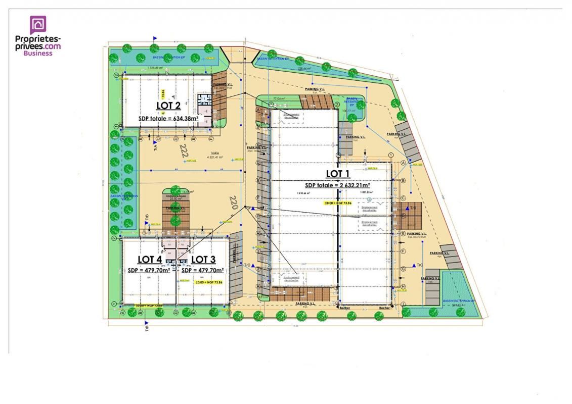
Drome - 26200 MONTELIMAR - EMPLACEMENT N°1 -Nicolas JENNY vous propose ce local d'activités neu f de 635 m² modulable, stratégiquement implanté au sein d'un parc d'activités moderne à MONTELIMAR NORD. Possibilité d'activité industrielle ou artisanale.Livrés en état brut avec fluides en attente, ces espaces offrent une totale flexibilité d'aménagement permettant une adaptation optimale aux exigences spécifiques de votre activité.Bénéficiant d'un emplacement stratégique dans un environnement économique dynamique, ces locaux profitent d'une excellente desserte et d'un accès direct aux principaux axes routiers, garantissant ainsi une optimisation de vos flux logistiques et des déplacements de vos équipes.- Façade bardage double peau- Fluides en attente- Places de stationnement extérieures- Portes sectionnelles de 4,50 m- Structure métallique, livraison brute- Couverture bac acier avec étanchéité multicouchesDossier et photos sur demande avec LDC. Mandat 428116.Cession des murs : 648 900 Euros HT (honoraires 5% HT inclus charge acquéreur soit 618 000 Euros HT hors honoraires)Nicolas JENNY 06..72..999..518, n.jenny@proprietes-privees.com.Selon l'article L.561.5 du Code Monétaire et Financier, pour l'organisation de la visite, la présentation d'une pièce d'identité vous sera demandée.Informations sur les risques auxquels ce bien est exposé sont disponibles sur le site Géorisques : www.georisques.gouv.frCette présente annonce a été rédigée sous la responsabilité éditoriale de Nicolas JENNY agissant en qualité de conseiller immobilier indépendant sous portage salarial auprès de SAS PROPRIETES PRIVEES, au capital de 44 920 euros, ZAC LE CHÊNE FERRÉ - 44 ALLÉE DES CINQ CONTINENTS 44120 VERTOU; SIRET 487 624 777 00040, RCS Nantes. Carte Professionnelle Transactions sur immeubles et fonds de commerce (T) et Gestion immobilière (G) n°CPI 4401 2016 000 010 388 délivrée par la CCI Nantes - Saint Nazaire. Compte séquestre n°30932508467 BPA SAINT-SEBASTIEN-SUR-LOIRE (44230). Garantie GALIAN-SMABTP - 89 rue de la Boétie, 75008 Paris - n°28137 J pour 2 000 000 euros pour T et 120 000 euros pour G. Assurance responsabilité civile professionnelle par GALIAN-SMABTP n° de police 28137.J (5.00 % honoraires TTC à la charge de l'acquéreur.) Nicolas JENNY (EI) Agent Commercial - Numéro RSAC : - .
Ce bien vous est présenté par
Nicolas JENNY

Les biens à proximité

Local commercial
Ref. 427647B-NJE
4 270 350 €
1 016 €/m²
Drome - 26200 MONTELIMAR - EMPLACEMENT N°1 -Nicolas JENNY vous propose ces locaux d'activités neufs de 4 210 m² modulables, stratégiquement implantés au sein d'un parc d'activités moderne à MONTELIMAR NORD. Possibilité d'activité industrielle ou artisanale.Livrés en état brut avec fluides en attente, ces espaces offrent une totale flexibilité d'aménagement permettant une adaptation optimale aux exigences spécifiques de votre activité.Bénéficiant d'un emplacement stratégique dans un environnement économique dynamique, ces locaux profitent d'une excellente desserte et d'un accès direct aux principaux axes routiers, garantissant ainsi une optimisation de vos flux logistiques et des déplacements de vos équipes.- Façade bardage double peau- Fluides en attente- 90 places de stationnement extérieures- 4 portes sectionnelles de 4,50 m- Structure métallique, livraison brute- Couverture bac acier avec étanchéité multicouchesDossier et photos sur demande avec LDC. Mandat 427647.Cession des murs : 4 270 350 Euros HT (honoraires 5% HT inclus charge acquéreur soit 4 067 000 Euros HT hors honoraires)Nicolas JENNY 06..72..999..518, n.jenny@proprietes-privees.com.Selon l'article L.561.5 du Code Monétaire et Financier, pour l'organisation de la visite, la présentation d'une pièce d'identité vous sera demandée.Informations sur les risques auxquels ce bien est exposé sont disponibles sur le site Géorisques : www.georisques.gouv.frCette présente annonce a été rédigée sous la responsabilité éditoriale de Nicolas JENNY agissant en qualité de conseiller immobilier indépendant sous portage salarial auprès de SAS PROPRIETES PRIVEES, au capital de 44 920 euros, ZAC LE CHÊNE FERRÉ - 44 ALLÉE DES CINQ CONTINENTS 44120 VERTOU; SIRET 487 624 777 00040, RCS Nantes. Carte Professionnelle Transactions sur immeubles et fonds de commerce (T) et Gestion immobilière (G) n°CPI 4401 2016 000 010 388 délivrée par la CCI Nantes - Saint Nazaire. Compte séquestre n°30932508467 BPA SAINT-SEBASTIEN-SUR-LOIRE (44230). Garantie GALIAN-SMABTP - 89 rue de la Boétie, 75008 Paris - n°28137 J pour 2 000 000 euros pour T et 120 000 euros pour G. Assurance responsabilité civile professionnelle par GALIAN-SMABTP n° de police 28137.J (5.00 % honoraires TTC à la charge de l'acquéreur.) Nicolas JENNY (EI) Agent Commercial - Numéro RSAC : - .
4200 m²

Local commercial
Ref. 415851B-PSC
268 000 €
548 €/m²
Montélimar 26200, Pascal et Sylvie Becourt spécialistes d'affaires en entreprises et commerces vous présentent à la vente :Fonds de commerce Restaurant LE CITRON PRESSÉMontélimar (ZAC Les Portes de Provence) , Zone dynamique et stratégiqueRestaurant de notoriété installé depuis 2016, bénéficiant d'une excellente réputation (note Google : 4,5/5 - 471 avis).Emplacement privilégié au coeur d'une zone commerciale et artisanale très fréquentée (145 entreprises, +2000 salariés), à 5 min de la sortie A7.Activité actuelle : service le midi en semaine uniquement, clientèle fidèle professionnelle (BtoB) et habitués.90 couverts / jour uniquement le midi du lundi au vendredi.Fort potentiel de développement : ouverture le soir, week-end, activité événementielle, service traiteur, livraison, etc.Description du bien :Surface totale : 489 m² sur terrain de 1 736 m² avec 35 places de parking privatifsCapacité d'accueil : 140 couverts intérieurs + 70 places en terrasseLocaux aux normes ERP, hygiène, accessibilité .Aucun travaux à prévoirCuisine professionnelle entièrement équipée (fours, chambres froides, batteries de cuisine, plonge, etc.)Licence restaurantBail commercial 3-6-9 (en cours de renouvellement)Loyer HT HC : 4 500 euros / moisTaxe foncière : 8 900 euros / anChiffre d'affaires 2024 : 568 723 eurosEBE retraité 2024 : 51 860 eurosRésultat net 2024 : 31 147 eurosDirigeant + 5 salariés + 3 apprentis (structure solide et opérationnelle)Accompagnement possible du repreneurVidéo de présentation : https://youtu.be/1S3O7oepORoPrix de vente : 249 000 euros Honoraires à la charge du vendeurPossibilité de rachat du fonds de commerce ou des parts socialesPour une visite , un renseignement, DESCRIPTIF COMPLET SUR DEMANDE, contactez Pascal BECOURT conseiller en cession de fonds de commerce indépendant p.becourt@proprietes-privees.com 060798 0936 .Selon l'article L.561.5 du Code Monétaire et Financier, pour l'organisation de la visite, la présentation d'une pièce d'identité vous sera demandée.Cette présente annonce a été rédigée sous la responsabilité éditoriale de Pascal et Sylvie BECOURT agissant sous le statut d'agent commercial immatriculé au RSAC Avignon 397592882 auprès de la SAS PROPRIETES PRIVEES , au capital de 44 920 euros, ZAC LE CHÊNE FERRÉ - 44 ALLÉE DES CINQ CONTINENTS 44120 VERTOU; SIRET 487 624 777 00040, RCS Nantes. Carte Professionnelle Transactions sur immeubles et fonds de commerce (T) et Gestion immobilière (G) n°CPI 4401 2016 000 010 388 délivrée par la CCI Nantes - Saint Nazaire. Compte séquestre n°30932508467 BPA SAINT-SEBASTIEN-SUR-LOIRE (44230). Garantie GALIAN - 89 rue de la Boétie, 75008 Paris - n°28137 J pour 2 000 000 euros pour T et 120 000 euros pour G. Assurance responsabilité civile professionnelle par MMA Entreprise n° de police 120.137.405Mandat réf : 415851- Le professionnel conseille et sécurise votre projet immobilier. Pascal et Sylvie BECOURT (EI) Agent Commercial - Numéro RSAC : Avignon 397592882 - .
489 m²

Local commercial
Ref. 394643B-PSC
585 000 €
1 170 €/m²
Secteur Montélimar 26200, Pascal et Sylvie Becourt spécialistes d'affaires en entreprises et commerces en collaboration avec Michael Manzanero conseil immobilier, vous proposent la vente les murs de cet hôtel, restaurant, pizzeria, bar. Idéalement placé sur le secteur de Montélimar sur un axe de circulation majeur. Emplacement intéressant sur une surface d'environ 1 hectare.Cet établissement dispose de 15 chambres climatisées, de quatre gîtes (2 à 6 personnes), de deux salles de restauration {plus de 100 couvert), bar, d'une lingerie, d'une grande terrasse ombragée {plus de 70 couverts), d'une piscine sécurisée et un grand parking fermé et sécurisé. Toiture refaite il y a 3 ans.Employés: Le dirigeant et son épouse.Vente pour cause de départ à la retraite.Prix des murs 585.000 euros honoraires charge vendeur.La vente des murs ne peut être dissociée de la vente du fonds de commerce qui lui s'élève à 222700 euros.Gros potentiel de développement pour cet établissement de premier choix.Pour une visite , un renseignement, DESCRIPTIF SUR DEMANDE, contactez Pascal BECOURT conseiller en cession de fonds de commerce indépendant p.becourt@proprietes-privees.com 060798 0936 ou bien Michael Manzanero conseiller immobilier au 06 59 15 35 08, envoyer un mail : m.manzanero@proprietes-privees.com.Selon l'article L.561.5 du Code Monétaire et Financier, pour l'organisation de la visite, la présentation d'une pièce d'identité vous sera demandée.Cette présente annonce a été rédigée sous la responsabilité éditoriale de Pascal et Sylvie BECOURT agissant sous le statut d'agent commercial immatriculé au RSAC Avignon 397592882 auprès de la SAS PROPRIETES PRIVEES , au capital de 44 920 euros, ZAC LE CHÊNE FERRÉ - 44 ALLÉE DES CINQ CONTINENTS 44120 VERTOU; SIRET 487 624 777 00040, RCS Nantes. Carte Professionnelle Transactions sur immeubles et fonds de commerce (T) et Gestion immobilière (G) n°CPI 4401 2016 000 010 388 délivrée par la CCI Nantes - Saint Nazaire. Compte séquestre n°30932508467 BPA SAINT-SEBASTIEN-SUR-LOIRE (44230). Garantie GALIAN - 89 rue de la Boétie, 75008 Paris - n°28137 J pour 2 000 000 euros pour T et 120 000 euros pour G. Assurance responsabilité civile professionnelle par MMA Entreprise n° de police 120.137.405Mandat réf : 394643 - Le professionnel garantit et sécurise votre projet immobilier. Pascal et Sylvie BECOURT (EI) Agent Commercial - Numéro RSAC : Avignon 397592882 - .
500 m²

Local commercial
Ref. 394661B-PSC
222 700 €
445 €/m²
Secteur Montélimar 26200, Pascal et Sylvie Becourt spécialistes d'affaires en entreprises et commerces en collaboration avec Michael Manzanero conseil immobilier, vous proposent la vente du fonds de commerce de cet hôtel, restaurant, pizzeria, bar. Idéalement placé sur le secteur de Montélimar sur un axe de circulation majeur. Emplacement intéressant sur une surface d'environ 1 hectare.Cet établissement dispose de 15 chambres climatisées, de quatre gîtes (2 à 6 personnes), de deux salles de restauration {plus de 100 couverts), bar, d'une lingerie, d'une grande terrasse ombragée {plus de 70 couverts), d'une piscine sécurisée et un grand parking fermé et sécurisé.Parking pouvant accueillir des voitures, cars, camions (Routier) et campings cars.Toiture refaite il y a 3 ans.Employés: Le dirigeant et son épouse.Vente pour cause de départ à la retraite.Chiffre d'affaires 2022 : 238 658 euros.Chiffre d'affaires 2023 : 231 056 euros.Prix du fonds de commerce 222.700 euros honoraires charge vendeur.La vente du fonds de commerce ne peut être dissociée de la vente des murs qui lui s'élèvent à 585000 euros.Gros potentiel de développement pour cet établissement de premier choix.Pour une visite , un renseignement, DESCRIPTIF SUR DEMANDE, contactez Pascal BECOURT conseiller en cession de fonds de commerce indépendant p.becourt@proprietes-privees.com 060798 0936 ou bien Michael Manzanero conseiller immobilier au 06 59 15 35 08, envoyer un mail : m.manzanero@proprietes-privees.com.Selon l'article L.561.5 du Code Monétaire et Financier, pour l'organisation de la visite, la présentation d'une pièce d'identité vous sera demandée.Cette présente annonce a été rédigée sous la responsabilité éditoriale de Pascal et Sylvie BECOURT agissant sous le statut d'agent commercial immatriculé au RSAC Avignon 397592882 auprès de la SAS PROPRIETES PRIVEES , au capital de 44 920 euros, ZAC LE CHÊNE FERRÉ - 44 ALLÉE DES CINQ CONTINENTS 44120 VERTOU; SIRET 487 624 777 00040, RCS Nantes. Carte Professionnelle Transactions sur immeubles et fonds de commerce (T) et Gestion immobilière (G) n°CPI 4401 2016 000 010 388 délivrée par la CCI Nantes - Saint Nazaire. Compte séquestre n°30932508467 BPA SAINT-SEBASTIEN-SUR-LOIRE (44230). Garantie GALIAN - 89 rue de la Boétie, 75008 Paris - n°28137 J pour 2 000 000 euros pour T et 120 000 euros pour G. Assurance responsabilité civile professionnelle par MMA Entreprise n° de police 120.137.405Mandat réf : 394661- Le professionnel garantit et sécurise votre projet immobilier. Pascal et Sylvie BECOURT (EI) Agent Commercial - Numéro RSAC : Avignon 397592882 - .
500 m²







