



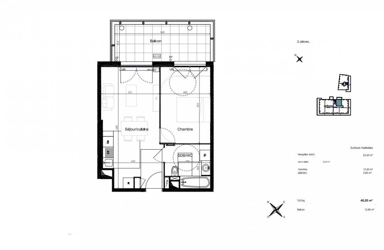
T2 lumineux de plus de 40 m² avec terrasse offrant une belle vue sur le bassin de Thau
Ref. 428472HKM
SETE (34200)
239 000 €
5 975 €/m²
40 m²
2 pièces
1 chambres
Séjour de 22m²
1 WC
1 salle de bain
1er étage
Atouts
Balcon
Terrasse
Ascenseur
Interphone
Autres
Informations complémentaires
Description
Nichée dans un environnement recherché, cette résidence contemporaine et sécurisée allie élégance, confort et qualité de vie.L'appartement offre :Pièce de vie lumineuse avec cuisine ouverte, prolongée par une terrasse exposée Est, idéale pour profiter du soleil matinal et de la vue sur le bassin de Thau,Chambre spacieuse,Ascenseur, parking en sous-sol et accès sécurisé,Finitions soignées et prestations modernes pour un confort au quotidien.A quelques minutes des commerces, services et transports, tout est accessible à pied pour un cadre de vie pratique et serein entre mer et nature.Prix de vente : 239 000 euros (honoraires à la charge du vendeur)Intéressé(e) ? Contactez-moi dès aujourd'hui pour plus d'informations ou planifier votre visite.Photos non contractuelles. DPE non requis. Selon l'article L.561.5 du Code Monétaire et Financier, pour l'organisation de la visite, la présentation d'une pièce d'identité vous sera demandée. Pour visiter et vous accompagner dans votre projet, contactez Michel HORNECKER, au 0699405021 ou par courriel à m.hornecker@proprietes-privees.comCette présente annonce a été rédigée sous la responsabilité éditoriale de Michel HORNECKER agissant sous le statut d'agent commercial immatriculé au RSAC BEZIERS 824 253 710 spécialisé en vente du neuf , auprès de la SAS PROPRIETES PRIVEES, Réseau national immobilier, au capital de 40000 euros, 44 ALLÉE DES CINQ CONTINENTS - ZAC LE CHÊNE FERRÉ, 44120 VERTOU, RCS Nantes n° 487 624 777 00040, Carte professionnelle T et G n° CPI 4401 2016 000 010 388 CCI Nantes-Saint Nazaire. Garantie GALIAN - 89 rue de la Boétie, 75008 Paris Mandat réf : 391141 - Le professionnel garantit et sécurise votre projet immobilier.Michel HORNECKER (EI) Agent Commercial - Numéro RSAC : BEZIERS 824 253 710 Les informations sur les risques auxquels ce bien est exposé sont disponibles sur le site Géorisques : www.georisques.gouv.frCopropriété de 65 lots - dont 43 lots habitation. ().Charges annuelles : 3700 euros. Michel HORNECKER (EI) Agent Commercial - Numéro RSAC : BEZIERS 493044283 - .
Ce bien vous est présenté par
Michel HORNECKER

Les biens à proximité

Appartement
Ref. 428474HKM
588 000 €
6 681 €/m²
Nichée au premier étage d'une résidence contemporaine, cet appartement bénéficie d'une double exposition Nord-Ouest / Sud-Ouest, offrant un ensoleillement optimal du matin au soir et des vues saisissantes sur le Bassin de Thau.Dès l'entrée, l'agencement harmonieux et les matériaux nobles révèlent un art de vivre haut de gamme : séjour lumineux prolongé par une terrasse panoramique de 63 m², trois chambres dont une suite parentale avec salle d'eau privative, et deux places de parking en sous-sol.Proximité immédiate des plages de la Corniche, des commerces et des transports. Une opportunité rare pour qui recherche confort, luminosité et raffinement au quotidien.Prix : 588 000 euros (honoraires charge vendeur)Intéressé(e) ? Contactez-moi dès aujourd'hui pour plus d'informations ou planifier votre visite.Photos non contractuelles. DPE non requis. Selon l'article L.561.5 du Code Monétaire et Financier, pour l'organisation de la visite, la présentation d'une pièce d'identité vous sera demandée. Pour visiter et vous accompagner dans votre projet, contactez Michel HORNECKER, au 0699405021 ou par courriel à m.hornecker@proprietes-privees.com Cette présente annonce a été rédigée sous la responsabilité éditoriale de Michel HORNECKER agissant sous le statut d'agent commercial immatriculé au RSAC BEZIERS 824 253 710 spécialisé en vente du neuf , auprès de la SAS PROPRIETES PRIVEES, Réseau national immobilier, au capital de 40000 euros, 44 ALLÉE DES CINQ CONTINENTS - ZAC LE CHÊNE FERRÉ, 44120 VERTOU, RCS Nantes n° 487 624 777 00040, Carte professionnelle T et G n° CPI 4401 2016 000 010 388 CCI Nantes-Saint Nazaire. Garantie GALIAN - 89 rue de la Boétie, 75008 Paris Mandat réf : 420597 - Le professionnel garantit et sécurise votre projet immobilier. Michel HORNECKER (EI) Agent Commercial - Numéro RSAC : BEZIERS 824 253 710 Les informations sur les risques auxquels ce bien est exposé sont disponibles sur le site Géorisques : www.georisques.gouv.frCopropriété de 65 lots - dont 43 lots habitation. ().Charges annuelles : 3700 euros. Michel HORNECKER (EI) Agent Commercial - Numéro RSAC : BEZIERS 493044283 - .
88 m²
4 p
3 ch

Appartement
Ref. 428475HKM
619 000 €
7 034 €/m²
Double exposition Nord-Ouest / Sud-Ouest, luminosité optimale toute la journée. Séjour élégant ouvrant sur une terrasse panoramique de 63 m², trois chambres dont une suite parentale. Deux places de parking en sous-sol. A proximité des plages, commerces et transports.Prix : 619 000 euros (honoraires charge vendeur)Intéressé(e) ? Contactez-moi dès aujourd'hui pour plus d'informations ou planifier votre visite. Selon l'article L.561.5 du Code Monétaire et Financier, pour l'organisation de la visite, la présentation d'une pièce d'identité vous sera demandée. Pour visiter et vous accompagner dans votre projet, contactez Michel HORNECKER, au 0699405021 ou par courriel à m.hornecker@proprietes-privees.com Cette présente annonce a été rédigée sous la responsabilité éditoriale de Michel HORNECKER agissant sous le statut d'agent commercial immatriculé au RSAC BEZIERS 824 253 710 spécialisé en vente du neuf , auprès de la SAS PROPRIETES PRIVEES, Réseau national immobilier, au capital de 40000 euros, 44 ALLÉE DES CINQ CONTINENTS - ZAC LE CHÊNE FERRÉ, 44120 VERTOU, RCS Nantes n° 487 624 777 00040, Carte professionnelle T et G n° CPI 4401 2016 000 010 388 CCI Nantes-Saint Nazaire. Garantie GALIAN - 89 rue de la Boétie, 75008 Paris Mandat réf : 390353 - Le professionnel garantit et sécurise votre projet immobilier. Michel HORNECKER (EI) Agent Commercial - Numéro RSAC : BEZIERS 824 253 710 Les informations sur les risques auxquels ce bien est exposé sont disponibles sur le site Géorisques : www.georisques.gouv.frCopropriété de 65 lots - dont 43 lots habitation. ().Charges annuelles : 3700 euros. Michel HORNECKER (EI) Agent Commercial - Numéro RSAC : BEZIERS 493044283 - .
88 m²
4 p
3 ch

Appartement
Ref. 428477HKM
760 000 €
8 444 €/m²
Nichée au dernier étage d'une résidence contemporaine, cette adresse rare offre une vue imprenable sur l'étang de Thau et bénéficie d'une double exposition Nord-Ouest / Sud-Ouest, assurant un ensoleillement optimal tout au long de la journée.L'appartement de 91 m² séduit par son agencement raffiné et la luminosité naturelle qui traverse chaque espace. Le toit-terrasse de 87 m², véritable belvédère, prolonge le séjour et invite à contempler la nature et l'eau à chaque heure du jour. Une terrasse intime de 37 m² complète ce bien, parfaite pour des moments de détente ou de convivialité en plein air.L'espace nuit comprend trois chambres, dont une suite parentale avec salle d'eau privative. Deux places de parking en sous-sol viennent parfaire le confort et la praticité.Située à proximité des plages de la Corniche, des transports et des commodités, cette résidence allie luxe discret, nature préservée et qualité de vie dans un cadre exceptionnel.Prix : 760 000 euros (honoraires charge vendeur)Intéressé(e) ? Contactez-moi dès aujourd'hui pour plus d'informations ou planifier votre visite.Photos non contractuelles ? DPE non requis Selon l'article L.561.5 du Code Monétaire et Financier, pour l'organisation de la visite, la présentation d'une pièce d'identité vous sera demandée. Pour visiter et vous accompagner dans votre projet, contactez Michel HORNECKER, au 0699405021 ou par courriel à m.hornecker@proprietes-privees.com Cette présente annonce a été rédigée sous la responsabilité éditoriale de Michel HORNECKER agissant sous le statut d'agent commercial immatriculé au RSAC BEZIERS 824 253 710 spécialisé en vente du neuf , auprès de la SAS PROPRIETES PRIVEES, Réseau national immobilier, au capital de 40000 euros, 44 ALLÉE DES CINQ CONTINENTS - ZAC LE CHÊNE FERRÉ, 44120 VERTOU, RCS Nantes n° 487 624 777 00040, Carte professionnelle T et G n° CPI 4401 2016 000 010 388 CCI Nantes-Saint Nazaire. Garantie GALIAN - 89 rue de la Boétie, 75008 Paris Mandat réf : 390294 - Le professionnel garantit et sécurise votre projet immobilier. Michel HORNECKER (EI) Agent Commercial - Numéro RSAC : BEZIERS 824 253 710 Les informations sur les risques auxquels ce bien est exposé sont disponibles sur le site Géorisques : www.georisques.gouv.frCopropriété de 65 lots - dont 43 lots habitation. ().Charges annuelles : 3700 euros. Michel HORNECKER (EI) Agent Commercial - Numéro RSAC : BEZIERS 493044283 - .
90 m²
4 p
3 ch

Appartement
Ref. 420797HKM
588 000 €
6 681 €/m²
Nichée au premier étage d'une résidence contemporaine, offre un panorama saisissant sur l'étang de Thau.Avec près de 89 m² habitables, cet appartement séduit par son standing haut de gamme et son agencement harmonieux.Dès l'entrée, la qualité des finitions et la fluidité des volumes révèlent un véritable art de vivre : espaces lumineux, matériaux soignés, confort absolu.Le séjour, ouvert sur une terrasse exceptionnelle de plus de 63 m², prolonge naturellement la vie intérieure vers l'extérieur.Suspendue au-dessus du bassin de Thau, elle offre un décor vivant, changeant au rythme du jour et des saisons.L'espace nuit comprend trois chambres, dont une suite parentale avec salle d'eau privative. Chacune profite d'une luminosité généreuse et d'un lien direct avec les espaces extérieurs, pour une sensation d'équilibre et de bien-être au quotidien.Deux places de parking en sous-sol viennent compléter.Située à proximité immédiate des plages de la Corniche, des transports et de toutes les commodités, la résidence conjugue luxe discret, nature et accessibilité dans un environnement privilégié.Une opportunité rare pour celles et ceux qui rêvent d'un art de vivre entre ciel et mer, dans un lieu où l'horizon devient votre quotidien.Prix de vente : 588 000 euros (honoraires charge vendeur)Contactez-nous pour plus d'informations, plans détaillés et notice descriptive complète.Photos non contractuelles ? DPE non requis Selon l'article L.561.5 du Code Monétaire et Financier, pour l'organisation de la visite, la présentation d'une pièce d'identité vous sera demandée. Pour visiter et vous accompagner dans votre projet, contactez Michel HORNECKER, au 0699405021 ou par courriel à m.hornecker@proprietes-privees.com Cette présente annonce a été rédigée sous la responsabilité éditoriale de Michel HORNECKER agissant sous le statut d'agent commercial immatriculé au RSAC BEZIERS 824 253 710 spécialisé en vente du neuf , auprès de la SAS PROPRIETES PRIVEES, Réseau national immobilier, au capital de 40000 euros, 44 ALLÉE DES CINQ CONTINENTS - ZAC LE CHÊNE FERRÉ, 44120 VERTOU, RCS Nantes n° 487 624 777 00040, Carte professionnelle T et G n° CPI 4401 2016 000 010 388 CCI Nantes-Saint Nazaire. Garantie GALIAN - 89 rue de la Boétie, 75008 Paris Mandat réf : 420597 - Le professionnel garantit et sécurise votre projet immobilier. Michel HORNECKER (EI) Agent Commercial - Numéro RSAC : BEZIERS 824 253 710 Les informations sur les risques auxquels ce bien est exposé sont disponibles sur le site Géorisques : www.georisques.gouv.frCopropriété de 65 lots - dont 43 lots habitation. ().Charges annuelles : 3700 euros. Michel HORNECKER (EI) Agent Commercial - Numéro RSAC : BEZIERS 493044283 - .
88 m²
4 p
3 ch






