



SALON DE PROVENCE - Murs commerciaux, Bureaux
Ref. 430030B-KCH
SALON-DE-PROVENCE (13300)
191 500 €
3 191 €/m²
60 m²
Atouts
Autres
Informations complémentaires
Description
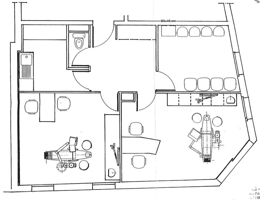
Bureaux professionnels présentés en exclusivité par Pascaline et Kevin ChevalierSitués au 1er étage d'une petite résidence, ces bureaux T4 de 60m2 bénéficient d'un emplacement stratégique sur un axe très passant, idéal pour garantir visibilité et accessibilité à toute activité professionnelle. Anciennement dédié au secteur médical, l'espace propose une configuration polyvalente et modulable, parfaitement adaptée à un cabinet, une agence, des bureaux de services ou un espace de consultation.Ce local commercial T4 se compose de quatre pièces indépendantes, d'un WC et d'un coin cuisine, permettant une installation immédiate et fonctionnelle pour un large panel de professions.Caractéristiques principales :- Accessibilité optimale : emplacement en plein centre-ville.- Connectivité performante : fibre optique installée.- Confort : climatisation réversible pour un environnement agréable toute l'année.- Tranquillité : résidence calme et bien entretenue.Points forts :Visibilité maximale, grâce à un axe très fréquenté générant un fort passage.- Résidence sécurisée et discrète, idéale pour recevoir une clientèle.- Espace modulable, adapté aux professions médicales, libérales, immobilières, de conseil ou de services.- Configuration T4 fonctionnelle, avec WC et coin cuisine intégrés.Un vrai potentiel pour les investisseursCet espace représente également une opportunité rare d'investissement, grâce à :- Une forte demande locative pour les bureaux bien situés en centre-ville.- Un rendement attractif, grâce à une surface exploitable immédiatement sans travaux majeurs.- La polyvalence du T4, permettant d'accueillir divers types de locataires professionnels (santé, services, assurances, formation, etc.).- Un emplacement stratégique, critère numéro un pour un investissement sécurisé et durable.La combinaison visibilité + accessibilité + modularité fait de ce bien une valeur sûre dans un marché où les locaux bien situés se raréfient.Pascaline et Kevin Chevalier vous proposent donc ces bureaux comme une opportunité unique : un espace fonctionnel, attractif et idéalement placé, parfait pour lancer une activité ou pour constituer un investissement patrimonial rentable et pérenne.Prix de vente 191 500 euros , honoraires vendeur.Pour visiter et vous accompagner dans votre projet, contactez Kévin CHEVALIER, au 0619948347 ou par courriel à k.chevalier@proprietes-privees.comSelon l'article L.561.5 du Code Monétaire et Financier, pour l'organisation de la visite, la présentation d'une pièce d'identité vous sera demandée.Cette annonce a été réalisée sous la responsabilité éditoriale de Kévin CHEVALIER agissant en qualité de conseiller immobilier indépendant sous portage salarial auprès de la SAS PROPRIETES PRIVEES, au capital de 44 920 euros, ZAC LE CHÊNE FERRÉ - 44 ALLÉE DES CINQ CONTINENTS 44120 VERTOU; SIRET 487 624 777 00040, RCS Nantes. Carte professionnelle Transactions sur immeubles et fonds de commerce (T) et Gestion immobilière (G) n° CPI 4401 2016 000 010 388 délivrée par la CCI Nantes - Saint Nazaire. Compte séquestre n°30932508467 BPA SAINT-SEBASTIEN-SUR-LOIRE (44230) ; Garantie GALIAN - 89 rue de la Boétie, 75008 Paris - n°28137 J pour 2 000 000 euros pour T et 120 000 euros pour G. Assurance responsabilité civile professionnelle par MMA Entreprise n° de police 120.137.405 Mandat réf :430030 - Le professionnel garantit et sécurise votre projet immobilier. Kévin CHEVALIER (EI) Agent Commercial - Numéro RSAC : 879208106 SALON DE PROVENCE - .Les informations sur les risques auxquels ce bien est exposé sont disponibles sur le site Géorisques : www. georisques. gouv. fr
Ce bien vous est présenté par
Kévin CHEVALIER

Les biens à proximité

Local commercial
Ref. 420999B-ALCO
44 000 €
758 €/m²
Situé au coeur d'un emplacement stratégique et très fréquenté, Alain CONSTANT vous propose ce salon d'esthétique de 58 m² qui vous séduira par son agencement optimisé et son état irréprochable.Entièrement rénové il y a seulement 3 ans, aucun travaux n'est à prévoir : vous pouvez vous installer immédiatement et développer votre activité en toute sérénité.L'espace se compose de :? 2 cabines de soins dédiées au bien-être et aux massages,? 1 poste pour les ongles des mains,? 1 poste pour les ongles des pieds,? 1 comptoir d'accueil élégant et fonctionnel,? 2 réserves pratiques,? 1 WC aux normes.Le salon propose actuellement une large gamme de prestations : soins du visage, massages, beauté du regard, bar à ongles.Un accompagnement à la reprise est possible, idéal pour assurer une transition fluide et profitable.Ce bien est une véritable opportunité pour un(e) professionnel(le) de la beauté souhaitant s'implanter sur un secteur dynamique et porteur avec une clientèle fidèle déjà en place.Salon-de-Provence , emplacement N°1.Prêt à l'emploi , aucune rénovation nécessaire.Fonds de commerce de 44.000 euros, honoraires vendeur.Pour visiter et vous accompagner dans votre projet, contactez Alain CONSTANT, au 0609272084 ou, par courriel à a.constant@proprietes-privees.com. Selon l'article L.561.5 du Code Monétaire et Financier, pour l'organisation de la visite, la présentation d'une pièce d'identité vous sera demandée. Cette présente annonce a été réalisée sous la responsabilité éditoriale de Alain CONSTANT agissant sous le statut d'agent commercial immatriculé au RSAC 488 163 171 CLERMONT FERRAND auprès de SAS PROPRIETES PRIVEES, au capital de 44 920 euros, ZAC LE CHÊNE FERRÉ - 44 ALLÉE DES CINQ CONTINENTS 44120 VERTOU ; SIRET 487 624 777 00040, RCS Nantes. Carte Professionnelle Transactions sur immeubles et fonds de commerce (T) et Gestion immobilière (G) n°CPI 4401 2016 000 010 388 délivrée par la CCI Nantes - Saint Nazaire. Compte séquestre n°30932508467 BPA SAINT-SEBASTIEN-SUR-LOIRE (44230). Garantie GALIAN-SMABTP - 89 rue de la Boétie, 75008 Paris - n°28137 J pour 2 000 000 euros pour T et 120 000 euros pour G. Assurance responsabilité civile professionnelle par GALIAN-SMABTP n° de police 28137.J Mandat réf : 420999 - Le professionnel garantit et sécurise votre projet immobilier. (12.82 % honoraires TTC à la charge de l'acquéreur.) Alain CONSTANT (EI) Agent Commercial - Numéro RSAC : 488 163 171 CLERMONT FERRAND - .Les informations sur les risques auxquels ce bien est exposé sont disponibles sur le site Géorisques : www. georisques. gouv. fr
58 m²

Local commercial
Ref. 405127B-KCH
300 000 €
5 000 €/m²
Kevin Chevalier vous propose en exclusivité à Salon-de-Provence le fonds de commerce de ce Tabac Presse FDJ bénéficiant d'un très bel emplacement au sein d'un quartier à fort passage. - Etablissement sécurisé en bon état, bien agencé. - Plusieurs commerces de proximité autour.- Chiffre d'affaires régulier.- Commission tabac brute 200 000 euros- EBE 147 000 euros- CA HT global : 400 000 euros- Total des commissions nettes : 302 000 eurosLoyer : 1000 euros /mois .Commerce tenu actuellement par le chef d'entreprise + un temps partiel. Clientèle facile fidélisée du quartier + passage. Affaire pérenne et stable.Cession du fonds de commerce à 300.000 euros, honoraires charge vendeur.Pour visiter et vous accompagner dans votre projet, contactez Kévin CHEVALIER, au 0619948347 ou, par courriel à k.chevalier@proprietes-privees.com.Selon l'article L.561.5 du Code Monétaire et Financier, pour l'organisation de la visite, la présentation d'une pièce d'identité vous sera demandée.Cette présente annonce a été rédigée sous la responsabilité éditoriale de Kévin CHEVALIER agissant sous le statut d'agent commercial immatriculé au RSAC 879208106 SALON DE PROVENCE auprès de SAS PROPRIETES PRIVEES, au capital de 44 920 euros, ZAC LE CHÊNE FERRÉ - 44 ALLÉE DES CINQ CONTINENTS 44120 VERTOU; SIRET 487 624 777 00040, RCS Nantes. Carte Professionnelle Transactions sur immeubles et fonds de commerce (T) et Gestion immobilière (G) n°CPI 4401 2016 000 010 388 délivrée par la CCI Nantes - Saint Nazaire. Compte séquestre n°30932508467 BPA SAINT-SEBASTIEN-SUR-LOIRE (44230). Garantie GALIAN-SMABTP - 89 rue de la Boétie, 75008 Paris - n°28137 J pour 2 000 000 euros pour T et 120 000 euros pour G. Assurance responsabilité civile professionnelle par GALIAN-SMABTP n° de police 28137.JMandat réf : 405127 - Le professionnel garantit et sécurise votre projet immobilier. Kévin CHEVALIER (EI) Agent Commercial - Numéro RSAC : 879208106 SALON DE PROVENCE - .
60 m²

Local commercial
Ref. 417679B-KCH
90 000 €
818 €/m²
A VENDRE Fonds de Commerce spécialisé en nutrition et bien-être ? Salon-de-Provence (Centre-ville)Exclusivité proposée par Kevin ChevalierSitué en plein coeur de Salon-de-Provence, sur un axe très passant au sein d'une zone commerçante dynamique, ce commerce bénéficie d'un emplacement premium avec une forte visibilité et un passage voiture et piéton .Activité bien-être et nutrition :Le fonds de commerce est dédié à la nutrition sportive et fonctionnelle, avec les marques reconnues, ainsi qu'un espace de thérapie par électrostimulation. Il propose également la vente de compléments alimentaires ciblés, répondant à une demande croissante dans le domaine du bien-être et de la performance.Performance financière :Chiffre d'affaires supérieur à 110 000 euros, démontrant la solidité et le potentiel du commerce.- Loyer attractif : seulement 1 200 euros, rare pour un emplacement aussi central.- Local attractif :Le local est moderne, bien agencé d'une surface de plus de 110 m2, et prêt à accueillir les clients dans un cadre professionnel et accueillant. Il est idéal pour un entrepreneur souhaitant reprendre une activité en plein essor ou développer un concept autour de la santé et du sport.- Clientèle ciblée et fidélisée :Le commerce bénéficie d'une clientèle locale composée de sportifs, de personnes soucieuses de leur bien-être, et de clients réguliers du centre-ville.- Belle opportunité :Un emplacement stratégique, une activité en croissance, et un cadre propice au développement.Prix de cession fond de commerce 90 000 euros honoraires à la charge du vendeurPour toute information ou pour organiser une visite, contactez Kevin Chevalier au 0619948347 ou par courriel à k.chevalier@proprietes-privees.com, votre interlocuteur privilégié pour cette exclusivité.Cette présente annonce a été rédigée sous la responsabilité éditoriale de Kévin CHEVALIER agissant sous le statut d'agent commercial immatriculé au RSAC SALON DE PROVENCE 879 208 106 auprès de la SAS PROPRIETES PRIVEES, Réseau national immobilier, au capital de 40000 euros, 44 ALLÉE DES CINQ CONTINENTS - ZAC LE CHÊNE FERRÉ, 44120 VERTOU, RCS Nantes n° 487 624 777 00040, Carte professionnelle T et G n° CPI 4401 2016 000 010 388 CCI Nantes-Saint Nazaire. Garantie GALIAN - 89 rue de la Boétie, 75008 ParisMandat réf : 417679- Le professionnel garantit et sécurise votre projet immobilier. Kévin CHEVALIER (EI) Agent Commercial - Numéro RSAC : 879208106 SALON DE PROVENCE - .Les informations sur les risques auxquels ce bien est exposé sont disponibles sur le site Géorisques : www. georisques. gouv. fr
110 m²

Local commercial
Ref. 418023B-KCH
56 000 €
560 €/m²
A VENDRE Blanchisserie Pressing idéalement située à Salon-de-ProvenceEmplacement stratégique : Situé sur un axe principal très fréquenté menant directement au centre-ville, ce commerce bénéficie d'une excellente visibilité et d'un flux constant de passage, idéal pour attirer une clientèle locale et de passage.Clientèle fidèle : Exploité depuis plusieurs années, le pressing jouit d'une clientèle régulière et fidèle, assurant une activité stable et rentable.Stationnement pratique : Possibilité de garer un véhicule à proximité immédiate du local, facilitant les livraisons et les déplacements professionnels.Local fonctionnel : Le local est bien agencé, équipé pour l'activité de blanchisserie et pressing, avec un espace d'accueil, une zone de traitement du linge, et les installations nécessaires au bon fonctionnement de l'activité.Opportunité clé en main : Idéal pour un professionnel souhaitant s'installer ou développer son activité dans une commune dynamique des Bouches-du-Rhône.Prix de cession fond de commerce 56 000 euros honoraires à la charge du vendeurPour toute information ou pour organiser une visite, contactez Kevin Chevalier au 0619948347 ou par courriel à k.chevalier@proprietes-privees.com, votre interlocuteur privilégié pour cette exclusivité.Cette présente annonce a été rédigée sous la responsabilité éditoriale de Kévin CHEVALIER agissant sous le statut d'agent commercial immatriculé au RSAC SALON DE PROVENCE 879 208 106 auprès de la SAS PROPRIETES PRIVEES, Réseau national immobilier, au capital de 40000 euros, 44 ALLÉE DES CINQ CONTINENTS - ZAC LE CHÊNE FERRÉ, 44120 VERTOU, RCS Nantes n° 487 624 777 00040, Carte professionnelle T et G n° CPI 4401 2016 000 010 388 CCI Nantes-Saint Nazaire. Garantie GALIAN - 89 rue de la Boétie, 75008 ParisMandat réf : 418023- Le professionnel garantit et sécurise votre projet immobilier. Kévin CHEVALIER (EI) Agent Commercial - Numéro RSAC : 879208106 SALON DE PROVENCE - .Les informations sur les risques auxquels ce bien est exposé sont disponibles sur le site Géorisques : www. georisques. gouv. fr
100 m²






