



Maison Les Sables d'Olonne 4 pièces 91.44 m2
Ref. 433048ILD
LES SABLES-D'OLONNE (85340)
420 900 €
4 625 €/m²
91 m²
4 pièces
3 chambres
Terrain de 325m²
1 WC
2 salles de bain
Atouts
Jardin privatif
Autres
Informations complémentaires
Description
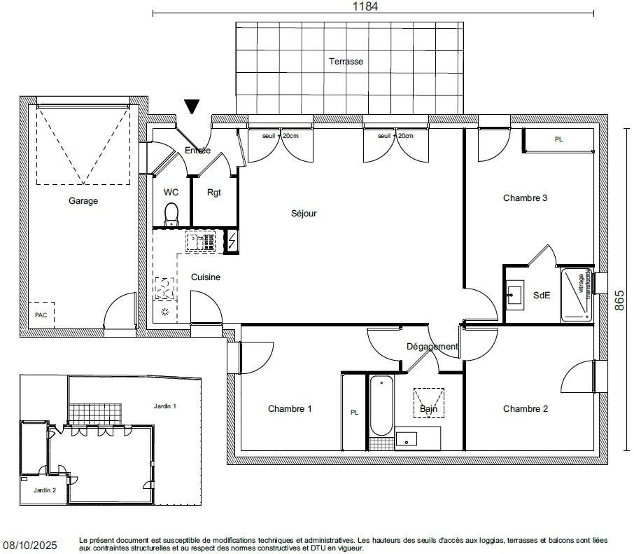
Maison de plain-pied comprenant entrée, wc, pièce de rangement, cuisine semi-ouverte sur le séjour (37m2), 3 chambres, 1 salle d'eau et une salle de bain. Un garage complète l'ensemble. Terrasse et jardin, sur une parcelle de 325 m2. Chauffage par pompe à chaleur, radiateurs basse température. L'isolation renforcée est aux dernières normes. Maison individuelle dans une résidence en copropriété à 1km de Leclerc Ylium et tous commerces.Disponible 2ème semestre 2027. Mandat réf.. Les informations sur les risques auxquels ce bien est exposé sont disponibles sur le site Géorisques : www.georisques.gouv.fr .Pour visiter et vous accompagner dans votre projet, contacter Ilana DANEL au 06.03.84.74.89 ou i.danel@proprietes-privees.comCette présente annonce a été rédigée sous la responsabilité éditoriale de Ilana DANEL agissant sous le statut d'agent commercial immatriculé au RSAC LA ROCHE SUR YON 823934450 auprès de la SAS PROPRIETES PRIVEES, Réseau national immobilier, au capital de 40000 euros, 44 ALLÉE DES CINQ CONTINENTS - ZAC LE CHÊNE FERRÉ, 44120 VERTOU, RCS Nantes n° 487 624 777 00040, Carte professionnelle T et G n° CPI 4401 2016 000 010 388 CCI Nantes-Saint Nazaire. Garantie GALIAN - 89 rue de la Boétie, 75008 ParisCopropriété de 76 lots - dont 36 lots habitation. Ilana DANEL (EI) Agent Commercial - Numéro RSAC : LA ROCHE SUR YON 823934450 - .
Ce bien vous est présenté par
Ilana DANEL

Les biens à proximité

Maison
Ref. 442961ILD
419 900 €
2 413 €/m²
Bien en Exclusivité. Venez découvrir cette maison familiale de plain-pied sur un terrain de plus de 3000 m² au calme. La maison principale de 129 m² dispose également d'un appartement indépendant de 2 pièces de 45 m², soit un potentiel de 174 m2 habitable idéal pour un revenu locatif complémentaire ou pour recevoir de la famille.Dès l'entrée, une belle pièce de vie orientée plein sud avec sa cuisine ouverte vous accueille. Un couloir dessert trois chambres avec placards, un WC indépendant et une salle de bain avec douche à l'italienne. Vous apprécierez également le garage avec wc, l'arrière-cuisine et la véranda. Le 2 pièces se situe au-dessus du garage. Maison bien isolée, salle de bain et sols refaits.Le quartier, à Olonne-sur-Mer est classé en zone naturelle, et garantit un environnement préservé et authentique. Enfin, un puit dans le jardin facilite l'arrosage extérieur. Quelques raffraichissements à prévoir.Cette maison est parfaite pour allier confort familial et tranquillité tout en restant proche de la ville. Ecoles à quelques minutes et grande plage à 7 km.DPE D GES B « Les informations sur les risques auxquels ce bien est exposé sont disponibles sur le site Géorisques : www.georisques.gouv.fr ».Montant estimé des dépenses annuelles d'énergie pour un usage standard entre 3020 et 4170 euros indexées aux années 2021, 2022 et 2023Pour visiter et vous accompagner dans votre projet, contactez Ilana DANEL, au 0603847489 ou, par courriel à i.danel@proprietes-privees.com.Selon l'article L.561.5 du Code Monétaire et Financier, pour l'organisation de la visite, la présentation d'une pièce d'identité vous sera demandée.Cette présente annonce a été rédigée sous la responsabilité éditoriale de Ilana DANEL agissant sous le statut d'agent commercial immatriculé au RSAC LA ROCHE SUR YON 823934450 auprès de SAS PROPRIETES PRIVEES, au capital de 44 920 euros, ZAC LE CHÊNE FERRÉ - 44 ALLÉE DES CINQ CONTINENTS 44120 VERTOU; SIRET 487 624 777 00040, RCS Nantes. Carte Professionnelle Transactions sur immeubles et fonds de commerce (T) et Gestion immobilière (G) n°CPI 4401 2016 000 010 388 délivrée par la CCI Nantes - Saint Nazaire. Compte séquestre n°30932508467 BPA SAINT-SEBASTIEN-SUR-LOIRE (44230). Garantie GALIAN-SMABTP - 89 rue de la Boétie, 75008 Paris - n°28137 J pour 2 000 000 euros pour T et 120 000 euros pour G. Assurance responsabilité civile professionnelle par GALIAN-SMABTP n° de police 28137.JMandat réf :442961- budget 419900 euros dont 3.68% d'honoraires charge acquéreur- Le professionnel garantit et sécurise votre projet immobilier. (3.68 % honoraires TTC à la charge de l'acquéreur.) Ilana DANEL (EI) Agent Commercial - Numéro RSAC : LA ROCHE SUR YON 823934450 - .
174 m²
5 p
4 ch

Maison
Ref. 445133ILD
384 500 €
4 272 €/m²
Les Sables d'Olonne, Maison de plain-pied de 89 m2 récente (2022) située à 2.5 km de la plage de sauveterre, et à 3 km des écoles.Elle comprend 3 chambres, une belle cuisine aménagée-équipée, un salon-séjour (poêle à granulés) donnant sur une petite terrasse couverte, une salle d'eau spacieuse avec douche italienne, 2 wc indépendant et une buanderie. Garage indépendant.Maison très bien isolée aux dernières normes, vous n'avez plus qu'à vous installer!DPE B (79Kwh/m2/an) -GES A (2kgCo2/m2/an.) . Estimation des coûts annuels d'énergie du logement entre 490 euros et 662 euros au 01/01/21. « Les informations sur les risques auxquels ce bien est exposé sont disponibles sur le site Géorisques : www.georisques.gouv.fr ».Budget : 384 500 euros dont 4% d'honoraires TTC à la charge de l'acquéreur. Mandat réf. 445133.Pour visiter et vous accompagner dans votre projet, contacter Ilana DANEL au 06.03.84.74.89 ou i.danel@proprietes-privees.comSelon l'article L.561.5 du Code Monétaire et Financier, pour l'organisation de la visite, la présentation d'une pièce d'identité vous sera demandée.Cette présente annonce a été rédigée sous la responsabilité éditoriale de Ilana DANEL agissant sous le statut d'agent commercial immatriculé au RSAC LA ROCHE SUR YON 823934450 auprès de SAS PROPRIETES PRIVEES, au capital de 44 920 euros, ZAC LE CHÊNE FERRÉ - 44 ALLÉE DES CINQ CONTINENTS 44120 VERTOU; SIRET 487 624 777 00040, RCS Nantes. Carte Professionnelle Transactions sur immeubles et fonds de commerce (T) et Gestion immobilière (G) n°CPI 4401 2016 000 010 388 délivrée par la CCI Nantes - Saint Nazaire. Compte séquestre n°30932508467 BPA SAINT-SEBASTIEN-SUR-LOIRE (44230). Garantie GALIAN-SMABTP - 89 rue de la Boétie, 75008 Paris - n°28137 J pour 2 000 000 euros pour T et 120 000 euros pour G. Assurance responsabilité civile professionnelle par GALIAN-SMABTP n° de police 28137.J (3.92 % honoraires TTC à la charge de l'acquéreur.) Ilana DANEL (EI) Agent Commercial - Numéro RSAC : LA ROCHE SUR YON 823934450 - .
90 m²
4 p
3 ch

Appartement
Ref. 445040ILD
164 000 €
3 489 €/m²
La Chaume, Les sables d'Olonne, charmant 2 pièces de 48 m2 en RDC (possibilité de transformation en boutique ou local commercial) , bien situé dans le centre ville à 400 mètres des quais et quelques minutes du Village du Vendée Globe. Entrée sur séjour-salon, une cuisine aménagée récente avec verrière, un wc séparé avec lave-main, une salle d'eau et une chambre. Petit cellier. Commerces à pied. Pas d'extérieur.L'appartement a été rénové, il faut juste terminer les peintures. (Baie neuve, cuisine et SDE refaites). Idéal aussi pour un commerce de proximité!Copropriété constituée de 7 copropriétaires. Les charges prévisionnelles s'élèvent à 35 euros/mois.DPE D (221Kwh/m2/an) -GES B (8kgCo2/m2/an.) . Estimation des coûts annuels d'énergie entre 800 euros et 1110 euros/an . « Les informations sur les risques auxquels ce bien est exposé sont disponibles sur le site Géorisques : www.georisques.gouv.fr ».Budget : 164 000 euros dont 5.81% d'honoraires TTC à la charge de l'acquéreur (155 000 hors honoraires). Mandat réf.445040 .Pour visiter et vous accompagner dans votre projet, contacter Ilana DANEL au 06.03.84.74.89 ou i.danel@proprietes-privees.comCette présente annonce a été rédigée sous la responsabilité éditoriale de Ilana DANEL agissant sous le statut d'agent commercial immatriculé au RSAC LA ROCHE SUR YON 823934450 auprès de la SAS PROPRIETES PRIVEES, Réseau national immobilier, au capital de 40000 euros, 44 ALLÉE DES CINQ CONTINENTS - ZAC LE CHÊNE FERRÉ, 44120 VERTOU, RCS Nantes n° 487 624 777 00040, Carte professionnelle T et G n° CPI 4401 2016 000 010 388 CCI Nantes-Saint Nazaire. Garantie GALIAN - 89 rue de la Boétie, 75008 Paris (5.81 % honoraires TTC à la charge de l'acquéreur.)Copropriété de 22 lots - dont 7 lots habitation.Charges annuelles : 421 euros. Ilana DANEL (EI) Agent Commercial - Numéro RSAC : LA ROCHE SUR YON 823934450 - .
47 m²
2 p
1 ch

Maison
Ref. 437563ILD
390 000 €
2 500 €/m²
Sous offre d'achat/Compromis en cours pour cette maison spacieuse d'environ 156 m2 avec un studio indépendant située proche des commerces et de Villaverdé à Olonne-sur-Mer le tout sur 800 m2 de terrain.Elle se compose d'une belle pièce de vie avec insert, une cuisine indépendante, 3 chambres dont une suite parentale avec dressing et sa salle de bains+wc, 1 bureau, une salle d'eau avec wc,. Attenant, un grand studio de 32 m2 a été aménagé avec sa cuisine, salle d'eau et sa petite terrasse indépendante.Buanderie, cave, terrasse, porche avec cuisine d'été et un grand garage avec fosse complètent l'ensemble.Quelques travaux de rafraichissement sont à prévoir.Budget : 390 000 euros dont 4% d'honoraires TTC à la charge de l'acquéreur (375000 hors honoraires). Mandat réf.437563DPE D (247Kwh/m2/an) -GES D (37kgCo2/m2/an.). « Les informations sur les risques auxquels ce bien est exposé sont disponibles sur le site Géorisques : www.georisques.gouv.fr ». Montant estimé des dépenses annuelles d'énergie pour un usage standard entre 2630et 3620 euros .Pour visiter et vous accompagner dans votre projet, contactez Ilana DANEL, au 0603847489 ou, par courriel à i.danel@proprietes-privees.com.Selon l'article L.561.5 du Code Monétaire et Financier, pour l'organisation de la visite, la présentation d'une pièce d'identité vous sera demandée.Cette présente annonce a été rédigée sous la responsabilité éditoriale de Ilana DANEL agissant sous le statut d'agent commercial immatriculé au RSAC LA ROCHE SUR YON 823934450 auprès de SAS PROPRIETES PRIVEES, au capital de 44 920 euros, ZAC LE CHÊNE FERRÉ - 44 ALLÉE DES CINQ CONTINENTS 44120 VERTOU; SIRET 487 624 777 00040, RCS Nantes. Carte Professionnelle Transactions sur immeubles et fonds de commerce (T) et Gestion immobilière (G) n°CPI 4401 2016 000 010 388 délivrée par la CCI Nantes - Saint Nazaire. Compte séquestre n°30932508467 BPA SAINT-SEBASTIEN-SUR-LOIRE (44230). Garantie GALIAN-SMABTP - 89 rue de la Boétie, 75008 Paris - n°28137 J pour 2 000 000 euros pour T et 120 000 euros pour G. Assurance responsabilité civile professionnelle par GALIAN-SMABTP n° de police 28137.J (4.00 % honoraires TTC à la charge de l'acquéreur.) Ilana DANEL (EI) Agent Commercial - Numéro RSAC : LA ROCHE SUR YON 823934450 - .
156 m²
5 p
3 ch



