



À 10 min des plages, T3 de plus de près de 59 m² avec jardin, terrasse exposé Ouest et parking privatif
Ref. 433647HKM
SAUVIAN (34410)
234 000 €
4 034 €/m²
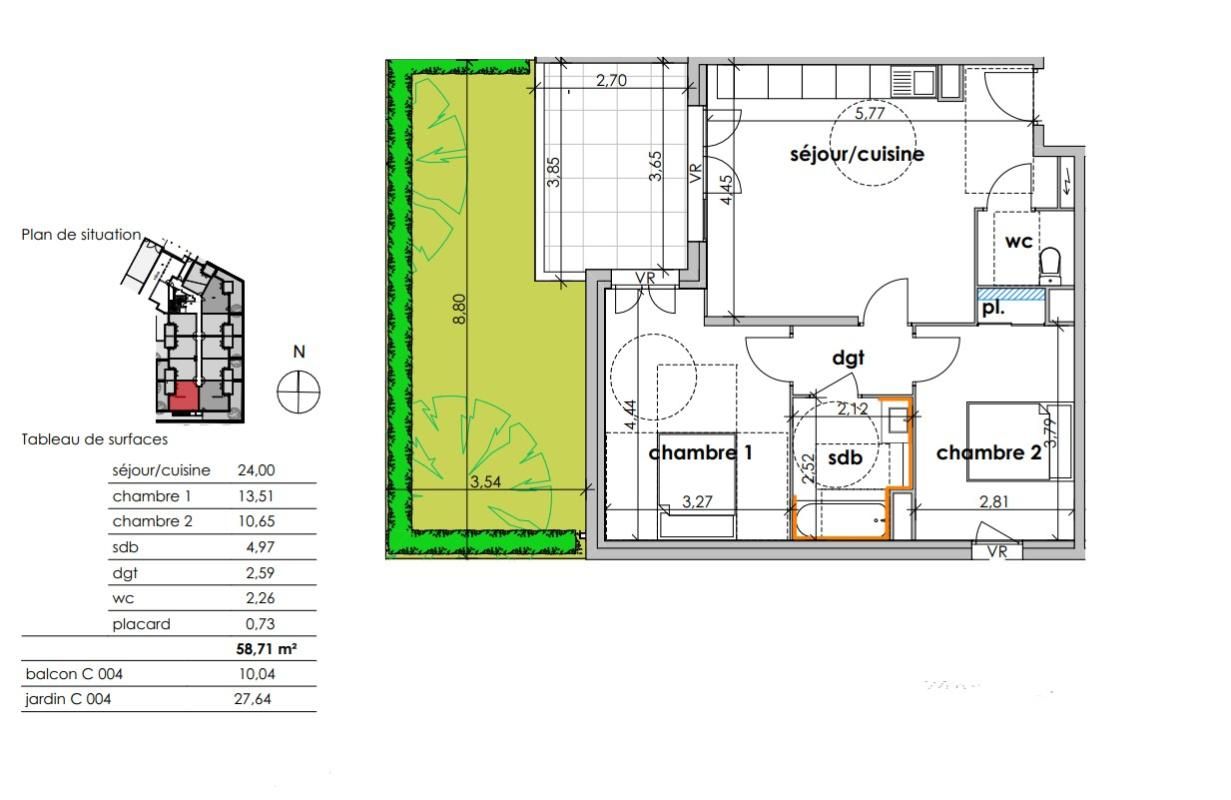
58 m²
3 pièces
2 chambres
Séjour de 24m²
1 WC
1 salle de bain
Rez de chaussée
Atouts
Balcon
Terrasse
Ascenseur
Interphone
Autres
Informations complémentaires
Description
Dans un cadre calme et verdoyant, cet appartement de 58,71 m² offre un séjour de 24 m² baigné de lumière grâce à son exposition Ouest, prolongé par un balcon et un jardin privatif idéaux pour profiter de l'extérieur et des soirées ensoleillées.L'espace nuit comprend 2 chambres. L'appartement bénéficie d'un accès sécurisé par vidéophone et d'une place de parking privative.A proximité immédiate de toutes les commodités : crèche, écoles, commerces, grandes surfaces, médecins, complexes sportifs et médiathèque. Profitez d'un cadre de vie pratique et serein, tout en étant à seulement 10 minutes des plages.Prix : 234 000 euros (honoraires à la charge du vendeur) DPE en cours.Pour visiter et vous accompagner dans votre projet, contactez Michel HORNECKER, au 0699405021 ou, par courriel à m.hornecker@proprietes-privees.com.Selon l'article L.561.5 du Code Monétaire et Financier, pour l'organisation de la visite, la présentation d'une pièce d'identité vous sera demandée.Cette présente annonce a été rédigée sous la responsabilité éditoriale de Michel HORNECKER agissant sous le statut d'agent commercial immatriculé au RSAC BEZIERS 493044283 auprès de SAS PROPRIETES PRIVEES, au capital de 44 920 euros, ZAC LE CHÊNE FERRÉ - 44 ALLÉE DES CINQ CONTINENTS 44120 VERTOU; SIRET 487 624 777 00040, RCS Nantes. CarteProfessionnelle Transactions sur immeubles et fonds de commerce (T) et Gestion immobilière (G) n°CPI 4401 2016 000 010 388 délivrée par la CCI Nantes - Saint Nazaire. Compte séquestre n°30932508467 BPA SAINT-SEBASTIEN-SUR-LOIRE (44230). Garantie GALIAN-SMABTP - 89 rue de la Boétie, 75008 Paris - n°28137 J pour 2 000 000 euros pour T et 120 000 euros pour G. Assurance responsabilité civile professionnelle par GALIAN-SMABTP n° de police 28137.JMandat réf : 433616 Le professionnel garantit et sécurise votre projet immobilier.Copropriété de 270 lots - dont 100 lots habitation. ().Charges annuelles : 1500 euros. Michel HORNECKER (EI) Agent Commercial - Numéro RSAC : BEZIERS 493044283 - .
Ce bien vous est présenté par
Michel HORNECKER

Les biens à proximité

Maison
Ref. 437528NCT
141 000 €
1 175 €/m²
34420 VILLENEUVE LES BEZIERSMaison d'environ 110m² sur une parcelle de plus de 800m².Beau potentiel pour un projet de rénovation.La maison nécessite des travaux, offrant de nombreuses possibilités d'aménagement selon vos envies, 3 chambres, plusieurs espaces tels que, cuisine, salon, wc, SDB sont à créer.Le bien n'est pas soumis au DPE, car il ne dispose pas de système de chauffage.Les fenêtres double vitrage sont déjà installés.Ce bien immobilier se situe à 10 minutes des plages de Valras et de Sérignan.Cette présente annonce a été rédigée sous la responsabilité éditoriale de Catherine NIVELON agissant sous le statut d'agent commercial immatriculé au RSAC Béziers 444531768 auprès de SAS PROPRIETES PRIVEES, au capital de 44 920 euros, ZAC LE CHÊNE FERRÉ - 44 ALLÉE DES CINQ CONTINENTS 44120 VERTOU; SIRET 487 624 777 00040, RCS Nantes. Carte Professionnelle Transactions sur immeubles et fonds de commerce (T) et Gestion immobilière (G) N°CPI 4401 2016 000 010 388 délivrée par la CCI Nantes - Saint Nazaire. Compte séquestre n°30932508467 BPA SAINT-SEBASTIEN-SUR-LOIRE (44230). Garantie GALIAN-SMABTP - 89 rue de la Boétie, 75008 Paris - n°28137 J pour 2 000 000 euros pour T et 120 000 euros pour G. Assurance responsabilité civile professionnelle par GALIAN-SMABTP n° de police 28137.JCATHERINE NIVELON 0634127097c.nivelon@proprietes-privees.comMandat réf : 437528Prix 141.000 euros (honoraires à la charge du vendeur)Le professionnel garantit et sécurise votre projet immobilier.Les informations sur les risques auxquels ce bien est exposé sont disponibles sur le site Géorisques :www.georisques.gouv.fr Catherine NIVELON (EI) Agent Commercial - Numéro RSAC : Beziers 444531768 - .
120 m²
4 p
3 ch

Maison
Ref. 426824WTHU
440 000 €
4 271 €/m²
A découvrir sans tarder ! Maison 4 chambres.Située dans une rue calme, à seulement 600 mètres des plages et proche de toutes les commodités, cette belle maison à étage de 103,60 m² saura vous séduire par ses prestations et son emplacement idéal.Elle se compose au rez-de-chaussée d'une entrée, d'une cuisine équipée ouverte sur un spacieux séjour, ainsi que d'une suite parentale et d'un WC indépendant.A l'étage, vous trouverez une deuxième suite, deux chambres supplémentaires, une salle de bain et un WC.A l'extérieur, profitez d'un terrain de 266 m² agrémenté d'une piscine, de 2 places de stationnement et d'un garage.? Un bien rare à visiter sans tarder !Prix de vente: 459000 euros FAI Charge vendeurDPE A GES AMontant estimé des dépenses annuelles d'énergie pour un usage standard entre 610et 880 euros indexées aux années 2021, 2022 et 2023 (ou 2021 uniquement) (si logement F ou G 'Logement à consommation énergétique excessive : classe F ou G')Pour visiter et vous accompagner dans votre projet, contactez Warda THUAULT, au 0785020266 ou, par courriel à wa.thuault@proprietes-privees.com.Selon l'article L.561.5 du Code Monétaire et Financier, pour l'organisation de la visite, la présentation d'une pièce d'identité vous sera demandée.Cette présente annonce a été rédigée sous la responsabilité éditoriale de Warda THUAULT agissant sous le statut d'agent commercial immatriculé au RSAC AGEN 848264438 auprès de SAS PROPRIETES PRIVEES, au capital de 44 920 euros, ZAC LE CHÊNE FERRÉ - 44 ALLÉE DES CINQ CONTINENTS 44120 VERTOU; SIRET 487 624 777 00040, RCS Nantes. Carte Professionnelle Transactions sur immeubles et fonds de commerce (T) et Gestion immobilière (G) n°CPI 4401 2016 000 010 388 délivrée par la CCI Nantes - Saint Nazaire. Compte séquestre n°30932508467 BPA SAINT-SEBASTIEN-SUR-LOIRE (44230). Garantie GALIAN-SMABTP - 89 rue de la Boétie, 75008 Paris - n°28137 J pour 2 000 000 euros pour T et 120 000 euros pour G. Assurance responsabilité civile professionnelle par GALIAN-SMABTP n° de police 28137.JMandat réf : 426824 - Le professionnel garantit et sécurise votre projet immobilier. Warda THUAULT (EI) Agent Commercial - Numéro RSAC : AGEN 848264438 - .Les informations sur les risques auxquels ce bien est exposé sont disponibles sur le site Géorisques : www. georisques. gouv. fr
103 m²
6 p
4 ch

Maison
Ref. 438910WTHU
394 000 €
3 581 €/m²
Située dans un quartier résidentiel calme et recherché, à proximité immédiate des commodités et des écoles, cette maison moderne de plain-pied saura vous séduire par ses prestations et son agencement fonctionnel.Elle se compose de trois chambres, dont une suite parentale offrant une agréable vue sur la piscine, avec douche à l'italienne et WC.L'espace de vie lumineux comprend une cuisine entièrement équipée, ouverte sur un salon / salle à manger, idéal pour partager des moments conviviaux.Vous bénéficierez également d'une entrée avec rangements, d'une buanderie, ainsi que d'un garage. Deux places de stationnement extérieures complètent ce bien.A l'extérieur, une piscine parfaitement orientée vous permettra de profiter pleinement des beaux jours, dans un cadre agréable et intimiste.Un bien rare, alliant confort, modernité et emplacement privilégié. A découvrir sans tarder ?Prix de vente: 394 000 euros honoraires charge vendeurDPE A GES AMontant estimé des dépenses annuelles d'énergie pour un usage standard entre 360 et 520 euros indexées aux années 2021, 2022 et 2023.Pour visiter et vous accompagner dans votre projet, contactez Warda THUAULT, au 0785020266 ou, par courriel à wa.thuault@proprietes-privees.com.Selon l'article L.561.5 du Code Monétaire et Financier, pour l'organisation de la visite, la présentation d'une pièce d'identité vous sera demandée.Cette présente annonce a été rédigée sous la responsabilité éditoriale de Warda THUAULT agissant sous le statut d'agent commercial immatriculé au RSAC AGEN 848264438 auprès de SAS PROPRIETES PRIVEES, au capital de 44 920 euros, ZAC LE CHÊNE FERRÉ - 44 ALLÉE DES CINQ CONTINENTS 44120 VERTOU; SIRET 487 624 777 00040, RCS Nantes. Carte Professionnelle Transactions sur immeubles et fonds de commerce (T) et Gestion immobilière (G) n°CPI 4401 2016 000 010 388 délivrée par la CCI Nantes - Saint Nazaire. Compte séquestre n°30932508467 BPA SAINT-SEBASTIEN-SUR-LOIRE (44230). Garantie GALIAN-SMABTP - 89 rue de la Boétie, 75008 Paris - n°28137 J pour 2 000 000 euros pour T et 120 000 euros pour G. Assurance responsabilité civile professionnelle par GALIAN-SMABTP n° de police 28137.JMandat réf : 438910WTHU - Le professionnel garantit et sécurise votre projet immobilier. Warda THUAULT (EI) Agent Commercial - Numéro RSAC : AGEN 848264438 - .Les informations sur les risques auxquels ce bien est exposé sont disponibles sur le site Géorisques : www. georisques. gouv. fr
110 m²
4 p
3 ch

Maison
Ref. 435668STEP
309 000 €
2 942 €/m²
Villa Moderne 3 chambres 105 m2, 309000 euros Honoraires charge vendeurBaisse de prix (Avant 314000 e)à SAUVIAN 34410REF:435668PROCHE DE BEZIERS*Élégance et Confort :Découvrez le charme et le confort de cette superbe maison familiale T4 de 105 m², érigée en 2013, offrant un cadre de vie idéal et des prestations de qualité.*Espace de Vie et CommoditésDès l'entrée, vous serez séduit par la pièce de vie traversante de 50 m², baignée de lumière naturelle. Elle se compose d'un salon/salle à manger convivial et d'une cuisine ouverte entièrement équipée, rehaussée d'un magnifique îlot central, le lieu parfait pour des moments de partage.Ce niveau pratique est complété par un WC indépendant et une buanderie fonctionnelle. L'intérieur bénéficie également d'un garage spacieux intégrant un coin aménagé astucieux et une mezzanine, offrant un potentiel de rangement ou d'aménagement supplémentaire.*L'Étage Nuit : Intimité et SérénitéUn bel escalier vous mène à l'étage supérieur, dédié au repos et à l'intimité. Cet espace se distribue autour d'une partie centrale polyvalente, idéale pour aménager un coin bureau ou un espace de jeu.Suite Parentale d'Exception : Profitez d'une véritable suite avec sa salle de douche privative et son accès direct à un balcon/terrasse, offrant un lieu privilégié pour vos moments de détente.Deux Belles Chambres supplémentaires.Ces chambres se partagent une grande salle de bain raffinée, équipée d'une baignoire et d'un WC, assurant confort à toute la famille.*Prestations et Matériaux de QualitéLe choix des matériaux souligne le soin apporté à la construction :Les menuiseries intérieures sont de qualités.Les fenêtres et portes-fenêtres, en PVC double vitrage, garantissent une isolation optimale.Les volets roulants et la porte d'entrée en aluminium assurent modernité et sécurité.*L'Art de Vivre en ExtérieurL'extérieur est une invitation à la convivialité et à la tranquillité :Deux Terrasses Conviviales : Côté Sud, profitez de deux terrasses carrelées équipées d'une pergola, l'endroit rêvé pour savourer vos repas entre amis et en famille.Espace Détente : Une terrasse supplémentaire a été aménagée pour vos lectures ou votre café matinal, offrant un havre de paix en toute tranquillité.Un abri de jardin en bois vernis apporte une solution de rangement élégante.Stationnement Aisé : Le terrain est équipé d'un Carport sur la terrasse extérieure et d'un portail automatisé, facilitant l'accès et le stationnement intérieur.Cette maison combine parfaitement fonctionnalité, esthétisme et emplacement idéal pour une vie de famille épanouie.-Terrain Piscinable (ex: piscine non imposable -10 m2)DPE : C / GES : AMontant estimé des dépenses annuelles d'énergie pour un usage standard entre 1240 et 1750 euros indexées aux années 2021, 2022 et 2023.Pour visiter et vous accompagner dans votre projet, contactez Stéphanie PENA, au 0652229440 ou, par courriel à st.pena@proprietes-privees.com.Selon l'article L.561.5 du Code Monétaire et Financier, pour l'organisation de la visite, la présentation d'une pièce d'identité vous sera demandée.Cette présente annonce a été rédigée sous la responsabilité éditoriale de Stéphanie Pena agissant sous le statut d'agent commercial immatriculé au RSAC Béziers 795246065 auprès de SAS PROPRIETES PRIVEES, au capital de 44 920 euros, ZAC LE CHÊNE FERRÉ - 44 ALLÉE DES CINQ CONTINENTS 44120 VERTOU; SIRET 487 624 777 00040, RCS Nantes. Carte Professionnelle Transactions sur immeubles et fonds de commerce (T) et Gestion immobilière (G) n°CPI 4401 2016 000 010 388 délivrée par la CCI Nantes - Saint Nazaire. Compte séquestre n°30932508467 BPA SAINT-SEBASTIEN-SUR-LOIRE (44230). Garantie GALIAN-SMABTP - 89 rue de la Boétie, 75008 Paris - n°28137 J pour 2 000 000 euros pour T et 120 000 euros pour G. Assurance responsabilité civile professionnelle par GALIAN-SMABTP n° de police 28137.J Stephanie PENA (EI) Agent Commercial - Numéro RSAC : 795246065 - .Les informations sur les risques auxquels ce bien est exposé sont disponibles sur le site Géorisques : www. georisques. gouv. fr
105 m²
4 p
3 ch




