



Appartement T2 Amboise
Ref. 438708NPRI
AMBOISE (37400)
148 400 €
2 800 €/m²
53 m²
2 pièces
1 chambres
Rez de chaussée
Atouts
Autres
Informations complémentaires
Classe énérgétique
Emissions GES
Description
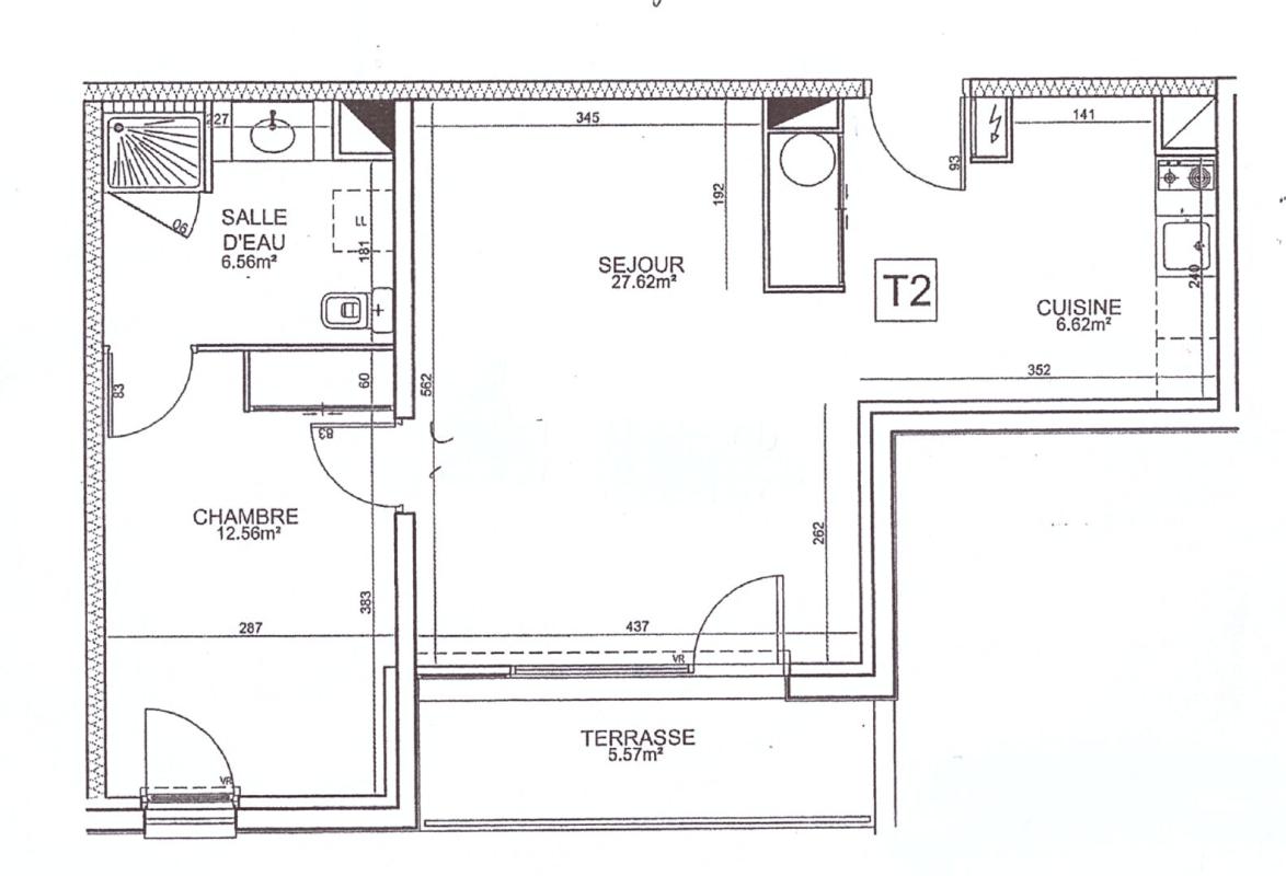
Amboise Résidence services seniors, Appartement T2 de 53 m²Dans la résidence seniors, découvrez ce bel appartement T2 de 53 m², offrant un cadre de vie serein et sécurisé.L'appartement se compose d'un séjour lumineux, d'une chambre confortable, d'une cuisine fonctionnelle et d'une salle d'eau adaptée. Les volumes sont agréables et l'agencement pensé pour un quotidien simple et confortable.La résidence propose un environnement rassurant ainsi que des services adaptés : accueil, espaces communs conviviaux, restauration et animations à la carte.Idéal pour une résidence principale sécurisée ou un investissement dans un secteur stable et recherché. Loyer 675 eurosPour plus d'informations ou organiser une visite, contactez moi.Prix : 148 400 eurosLe prix indiqué comprend les honoraires à la charge de l'acheteur : 6 % TTC du prix du bien hors honoraires 8 400 eurosPrix hors honoraires : 140 000 eurosDate de réalisation du diagnostic énergétique : 31/03/2025DPE D - GES BMontant estimé des dépenses annuelles d'énergie pour un usage standard entre 840 et 1 200 euros. Prix moyens des énergies indexés sur les années 2021, 2022, 2023 (abonnements compris) conformément à l'arrêté du 31 mars 2021 en vigueur lors de l'établissement du DPE.Pour visiter et vous accompagner dans votre projet, contactez Nicolas PRIOUX, au 0670811062 ou, par courriel à n.prioux@proprietes-privees.com.Selon l'article L.561.5 du Code Monétaire et Financier, pour l'organisation de la visite, la présentation d'une pièce d'identité vous sera demandée.Cette présente annonce a été rédigée sous la responsabilité éditoriale de Nicolas PRIOUX agissant sous le statut d'agent commercial immatriculé au RSAC 848725289 auprès de SAS PROPRIETES PRIVEES, au capital de 44 920 euros, ZAC LE CHÊNE FERRÉ - 44 ALLÉE DES CINQ CONTINENTS 44120 VERTOU ; SIRET 487 624 777 00040, RCS Nantes. Carte Professionnelle Transactions sur immeubles et fonds de commerce (T) et Gestion immobilière (G) n°CPI 4401 2016 000 010 388 délivrée par la CCI Nantes - Saint Nazaire. Compte séquestre n°30932508467 BPA SAINT-SEBASTIEN-SUR-LOIRE (44230). Garantie GALIAN-SMABTP - 89 rue de la Boétie, 75008 Paris - n°28137 J pour 2 000 000 euros pour T et 120 000 euros pour G. Assurance responsabilité civile professionnelle par GALIAN-SMABTP n° de police 28137.JMandat réf : 438708. - Le professionnel garantit et sécurise votre projet immobilier. (6.00 % honoraires TTC à la charge de l'acquéreur.) Nicolas PRIOUX (EI) Agent Commercial - Numéro RSAC : 848725289 - .
Les biens à proximité

Maison
Ref. 449152NPRI
254 400 €
1 496 €/m²
Située à Mosnes, entre Amboise et Chaumont-sur-Loire, cette longère se trouve dans un secteur calme, au sein d'un environnement agréable.La maison propose au rez-de-chaussée une entrée, un salon-séjour, une cuisine séparée, deux chambres, une salle de bain, des toilettes et une véranda.A l'étage, une pièce palière dessert une grande chambre, une seconde salle de bain, une autre chambre, ainsi que deux pièces actuellement sans ouverture, avec possibilité d'aménagement en chambres supplémentaires.Les annexes comprennent un grenier, une buanderie, une cave, un garage et une véranda.Beau potentiel d'aménagements.Le bien est équipé d'une pompe à chaleur. Consommation énergétique raisonnable, Maison classé C.A l'extérieur, vous profitez d'un jardin sans vis-à-vis, sur une parcelle agréable et entretenue.Maison adaptée à un projet familial ou à une activité de type gîte ou chambres d'hôtes, dans un secteur recherché proche des axes touristiques.Prix : 240 000 eurosLe prix indiqué comprend les honoraires à la charge de l'acheteur : 6 % TTC du prix du bien hors honoraires 14 400 eurosPrix hors honoraires : 254 400 eurosDate de réalisation du diagnostic énergétique : 18/11/2025DPE C - GES BMontant estimé des dépenses annuelles d'énergie pour un usage standard entre 2 290 et 3 140 euros. Prix moyens des énergies indexés sur les années 2021, 2022, 2023 (abonnements compris) conformément à l'arrêté du 31 mars 2021 en vigueur lors de l'établissement du DPE .Pour visiter et vous accompagner dans votre projet, contactez Nicolas PRIOUX, au 0670811062 ou, par courriel à n.prioux@proprietes-privees.com.Selon l'article L.561.5 du Code Monétaire et Financier, pour l'organisation de la visite, la présentation d'une pièce d'identité vous sera demandée.Cette présente annonce a été rédigée sous la responsabilité éditoriale de Nicolas PRIOUX agissant sous le statut d'agent commercial immatriculé au RSAC 848725289 auprès de SAS PROPRIETES PRIVEES, au capital de 44 920 euros, ZAC LE CHÊNE FERRÉ - 44 ALLÉE DES CINQ CONTINENTS 44120 VERTOU; SIRET 487 624 777 00040, RCS Nantes. Carte Professionnelle Transactions sur immeubles et fonds de commerce (T) et Gestion immobilière (G) n°CPI 4401 2016 000 010 388 délivrée par la CCI Nantes - Saint Nazaire. Compte séquestre n°30932508467 BPA SAINT-SEBASTIEN-SUR-LOIRE (44230). Garantie GALIAN-SMABTP - 89 rue de la Boétie, 75008 Paris - n°28137 J pour 2 000 000 euros pour T et 120 000 euros pour G. Assurance responsabilité civile professionnelle par GALIAN-SMABTP n° de police 28137.JMandat réf : 449152 - Le professionnel garantit et sécurise votre projet immobilier. (6.00 % honoraires TTC à la charge de l'acquéreur.) Nicolas PRIOUX (EI) Agent Commercial - Numéro RSAC : 848725289 - .
170 m²
7 p
4 ch

Appartement
Ref. 429476NPRI
199 900 €
1 999 €/m²
Situé en plein coeur d'Amboise, à proximité immédiate des commerces et des bords de Loire, cet appartement offre un emplacement recherché et un fort potentiel.Au 1er étage d'une petite copropriété, il développe environ 82 m² habitables et comprend :une entréeun salon lumineux d'environ 25 m²une cuisine indépendantedeux chambres, dont une avec point d'eauune salle d'eauWCUne opportunité intéressante : possibilité d'agrandir le bien d'environ 20 m² supplémentaires en récupérant une partie des espaces communs, permettant de créer une pièce supplémentaire ou d'augmenter significativement la surface habitable.Prix : 199 900 eurosLe prix indiqué comprend les honoraires à la charge de l'acheteur : 6 % TTC du prix du bien hors honoraires 9 900 eurosPrix hors honoraires : 190 000 eurosDate de réalisation du diagnostic énergétique : 10/12/2025DPE E - GES EMontant estimé des dépenses annuelles d'énergie pour un usage standard entre 2 074 et 2 806 euros. Prix moyens des énergies indexés sur les années 2021, 2022, 2023 (abonnements compris) conformément à l'arrêté du 31 mars 2021 en vigueur lors de l'établissement du DPE .Pour visiter et vous accompagner dans votre projet, contactez Nicolas PRIOUX, au 0670811062 ou, par courriel à n.prioux@proprietes-privees.com.Selon l'article L.561.5 du Code Monétaire et Financier, pour l'organisation de la visite, la présentation d'une pièce d'identité vous sera demandée.Cette présente annonce a été rédigée sous la responsabilité éditoriale de Nicolas PRIOUX agissant sous le statut d'agent commercial immatriculé au RSAC 848725289 auprès de SAS PROPRIETES PRIVEES, au capital de 44 920 euros, ZAC LE CHÊNE FERRÉ - 44 ALLÉE DES CINQ CONTINENTS 44120 VERTOU; SIRET 487 624 777 00040, RCS Nantes. Carte Professionnelle Transactions sur immeubles et fonds de commerce (T) et Gestion immobilière (G) n°CPI 4401 2016 000 010 388 délivrée par la CCI Nantes - Saint Nazaire. Compte séquestre n°30932508467 BPA SAINT-SEBASTIEN-SUR-LOIRE (44230). Garantie GALIAN-SMABTP - 89 rue de la Boétie, 75008 Paris - n°28137 J pour 2 000 000 euros pour T et 120 000 euros pour G. Assurance responsabilité civile professionnelle par GALIAN-SMABTP n° de police 28137.JMandat réf : 429476. - Le professionnel garantit et sécurise votre projet immobilier. (5.21 % honoraires TTC à la charge de l'acquéreur.) Nicolas PRIOUX (EI) Agent Commercial - Numéro RSAC : 848725289 - .
100 m²
4 p
2 ch







