



Saint Pey de Castets
Ref. 439870WAND
SAINT-PEY-DE-CASTETS (33350)
239 000 €
1 943 €/m²
123 m²
7 pièces
4 chambres
Séjour de 36m²
Terrain de 2888m²
1 WC
Atouts
Jardin privatif
Cheminée
Autres
Informations complémentaires
Classe énérgétique
Emissions GES
Description
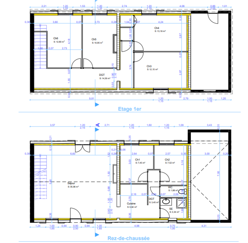
Maison en pierre élevée sur une parcelle clôturée de 658m² à laquelle s'ajoute un second terrain arboré de 2230m² en bordure de Dordogne de l'autre côte de la route.Spacieuse et lumineuse, la maison dispose en rez de chaussée un vaste séjour avec murs en pierre de parement avec une superbe cheminée en pierre. La cuisine est ouverte sur le séjour et le dégagement comprenant, salle d'eau, WC, bureau et lingerie. A l'étage, palier, grand dégagement, quatre chambres. Garage attenant avec grenier au dessus. La maison bénéficie des dernières normes en vigueur ayant fait l'objet d'une reconstruction à neuf en 2022 suite à incendie. La maison prête à décorer n'a jamais été habitée depuis.Bien idéal pour une primo accession.Prix de vente : 239 000 euros HAIHonoraires à charge VendeurDPE : C - GES: AMontant estimé des dépenses annuelles d'énergie pour un usage standard entre1250 euros et 1740 euros indexées aux années 2021, 2022 et 2023 .Pour visiter et vous accompagner dans votre projet, contactez William ANDRIEU, au 0661186218 ou, par courriel à wi.andrieu@proprietes-privees.com.Selon l'article L.561.5 du Code Monétaire et Financier, pour l'organisation de la visite, la présentation d'une pièce d'identité vous sera demandée.Cette présente annonce a été rédigée sous la responsabilité éditoriale de William ANDRIEU agissant en qualité de conseiller immobilier indépendant sous portage salarial auprès de SAS PROPRIETES PRIVEES, au capital de 44 920 euros, ZAC LE CHÊNE FERRÉ - 44 ALLÉE DES CINQ CONTINENTS 44120 VERTOU; SIRET 487 624 777 00040, RCS Nantes. Carte Professionnelle Transactions sur immeubles et fonds de commerce (T) et Gestion immobilière (G) n°CPI 4401 2016 000 010 388 délivrée par la CCI Nantes - Saint Nazaire. Compte séquestre n°30932508467 BPA SAINT-SEBASTIEN-SUR-LOIRE (44230). Garantie GALIAN-SMABTP - 89 rue de la Boétie, 75008 Paris - n°28137 J pour 2 000 000 euros pour T et 120 000 euros pour G. Assurance responsabilité civile professionnelle par GALIAN-SMABTP n° de police 28137.JMandat réf : 439870Le professionnel garantit et sécurise votre projet immobilier.Les informations sur les risques auxquels ce bien est exposé sont disponibles sur le site Géorisques : www. georisques. gouv. fr
Les biens à proximité

Maison
Ref. 429154PIEN
223 650 €
2 570 €/m²
Située dans un environnement calme et agréable sur la commune de Sainte-Terre, cette jolie maison de plain-pied vous séduira par ses prestations soignées et son cadre de vie idéal.Elle se compose d'une entrée accueillante, d'un vaste séjour lumineux avec salle à manger, parfait pour les moments en famille ou entre amis, ainsi que d'une cuisine entièrement équipée alliant modernité et fonctionnalité.L'espace nuit offre trois belles chambres, une salle d'eau, et des toilettes séparées.Un garage attenant, un cellier pratique pour le rangement, ainsi qu'une terrasse donnant sur une piscine vous permettent de profiter pleinement des beaux jours dans un jardin clos et verdoyant.A seulement quelques minutes des commodités, des écoles et à proximité de Libourne et Saint-Émilion.Un bien rare sur le secteur, idéal pour une famille.Contactez-moi dès maintenant pour organiser une visite !Prix de vente 223 650 euros dont 6,50 % honoraire inclus à la charge de l'acquéreur soit un prix net vendeur de 210 000 euros.Pour plus d'informations ou organiser une visite, contactez-moi dès aujourd'hui. Cette maison est une opportunité à ne pas manquer!DPE : Classe C - GES A : -Montant moyen estimé des dépenses annuelles d'énergie pour un usage standard établi à partir des prix de l'énergie de l'année 2024 : entre 1 010 euros et 1 440 euros euros.Pour visiter et vous accompagner dans votre projet, contactez Pierre NADAUD, au 0643471267 ou par courriel àp.nadaud@proprietes-privees.comSelon l'article L.561.5 du Code Monétaire et Financier, pour l'organisation de la visite, la présentation d'une pièce d'identité vous sera demandée.Cette vente est garantie 12 mois.Cette présente annonce a été rédigée sous la responsabilité éditoriale de Pierre NADAUD agissant sous le statut d'agent commercial auprès de la SAS PROPRIETES PRIVEES, au capital de 44 920 euros, ZAC LE CHÊNE FERRÉ - 44ALLÉE DES CINQ CONTINENTS 44120VERTOU; SIRET 487 624 777 00040, RCS Nantes. Carte professionnelleTransactions sur immeubles et fonds de commerce (T) et Gestion immobilière(G) n° CPI 4401 2016 000 010 388 délivrée par la CCI Nantes - Saint Nazaire. Compte séquestre n°30932508467 BPA SAINT-SEBASTIEN-SUR-LOIRE (44230) ;Garantie GALIAN - 89 rue de la Boétie,75008 Paris - n°28137 J pour 2 000000 euros pour T et 120 000 euros pour G.Assurance responsabilité civile professionnelle par MMA Entreprise n° de police 120.137.405Pierre NADAUD (EI) Agent Commercial - Numéro RSAC : 2017AC00066 - .Les informations sur les risques auxquels ce bien est exposé sont disponibles sur le site Géorisques : www. georisques. gouv. fr (6,50 % honoraires TTC à la charge de l'acquéreur.)Pierre NADAUD (EI) Agent Commercial - Numéro RSAC : 2017AC00066 - .(7.27% honoraires TTC à la charge de l'acquéreur.)Pierre NADAUD (EI) Agent Commercial - Numéro RSAC : 2017AC00066 - . (6.50 % honoraires TTC à la charge de l'acquéreur.) Pierre NADAUD (EI) Agent Commercial - Numéro RSAC : 2017AC00066 - .
87 m²
4 p
3 ch

Maison
Ref. 429108FOU
255 000 €
1 821 €/m²
Sainte Terre (33350), Fidhégnon F. OUANKPO du réseau propriétés-privées.com, vous propose dans le centre ville une maison de caractère, plein pied sur vide sanitaire, comprenant une entrée lumineuse, un séjour de 35 m2, une cuisine à la Française, quatre chambres, un cellier, une cuisine d'été, un garage non attenant de 61 m2, l'ensemble sur une parcelle de 2800 m2 environ. Vous aimez la campagne et un environ calme cette maison à tout pour vous plaire.Les informations sur les risques auxquels ce bien est exposé sont disponibles sur le site Géorisques: WWW.georisques.gouv.fr.Pour visiter et vous accompagner dans votre projet, contactez François OUANKPO, au 0676932381 ou par courriel à f.ouankpo@proprietes-privees.comSelon l'article L.561.5 du Code Monétaire et Financier, pour l'organisation de la visite, la présentation d'une pièce d'identité vous sera demandée.Cette vente est garantie 12 mois.Cette présente annonce a été rédigée sous la responsabilité éditoriale de François OUANKPO agissant sous le statut d'agent commercial immatriculé au RSAC LIBOURNE 404955486 auprès de la SAS PROPRIETES PRIVEES, au capital de 40 000 euros, ZAC LE CHÊNE FERRÉ - 44 ALLÉE DES CINQ CONTINENTS 44120 VERTOU; SIRET 487 624 777 00040, RCS Nantes. Carte professionnelle Transactions sur immeubles et fonds de commerce (T) et Gestion immobilière (G) n° CPI 4401 2016 000 010 388 délivrée par la CCI Nantes - Saint Nazaire. Compte séquestre n°30932508467 BPA SAINT-SEBASTIEN-SUR-LOIRE (44230) ; Garantie GALIAN - 89 rue de la Boétie, 75008 Paris - n°28137 J pour 2 000 000 euros pour T et 120 000 euros pour G. Assurance responsabilité civile professionnelle par MMA Entreprise n° de police 120.137.405Mandat réf : 429108- Le professionnel garantit et sécurise votre projet immobilier. François OUANKPO (EI) Agent Commercial - Numéro RSAC : LIBOURNE 404955486 - .
140 m²
7 p
4 ch

Maison
Ref. 406285SEDE
1 163 000 €
3 715 €/m²
Un domaine d'exception au coeur de l'AOP Saint-Émilion !Vous rêvez de devenir propriétaire d'un vignoble prestigieux dans l'un des terroirs les plus renommés au monde ? Voici une opportunité rare à saisir : une propriété viticole de 7 hectares en production, située à proximité immédiate de Saint-Émilion, à seulement une heure de Bordeaux.Ce domaine d'exception vous offre un terroir d'une qualité inégalée, avec des sols argilo-calcaires et un microclimat unique, idéal pour la culture de cépages rigoureusement sélectionnés. La récolte est actuellement apportée en cave, et la production garantit une qualité irréprochable, fidèle à la tradition viticole de Saint-Émilion. En plus des vignes, profitez de plus de 100 m² de bâtiments d'exploitation et du matériel agricole complet (à négocier) pour travailler votre vignoble et développer vos vins...Imaginez vivre dans une élégante ferme en pierre d'environ 313 m², attenante au chai, offrant un cadre de vie idyllique et un confort optimal grâce à un chauffage électrique et une climatisation réversible. Les fenêtres en double vitrage assurent luminosité et isolation. La grange attenante vous offre encore plus de potentiel pour aménager votre espace selon vos envies. La récolte 2025 vous attend déjà : saisissez cette chance unique de produire votre propre vin dans un domaine au patrimoine viticole familial transmis depuis plusieurs générations.Ne laissez pas passer cette opportunité rare d'intégrer le prestigieux vignoble de Saint-Émilion, classé au patrimoine mondial de l'UNESCO. Que vous soyez passionné ou investisseur visionnaire, ce domaine est la porte d'entrée idéale dans l'univers viticole. Contactez-nous dès aujourd'hui pour organiser votre visite et faire du vignoble de vos rêves une réalité !Le vignoble d'exception que vous attendiez est à portée de main. Agissez maintenant !Prix TTC 1 163 000 euros à charge vendeur.Classe ENERGIE D. GES BConsommation énergie primaire : 187 kWh/m²/an.Montant estimé des dépenses annuelles d'énergie pour un usage standard entre 2500 et 3000 euros indexées aux années 2021, 2022 et 2023Pour visiter et vous accompagner dans votre projet, contactez Sébastien DELAGE, au 0661558841 ou, par courriel à se.delage@proprietes-privees.com. Selon l'article L.561.5 du Code Monétaire et Financier, pour l'organisation de la visite, la présentation d'une pièce d'identité vous sera demandée. Cette présente annonce a été réalisée sous la responsabilité éditoriale de Sébastien DELAGE agissant sous le statut d'agent commercial auprès de SAS PROPRIETES PRIVEES.Cette annonce a été rédigée sous la responsabilité éditoriale de Sébastien DELAGE agissant sous le statut d'agent commercial immatriculé au RSAC 849 486 097 auprès de la SAS PROPRIETES PRIVEES , au capital de 44 920 euros, ZAC LE CHÊNE FERRÉ - 44 ALLÉE DES CINQ CONTINENTS 44120 VERTOU ; SIRET 487 624 777 00040, RCS Nantes. Carte Professionnelle Transactions sur immeubles et fonds de commerce (T) et Gestion immobilière (G) n°CPI 4401 2016 000 010 388 délivrée par la CCI Nantes - Saint Nazaire. Compte séquestre n°30932508467 BPA SAINT-SEBASTIEN-SUR-LOIRE (44230). Garantie GALIAN-SMABTP - 89 rue de la Boétie, 75008 Paris - n°28137 J pour 2 000 000 euros pour T et 120 000 euros pour G. Assurance responsabilité civile professionnelle par GALIAN-SMABTP Entreprise n° de police RCP_01_28137J.Mandat réf : 406 285 Le professionnel garantit et sécurise votre projet immobilier. Sophie et Sébastien DELAGE (EI) Agent Commercial - Numéro RSAC : 849 486 097 - .
313 m²
8 p
7 ch

Maison
Ref. 409110SEDE
927 000 €
2 207 €/m²
L'élégance discrète, l'opportunité majeure.Au coeur de la Gironde viticole, là où l'histoire se mêle au prestige, se profile un investissement d'une rareté absolue. Cet actif exceptionnel n'attend que votre regard pour révéler toute l'étendue de son potentiel.Un art de vivre, une affaire florissante. L'ensemble en superbe état.Découvrez une somptueuse bâtisse girondine, parfaitement entretenue et sublimée par un goût impeccable, sise sur un parc arboré de 3 000 m². Plus qu'une propriété, c'est une atmosphère qui vous accueille : une piscine couverte de 8x4m, un espace bien-être doté d'un SPA 6 places, et des équipements techniques de pointe (chauffe-eau de 500 litres, local poubelle climatisé) attestent d'un souci du détail et d'une gestion optimisée.L'intérieur, baigné de lumière et offrant des volumes généreux, propose moins de dix suites raffinées. Chacune est une invitation à la sérénité, équipée de sa propre salle de bain, WC, minibar, et pour certaines, d'une vue apaisante sur le paysage environnant. Cette configuration allie intimité et fonctionnalité, idéale pour une clientèle recherchant l'exclusivité.Positionnement stratégique, rentabilité confirmée.Idéalement située sur un axe stratégique entre la vibrante métropole bordelaise et les légendaires vignobles de Saint-Émilion et du Libournais, en plein coeur de la pittoresque Vallée de la Dordogne ? et avec le charme indéniable de Sainte-Terre, connue comme la capitale de la lamproie ?, cette adresse est un aimant pour une clientèle touristique exigeante.L'établissement fonctionne actuellement avec succès en tant qu'hôtel trois étoiles, avec une offre de restauration saluée. Une équipe expérimentée est en place, garantissant une exploitation sereine et une rentabilité avérée. Au-delà de son succès actuel, la propriété offre une flexibilité remarquable : elle peut aisément être transformée en un restaurant de prestige, une maison d'hôtes de luxe, ou même une somptueuse résidence privée.Révélez le potentiel de votre Prochain investissement.Ce bien est une occasion unique pour les investisseurs avisés, foncières et groupes hôteliers, qu'ils soient implantés à Bordeaux, Paris, ou à l'international, de s'approprier un actif d'exception combinant un cadre de vie idyllique et un potentiel commercial significatif.Ne laissez pas passer cette opportunité. Contactez-nous dès à présent pour accéder au dossier complet et organiser une visite.Prix TTC 927 000 euros à charge vendeur.DPE EN COURSPour visiter et vous accompagner dans votre projet, contactez Sébastien DELAGE, au 0661558841 ou, par courriel à se.delage@proprietes-privees.com. Selon l'article L.561.5 du Code Monétaire et Financier, pour l'organisation de la visite, la présentation d'une pièce d'identité vous sera demandée. Cette présente annonce a été réalisée sous la responsabilité éditoriale de Sébastien DELAGE agissant sous le statut d'agent commercial auprès de SAS PROPRIETES PRIVEES.Cette annonce a été rédigée sous la responsabilité éditoriale de Sébastien DELAGE agissant sous le statut d'agent commercial immatriculé au RSAC 849 486 097 auprès de la SAS PROPRIETES PRIVEES , au capital de 44 920 euros, ZAC LE CHÊNE FERRÉ - 44 ALLÉE DES CINQ CONTINENTS 44120 VERTOU ; SIRET 487 624 777 00040, RCS Nantes. Carte Professionnelle Transactions sur immeubles et fonds de commerce (T) et Gestion immobilière (G) n°CPI 4401 2016 000 010 388 délivrée par la CCI Nantes - Saint Nazaire. Compte séquestre n°30932508467 BPA SAINT-SEBASTIEN-SUR-LOIRE (44230). Garantie GALIAN-SMABTP - 89 rue de la Boétie, 75008 Paris - n°28137 J pour 2 000 000 euros pour T et 120 000 euros pour G. Assurance responsabilité civile professionnelle par GALIAN-SMABTP Entreprise n° de police RCP_01_28137J.Mandat réf : 409 110 - Le professionnel garantit et sécurise votre projet immobilier.Les informations sur les risques auxquels ce bien est exposé sont disponibles sur le site Géorisques : www. georisques. gouv. fr Sophie et Sébastien DELAGE (EI) Agent Commercial - Numéro RSAC : 849 486 097 - .
420 m²
10 p
7 ch












