



Charmante longère normande à 5 minutes de l'autoroute
Ref. 440599VNOE
SAINT-GERMAIN-LA-CAMPAGNE (27230)
211 000 €
2 110 €/m²
100 m²
4 pièces
2 chambres
Terrain de 6000m²
1 salle de bain
Atouts
Autres
Informations complémentaires
Classe énérgétique
Emissions GES
Description
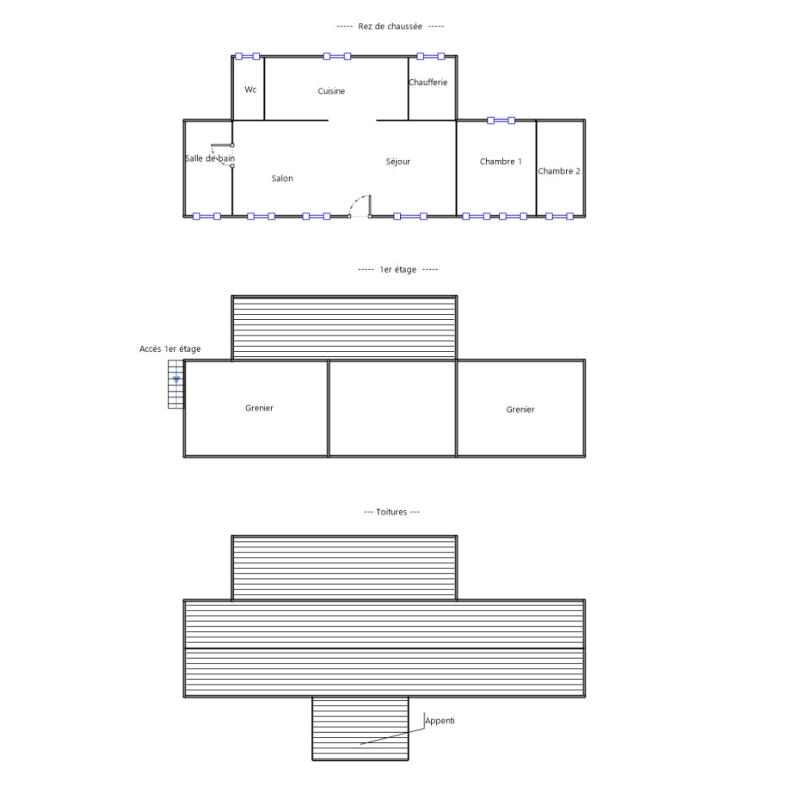
Très belle longère au calme de la campagne, sur presque 6000 m² de terrain arboré, possédant de plain-pied : Une cuisine aménagée équipée, un beau double séjour avec une magnifique cheminée ouverte, une salle d'eau, une salle de bain, une chambre et un bureau.Chauffage avec pompe à chaleur AIR/EAU et panneaux solaires au sud. Ce qui permet une quasi autonomie énergétique.Les greniers étant aménageables, trois pièces supplémentaires peuvent être faites . Nombreuses possibilités de réaménagement.Une dépendance offrant également des possibilités de gites ou chambres d'hôtes, par exemple.211000 euros HNIHonoraires à 5,5 % ssoit 200000 euros net vendeurDPE C GES AMontant estimé des dépenses annuelles d'énergie pour un usage standard entre 1220 et 1700 euros indexées aux années 2021, 2022 et 2023Pour visiter et vous accompagner dans votre projet, contactez Valérie NOEL, au 0659871697 ou, par courriel à v.noel@proprietes-privees.com.Selon l'article L.561.5 du Code Monétaire et Financier, pour l'organisation de la visite, la présentation d'une pièce d'identité vous sera demandée.Cette présente annonce a été rédigée sous la responsabilité éditoriale de Valérie NOEL agissant sous le statut d'agent commercial immatriculé au RSAC 831 252 721 Lisieux auprès de SAS PROPRIETES PRIVEES, au capital de 44 920 euros, ZAC LE CHÊNE FERRÉ - 44 ALLÉE DES CINQ CONTINENTS 44120 VERTOU; SIRET 487 624 777 00040, RCS Nantes. Carte Professionnelle Transactions sur immeubles et fonds de commerce (T) et Gestion immobilière (G) n°CPI 4401 2016 000 010 388 délivrée par la CCI Nantes - Saint Nazaire. Compte séquestre n°30932508467 BPA SAINT-SEBASTIEN-SUR-LOIRE (44230). Garantie GALIAN-SMABTP - 89 rue de la Boétie, 75008 Paris - n°28137 J pour 2 000 000 euros pour T et 120 000 euros pour G. Assurance responsabilité civile professionnelle par GALIAN-SMABTP n° de police 28137.JMandat réf : 440599 - Le professionnel garantit et sécurise votre projet immobilier. (5.50 % honoraires TTC à la charge de l'acquéreur.) Valerie NOEL (EI) Agent Commercial - Numéro RSAC : 831 252 721 Lisieux - .Les informations sur les risques auxquels ce bien est exposé sont disponibles sur le site Géorisques : www. georisques. gouv. fr
Ce bien vous est présenté par
Valerie NOEL

Les biens à proximité

Maison
Ref. 441400VNOE
174 500 €
1 982 €/m²
Vue magnifique sur la vallée pour ce pavillon de 88 m² de plain-pied sur sous sol complet.Cette maison dispose d'une cuisine indépendante aménagée et équipée, un séjour donnant sur la véranda, une salle de douche, WC indépendant et 3 chambres.Fenêtres double vitrageLe jardin arboré et fleuri vous attend pour l'été ainsi que la véranda.Les panneaux solaires rapportent à l'année une revente d'électricité d'environ 900 euros.Chauffage au bois principalement, chauffage électrique très rarement utilisé.Prix : 174 500 eurosHonoraires : 5,76 % TTC inclus charge acquéreursoit 165 000 euros hors honorairesDPE D GES BMontant estimé des dépenses annuelles d'énergie pour un usage standard entre 1310 et 1840 euros indexées aux années 2021, 2022 et 2023.Pour visiter et vous accompagner dans votre projet, contactez Valérie NOEL, au 0659871697 ou, par courriel à v.noel@proprietes-privees.com.Selon l'article L.561.5 du Code Monétaire et Financier, pour l'organisation de la visite, la présentation d'une pièce d'identité vous sera demandée.Cette présente annonce a été rédigée sous la responsabilité éditoriale de Valérie NOEL agissant sous le statut d'agent commercial immatriculé au RSAC 831 252 721 Lisieux auprès de SAS PROPRIETES PRIVEES, au capital de 44 920 euros, ZAC LE CHÊNE FERRÉ - 44 ALLÉE DES CINQ CONTINENTS 44120 VERTOU; SIRET 487 624 777 00040, RCS Nantes. Carte Professionnelle Transactions sur immeubles et fonds de commerce (T) et Gestion immobilière (G) n°CPI 4401 2016 000 010 388 délivrée par la CCI Nantes - Saint Nazaire. Compte séquestre n°30932508467 BPA SAINT-SEBASTIEN-SUR-LOIRE (44230). Garantie GALIAN-SMABTP - 89 rue de la Boétie, 75008 Paris - n°28137 J pour 2 000 000 euros pour T et 120 000 euros pour G. Assurance responsabilité civile professionnelle par GALIAN-SMABTP n° de police 28137.JMandat réf : 441400 - Le professionnel garantit et sécurise votre projet immobilier. (5.76 % honoraires TTC à la charge de l'acquéreur.) Valerie NOEL (EI) Agent Commercial - Numéro RSAC : 831 252 721 Lisieux - .Les informations sur les risques auxquels ce bien est exposé sont disponibles sur le site Géorisques : www. georisques. gouv. fr
88 m²
4 p
3 ch

Maison
Ref. 436812VNOE
105 000 €
981 €/m²
Maison en brique à rénover au coeur de la charmante ville d'Orbec. Tous commerces et accès à l'A28 en 5 minutes.15 minutes de Bernay et 20 minutes de Lisieux.Au Rez de Chaussée : Cuisine, salle à manger et grand séjour.A l'étage : Salle de bain et trois chambres, l'étage et desservi par deux escaliers de chaque coté de la maison.1 dépendance et abri pour la voiture.Jardin à l'avant de la maison.Prix : 105000 euros FAISoit 100000 euros net vendeur et 5% honoraire agence à la charge de l'acquéreurDPE G GES GMontant estimé des dépenses annuelles d'énergie pour un usage standard entre 2930 et 4040 euros indexées aux années 2021, 2022 et 2023 (ou 2021 uniquement) (si logement F ou G 'Logement à consommation énergétique excessive : classe F ou G')Pour visiter et vous accompagner dans votre projet, contactez Valérie NOEL, au 0659871697 ou, par courriel à v.noel@proprietes-privees.com.Selon l'article L.561.5 du Code Monétaire et Financier, pour l'organisation de la visite, la présentation d'une pièce d'identité vous sera demandée.Cette présente annonce a été rédigée sous la responsabilité éditoriale de Valérie NOEL agissant sous le statut d'agent commercial immatriculé au RSAC 831 252 721 Lisieux auprès de SAS PROPRIETES PRIVEES, au capital de 44 920 euros, ZAC LE CHÊNE FERRÉ - 44 ALLÉE DES CINQ CONTINENTS 44120 VERTOU; SIRET 487 624 777 00040, RCS Nantes. Carte Professionnelle Transactions sur immeubles et fonds de commerce (T) et Gestion immobilière (G) n°CPI 4401 2016 000 010 388 délivrée par la CCI Nantes - Saint Nazaire. Compte séquestre n°30932508467 BPA SAINT-SEBASTIEN-SUR-LOIRE (44230). Garantie GALIAN-SMABTP - 89 rue de la Boétie, 75008 Paris - n°28137 J pour 2 000 000 euros pour T et 120 000 euros pour G. Assurance responsabilité civile professionnelle par GALIAN-SMABTP n° de police 28137.JMandat réf : 436812 - Le professionnel garantit et sécurise votre projet immobilier. (5.00 % honoraires TTC à la charge de l'acquéreur.) Valerie NOEL (EI) Agent Commercial - Numéro RSAC : 831 252 721 Lisieux - .Les informations sur les risques auxquels ce bien est exposé sont disponibles sur le site Géorisques : www. georisques. gouv. fr
107 m²
5 p
3 ch

Maison
Ref. 444266VNOE
158 250 €
1 507 €/m²
Rare à Orbec ! Cette maison est à 5 minutes du centre-ville avec jardin de 450 M².Au RDC : 2 chambres avec une salle de douche et WC en double accès. Un WC indépendant, un séjour, une salle à manger semi-ouverte sur la cuisine. Un couloir desservant une salle de douche, un espace buanderie et un débarras.A l'étage, une chambre mansardée et un grenier aménageable.Le bien est à rafraichir, quelques travaux d'isolation peuvent être nécessaire.DPE E GES ESon prix : 158250 Euros HAIHonoraires Agence : 8250 euros soit 5,5 % à la charge de l'acquéreur.Soit 150000 net vendeurMontant estimé des dépenses annuelles d'énergie pour un usage standard entre 4160 et 5640 euros indexées aux années 2021, 2022 et 2023Pour visiter et vous accompagner dans votre projet, contactez Valérie NOEL, au 0659871697 ou, par courriel à v.noel@proprietes-privees.com.Selon l'article L.561.5 du Code Monétaire et Financier, pour l'organisation de la visite, la présentation d'une pièce d'identité vous sera demandée.Cette présente annonce a été rédigée sous la responsabilité éditoriale de Valérie NOEL agissant sous le statut d'agent commercial immatriculé au RSAC 831 252 721 Lisieux auprès de SAS PROPRIETES PRIVEES, au capital de 44 920 euros, ZAC LE CHÊNE FERRÉ - 44 ALLÉE DES CINQ CONTINENTS 44120 VERTOU; SIRET 487 624 777 00040, RCS Nantes. Carte Professionnelle Transactions sur immeubles et fonds de commerce (T) et Gestion immobilière (G) n°CPI 4401 2016 000 010 388 délivrée par la CCI Nantes - Saint Nazaire. Compte séquestre n°30932508467 BPA SAINT-SEBASTIEN-SUR-LOIRE (44230). Garantie GALIAN-SMABTP - 89 rue de la Boétie, 75008 Paris - n°28137 J pour 2 000 000 euros pour T et 120 000 euros pour G. Assurance responsabilité civile professionnelle par GALIAN-SMABTP n° de police 28137.JMandat réf : 444266 - Le professionnel garantit et sécurise votre projet immobilier. (5.50 % honoraires TTC à la charge de l'acquéreur.) Valerie NOEL (EI) Agent Commercial - Numéro RSAC : 831 252 721 Lisieux - .Les informations sur les risques auxquels ce bien est exposé sont disponibles sur le site Géorisques : www. georisques. gouv. fr
105 m²
4 p
3 ch

Maison
Ref. 440022VNOE
159 000 €
1 370 €/m²
A Orbec Maison 4 chambres avec jardin de 690 m² et véranda à 5 minutes du centre d'OrbecEntrée par la véranda :Au rez de chaussée : Cuisine aménagée et équipée indépendante, grand séjour / salle à manger, une chambre, une salle de douche et une grande buanderie donnant.à l'étage : deux chambres séparées par un grand dégagement pouvant servir de bureau et une salle de bain.Un autre escalier depuis la buanderie dessert une quatrième chambre dotée d'une salle d'eau (lavabos, toilettes).159 000 euros FAIDPE D GES DMontant estimé des dépenses annuelles d'énergie pour un usage standard entre 2020 et 2800 euros indexées aux années 2021, 2022 et 2023Pour visiter et vous accompagner dans votre projet, contactez Valérie NOEL, au 0659871697 ou, par courriel à v.noel@proprietes-privees.com.Selon l'article L.561.5 du Code Monétaire et Financier, pour l'organisation de la visite, la présentation d'une pièce d'identité vous sera demandée.Cette présente annonce a été rédigée sous la responsabilité éditoriale de Valérie NOEL agissant sous le statut d'agent commercial immatriculé au RSAC 831 252 721 Lisieux auprès de SAS PROPRIETES PRIVEES, au capital de 44 920 euros, ZAC LE CHÊNE FERRÉ - 44 ALLÉE DES CINQ CONTINENTS 44120 VERTOU; SIRET 487 624 777 00040, RCS Nantes. Carte Professionnelle Transactions sur immeubles et fonds de commerce (T) et Gestion immobilière (G) n°CPI 4401 2016 000 010 388 délivrée par la CCI Nantes - Saint Nazaire. Compte séquestre n°30932508467 BPA SAINT-SEBASTIEN-SUR-LOIRE (44230). Garantie GALIAN-SMABTP - 89 rue de la Boétie, 75008 Paris - n°28137 J pour 2 000 000 euros pour T et 120 000 euros pour G. Assurance responsabilité civile professionnelle par GALIAN-SMABTP n° de police 28137.JMandat réf : 440022 - Le professionnel garantit et sécurise votre projet immobilier. (6.00 % honoraires TTC à la charge de l'acquéreur.) Valerie NOEL (EI) Agent Commercial - Numéro RSAC : 831 252 721 Lisieux - .Les informations sur les risques auxquels ce bien est exposé sont disponibles sur le site Géorisques : www. georisques. gouv. fr
116 m²
6 p
4 ch














