



Vente Maison 304m2 BORDEAUX (33000)
Ref. 443842ARY
BORDEAUX (33000)
1 345 000 €
4 424 €/m²
304 m²
14 pièces
6 chambres
1 salle de bain
Atouts
Autres
Informations complémentaires
Classe énérgétique
Emissions GES
Description
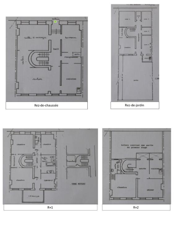
33000 - BORDEAUX - SAINT-SEURIN. IDEAL RESIDENCE PRINCIPALE ou PROFESSION LIBERALE. A quelques pas de la BASILIQUE SAINT-SEURIN et de la PLACE DES MARTYRS DE LA RESISTANCE, à moins de 10 min A PIED du TRIANGLE D'OR, cette superbe MAISON BOURGEOISE de 1880 développe 335 M² au sol et offre un cadre de vie rare au coeur de l'un des QUARTIERS LES PLUS RECHERCHÉS DE BORDEAUX. Distribuée sur QUATRE NIVEAUX, cette propriété a conservé tout le CHARME DE L'ANCIEN : CHEMINÉES D'ÉPOQUE, MOULURES ÉLÉGANTES, CARREAUX DE CIMENT, PARQUET MASSIF et MAJESTUEUX ESCALIER EN PIERRE, autant d'éléments qui confèrent à cette demeure une authenticité et un cachet remarquable. Le REZ-DE-CHAUSSÉE s'organise autour d'une belle ENTRÉE distribuant un SALON, une SALLE A MANGER, une CUISINE, un BUREAU et un WC indépendant, offrant de beaux VOLUMES DE RÉCEPTION. Au PREMIER ÉTAGE, l'espace nuit propose QUATRE CHAMBRES, une VÉRANDA, une SALLE D'EAU et une SALLE DE BAINS AVEC WC. Le DEUXIÈME ÉTAGE, bénéficiant d'une HAUTEUR SOUS PLAFOND EXCEPTIONNELLE DE 3,20 M, accueille un SALON, une CUISINE, une CHAMBRE et une SALLE D'EAU AVEC WC, permettant d'envisager un ESPACE INDÉPENDANT ou un APPARTEMENT FAMILIAL. Le REZ-DE-JARDIN comprend une CHAMBRE, une SALLE D'EAU AVEC WC ainsi que plusieurs CAVES, idéales pour le STOCKAGE ou l'aménagement d'ESPACES COMPLÉMENTAIRES. A l'arrière, la maison s'ouvre sur une TERRASSE D'ENVIRON 22 M² prolongée par un MAGNIFIQUE JARDIN ARBORÉ de 230 M², un véritable LUXE EN CENTRE-VILLE, PISCINABLE et propice à la création d'un ESPACE EXTÉRIEUR D'EXCEPTION. POSSIBILITÉ D'ACQUÉRIR DEUX PLACES DE STATIONNEMENT A PROXIMITÉ IMMÉDIATE, un ATOUT PRÉCIEUX DANS CE SECTEUR CENTRAL.Une ADRESSE RARE réunissant VOLUME, CHARME ET POTENTIEL, idéale pour une GRANDE MAISON FAMILIALE ou un PROJET PATRIMONIAL au coeur de BORDEAUX.PRIX : 1 345 000 eurosDPE : D - GES : D. Montant moyen estimé des dépenses annuelles d'énergie pour un usage standard compris entre 4280 euros et 5830 euros.Pour visiter et vous accompagner dans votre projet, contactez Arnaud FRAYRET, au 06 37 72 09 46 ou par courriel à a.frayret@proprietes-privees.comCette présente annonce a été rédigée sous la responsabilité éditoriale de Arnaud FRAYRET agissant sous le statut d'agent commercial immatriculé au RSAC Nantes 837775543 auprès de la SAS PROPRIETES PRIVEES, Réseau national immobilier, au capital de 40000 euros, 44 ALLÉE DES CINQ CONTINENTS - ZAC LE CHÊNE FERRÉ, 44120 VERTOU, RCS Nantes n° 487 624 777 00040, Carte professionnelle T et G n° CPI 4401 2016 000 010 388 CCI Nantes-Saint Nazaire. Garantie GALIAN - 89 rue de la Boétie, 75008 Paris.Mandat réf : 443842 - Le professionnel garantit et sécurise votre projet immobilier. (3.46 % honoraires TTC à la charge de l'acquéreur.) Arnaud FRAYRET (EI) Agent Commercial - Numéro RSAC : STRASBOURG 837775543 - .Les informations sur les risques auxquels ce bien est exposé sont disponibles sur le site Géorisques : www. georisques. gouv. fr
Ce bien vous est présenté par
Arnaud FRAYRET

Les biens à proximité

Appartement
Ref. 443525CABR
270 000 €
3 750 €/m²
En ESCLUSIVITE Caroline BRINIS, votre conseillère en immobilier vous présente ce charmant appartement, situé entre le quartier historique Sainte-Croix et la gare Saint-Jean, futur lieu en pleine transformation avec la création du quartier Canopia.Niché au 4 ème étage d'une résidence des années 70 avec ascenseur, cet appartement de 72 m² traversant vous invite à découvrir un cadre de vie confortable et lumineux.Vous disposez d'une belle entrée de 8 m² équipée de grands placards, d'un séjour spacieux de 22 m², d'une chambre de 12 m² avec balcon ; tous deux baignés de lumière exposé Ouest offrant une vue dégagée sur la place André Meunier.Une couloir dessert une salle d'eau, des WC séparés disposant d'un lave-mains.Donnant sur l'arrière exposé Est, une chambre de 10 m² ainsi qu'une grande cuisine séparée et équipée.Cet appartement bénéficie d'une rénovation complète en 2025.Dans cette résidence sécurisée, vous disposez également d' une cave privative de 6 m² en sous-sol et d'un local à vélo en commun.Cet appartement est Idéalement situé, à proximité immédiate, des commerces et commodités, des espaces verts, des transports en commun, à 5 min de la gare Saint- Jean et du Tram C arrêt "Conservatoire" ou "Tauzia", à 2 min arrêt de Bus Ligne G, 20, 31,60, TBNIGHT.De plus ,le projet Canopia nouvel essort urbain qui prévoit en 2027 l'implantation de commerces, bureaux, restaurants, rooftops, salles de sports, lieux événementiels et grand parc arboré... apportera une valorisation du bien par sa touche dynamique, moderne et économique à cet emplacement central.Idéal primo-accédant, investissement locatif (possible rentabilité à 6% en LMNP)Actuellement loué en bail mobilité fin 07/25 à 1500 euros C.COPPORTUNITE A SAISIRPrix : 270 000 euros Honoraires charge vendeur.DPE E GES BChauffage au gazMontant moyen estimé des dépenses annuelles d'énergie pour un usage standard établi à partir des prix de l'énergie des années 2021, 2022 et 2023 : entre 1810 et 2490 eurosPour visiter et vous accompagner dans votre projet, contactez Caroline BRINIS, au 0632211856 ou, par courriel à c.brinis@proprietes-privees.com.Selon l'article L.561.5 du Code Monétaire et Financier, pour l'organisation de la visite, la présentation d'une pièce d'identité vous sera demandée.Cette présente annonce a été rédigée sous la responsabilité éditoriale de Caroline BRINIS agissant sous le statut d'agent commercial immatriculé au RSAC BORDEAUX 833773054 auprès de SAS PROPRIETES PRIVEES, au capital de 44 920 euros, ZAC LE CHÊNE FERRÉ - 44 ALLÉE DES CINQ CONTINENTS 44120 VERTOU; SIRET 487 624 777 00040, RCS Nantes. Carte Professionnelle Transactions sur immeubles et fonds de commerce (T) et Gestion immobilière (G) n°CPI 4401 2016 000 010 388 délivrée par la CCI Nantes - Saint Nazaire. Compte séquestre n°30932508467 BPA SAINT-SEBASTIEN-SUR-LOIRE (44230). Garantie GALIAN - 89 rue de la Boétie, 75008 Paris - n°28137 J pour 2 000 000 euros pour T et 120 000 euros pour G. Assurance responsabilité civile professionnelle par GALIAN n° de police 28137.JMandat réf : 401041- Le professionnel garantit et sécurise votre projet immobilier.Copropriété de 34 lots.Charges annuelles : 1308 euros. Caroline BRINIS (EI) Agent Commercial - Numéro RSAC : BORDEAUX 833773054 - .Les informations sur les risques auxquels ce bien est exposé sont disponibles sur le site Géorisques : www. georisques. gouv. fr
72 m²
3 p
2 ch

Appartement
Ref. 437952GBK
258 000 €
3 486 €/m²
Annonce présentée en EXCLUSIVITE par Kévin GABILLAUDSitué dans le secteur recherché de Bordeaux Caudéran Pasteur, au sein d'une résidence bien entretenue, découvrez cet agréable appartement T3 de 74 m² en rez-de-chaussée, offrant confort et fonctionnalité.L'appartement se compose d'une entrée avec rangements, d'un séjour avec accès direct à la cuisine, de deux chambres, un dressing, d'une salle d'eau, ainsi que de WC séparés.L'ensemble est bien agencé et propose de beaux volumes.Vous profiterez également d'une terrasse de 8 m², idéale pour vos moments de détente.- Résidence calme et soignée- Double stationnement : une place de parking en sous-sol + une place extérieure- Quartier recherché, proche des commerces, transports et écolesUn bien complet, idéal pour une résidence principale ou un investissement de qualité dans un secteur prisé de Bordeaux. A découvrir sans tarder.Bus 16 au pied de la résidence ( arrêt Lièges)Gare de Caudéran - Mérignac à 600 mètresCette présente annonce a été rédigée sous la responsabilité éditoriale de Kevin GABILLAUD Mandataire Bordeaux Lacanau RSAC BORDEAUX sous le numéro 817511900.siège SAS PROPRIETES PRIVEES ZAC 44 allée des cinq continents 44120 VERTOU, CPI 4401 2016 000 010 388 CCI NantesMandat n°437952Prix honoraires inclus: 258 000 eurosHonoraires charge vendeursLes informations sur les risques auxquels ce bien est exposé sont disponibles sur le site Géorisques : www.georisques.gouv.frCopropriété de 93 lots - dont 29 lots habitation.Charges annuelles : 1080 euros. Kévin GABILLAUD (EI) Agent Commercial - Numéro RSAC : BORDEAUX 817 511 900 - .
74 m²
3 p
2 ch

Appartement
Ref. 441618MGA
268 000 €
3 884 €/m²
Gironde (33000) BORDEAUX, A vendre charmant appartement T4. Prix TTC 268000euros dont 3.99% de commission charge acquéreur, soit 10283euros TTC (pour 257717 euros prix net vendeur).Idéalement situé dans une belle rue du vieux Bordeaux historique, au calme, à deux pas de toutes les commodités (transports, dont les Tram A, B et F Station "Hôtel de ville", commerces, écoles...) et de la Place de l'Eglise Sainte Eulalie, cet appartement en triplex est absolument charmant.Occupant les 3 derniers niveaux de ce bel immeuble en pierre de taille, dont la belle façade en pierre a été récemment sablée, au deuxième étage sans ascenseur, cet appartement se vit comme une maison :De son salon/séjour avec cuisine moderne ouverte, un bel escalier de bois mène à deux chambres, qui se partagent une salle d'eau et des toilettes. Il dessert ensuite une troisième chambre, au dernier étage, qui dispose de sa propre salle de bains privative.Les matériaux (bois et pierre), se marient à merveille avec la douce lumière. A l'arrière de l'immeuble, donnant sur cour, il est coupé des trépidations de la ville.Rénové et en bon état, il est vendu libre. Déroulant 69m² au sol (55,43m² Loi Carrez), sa surface optimisée en T4, permet d'imaginerde l'occuper en résidence principale, d'y créer un Airbnb, une collocation ou tout simplement d'en retirer de la rentabilité locative. laissez-vous séduire par cet appartement original, dont la personnalité ne laissera personne indifférent.DPE DLes informations sur les risques auxquels ce bien est exposé sont disponibles sur le site Géorisques : www.georisques.gouv.frPour visiter et vous accompagner dans votre projet, contactez Myriam GALMAR, au 0613716350 ou par courriel à m.galmar@proprietes-privees.comSelon l'article L.561.5 du Code Monétaire et Financier, pour l'organisation de la visite, la présentation d'une pièce d'identité vous sera demandée.Cette présente annonce a été rédigée sous la responsabilité éditoriale de Myriam GALMAR agissant en qualité de conseiller immobilier indépendant sous portage salarial auprès de la SAS PROPRIETES PRIVEES, au capital de 40 000 euros, ZAC LE CHÊNE FERRÉ - 44 ALLÉE DES CINQ CONTINENTS 44120 VERTOU; SIRET 487 624 777 00040, RCS Nantes. Carte professionnelle Transactions sur immeubles et fonds de commerce (T) et Gestion immobilière (G) n° CPI 4401 2016 000 010 388 délivrée par la CCI Nantes - Saint Nazaire. Compte séquestre n°30932508467 BPA SAINT-SEBASTIEN-SUR-LOIRE (44230) ; Garantie GALIAN - 89 rue de la Boétie, 75008 Paris - n°28137 J pour 2 000 000 euros pour T et 120 000 euros pour G. Assurance responsabilité civile professionnelle par MMA Entreprise n° de police 120.137.405Mandat réf : 441618- Le professionnel garantit et sécurise votre projet immobilier. (3.99 % honoraires TTC à la charge de l'acquéreur.)Copropriété de 14 lots.Charges annuelles : 1060 euros. Myriam GALMAR (EI) Agent Commercial - Numéro RSAC : 539312231 Bordeaux - .
69 m²
4 p
3 ch

Appartement
Ref. 428668JOPE
199 500 €
4 071 €/m²
BORDEAUX MUSÉE D'AQUITAINE Bureau ou Appartement de type 2 en très bon état général situé au Rdc d'une petite copropriété. Il comprend une entrée, pièce de vie avec coin kitchenette, je chambre, un bureau, un wc séparé. Le logement étant aujourd'hui utilisé comme bureau, l'installation d'une salle de bains est a prévoir en sachant que les arrivées sont déjà existante. A cela s'ajoute une cave de 25m2 ainsi que la jouissante privative d'un patio extérieur Le logement est une habitation utilisé comme bureau par la propriétaire actuel depuis environ 10 ans. Centre ville, Proximité immédiate de tout commerce et du tram. Vois pourrez aisément en faire votre résidence Avec des charges de copropriété s'élevant à 339 euros par trimestre et une taxe foncière de 1099 euros,Pour visiter et vous accompagner dans votre projet, contactez Jordan PELAEZ, au 0618486235 ou, par courriel à jo.pelaez@proprietes-privees.com.Selon l'article L.561.5 du Code Monétaire et Financier, pour l'organisation de la visite, la présentation d'une pièce d'identité vous sera demandée.Cette présente annonce a été rédigée sous la responsabilité éditoriale de Jordan PELAEZ agissant sous le statut d'agent commercial immatriculé au RSAC BORDEAUX 953405438 auprès de SAS PROPRIETES PRIVEES, au capital de 44 920 euros, ZAC LE CHÊNE FERRÉ - 44 ALLÉE DES CINQ CONTINENTS 44120 VERTOU; SIRET 487 624 777 00040, RCS Nantes. Carte Professionnelle Transactions sur immeubles et fonds de commerce (T) et Gestion immobilière (G) n°CPI 4401 2016 000 010 388 délivrée par la CCI Nantes - Saint Nazaire. Compte séquestre n°30932508467 BPA SAINT-SEBASTIEN-SUR-LOIRE (44230). Garantie GALIAN-SMABTP - 89 rue de la Boétie, 75008 Paris - n°28137 J pour 2 000 000 euros pour T et 120 000 euros pour G. Assurance responsabilité civile professionnelle par GALIAN-SMABTP n° de police 28137.JMontant estimé des dépenses annuelles d'énergie pour un usage standard : entre 1050 euros et 1480 euros par an. Prix moyens des énergies indexés sur l'année 2023 (abonnements compris). Prix hors honoraires : 199500 euros Honoraires : 9000 eurosDate de réalisation du diagnostic : 08/08/2024. Les honoraires sont à la charge de l'acheteur.Certaines photos sont générées par l'IA et sont donc non contractuelles. (4.18 % honoraires TTC à la charge de l'acquéreur.)Copropriété de 8 lots - dont 5 lots habitation.Charges annuelles : 1360 euros. Jordan PELAEZ (EI) Agent Commercial - Numéro RSAC : BORDEAUX 953405438 - .Les informations sur les risques auxquels ce bien est exposé sont disponibles sur le site Géorisques : www. georisques. gouv. fr
49 m²
2 p
1 ch













