



St Aulaye : Maison hors d'eau hors d'air à aménager
Ref. 444347KARG
SAINT-AULAYE (24410)
90 000 €
947 €/m²
95 m²
4 pièces
3 chambres
Terrain de 1300m²
Atouts
Autres
Informations complémentaires
Description
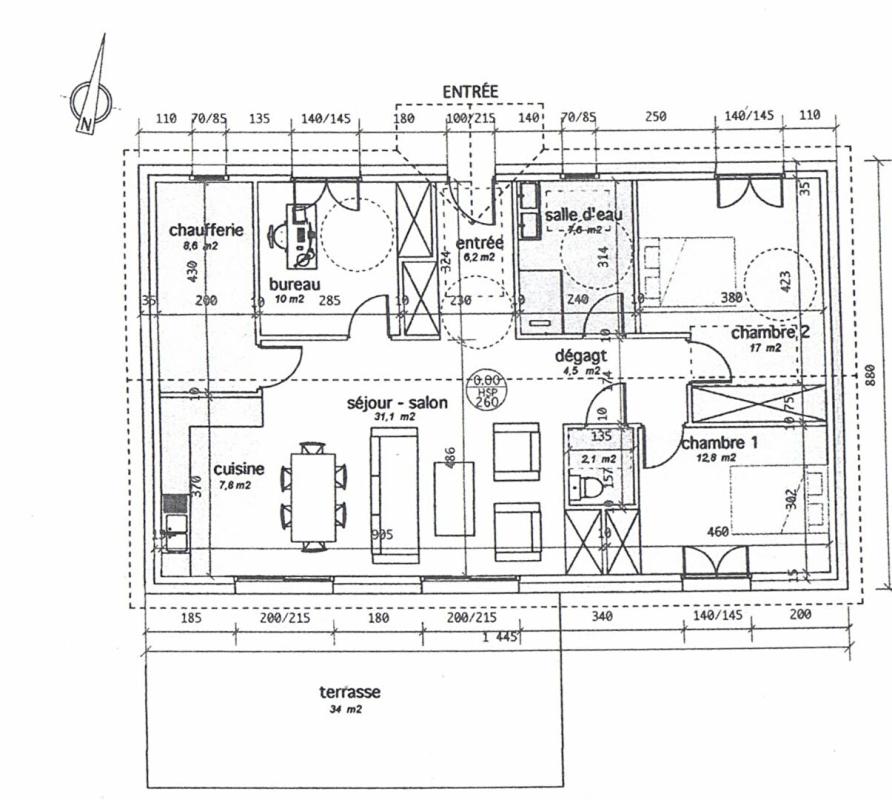
Karine Guimberteau, Propriétés Privées, vous propose cette opportunité.Maison de plain-pied restant à aménager : isolations, cloisons, cuisine, salle d'eau, et finitions. cf plan.Construite par des professionnels, décennales fournies.Assainissement individuel à prévoir.95 m² habitables environ, avec 3 chambres possibles.Terrain de 1.300m² avec vue dominante, au calme de la campagne périgourdine.A 5 km du centre de St-Aulaye Puymangou, charmante commune de Dordogne de 1500 habitants dispose de nombreux atouts : écoles, collège, centres médicaux, gendarmerie, caserne de pompiers, commerces et cinéma, marché hebdomadaire...La Roche Chalais : 10 minChalais : 14 minAubeterre sur Dronne : 18 minLibourne : 47 minPérigueux : 1 hAngoulême : 1 hNon soumis au DPEPour visiter et vous accompagner dans votre projet, contactez Karine GUIMBERTEAU, au 0684220889 ou, par courriel à k.guimberteau@proprietes-privees.com.Selon l'article L.561.5 du Code Monétaire et Financier, pour l'organisation de la visite, la présentation d'une pièce d'identité vous sera demandée.Cette présente annonce a été rédigée sous la responsabilité éditoriale de Karine GUIMBERTEAU agissant sous le statut d'agent commercial immatriculé au RSAC libourne 899227896 auprès de SAS PROPRIETES PRIVEES, au capital de 44 920 euros, ZAC LE CHÊNE FERRÉ - 44 ALLÉE DES CINQ CONTINENTS 44120 VERTOU; SIRET 487 624 777 00040, RCS Nantes. Carte Professionnelle Transactions sur immeubles et fonds de commerce (T) et Gestion immobilière (G) n°CPI 4401 2016 000 010 388 délivrée par la CCI Nantes - Saint Nazaire. Compte séquestre n°30932508467 BPA SAINT-SEBASTIEN-SUR-LOIRE (44230). Garantie GALIAN-SMABTP - 89 rue de la Boétie, 75008 Paris - n°28137 J pour 2 000 000 euros pour T et 120 000 euros pour G. Assurance responsabilité civile professionnelle par GALIAN-SMABTP n° de police 28137.JMandat réf : 444.347 - Le professionnel garantit et sécurise votre projet immobilier. (8.11 % honoraires TTC à la charge de l'acquéreur.) Karine GUIMBERTEAU (EI) Agent Commercial - Numéro RSAC : libourne 899227896 - .
Ce bien vous est présenté par
Karine GUIMBERTEAU

Les biens à proximité

Maison
Ref. 440713MND
399 000 €
3 297 €/m²
24590 SALIGNAC EYVIGUES. Maison en pierre, Studio, piscine.Prix de vente : 399 000 euros (Honoraires : 3.91% TTC inclus charge acquéreur soit 384 000 euros hors honoraires).Située en périphérie du village de Salignac, Périgord Noir, à proximité de Sarlat, Montignac Lascaux et Souillac, cette belle propriété offre un cadre authentique et paisible, à proximité des écoles et commerces.La propriété se compose d'une maison principale en pierre ainsi que d'une annexe/extension en bois d'une superficie habitable de 121 m².Entièrement rénovée avec goût (toitures neuves), l'ensemble des bâtiments bénéficie de matériaux et d'équipements de qualité, dont la climatisation et une très bonne isolation , garantissant un confort optimal en toute saison.Pensé pour la détente et la convivialité, l'extérieur propose de nombreux espaces de loisirs : espace bien-être avec jacuzzi et sauna, terrain de pétanque, bar extérieur, piscine chauffée et sécurisée de 8/4 avec plage et wc.Le terrain fleuri et arboré de 783 m² est entièrement clôturéProche des sites touristiques majeurs et actuellement exploité en gîte de location, pouvant accueillir jusqu'à 10 personnes, ce bien présente une excellente rentabilité locative, offrant une opportunité idéale pour un investissement touristique ou résidence secondaire mais également pour l'installation d'une famille.DPE : Classe C GES : classe A . Montant moyen estimé des dépenses annuelles d'énergie pour un usage standard établi à partir des prix de l'énergie de l'année 2021 : entre 740 euros et 1002 eurosPour visiter et vous accompagner dans votre projet, contactez Marie Noëlle DEBET, au 0681708778 ou, par courriel à mn.debet@proprietes-privees.com.Selon l'article L.561.5 du Code Monétaire et Financier, pour l'organisation de la visite, la présentation d'une pièce d'identité vous sera demandée.Cette présente annonce a été rédigée sous la responsabilité éditoriale de Marie-Noëlle DEBET agissant sous le statut d'agent commercial immatriculé au RSAC PERIGUEUX 398015420 auprès de SAS PROPRIETES PRIVEES, au capital de 44 920 euros, ZAC LE CHÊNE FERRÉ - 44 ALLÉE DES CINQ CONTINENTS 44120 VERTOU; SIRET 487 624 777 00040, RCS Nantes. Carte Professionnelle Transactions sur immeubles et fonds de commerce (T) et Gestion immobilière (G) n°CPI 4401 2016 000 010 388 délivrée par la CCI Nantes - Saint Nazaire. Compte séquestre n°30932508467 BPA SAINT-SEBASTIEN-SUR-LOIRE (44230). Garantie GALIAN-SMABTP - 89 rue de la Boétie, 75008 Paris - n°28137 J pour 2 000 000 euros pour T et 120 000 euros pour G. Assurance responsabilité civile professionnelle par GALIAN-SMABTP n° de police 28137.JMandat réf : 440713MND - Le professionnel garantit et sécurise votre projet immobilierLes informations sur les risques auxquels ce bien est exposé sont disponibles sur le site Géorisques http://www.georisques.gouv.fr. (3.91 % honoraires TTC à la charge de l'acquéreur.) Marie-Noëlle DEBET (EI) Agent Commercial - Numéro RSAC : PERIGUEUX 398015420 - .
121 m²
7 p
4 ch

Maison
Ref. 441330MND
520 000 €
1 890 €/m²
24590 SALIGNAC EYVIGUES. Maison de caractère , terrain de 1457 m². Prix de vente : 520 000 euros (honoraires charge vendeur).Située au coeur du Périgord Noir entre Souillac, Sarlat, et Montignac Lascaux, cette magnifique propriété, ancien relais de poste, sur 3 niveaux, pleine de charme et d'authenticité, à proximité de toutes commodités, se compose d'une maison de 275 m² habitables, lumineuse et spacieuse, rénovée avec goût et matériaux de qualité.Au RDC : grande entrée avec cheminée, une 2ème entrée/buanderie, salle de douche, WC, cuisine d'été, garage, cave, atelier, local de rangement, à l'étage, salon/salle à manger de 82 m², cuisine équipée, 3 chambres, bureau, SDB, wc et au 2ème niveau : chambre et grand grenier aménageable.Le parc fleuri et arboré avec vue sur le château à l'ouest et vue sur la campagne environnante à l'est, est agrémenté d'un four à pain rénové et fonctionnel et d'un garage couvert..DPE : classe E GES : classe B. Montant moyen estimé des dépenses annuelles d'énergie pour un usage standard établi à partir des prix de l'énergie des années 2021,2022, 2023 : entre 4907 euros et 6639 euros.Pour visiter et vous accompagner dans votre projet, contactez Marie Noëlle DEBET, au 0681708778 ou, par courriel à mn.debet@proprietes-privees.com.Selon l'article L.561.5 du Code Monétaire et Financier, pour l'organisation de la visite, la présentation d'une pièce d'identité vous sera demandée.Cette présente annonce a été rédigée sous la responsabilité éditoriale de Marie-Noëlle DEBET agissant sous le statut d'agent commercial immatriculé au RSAC PERIGUEUX 398015420 auprès de SAS PROPRIETES PRIVEES, au capital de 44 920 euros, ZAC LE CHÊNE FERRÉ - 44 ALLÉE DES CINQ CONTINENTS 44120 VERTOU; SIRET 487 624 777 00040, RCS Nantes. Carte Professionnelle Transactions sur immeubles et fonds de commerce (T) et Gestion immobilière (G) n°CPI 4401 2016 000 010 388 délivrée par la CCI Nantes - Saint Nazaire. Compte séquestre n°30932508467 BPA SAINT-SEBASTIEN-SUR-LOIRE (44230). Garantie GALIAN-SMABTP - 89 rue de la Boétie, 75008 Paris - n°28137 J pour 2 000 000 euros pour T et 120 000 euros pour G. Assurance responsabilité civile professionnelle par GALIAN-SMABTP n° de police 28137.JMandat réf : 441330MND - Le professionnel garantit et sécurise votre projet immobilierLes informations sur les risques auxquels ce bien est exposé sont disponibles sur le site Géorisques http://www.georisques.gouv.fr. Marie-Noëlle DEBET (EI) Agent Commercial - Numéro RSAC : PERIGUEUX 398015420 - .
275 m²
7 p
4 ch

Maison
Ref. 440733KARG
204 000 €
689 €/m²
Karine Guimberteau, Propriétés Privées, vous propose ces 2 maisons.Ces 2 maisons de plain-pied restent à aménager : isolations, cloisons, cuisine, salle d'eau, et finitions. cf plansAssainissements individuels à prévoir.Elles proposent, si vous le souhaitez : chacune 3 chambres, une maison de 95 m² habitables environ et une maison de 120 m² habitables environ.Elles sont à proximité l'une de l'autre mais non mitoyennes. Elle sont totalement indépendantesTerrain de 2.700m² avec vue dominante, sans vis-à-vis, au calme de la campagne périgourdine.St-Aulaye Puymangou, charmante commune de Dordogne de 1500 habitants dispose de nombreux atouts : écoles, collège, centres médicaux, gendarmerie, caserne de pompiers, commerces et cinéma, marché hebdomadaire...La Roche Chalais : 10 minChalais : 14 minAubeterre sur Dronne : 18 minLibourne : 47 minPérigueux : 1 hAngoulême : 1 hNon soumis au DPEPour visiter et vous accompagner dans votre projet, contactez Karine GUIMBERTEAU, au 0684220889 ou, par courriel à k.guimberteau@proprietes-privees.com.Selon l'article L.561.5 du Code Monétaire et Financier, pour l'organisation de la visite, la présentation d'une pièce d'identité vous sera demandée.Cette présente annonce a été rédigée sous la responsabilité éditoriale de Karine GUIMBERTEAU agissant sous le statut d'agent commercial immatriculé au RSAC libourne 899227896 auprès de SAS PROPRIETES PRIVEES, au capital de 44 920 euros, ZAC LE CHÊNE FERRÉ - 44 ALLÉE DES CINQ CONTINENTS 44120 VERTOU; SIRET 487 624 777 00040, RCS Nantes. Carte Professionnelle Transactions sur immeubles et fonds de commerce (T) et Gestion immobilière (G) n°CPI 4401 2016 000 010 388 délivrée par la CCI Nantes - Saint Nazaire. Compte séquestre n°30932508467 BPA SAINT-SEBASTIEN-SUR-LOIRE (44230). Garantie GALIAN-SMABTP - 89 rue de la Boétie, 75008 Paris - n°28137 J pour 2 000 000 euros pour T et 120 000 euros pour G. Assurance responsabilité civile professionnelle par GALIAN-SMABTP n° de police 28137.JMandat réf : 440.733- Le professionnel garantit et sécurise votre projet immobilier. (6.00 % honoraires TTC à la charge de l'acquéreur.) Karine GUIMBERTEAU (EI) Agent Commercial - Numéro RSAC : libourne 899227896 - .
296 m²
8 p
6 ch




