



75015 PARIS Javel - Appartement T3 avec jardin - 67.4m2 - Proximité Beaugrenelle, Tour Eiffel, Seine
Ref. 445140SARZ
PARIS-15E-ARRONDISSEMENT (75015)
569 000 €
8 492 €/m²
67 m²
3 pièces
2 chambres
Rez de chaussée
Atouts
Autres
Informations complémentaires
Classe énérgétique
Emissions GES
Description
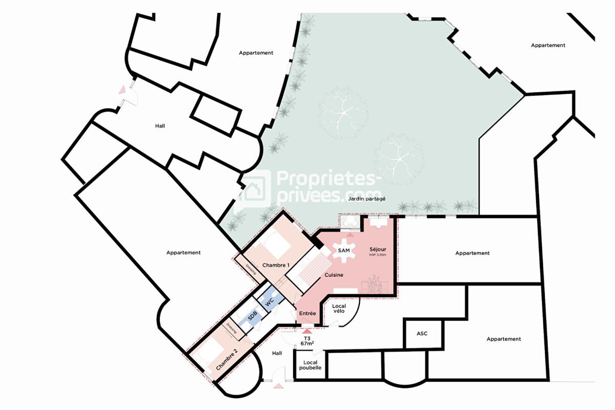
Un appartement aux volumes exceptionnels et ouvert sur la nature :En rez-de-jardin, ce 3 pièces de 67,4 m² séduit par sa hauteur sous plafond impressionnante et rare de 3,35 m.A proximité immédiate de la Seine, de la Tour Eiffel et de Beaugrenelle, découvrez ce bien rare niché au calme absolu, au sein d'un ensemble architectural emblématique des années 1990 .- Au Rez-de-jardin, à proximité immédiaté du hall d'entrée et du local vélo- Un séjour lumineux avec cuisine ouverte et espace salle à manger de 30m2- Une distribution optimisée avec un coin nuit distinct :- Deux chambres (12m2 et 15m2) équipées d'un dressing intégré portes coulissantes- Une cave au-sous complète ce bien- Local vélo à proximitéLe séjour s'ouvre sur un jardin de copropriété arboré, prolongé par une agréable terrasse en bois, véritable pièce de vie extérieure. Accessible par une porte-fenêtre.L'exposition Est et les arbres apportent une atmosphère paisible, intime et verdoyante.- Charges annuelles: 2500 euros- Appel des fonds 620 EURO / an- Appel des fonds ALUR 62 EURO / trimestre- Taxe foncière: 1 509 euros- Electricité 160 euro / mois- Pas de procédure en cours- Prochaine AG - Décembre- DTG effectué en novembre 2025- Immeuble de 7 étages- la fibre sera installée prochainementSols :- Séjour : Parquet chêne massif mozaïque- Chambres : Parquet- Cuisine, Salle de bain, WC - CarrelageEquipements :- Cuisine équipée : Frigo, Congélateur, Lave-vaisselle, Evier, Four, Plaques, Hotte- Porte d'entrée sécurisée- Volets-roulants méchaniques sur toutes les fenêtres- Volets eléctriques sur la porte-fenêtreTransports :- Métro Javel Ligne 10 (3min)- RER C Javel (3min)- Métro Félix Faure Ligne 8 (15min)- Station Vélib (1min)Espaces verts :- Parc André Citroën - Ballon de Paris (4min)-Île aux cygnes (15min)- Parc Sainte-Périne (15min)Commerces etc :- Galeries Lafayette Beaugrenelle (15min)- Hôpital Européen Georges Pompidou (9min)- Radio France (15min)Les atouts :- Extérieur rare à Paris- Calme absolu- Volumes exceptionnels- Résidence de standing avec façade en céramique typique- Adresse recherchée à proximité immédiate des transports et commodités- Parfait pour profession libéraleUn bien singulier, alliant nature, lumière et emplacement premium, idéal pour un cadre de vie unique au coeur de la capitale.Prix de vente 569 000 euros dont 4,00 % honoraire inclus à la charge de l'acquéreur soit prix net vendeur 547 100 euros.DPE E GES CMontant estimé des dépenses annuelles d'énergie pour un usage standard entre 1770 et 2410 euros indexées aux années 2021, 2022 et 2023.Mandat référence 445140Pour visiter et vous accompagner dans votre projet, contactez Sarah ASLANI, au 0695603457 ou, par courriel à sa.aslani@proprietes-privees.com.Selon l'article L.561.5 du Code Monétaire et Financier, pour l'organisation de la visite, la présentation d'une pièce d'identité vous sera demandée.Cette présente annonce a été rédigée sous la responsabilité éditoriale de Sarah ASLANI agissant sous le statut d'agent commercial immatriculé au RSAC PARIS 934159542 auprès de SAS PROPRIETES PRIVEES, au capital de 44 920 euros, ZAC LE CHÊNE FERRÉ - 44 ALLÉE DES CINQ CONTINENTS 44120 VERTOU; SIRET 487 624 777 00040, RCS Nantes. Carte Professionnelle Transactions sur immeubles et fonds de commerce (T) et Gestion immobilière (G) n°CPI 4401 2016 000 010 388 délivrée par la CCI Nantes - Saint Nazaire. Compte séquestre n°30932508467 BPA SAINT-SEBASTIEN-SUR-LOIRE (44230). Garantie GALIAN-SMABTP - 89 rue de la Boétie, 75008 Paris - n°28137 J pour 2 000 000 euros pour T et 120 000 euros pour G. Assurance responsabilité civile professionnelle par GALIAN-SMABTP n° de police 28137.J (4.00 % honoraires TTC à la charge de l'acquéreur.)Copropriété de 318 lots - dont 107 lots habitation.Charges annuelles : 744 euros. Sarah ASLANI (EI) Agent Commercial - Numéro RSAC : PARIS 934159542 - .Les informations sur les risques auxquels ce bien est exposé sont disponibles sur le site Géorisques : www. georisques. gouv. fr
Ce bien vous est présenté par
Sarah ASLANI

Les biens à proximité

Appartement
Ref. 452401ACOL
295 000 €
9 516 €/m²
Alexandrine Collard vous propose cet appartement de 32 m² (31,75 m2 carrez) organisé en T2, situé au 4? étage d'un immeuble de caractère datant de 1928, situé Paris 15e, rue Labrouste, au coeur d'un environnement particulièrement calme, à proximité de la Porte de Vanves et du parc Georges Brassens.Ce charmant deux pièces a su conserver tout le cachet de l'ancien avec son parquet et son authenticité d'époque. Donnant entièrement sur cour, il offre un cadre de vie paisible, tout en restant à quelques pas des commerces et des transports (métro Porte de Vanves).L'appartement, exposé nord-ouest, bénéficie d'une belle luminosité avec un ensoleillement agréable dès le début d'après-midi sur la pièce de vie et la cuisine.Des travaux de rafraîchissement sont à prévoir, mais son véritable atout réside dans sa modularité totale : l'absence de murs porteurs permet de repenser entièrement les volumes selon vos envies, un avantage précieux pour créer un espace sur mesure.Idéal primo-accédants :Un bien accessible dans un secteur recherché, offrant calme, charme de l'ancien et potentiel d'aménagement, parfait pour un premier achat personnalisé.Idéal investisseurs :Situation géographique stratégique dans le 15? arrondissement, forte demande locative, proximité des transports, des commerces et d'un espace vert prisé avec le parc Georges Brassens. Optimisation possible du plan pour maximiser la rentabilité.Informations complémentaires :Charges mensuelles : 165 euros (soit 2 100 euros / an, incluant le chauffage collectif)Taxe foncière : 800 eurosCopropriété très bien entretenue de 43 lots, dont 40 à usage d'habitationPrix : 295 000 euros FAIDont 5,73 % d'honoraires à la charge de l'acquéreur, soit 279 000 euros net vendeurUn bien rare sur le secteur, alliant calme, potentiel et emplacement recherché. A visiter sans tarder.DPE G GES GMontant estimé des dépenses annuelles d'énergie pour un usage standard entre 1270 et 1730 euros indexées aux années 2021, 2022 et 2023 . Logement à consommation énergétique excessive : classe G.Pour visiter et vous accompagner dans votre projet, contactez ALEXANDRINE COLLARD, au 0786888992 ou, par courriel à a.collard@proprietes-privees.com.Selon l'article L.561.5 du Code Monétaire et Financier, pour l'organisation de la visite, la présentation d'une pièce d'identité vous sera demandée.Cette présente annonce a été rédigée sous la responsabilité éditoriale de ALEXANDRINE COLLARD agissant sous le statut d'agent commercial immatriculé au RSAC CHALON EN CHAMPAGNE 791164510 auprès de SAS PROPRIETES PRIVEES, au capital de 44 920 euros, ZAC LE CHÊNE FERRÉ - 44 ALLÉE DES CINQ CONTINENTS 44120 VERTOU; SIRET 487 624 777 00040, RCS Nantes. Carte Professionnelle Transactions sur immeubles et fonds de commerce (T) et Gestion immobilière (G) n°CPI 4401 2016 000 010 388 délivrée par la CCI Nantes - Saint Nazaire. Compte séquestre n°30932508467 BPA SAINT-SEBASTIEN-SUR-LOIRE (44230). Garantie GALIAN-SMABTP - 89 rue de la Boétie, 75008 Paris - n°28137 J pour 2 000 000 euros pour T et 120 000 euros pour G. Assurance responsabilité civile professionnelle par GALIAN-SMABTP n° de police 28137.JMandat réf : 452401 - Le professionnel garantit et sécurise votre projet immobilier. (5.73 % honoraires TTC à la charge de l'acquéreur.)Copropriété de 43 lots - dont 40 lots habitation.Charges annuelles : 1990 euros. ALEXANDRINE COLLARD (EI) Agent Commercial - Numéro RSAC : CHALON EN CHAMPAGNE 791164510 - .Les informations sur les risques auxquels ce bien est exposé sont disponibles sur le site Géorisques : www. georisques. gouv. fr
31 m²
2 p
1 ch

Appartement
Ref. 452321ALBD
890 000 €
12 361 €/m²
Exclusivité - Situé au coeur du Marais, à 50 mètres de la place Sainte-Catherine, cet appartement traversant de 72,03 m² (loi Carrez) se trouve au 4e étage d'une charmante copropriété du XVIIe siècle à l'atmosphère calme, verdoyante et préservée.Au calme absolu, ce bien donne sur deux charmantes cours pavées. Il bénéficie d'une exposition Est Ouest, de vues dégagées et d'un bel ensoleillement traversant. Sans perte de place, Il se compose d'une entrée, d'un séjour avec cheminée et poutres apparentes, d'une cuisine ouverte, de deux chambres dont une avec dressing, d'une salle de bains avec fenêtre et de toilettes séparées. Métro Saint Paul à 150m.Des travaux sont à prévoir, offrant l'opportunité de révéler tout le potentiel de cet appartement situé dans un secteur recherché.Prix de vente : 890 000 euros (honoraires de 4% TTC à la charge de l'acquéreur, soit 854 400 euros hors honoraires). Le bien est soumis au statut de la copropriété. Copropriété de 116 lots dont 107 à usage d'habitation. Pas de procédure en cours.Charges de copropriété annuelles : 2443 eurosCotisation annuelle Fond travaux (Alur) : 125 eurosDPE : E - GES : CMontant estimé des dépenses annuelles d'énergie pour un usage standard : entre 1790 euros et 2 460 euros (indexées sur les années 2021, 2022 et 2023).Pour visiter et vous accompagner dans votre projet, contactez Albéric d'AMECOURT au 06 14 83 85 67 ou par email : a.damecourt@proprietes-privees.com.Conformément à l'article L.561-5 du Code monétaire et financier, une pièce d'identité pourra être demandée lors de la visite.Cette annonce a été rédigée sous la responsabilité éditoriale d'Albéric d'AMECOURT, agent commercial immatriculé au RSAC de Nanterre n° 791 967 318, auprès de la SAS PROPRIETES PRIVEES, ZAC Le Chêne Ferré, 44 allée des Cinq Continents, 44120 Vertou. SIRET 487 624 777 00040. RCS Nantes.Carte professionnelle Transactions et Gestion n° CPI 4401 2016 000 010 388 (CCI Nantes - Saint-Nazaire). Garantie financière GALIAN-SMABTP (2 000 000 euros en Transaction / 120 000 euros en Gestion). Assurance responsabilité civile professionnelle GALIAN-SMABTP n° 28137.J. Mandat réf : 452321. Le professionnel garantit et sécurise votre projet immobilier. (4.17 % honoraires TTC à la charge de l'acquéreur.)Copropriété de 116 lots - dont 107 lots habitation.Charges annuelles : 2443 euros. Albéric d'AMÉCOURT (EI) Agent Commercial - Numéro RSAC : 791967318 Nanterre - .Les informations sur les risques auxquels ce bien est exposé sont disponibles sur le site Géorisques : www. georisques. gouv. fr
72 m²
3 p
2 ch

Appartement
Ref. 444530SARZ
92 990 €
11 623 €/m²
Au coeur du 8ème arrondissement, dans un environnement chic, calme et parfaitement entretenu, découvrez cette chambre pleine de charme, nichée au dernier étage.Vue dégagée sur les toits de Paris avec le Sacré-Coeur en toile de fond, parquet massif, cheminée authentique, une véritable atmosphère parisienneOptimisée et lumineuse, elle offre :- 8,44 m² au sol- 20m3- une belle hauteur sous plafond (2,58 m)- lit clic-clac- un évier (arrivée et évacuation d'eau)- un espace de vie fonctionnel avec rangements- Deux WC sur le palier, à proximité immédiate.- Copropriété très soignée, parfaitement tenue- Stationnement vélo sécurisé dans la cour intérieureUn vrai cocon parisien, idéal pied-à-terre.Emplacement exceptionnel :- la Gare Saint-Lazare- le Parc Monceau- les Galeries Lafayette- l'Église Saint-Augustin- la Madeleine- le Palais de l'ÉlyséeQuartier vivant et élégant : cafés, commerces, transports, tout est au pied de l'immeuble.L'immeuble donne sur une rue piétonne avec plein de petits restaurants; G20 et Franprix à proximité.Dans un quartier recherché, calme et soigné, à proximité immédiate de toutes commodités :- commerces, cafés, écoles- transports et grands axesUne opportunité rare de créer un petit bijou au coeur de Paris.Charges copropropriété - 40 euros / moisTaxe foncière : 180 EurosDesignation Titre de propriété : ChambrePrix : 92.990 euros FAI(86.990 euros net vendeur + 6.000 euros honoraires TTC charge acquéreur)Bien non soumis au DPE.Pour visiter et vous accompagner dans votre projet, contactez Sarah ASLANI, au 06 95 60 34 57 ou, par courriel à sa.aslani@proprietes-privees.com.Selon l'article L.561.5 du Code Monétaire et Financier, pour l'organisation de la visite, la présentation d'une pièce d'identité vous sera demandée.Cette présente annonce a été rédigée sous la responsabilité éditoriale de Sarah ASLANI agissant sous le statut d'agent commercial immatriculé au RSAC PARIS 934159542 auprès de SAS PROPRIETES PRIVEES, au capital de 44 920 euros, ZAC LE CHÊNE FERRÉ - 44 ALLÉE DES CINQ CONTINENTS 44120 VERTOU; SIRET 487 624 777 00040, RCS Nantes. Carte Professionnelle Transactions sur immeubles et fonds de commerce (T) et Gestion immobilière (G) n°CPI 4401 2016 000 010 388 délivrée par la CCI Nantes - Saint Nazaire. Compte séquestre n°30932508467 BPA SAINT-SEBASTIEN-SUR-LOIRE (44230). Garantie GALIAN-SMABTP - 89 rue de la Boétie, 75008 Paris - n°28137 J pour 2 000 000 euros pour T et 120 000 euros pour G. Assurance responsabilité civile professionnelle par GALIAN-SMABTP n° de police 28137.JMandat réf : 444530 - Le professionnel garantit et sécurise votre projet immobilier. (6.53 % honoraires TTC à la charge de l'acquéreur.) (6.90 % honoraires TTC à la charge de l'acquéreur.)Copropriété de 66 lots - dont 62 lots habitation.Charges annuelles : 700 euros. Sarah ASLANI (EI) Agent Commercial - Numéro RSAC : PARIS 934159542 - .Les informations sur les risques auxquels ce bien est exposé sont disponibles sur le site Géorisques : www. georisques. gouv. fr
8 m²
1 p
1 ch

Appartement
Ref. 452384ACOL
400 000 €
13 793 €/m²
Alexandrine Collard vous propose ce studio de 30m² (29,55 m² carres), situé au 1er étage avec ascenseur d'une copropriété des années 60, très bien entretenue, au coeur du très recherché quartier de Chaillot.Idéalement placé entre l'Avenue de la Grande Armée et l'Avenue Foch, à mi-chemin entre l'Arc de Triomphe et le Bois de Boulogne, cet appartement bénéficie d'un environnement privilégié, à la fois central, résidentiel et calme.Le bien se compose d'un plan en étoile optimisé avec une entrée distribuant :une pièce de vie de 20 m², lumineuse, orientée sud-estune cuisine indépendante de 5 m², orientée nord-ouestune salle de bains avec WCLe studio donne sur rue, dans une voie peu passante et paisible, offrant une vue dégagée.Caractéristiques :Immeuble avec ascenseur (1960)Chauffage collectif (chaudière récente)Copropriété de 17 lots, saine et bien géréeAucun travaux à prévoir dans la copropriétéCharges : 450 euros / trimestre (incluant le chauffage)Prix : 400 000 euros honoraires : 5.26% TTC inclus charge acquéreur soit 380 000 euros hors honoraires.Des travaux de rénovation globale sont à prévoir .Ce studio représente un bien idéal pour un premier achat, grâce à son emplacement sécurisé et prestigieux ou pour un investisseur, avec une adresse recherchée, garante d'une forte demande locative et d'une bonne valorisation à long termeDPE : E GES : DMontant estimé des dépenses annuelles d'énergie pour un usage standard entre 650 et 930 euros indexées aux années 2021, 2022 et 2023Pour visiter et vous accompagner dans votre projet, contactez ALEXANDRINE COLLARD, au 0786888992 ou, par courriel à a.collard@proprietes-privees.com.Selon l'article L.561.5 du Code Monétaire et Financier, pour l'organisation de la visite, la présentation d'une pièce d'identité vous sera demandée.Cette présente annonce a été rédigée sous la responsabilité éditoriale de ALEXANDRINE COLLARD agissant sous le statut d'agent commercial immatriculé au RSAC CHALON EN CHAMPAGNE 791164510 auprès de SAS PROPRIETES PRIVEES, au capital de 44 920 euros, ZAC LE CHÊNE FERRÉ - 44 ALLÉE DES CINQ CONTINENTS 44120 VERTOU; SIRET 487 624 777 00040, RCS Nantes. Carte Professionnelle Transactions sur immeubles et fonds de commerce (T) et Gestion immobilière (G) n°CPI 4401 2016 000 010 388 délivrée par la CCI Nantes - Saint Nazaire. Compte séquestre n°30932508467 BPA SAINT-SEBASTIEN-SUR-LOIRE (44230). Garantie GALIAN-SMABTP - 89 rue de la Boétie, 75008 Paris - n°28137 J pour 2 000 000 euros pour T et 120 000 euros pour G. Assurance responsabilité civile professionnelle par GALIAN-SMABTP n° de police 28137.JMandat réf : 452384 - Le professionnel garantit et sécurise votre projet immobilier. (5.26 % honoraires TTC à la charge de l'acquéreur.)Copropriété de 16 lots - dont 13 lots habitation.Charges annuelles : 1800 euros. ALEXANDRINE COLLARD (EI) Agent Commercial - Numéro RSAC : CHALON EN CHAMPAGNE 791164510 - .Les informations sur les risques auxquels ce bien est exposé sont disponibles sur le site Géorisques : www. georisques. gouv. fr
29 m²
1 p








