



Appartement T2 de 38 m2, vendu meublé. Vannes Albert 1er Kercado
Ref. 445891FSN
VANNES (56000)
139 800 €
3 678 €/m²
38 m²
2 pièces
1 chambres
1 WC
Rez de chaussée
Atouts
Interphone
Autres
Informations complémentaires
Classe énérgétique
Emissions GES
Description
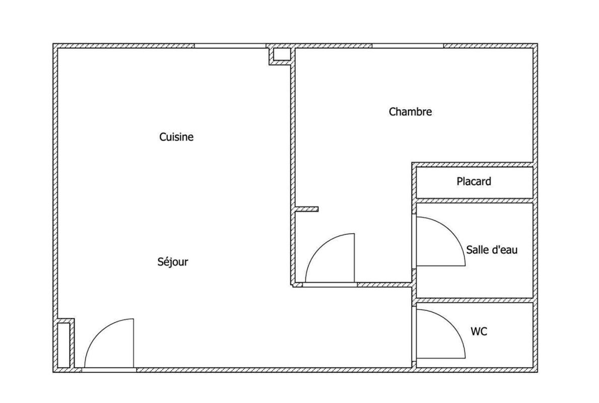
En EXCLUSIVITE ! Frédéric Fresneau Propriétés Privées Immobilier, vous présente « Flo », un charmant appartement de type 2, vendu entièrement meublé. Il bénéficie d'une belle atmosphère grâce à l'harmonie des matières utilisées et à la distribution des pièces. Situé sur la commune de VANNES, au rez de chaussée de la résidence François Fromentin, à proximité du Quartier Albert 1er et à 10 minutes à pied du Port, des commerces et de la Place de Lices.DESCRIPTION : Il présente une belle pièce de vie lumineuse, avec cuisine ouverte, aménagée et entièrement équipée. Une agréable chambre avec placard et salle de douche. WC séparés.EXPOSITION OUEST.COTE TECHNIQUE : Copropriété de 1969 sécurisée avec interphone, menuiseries PVC double vitrage. Chauffage et eau chaude sanitaire électrique. Ballon d'eau chaude changé en 2025. FIBRE optique.Assainissement : tout à l'égoutFaibles charges de copropriété : 26eur/moisCommodités et transports en commun à proximité.Vous serez séduits par cet appartement aux volumes généreux et agréables.Idéal pour une résidence principale, secondaire ou pour un investissement locatif.Pour visiter et vous accompagner dans votre projet, contactez Frédéric Fresneau au 0642687847 ou par courriel à f.fresneau@proprietes-privees.com.-------------------------------------Selon l'article L.561.5 du Code Monétaire et Financier, pour l'organisation de la visite, la présentation d'une pièce d'identité vous sera demandée. Cette annonce a été rédigée sous la responsabilité éditoriale de Frédéric Fresneau agissant sous le statut d'agent commercial immatriculé au RSAC Vannes 437 729 973 auprès de SAS PROPRIETES PRIVEES, au capital de 44 920 euros, ZAC LE CHÊNE FERRÉ - 44 ALLÉE DES CINQ CONTINENTS 44120 VERTOU ; SIRET 487 624 777 00040, RCS Nantes. Carte Professionnelle Transactions sur immeubles et fonds de commerce (T) et Gestion immobilière (G) n°CPI 4401 2016 000 010 388 délivrée par la CCI Nantes - Saint Nazaire. Compte séquestre n°30932508467 BPA SAINT-SEBASTIEN-SUR-LOIRE (44230). Garantie GALIAN-SMABTP - 89 rue de la Boétie, 75008 Paris - n°28137 J pour 2 000 000 euros pour T et 120 000 euros pour G. Assurance responsabilité civile professionnelle par GALIAN-SMABTP n° de police 28137.J Mandat réf : - DPE GES . Montant estimé des dépenses annuelles d'énergie pour un usage standard entre et euros indexées aux années 2021, 2022 et 2023 (ou 2021 uniquement) (si logement F ou G 'Logement à consommation énergétique excessive : classe F ou G') . Le professionnel garantit et sécurise votre projet . (5.91 % honoraires TTC à la charge de l'acquéreur.)Copropriété de 424 lots - dont 167 lots habitation.Charges annuelles : 320 euros. Frédéric FRESNEAU (EI) Agent Commercial - Numéro RSAC : Vannes 437729973 - .Les informations sur les risques auxquels ce bien est exposé sont disponibles sur le site Géorisques : www. georisques. gouv. fr
Ce bien vous est présenté par
Frédéric FRESNEAU

Les biens à proximité

Appartement
Ref. 444022DUI
999 150 €
5 912 €/m²
En plein centre du coeur historique de Vannes, situé dans une copropriété intimiste, cet appartement triplex récent et rare au 3ème et dernier étage bénéficie de son propre ascenseur vous menant directement dans la pièce de vie.Dès l'arrivée, un palier raffiné avec vestiaire donne le ton. Vous serez séduit par un superbe séjour salle à manger , sublimé par une cheminée à bois, offrant une atmosphère chaleureuse et distinguée. La cuisine semi-ouverte de 18 m², aux prestations haut de gamme, séduira les amateurs d'art de vivre et de gastronomie.Ce niveau accueille également une arrière-cuisine (ou espace atelier/bureau), ainsi qu'une élégante suite parentale disposant de sa salle d'eau privative, d'un dressing et de toilettes séparées.A l'étage inférieur que l'on rejoint par un superbe escalier bois ou par l'ascenseur privé, se trouve l'espace nuit qui propose quatre belles chambres de plus de 12 m² chacune, toutes équipées d'un point d'eau indépendant avec son lavabo. Un confort rare et recherché. Une salle de bains complète (douche et baignoire), des toilettes séparées et une véritable buanderie aménagée viennent parfaire cet agencement familial particulièrement fonctionnel.Un escalier de service permettant d'atteindre le rdc permet d'accéder à un espace cave comprenant une réserve à bois et une cave à vins, idéal pour les amateurs.Bien que sans extérieur, ce bien compense largement par sa situation exceptionnelle en hypercentre et ses prestations singulières de grand standing. Possibilité de location d'un garage à seulement 150 mètres.A visiter rapidement ! Un appartement de caractère, confidentiel et prestigieux, pour une clientèle en quête d'un emplacement premium et d'un confort de vie au quotidien.Gare maritime et ferroviaire à 5 mns en voitureRestaurants et commerces de centre ville (monoprix) à 2 mnsJardins des Remparts et de la Préfecture en face de l'appartement.Prix de vente 999150 euros FAI dont 3% d'honoraires inclus soit 970 000 euros net vendeur.DPE C GES AMontant estimé des dépenses annuelles d'énergie pour un usage standard entre 1810 euros et 2 500 euros indexées aux années 2021, 2022 et 2023.Pour visiter et vous accompagner dans votre projet, contactez Catherine DUBOIS-ROUVRAY, au 0658657343 ou, par courriel à catherine.dubois@proprietes-privees.com.Selon l'article L.561.5 du Code Monétaire et Financier, pour l'organisation de la visite, la présentation d'une pièce d'identité vous sera demandée.Cette présente annonce a été rédigée sous la responsabilité éditoriale de Catherine DUBOIS-ROUVRAY agissant sous le statut d'agent commercial immatriculé au RSAC VANNES 451495832 auprès de SAS PROPRIETES PRIVEES, au capital de 44 920 euros, ZAC LE CHÊNE FERRÉ - 44 ALLÉE DES CINQ CONTINENTS 44120 VERTOU; SIRET 487 624 777 00040, RCS Nantes. Carte Professionnelle Transactions sur immeubles et fonds de commerce (T) et Gestion immobilière (G) n°CPI 4401 2016 000 010 388 délivrée par la CCI Nantes - Saint Nazaire. Compte séquestre n°30932508467 BPA SAINT-SEBASTIEN-SUR-LOIRE (44230). Garantie GALIAN-SMABTP - 89 rue de la Boétie, 75008 Paris - n°28137 J pour 2 000 000 euros pour T et 120 000 euros pour G. Assurance responsabilité civile professionnelle par GALIAN-SMABTP n° de police 28137.JMandat réf : 444022 - Le professionnel garantit et sécurise votre projet immobilier. (3.01 % honoraires TTC à la charge de l'acquéreur.) Catherine DUBOIS-ROUVRAY (EI) Agent Commercial - Numéro RSAC : VANNES 451495832 - .Les informations sur les risques auxquels ce bien est exposé sont disponibles sur le site Géorisques : www. georisques. gouv. fr
169 m²
7 p
5 ch

Maison
Ref. 440795SEW
344 000 €
2 708 €/m²
Dossier et visites assurés par Wendy MOUSSET - Groupe Propriétés-Privées (FNAIM).Contact : 06 37 40 50 15 ou par courriel à w.mousset@proprietes-privees.com.[ A VENDRE - VANNES NORD ] Belle opportunité pour cette maison familiale à réinventerAu bout d'une impasse, entourée d'un écrin de verdure, cette maison de famille dévoile une atmosphère paisible et chaleureuse, propice aux instants partagés. Idéalement située, la propriété bénéficie d'un accès rapide aux écoles, aux commerces et aux transports.[ Un potentiel en zone UC ]Implantée en zone UC avec 40 % d'emprise au sol (d'environ 239 m² au total), ouvrant la voie à de nombreuses perspectives : résidence principale, projet familial ou investissement. Une opportunité pour les acquéreurs en quête d'un bien à valeur ajoutée à Vannes.[ Visite guidée]Derrière ses murs, la lumière traverse les volumes et révèle une maison pleine de charme à réinventer, où le salon-séjour avec cheminée s'impose comme le coeur des futurs moments de convivialité. La cuisine dinatoire, la chambre de plain-pied, la salle d'eau et les espaces de vie constituent une base idéale pour imaginer un intérieur à votre image. A l'étage, quatre chambres composent un espace nuit confortable, parfaitement adapté à la vie de famille. Le sous-sol complet, composé d'un garage, d'une spacieuse cave et d'un vaste atelier, ouvre la voie à de multiples possibilités d'aménagement.A l'extérieur, le jardin d'environ 600 m² prolonge la maison dans un écrin végétal, promesse de sérénité et de beaux projets paysagers.+ Un investissement à valeur ajoutée+ Achat avec décote+ Travaux finançables et accompagnés+ Valorisation immédiate du bien+ Performance énergétique optimisée[ Des aides financières majeures pour concrétiser votre projet ]1. MaPrimeRénov' (ANAH)Selon les revenus du foyer et l'ampleur des travaux :Rénovation d'ampleur : plafond de travaux pris en compte jusqu'à 70 000 euros HT*, avec un taux d'aide pouvant atteindre jusqu'à 90 % pour les ménages très modestes (selon conditions).Travaux par geste :- Pompe à chaleur air/eau : jusqu'à environ 5 000 euros d'aide*- Chauffe-eau thermodynamique : jusqu'à environ 1 200 euros d'aide*(*montants variables selon les revenus)2. Éco-Prêt à Taux Zéro (Éco-PTZ) - Jusqu'à 50 000 euros, sans intérêts, remboursable sur 20 ans, cumulable avec les aides.- Certificats d'Économie d'Énergie (CEE)3. Primes complémentaires pour l'isolation, le chauffage et les équipements performants.4. TVA réduite à 5,5 % - Applicable sur les travaux d'amélioration énergétique.Montant moyen estimé des dépenses annuelles d'énergie pour un usage standard établi à partir des prix de l'énergie de l'année 2021/2022/2023 : entre 2320 euros et 3180 eurosDPE : D | GES : BTaxe foncière : 1661 eurosPrix de vente : 344 000 euros HAI dont 4 % honoraires à charge acquéreur soit 330 769 euros Net Vendeur.Selon l'article L.561.5 du Code Monétaire et Financier, pour l'organisation de la visite, la présentation d'une pièce d'identité vous sera demandée.Cette présente annonce a été rédigée sous la responsabilité éditoriale de Wendy MOUSSET agissant sous le statut d'agent commercial immatriculé au RSAC vannes 894 614 528 auprès de SAS PROPRIETES PRIVEES, au capital de 44 920 euros, ZAC LE CHÊNE FERRÉ - 44 ALLÉE DES CINQ CONTINENTS 44120 VERTOU; SIRET 487 624 777 00040, RCS Nantes. Carte Professionnelle Transactions sur immeubles et fonds de commerce (T) et Gestion immobilière (G) n°CPI 4401 2016 000 010 388 délivrée par la CCI Nantes - Saint Nazaire. Compte séquestre n°30932508467 BPA SAINT-SEBASTIEN-SUR-LOIRE (44230). Garantie GALIAN-SMABTP - 89 rue de la Boétie, 75008 Paris - n°28137 J pour 2 000 000 euros pour T et 120 000 euros pour G. Assurance responsabilité civile professionnelle par GALIAN-SMABTP n° de police 28137.JMandat réf : 440795 - 4 % honoraires TTC à la charge de l'acquéreur.Wendy MOUSSET (EI) Agent Commercial - Numéro RSAC : vannes 894 614 528 - . (4.00 % honoraires TTC à la charge de l'acquéreur.) Wendy MOUSSET (EI) Agent Commercial - Numéro RSAC : vannes 894 614 528 - .
127 m²
6 p
5 ch

Maison
Ref. 444824SEW
950 000 €
3 333 €/m²
Dossier et visites assurés par Wendy MOUSSET - Groupe Propriétés-Privées (FNAIM).Contact : 06 37 40 50 15 ou par courriel à w.mousset@proprietes-privees.com.[ A VENDRE - Propriété aux portes de Vannes ]Dans un environnement résidentiel recherché, entre ville et nature, la « Villa Hamilton » vous invite à découvrir une propriété élégante et discrète, nichée dans un écrin de verdure sans vis-à-vis.[ Urbanisme ]- Déclaration préalable accordée le 19 juillet 2025 par la mairie de Theix pour la réalisation d'une piscine de 10 x 4 mètres.- L'emprise au sol autorisée est de 60 %, offrant encore des possibilités d'aménagement ou d'extension.Édifiée sur un terrain clos et arboré d'environ 1 900 m², cette demeure d'environ 285 m² habitables offre un cadre de vie rare, alliant volumes généreux, luminosité et confort contemporain, à seulement quelques minutes du port et du centre-ville de Vannes.[ Visite guidée ]Dès l'entrée, un vaste hall avec vestiaire introduit une magnifique pièce de vie d'environ 70 m², baignée de lumière, composée d'un double salon avec cheminée, d'une salle à manger et d'une cuisine design entièrement aménagée et équipée.L'ensemble s'ouvre sur de larges terrasses exposées plein sud, le jardin arboré et un espace détente avec jacuzzi.Le rez-de-chaussée propose également une superbe suite parentale d'environ 43 m² comprenant chambre, dressing, bureau, salle de bains et WC, offrant une véritable vie de plain-pied.A l'étage, une mezzanine dessert quatre chambres avec placards, une salle de bains, une salle d'eau et des toilettes indépendants.Le sous-sol complet d'environ 114 m² comprend un garage, une cave, une buanderie, un atelier ainsi qu'un bureau avec entrée indépendante, pouvant être transformé en logement indépendant ou en espace professionnel.Un bien aux multiples possibilitésCette propriété se prête parfaitement à une grande maison familiale, un projet intergénérationnel, une activité professionnelle ou encore un projet de chambres d'hôtes.[ Situation ]- Emplacement recherché- Proximité immédiate d'un golf avec vue sur le golfe du Morbihan Rivière à environ 400 m- Commerces accessibles à pied- Port et centre-ville de Vannes à environ 8 minutes- Gare TGV à 10 minutes- Plages de la Presqu'île de Rhuys à 20?25 minutesUne propriété rare sur le secteur, offrant espace et qualité de vie aux portes de Vannes.Prix de vente : 950 000 euros HAI dont 3,6 % honoraires à charge acquéreur soit 916 988 euros Net Vendeur.Taxe foncière 3316 eurosCharges de la résidence 500 euros annuelMontant moyen estimé des dépenses annuelles d'énergie pour un usage standard établi à partir des prix de l'énergie de l'année 2021 : entre 2430 euros et 3340 euros | DPE : C | GES : CPour visiter et vous accompagner dans votre projet, contactez Wendy MOUSSET, au 0637405015 ou, par courriel à w.mousset@proprietes-privees.com.Selon l'article L.561.5 du Code Monétaire et Financier, pour l'organisation de la visite, la présentation d'une pièce d'identité vous sera demandée.Cette présente annonce a été rédigée sous la responsabilité éditoriale de Wendy MOUSSET agissant sous le statut d'agent commercial immatriculé au RSAC vannes 894 614 528 auprès de SAS PROPRIETES PRIVEES, au capital de 44 920 euros, ZAC LE CHÊNE FERRÉ - 44 ALLÉE DES CINQ CONTINENTS 44120 VERTOU; SIRET 487 624 777 00040, RCS Nantes. Carte Professionnelle Transactions sur immeubles et fonds de commerce (T) et Gestion immobilière (G) n°CPI 4401 2016 000 010 388 délivrée par la CCI Nantes - Saint Nazaire. Compte séquestre n°30932508467 BPA SAINT-SEBASTIEN-SUR-LOIRE (44230). Garantie GALIAN-SMABTP - 89 rue de la Boétie, 75008 Paris - n°28137 J pour 2 000 000 euros pour T et 120 000 euros pour G. Assurance responsabilité civile professionnelle par GALIAN-SMABTP n° de police 28137.JMandat réf : 444824 - 3.60 % honoraires TTC à la charge de l'acquéreur.Wendy MOUSSET (EI) Agent Commercial - Numéro RSAC : vannes 894 614 528 - . (3.60 % honoraires TTC à la charge de l'acquéreur.) (3.60 % honoraires TTC à la charge de l'acquéreur.) Wendy MOUSSET (EI) Agent Commercial - Numéro RSAC : vannes 894 614 528 - .
285 m²
8 p
5 ch

Maison
Ref. 433903SEW
1 150 000 €
3 314 €/m²
Dossier et visites assurés par Wendy MOUSSET - Groupe Propriétés-Privées (FNAIM).Contact : 06 37 40 50 15 ou par courriel à w.mousset@proprietes-privees.com.[ EXCLUSIVITÉ - DOMAINE DE LITHOS ] A seulement 15 minutes de Vannes, au coeur du Morbihan Sud, découvrez ce magnifique domaine d'hôtes d'environ 345 m² niché à Moustoir-Ac, commune riche en monuments mégalithiques. Avec ses 4 cabanes perchées avec terrasses privatives, ce lieu offre un cadre unique et magique, idéal pour développer une activité touristique ou accueillir vos projets d'hébergement. Implantée dans un environnement de campagne paisible, la propriété se situe à quelques minutes d'un bourg avec commerces et à seulement 25 minutes du littoral.La propriété se compose de trois espaces distincts :1) Habitation principale : Longère de 1924 en pierre rénovée (162 m² / 184 m² utiles)- Rénovations récentes (2019-2021) : pompe à chaleur, toiture, électricité, plomberie, menuiseries, carport, voies d'accès.- Rez-de-chaussée : vaste pièce de vie avec cheminée design, cuisine semi-ouverte, salon avec poêle à bois, buanderie, WC.- Étage : mezzanine/bureau, 4 chambres, salle de bains et salle d'eau avec WC.- Extérieur : terrasse plein sud, parking goudronné 5-6 places, borne de recharge pour véhicule électrique.2) Seconde longère rénovée : 90 m² (120 m² utiles)- Rez-de-chaussée : salon et séjour avec cheminées, cuisine ouverte, salle d'eau avec WC.- Étage : 3 chambres dont une avec dressing, salle d'eau avec WC.- Extérieur : jardin arboré, puits, carport récent, parking 2-3 places.3) Dépendances et gîtes- Garage/atelier 73 m² avec local technique, 2 salles d'eau et WC, bureau à l'étage.- Studio indépendant 19 m² (chambre, kitchenette, salle d'eau).- Dépendance en pierre 18 m².4) Écolodges / cabanes perchées (58 m²)- 3 cabanes de 16 m² et 1 de 10 m², toutes avec terrasse privative.- Confort moderne, isolation soignée, ambiance cosy au coeur d'un parc arboré.[ Situation idéale ]- 15 min au nord de Vannes- A proximité des axes routiers- 20 min du port et la gare TGV de Vannes- 30 min de la plage de Conleau et plage de Moustérian- 35 min Mégalithes de Carnac, classés au patrimoine mondial de l'Unesco, l'un des ensembles archéologiques les plus remarquables d'Europe.- 1h25 de l'aéroport de Nantes- 30 min du port de Saint-Goustan et la gare TGV à Auray / Rivière de Crac'hDPE : C (137) - GES : A (4) - Montant moyen estimé des dépenses annuelles d'énergie pour un usage standard établi à partir des prix de l'énergie de l'année 2023 : entre 1710 euros et 2340 euros / Taxe foncière : 1663 eurosPrix de vente 1 150 000 euros FAI soit 1 116 505 euros NET VENDEUR.Selon l'article L.561.5 du Code Monétaire et Financier, pour l'organisation de la visite, la présentation d'une pièce d'identité vous sera demandée.Cette présente annonce a été rédigée sous la responsabilité éditoriale de Wendy MOUSSET agissant sous le statut d'agent commercial immatriculé au RSAC vannes 894 614 528 auprès de SAS PROPRIETES PRIVEES, au capital de 44 920 euros, ZAC LE CHÊNE FERRÉ - 44 ALLÉE DES CINQ CONTINENTS 44120 VERTOU; SIRET 487 624 777 00040, RCS Nantes. Carte Professionnelle Transactions sur immeubles et fonds de commerce (T) et Gestion immobilière (G) n°CPI 4401 2016 000 010 388 délivrée par la CCI Nantes - Saint Nazaire. Compte séquestre n°30932508467 BPA SAINT-SEBASTIEN-SUR-LOIRE (44230). Garantie GALIAN-SMABTP - 89 rue de la Boétie, 75008 Paris - n°28137 J pour 2 000 000 euros pour T et 120 000 euros pour G. Assurance responsabilité civile professionnelle par GALIAN-SMABTP n° de police 28137.JMandat réf : 433903 (3.00 % honoraires TTC à la charge de l'acquéreur.) Wendy MOUSSET (EI) Agent Commercial - Numéro RSAC : vannes 894 614 528 - .
347 m²
14 p
7 ch










