



opportunité Denormandie, investissez dans l'ancien rénové clé en main
Ref. 446847GJY
SAMATAN (32130)
97 500 €
3 362 €/m²
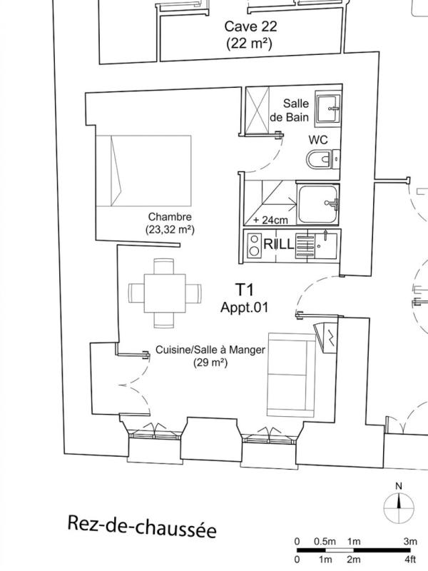
29 m²
1 pièces
Rez de chaussée
Atouts
Autres
Informations complémentaires
Classe énérgétique
Emissions GES
Description
Au coeur de Samatan, imaginez un investissement qui allie sens, stratégie et projection patrimoniale. Situé en plein centre-ville, cet appartement T1 de 28,59 m², au 2ème étage et exposé sud-est, s'inscrit dans une opération éligible au dispositif Denormandie. Une opportunité idéale pour investir dans l'ancien rénové, tout en bénéficiant d'un cadre fiscal attractif. A quelques pas des commerces, des écoles et des transports, vous sécurisez ici un emplacement recherché, propice à une location nue pérenne.Pensé pour séduire les locataires dès la mise en location, le bien sera livré entièrement rénové en 2026, avec cuisine équipée et électroménager offerts. Lumineux grâce à son exposition et sa vue dégagée, il offre un cadre de vie confortable et fonctionnel, renforcé par des prestations telles que le double vitrage et la ventilation. Le projet comprend également la réfection complète de la toiture et des façades, garantissant une valorisation durable de votre investissement. Une cave vient compléter l'ensemble, ajoutant un atout supplémentaire à la location.Cet investissement clé en main est accompagné par un cabinet de gestion de patrimoine, vous permettant d'optimiser chaque étape de votre projet, de l'acquisition à la mise en location. Avec des frais de notaire réduits et un dispositif fiscal avantageux, vous construisez ici un actif performant, pensé pour générer des revenus et réduire votre imposition. Une belle opportunité de conjuguer rentabilité, sécurité et vision long terme au coeur de Samatan. Jean-Yves GUEGUEN (EI) Agent Commercial - Numéro RSAC : TOULOUSE 850 847 617 - .Les informations sur les risques auxquels ce bien est exposé sont disponibles sur le site Géorisques : www. georisques. gouv. fr





