



Vente Maison 208m2 BORDEAUX (33800)
Ref. 446965ARY
BORDEAUX (33800)
869 000 €
4 177 €/m²
208 m²
7 pièces
5 chambres
1 salle de bain
Atouts
Autres
Informations complémentaires
Classe énérgétique
Emissions GES
Description
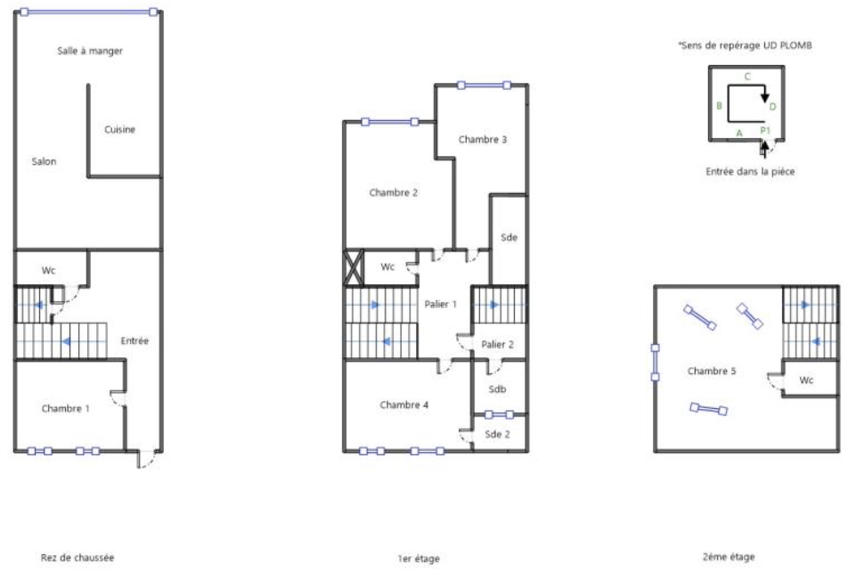
33800 - BORDEAUX - NANSOUTY. C'est dans le quartier très recherché de NANSOUTY, à deux pas de la PLACE NANSOUTY, que prend place cette belle maison FAMILIALE distribuée sur trois niveaux avec GRAND JARDIN PISCINABLE. Développée sur 216m2 au sol, elle offre trois niveaux généreux et chaleureux. Dès la grande entrée vous serez sous le charme : hauts plafonds, carreaux de ciment, cheminée, parquet et murs en pierre côtoient tout le confort actuel. Au rez-de-chaussée, une extension récente réalisée par un ARCHITECTE laisse place à un grand salon et une salle à manger avec sa cuisine équipée/aménagée à la fois fonctionnelle et esthétique avec vue sur la terrasse et son JARDIN de 160m2 PISCINABLE EXPOSE SUD. Côté pratique, on y trouve également une pièce TV pouvant faire office de chambre ainsi qu'un WC indépendant. Un escalier en pierre vous conduit à l'étage composé de 3 grandes chambres dont deux avec salle d'eau privative. Une salle de bains indépendante et un espace buanderie complètent ce niveau. Au dernier étage, vous trouverez une quatrième chambre parentale avec dressing et WC. Une GRANDE CAVE saine ainsi qu'un abri de jardin offrent de nombreux espaces de rangements supplémentaires. Cette maison située dans un des quartiers les plus prisés de Bordeaux est unique par son charme et ses agréments recherchés. CACHET DE L'ANCIEN préservé. Chauffage au gaz, radiateurs en fonte, CHAUDIERE FRISQUET NEUVE. Proche COMMERCES DE BOUCHE et ECOLES recherchées. A 10 min à pied du tram B (arrêt Barrière Saint-Genès). Accès facile à la GARE SAINT-JEAN.PRIX : 869 000 eurosDPE : D - GES : D. Montant moyen estimé des dépenses annuelles d'énergie pour un usage standard établi à partir des prix de l'énergie de l'année 2021 : entre 2480 euros et 3400 eurosPour visiter et vous accompagner dans votre projet, contactez Arnaud FRAYRET, au 06 37 72 09 46 ou par courriel à a.frayret@proprietes-privees.comCette présente annonce a été rédigée sous la responsabilité éditoriale de Arnaud FRAYRET agissant sous le statut d'agent commercial immatriculé au RSAC Nantes 837775543 auprès de la SAS PROPRIETES PRIVEES, Réseau national immobilier, au capital de 40000 euros, 44 ALLÉE DES CINQ CONTINENTS - ZAC LE CHÊNE FERRÉ, 44120 VERTOU, RCS Nantes n° 487 624 777 00040, Carte professionnelle T et G n° CPI 4401 2016 000 010 388 CCI Nantes-Saint Nazaire. Garantie GALIAN - 89 rue de la Boétie, 75008 Paris.Mandat réf : 446965 - Le professionnel garantit et sécurise votre projet immobilier. (3.95 % honoraires TTC à la charge de l'acquéreur.) Arnaud FRAYRET (EI) Agent Commercial - Numéro RSAC : STRASBOURG 837775543 - .Les informations sur les risques auxquels ce bien est exposé sont disponibles sur le site Géorisques : www. georisques. gouv. fr
Ce bien vous est présenté par
Arnaud FRAYRET

Les biens à proximité

Maison
Ref. 438676PBD
645 000 €
4 961 €/m²
Dans le quartier résidentiel de Caudéran, cette maison d'architecte , inspirée par Le Corbusier, séduit par ses lignes pures et ses volumes lumineux.Au rez-de-chaussée, l'élégante entrée mène à un salon-séjour spacieux baigné de lumière, s'ouvrant naturellement sur une terrasse et une piscine privée, véritable écrin de sérénité. Une cuisine indépendante et un bureau dédié au télétravail bureau complètent ce niveau, offrant également la possibilité d'exercer une profession libérale dans un espace calme et fonctionnel.A l'étage, un escalier design conduit à trois chambres lumineuses et une salle de bain raffinée. Un sous-sol aménagé et un local à vélos optimisent le confort et la fonctionnalité.Située au coeur des commodités ? écoles, commerces, transports ?, cette maison unique offre un cadre de vie très agréable. Des travaux de rafraîchissement permettront de révéler tout son potentiel.Contactez Patricia Bourdenx au 06 16 33 35 63 ou par courriel à l'adresse p.bourdenx@proprietes-privees.com.Cette annonce a été rédigée sous la responsabilité éditoriale de Patricia Bourdenx, agissant en tant qu'agent commercial immatriculé au RSAC Bordeaux 832896658, auprès de la SAS Proprietes Privees, réseau national immobilier, au capital de 40000 euros, 44 Allée des Cinq Continents - Zac Le Chêne Ferré, 44120 Vertou, RCS Nantes n° 487 624 777 00040, Carte professionnelle T et G n° CPI 4401 2016 000 010 388 CCI Nantes-Saint Nazaire. Garantie GALIAN - 89 rue de la Boétie, 75008 Paris.Mandat réf : 438676 Le professionnel garantit et sécurise votre projet immobilier.dont 4,03% honoraires TTC à la charge de l'acquéreur. (4.03 % honoraires TTC à la charge de l'acquéreur.) Patricia BOURDENX (EI) Agent Commercial - Numéro RSAC : 832896658 RSAC BORDEAUX - .Les informations sur les risques auxquels ce bien est exposé sont disponibles sur le site Géorisques : www. georisques. gouv. fr
130 m²
5 p
3 ch

Appartement
Ref. 448006ALIB
165 000 €
4 024 €/m²
A Bruges, quartier Ausone, T2 de 41m² avec piscine et parkingVous rêvez d'un environnement paisible et proche des commodités alors ce bien idéalement situé est fait pour vous !Pourquoi me diriez vous ?- un appartement situé au 2 ème étage d'une résidence sécurisée, bien entretenue datant de 2010 et proche du parc Ausone- une résidence avec piscine pour les beaux jours- un emplacement proche des transports en commun ( Bus + Tram E ) et des commerces- un bien qui se compose d'une entrée, d'une cuisine ouverte sur le séjour donnant sur un balcon , d'une chambre avec placard,d'une salle de bains et de toilettes séparés.Les petits plus :- un balcon de 6m ² exposé Est qui permet de profiter de moments de détente- une place de parking en sous-sol- des prestations de qualité : vidéo surveillance, piscine, fibre , ascenseur , local à vélosCet appartement offre un cadre de vie agréable et une belleopportunité dans un quartier recherché.Ce bien est libre de toute occupation.A propose de la copropriété :Nombre de lots principaux 159 d'habitationsTaxe foncière : 1001 eurosCharges de copropriété : 1060 eurosLe prix de vente est de 165 000 euros TTC honoraires 6.45% inclus et à la charge de l'acquéreur .Prix de vente hors honoraires 155 000 euros TTCDPE C et APour visiter et vous accompagner dans votre projet, contactez Aline BENEL, au 0625738840 ou, par courriel à a.benel@proprietes-privees.com.Selon l'article L.561.5 du Code Monétaire et Financier, pour l'organisation de la visite, la présentation d'une pièce d'identité vous sera demandée.Cette présente annonce a été rédigée sous la responsabilité éditoriale de Aline BENEL agissant sous le statut d'agent commercial immatriculé au RSAC 894326289 RSAC BORDEAUX auprès de SAS PROPRIETES PRIVEES, au capital de 44 920 euros, ZAC LE CHÊNE FERRÉ - 44 ALLÉE DES CINQ CONTINENTS 44120 VERTOU; SIRET 487 624 777 00040, RCS Nantes. Carte Professionnelle Transactions sur immeubles et fonds de commerce (T) et Gestion immobilière (G) n°CPI 4401 2016 000 010 388 délivrée par la CCI Nantes - Saint Nazaire. Compte séquestre n°30932508467 BPA SAINT-SEBASTIEN-SUR-LOIRE (44230). Garantie GALIAN-SMABTP-89 rue de la Boetie, 75008 Paris-n°281137J pour 2 000 000 euros pour T et 120 000 euros pour G.Assurance responsabilité civile professionnelle par GALIAN_SMABTP n°de police 28137JMandat réf: 448006 - Le professionnel garantit et sécurise votre projet immobilier- (6.45 % honoraires TTC à la charge de l'acquéreur.)Copropriété de 401 lots - dont 159 lots habitation.Charges annuelles : 1060 euros. Aline BENEL (EI) Agent Commercial - Numéro RSAC : 894326289 RSAC BORDEAUX - .Les informations sur les risques auxquels ce bien est exposé sont disponibles sur le site Géorisques : www. georisques. gouv. fr
41 m²
2 p
1 ch

Appartement
Ref. 446415MGA
255 000 €
3 695 €/m²
Gironde (33000) BORDEAUX, A vendre charmant appartement T4. Prix TTC 255000euros dont 3.95% de commission charge acquéreur, soit 9700euros TTC (pour 245300 euros prix net vendeur).Idéalement situé dans une belle rue du vieux Bordeaux historique, au calme, à deux pas de toutes les commodités (transports, dont les Tram A, B et F Station "Hôtel de ville", commerces, écoles...) et de la Place de l'Eglise Sainte Eulalie, cet appartement en triplex est absolument charmant.Occupant les 3 derniers niveaux de ce bel immeuble en pierre de taille, dont la belle façade en pierre a été récemment sablée, au deuxième étage sans ascenseur, cet appartement se vit comme une maison :De son salon/séjour avec cuisine moderne ouverte, un bel escalier de bois mène à deux chambres, qui se partagent une salle d'eau et des toilettes. Il dessert ensuite une troisième chambre, au dernier étage, qui dispose de sa propre salle de bains privative.Les matériaux (bois et pierre), se marient à merveille avec la douce lumière. A l'arrière de l'immeuble, donnant sur cour, il est coupé des trépidations de la ville.Rénové et en bon état, il est vendu libre. Déroulant 69m² au sol (55,43m² Loi Carrez), sa surface optimisée en T4, permet d'imaginerde l'occuper en résidence principale, d'y créer un Airbnb, une collocation ou tout simplement d'en retirer de la rentabilité locative. laissez-vous séduire par cet appartement original, dont la personnalité ne laissera personne indifférent.DPE DLes informations sur les risques auxquels ce bien est exposé sont disponibles sur le site Géorisques : www.georisques.gouv.frPour visiter et vous accompagner dans votre projet, contactez Myriam GALMAR, au 0613716350 ou par courriel à m.galmar@proprietes-privees.comSelon l'article L.561.5 du Code Monétaire et Financier, pour l'organisation de la visite, la présentation d'une pièce d'identité vous sera demandée.Cette présente annonce a été rédigée sous la responsabilité éditoriale de Myriam GALMAR agissant en qualité de conseiller immobilier indépendant sous portage salarial auprès de la SAS PROPRIETES PRIVEES, au capital de 40 000 euros, ZAC LE CHÊNE FERRÉ - 44 ALLÉE DES CINQ CONTINENTS 44120 VERTOU; SIRET 487 624 777 00040, RCS Nantes. Carte professionnelle Transactions sur immeubles et fonds de commerce (T) et Gestion immobilière (G) n° CPI 4401 2016 000 010 388 délivrée par la CCI Nantes - Saint Nazaire. Compte séquestre n°30932508467 BPA SAINT-SEBASTIEN-SUR-LOIRE (44230) ; Garantie GALIAN - 89 rue de la Boétie, 75008 Paris - n°28137 J pour 2 000 000 euros pour T et 120 000 euros pour G. Assurance responsabilité civile professionnelle par MMA Entreprise n° de police 120.137.405Mandat réf : 446415- Le professionnel garantit et sécurise votre projet immobilier. (3.95 % honoraires TTC à la charge de l'acquéreur.)Copropriété de 14 lots.Charges annuelles : 1060 euros.
69 m²
4 p
3 ch

Appartement
Ref. 415950ARY
379 000 €
4 458 €/m²
33000 - BORDEAUX - SAINT-PAUL. C'est au DERNIER ETAGE d'un bel immeuble à deux pas des quais et de la PLACE DE LA BOURSE que prend place cet appartement en DUPLEX ESPRIT MAISON avec VUES PANORAMIQUES d'une surface au sol totale de 107m2. Il comprend une entrée accueillante, une pièce de vie chaleureuse avec VUE sur la FLECHE de SAINT-MICHEL, une cuisine équipée/aménagée avec VUE REMARQUABLE sur LA GARONNE et le PONT DE PIERRE, un WC indépendant. A l'étage, vous trouverez l'espace nuit avec deux chambres format SUITE PARENTALE avec salle d'eau et salle de bains privatives dont une chambre avec un espace mezzanine, idéal pour un bureau. Un WC indépendant complète ce niveau. Comme un air de campagne à la ville pour cet appartement coup de coeur. Chauffage électrique à inertie dernière génération. FIBRE OPTIQUE. INTERPHONE. IDEALEMENT SITUE et CALME. A PROXIMITE DES BORDS DE GARONNE, du COURS ALSACE-ET-LORRAINE et des TRAM A, C et D. A 5 min A PIED de l'EGLISE SAINT-PIERRE et de LA PLACE DE LA BOURSE.PRIX : 379 000 eurosDPE : D - GES : D. Montant moyen estimé des dépenses annuelles d'énergie pour un usage standard établi à partir des prix de l'énergie de l'année 2021 compris entre 1278 euros et 1730 eurosPour visiter et vous accompagner dans votre projet, contactez Arnaud FRAYRET, au 06 37 72 09 46 ou par courriel à a.frayret@proprietes-privees.comCette présente annonce a été rédigée sous la responsabilité éditoriale de Arnaud FRAYRET agissant sous le statut d'agent commercial immatriculé au RSAC Nantes 837775543 auprès de la SAS PROPRIETES PRIVEES, Réseau national immobilier, au capital de 40000 euros, 44 ALLÉE DES CINQ CONTINENTS - ZAC LE CHÊNE FERRÉ, 44120 VERTOU, RCS Nantes n° 487 624 777 00040, Carte professionnelle T et G n° CPI 4401 2016 000 010 388 CCI Nantes-Saint Nazaire. Garantie GALIAN - 89 rue de la Boétie, 75008 Paris.Mandat réf : 415950 - Le professionnel garantit et sécurise votre projet immobilier. (4.26 % honoraires TTC à la charge de l'acquéreur.)Copropriété de 4 lots.Charges annuelles : 2671 euros. Arnaud FRAYRET (EI) Agent Commercial - Numéro RSAC : STRASBOURG 837775543 - .Les informations sur les risques auxquels ce bien est exposé sont disponibles sur le site Géorisques : www. georisques. gouv. fr
85 m²
3 p
2 ch









