

Local professionnel Reims 5 pièces 113m2
Ref. 423009USO
REIMS (51100)
106 590 €
943 €/m²
113 m²
7 pièces
Rez de chaussée
Atouts
Autres
Informations complémentaires
Description
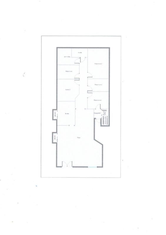
Au coeur de Reims, Quartier Boulingrin. Tout début avenue de Laon.Local à rénover. Idéal investisseurs.Local professionnel hors métiers de la restauration, nuisances sonores ou odorantes. Une cave est attribuée à ce local.Actuellement, le local avec vitrine sur rue comprend une salle d'attente, un accueil avec secrétariat, un dégagement menant à six pièces dont quatre pièces noires, une cuisine, un WC. Une cave chaufferie est attribuée à ce bien.N'hésitez pas à me joindre pour organiser une visite.Prix de vente : 106 590 euros, honoraires à charge vendeur.DPE Vierge GES ViergePour visiter et vous accompagner dans votre projet, contactez Violaine BAUSSERON, au 0661701639 ou, par courriel à v.bausseron@proprietes-privees.com.Selon l'article L.561.5 du Code Monétaire et Financier, pour l'organisation de la visite, la présentation d'une pièce d'identité vous sera demandée.Cette présente annonce a été rédigée sous la responsabilité éditoriale de Violaine BAUSSERON agissant sous le statut d'agent commercial immatriculé au RSAC SEDAN 827 581 364 auprès de SAS PROPRIETES PRIVEES, au capital de 44 920 euros, ZAC LE CHÊNE FERRÉ - 44 ALLÉE DES CINQ CONTINENTS 44120 VERTOU; SIRET 487 624 777 00040, RCS Nantes. Carte Professionnelle Transactions sur immeubles et fonds de commerce (T) et Gestion immobilière (G) n°CPI 4401 2016 000 010 388 délivrée par la CCI Nantes - Saint Nazaire. Compte séquestre n°30932508467 BPA SAINT-SEBASTIEN-SUR-LOIRE (44230). Garantie GALIAN-SMABTP - 89 rue de la Boétie, 75008 Paris - n°28137 J pour 2 000 000 euros pour T et 120 000 euros pour G. Assurance responsabilité civile professionnelle par GALIAN-SMABTP n° de police 28137.JMandat réf : 423009 - Le professionnel garantit et sécurise votre projet immobilier. Violaine BAUSSERON (EI) Agent Commercial - Numéro RSAC : SEDAN 827 581 364 - .
Ce bien vous est présenté par
Violaine BAUSSERON

Les biens à proximité

Maison
Ref. 431785JFC
950 000 €
5 757 €/m²
Installation équestre moderne et fonctionnelle, située à 20 minutes de Reims, constituant un véritable outil de travail pour une activité équestre professionnelle.Équipements :-Manège 50 x 30 m--Carrière 80 x 50 m-21 Boxes-Piste de concours-Rond d'Havrincourt-Marcheur-2 stalles avec douche-Stalle de pansage-Sellerie-Paddocks-Club House 100m2-Stationnement vans et camions-logement personnel de type F2-un local commercial.Activités possibles :-Concours équestres-Pensions pour chevaux-Animations équestres-Un espace commercial (Sellerie)Habitation :Maison récente de +180 m²Ensemble clé en main, rare sur le secteur, idéal pour écurie de propriétaires, centre d'entraînement ou structure événementielle.Prix 950000 FAIPour visiter et vous accompagner dans votre projet, contactez Jean-françois CAUCHIE, au 0787578208 ou, par courriel à jf.cauchie@proprietes-privees.com.Cette présente annonce a été rédigée sous la responsabilité éditoriale de Jean-françois CAUCHIE agissant en qualité de conseiller immobilier indépendant sous portage salarial auprès de SAS PROPRIETES PRIVEES, au capital de 44 920 euros, ZAC LE CHÊNE FERRÉ - 44 ALLÉE DES CINQ CONTINENTS 44120 VERTOU; SIRET 487 624 777 00040, RCS Nantes. Carte Professionnelle Transactions sur immeubles et fonds de commerce (T) et Gestion immobilière (G) n°CPI 4401 2016 000 010 388 délivrée par la CCI Nantes - Saint Nazaire. Compte séquestre n°30932508467 BPA SAINT-SEBASTIEN-SUR-LOIRE (44230). Garantie GALIAN-SMABTP - 89 rue de la Boétie, 75008 Paris - n°28137 J pour 2 000 000 euros pour T et 120 000 euros pour G. Assurance responsabilité civile professionnelle par GALIAN-SMABTP n° de police 28137.JMandat réf : 431785JFC Le professionnel garantit et sécurise votre projet immobilier. Jean-françois CAUCHIE (EI) Agent Commercial - Numéro RSAC : 824262828 SOISSONS - .Les informations sur les risques auxquels ce bien est exposé sont disponibles sur le site Géorisques : www. georisques. gouv. fr
165 m²
8 p
3 ch

Appartement
Ref. 440076LJF
340 000 €
3 469 €/m²
Magnifique appartement face au parc du centre des congrès de ReimsComprenant belle entrée, grande pièce de vie, balcon, cuisine, deux grandes chambres, salle de bains, wc séparé.Cave et grenierPrix charge vendeur 340000 Euros charge vendeurDPE D 343 FKwh GES F 93Montant estimé des dépenses annuelles d'énergie pour un usage standard entre 4130 euros et 5650 euros 31/3/2021 indexées aux années 2021, 2022 et 2023.Pour visiter et vous accompagner dans votre projet, contactez Jean-François LEGENDRE, au 0618055922 ou, par courriel à jf.legendre@proprietes-privees.com.Selon l'article L.561.5 du Code Monétaire et Financier, pour l'organisation de la visite, la présentation d'une pièce d'identité vous sera demandée.Cette présente annonce a été rédigée sous la responsabilité éditoriale de Jean-François LEGENDRE agissant sous le statut d'agent commercial auprès de SAS PROPRIETES PRIVEES, au capital de 44 920 euros, ZAC LE CHÊNE FERRÉ - 44 ALLÉE DES CINQ CONTINENTS 44120 VERTOU; SIRET 487 624 777 00040, RCS Nantes. Carte Professionnelle Transactions sur immeubles et fonds de commerce (T) et Gestion immobilière (G) n°CPI 4401 2016 000 010 388 délivrée par la CCI Nantes - Saint Nazaire. Compte séquestre n°30932508467 BPA SAINT-SEBASTIEN-SUR-LOIRE (44230). Garantie GALIAN-SMABTP - 89 rue de la Boétie, 75008 Paris - n°28137 J pour 2 000 000 euros pour T et 120 000 euros pour G. Assurance responsabilité civile professionnelle par GALIAN-SMABTP n° de police 28137.Mandat réf 440076 : - Le professionnel garantit et sécurise votre projet immobilier.Copropriété de 3 lots - dont 3 lots habitation.Charges annuelles : 3033 euros. Jean-François LEGENDRE (EI) Agent Commercial - Numéro RSAC : - .Les informations sur les risques auxquels ce bien est exposé sont disponibles sur le site Géorisques : www. georisques. gouv. fr
98 m²
4 p
2 ch

Maison
Ref. 441862GFA
475 000 €
2 513 €/m²
A seulement quelques minutes de Reims,10 mn de la gare TGV découvrez un bien rare conjuguant qualité de vie, volumes et potentiel professionnel immédiat.Cette maison familiale d'environ 190 m2 offre luminosité et confort de vie.La maison propose 5 chambres, 3 salles de bain, idéales pour accueillir une famille, les espaces de vie sont généreux, séjour 34 m2 ouvert sur un jardin intimiste, propice à la détente.Les prestations actuelles ( pompe à chaleur, double vitrage) assurent un confort thermique optimal au quotidien..Prix 475 000 euros honoraires acquéreur inclus de 25 000 eurosDPE C 114 GES A 3Montant estimé des dépenses annuelles d'énergie pour un usage standard entre 1580 et 2190 euros indexées aux années 2021, 2022 et 2023 (ou 2021 uniquement) (si logement F ou G 'Logement à consommation énergétique excessive : classe F ou G')Pour visiter et vous accompagner dans votre projet, contactez Francine GOMES, au 0698922200 ou, par courriel à f.gomes@proprietes-privees.com. Selon l'article L.561.5 du Code Monétaire et Financier, pour l'organisation de la visite, la présentation d'une pièce d'identité vous sera demandée. Cette annonce a été rédigée sous la responsabilité éditoriale de Francine GOMES agissant sous le statut d'agent commercial immatriculé au RSAC REIMS 418 147 435 auprès de SAS PROPRIETES PRIVEES, au capital de 44 920 euros, ZAC LE CHÊNE FERRÉ - 44 ALLÉE DES CINQ CONTINENTS 44120 VERTOU ; SIRET 487 624 777 00040, RCS Nantes. Carte Professionnelle Transactions sur immeubles et fonds de commerce (T) et Gestion immobilière (G) n°CPI 4401 2016 000 010 388 délivrée par la CCI Nantes - Saint Nazaire. Compte séquestre n°30932508467 BPA SAINT-SEBASTIEN-SUR-LOIRE (44230). Garantie GALIAN-SMABTP - 89 rue de la Boétie, 75008 Paris - n°28137 J pour 2 000 000 euros pour T et 120 000 euros pour G. Assurance responsabilité civile professionnelle par GALIAN-SMABTP n° de police 28137.J Mandat réf 441862 Le professionnel garantit et sécurise votre projet immobilier. (5.56 % honoraires TTC à la charge de l'acquéreur.) Francine GOMES (EI) Agent Commercial - Numéro RSAC : REIMS 418 147 435 - .Les informations sur les risques auxquels ce bien est exposé sont disponibles sur le site Géorisques : www. georisques. gouv. fr
189 m²
8 p
5 ch

Maison
Ref. 438951USO
288 000 €
1 945 €/m²
Secteur recherché. Rue Baron (Cernay, Saint Marceaux, Dauphinot, proche Lycée Jean Jaurès).Idéal premier achat, familles, projet professions libérales, investisseurs.Maison avec grand garage (voiture, vélos, stockage, etc).Dans une rue calme, posez tout de suite vos valises dans cette maison type 5 au charme incontestable.Pour votre confort, vous y trouverez une grande entrée avec vide sur hall et placard de rangement distribuant un salon chaleureux (parquet et cheminée d'ornement) et une cuisine aménagée et équipée. Le rez de chaussée se poursuit par un couloir avec placards de rangement, une première grande salle de bains, un premier WC séparé, un accès au grand garage et un accès en sous-sol à une véritable pièce complémentaire de 23m2 : grande chambre, salle de répétition, projection, jeux, atelier bricolage, rangement, etc.Depuis l'entrée, empruntez l'escalier en bois et rejoignez le premier étage entièrement recouverts de parquets. Soyez accueillis par une grande pièce palière ouverte sur une loggia : véritable espace de détente ouvert sur l'extérieur (des rangements multiples y sont intégrés). D'un côté de la pièce palière, trouvez une première grande chambre munie d'un insert bois. Puis, de l'autre côté, deux autres grandes chambres, une deuxième salle de bain (baignoire et douche à l'italienne), un deuxième WC séparé.Une cave pour stocker et conserver vos crus complète le bienLes atouts :Maison sans travaux, maison isolée, tout confort.Grand garage sécurisé de 30m2 pour une voiture, des vélos (+ stockage, atelier + buanderie + fenêtre) directement relié à la maison. Facilité d'accès.Mode de chauffage central, production d'eau chaude par chaudière gaz.Très bon emplacement : calme, proximité des transports, des commerces, des services, du centre ville.Bonnes écoles, collège et lycée rattachés au secteurJe vous y attends pour une visite !Prix de vente : 288 000 euros, honoraires à charge vendeur.DPE D GES DMontant moyen estimé des dépenses annuelles d'énergie pour un usage standard établi à partir des prix de l'énergie de l'année 2021, 2022 et 2023 : entre 2 850 euros et 3 930 euros.Pour visiter et vous accompagner dans votre projet, contactez Violaine BAUSSERON, au 0661701639 ou, par courriel à v.bausseron@proprietes-privees.com.Selon l'article L.561.5 du Code Monétaire et Financier, pour l'organisation de la visite, la présentation d'une pièce d'identité vous sera demandée.Cette présente annonce a été rédigée sous la responsabilité éditoriale de Violaine BAUSSERON agissant sous le statut d'agent commercial immatriculé au RSAC SEDAN 827 581 364 auprès de SAS PROPRIETES PRIVEES, au capital de 44 920 euros, ZAC LE CHÊNE FERRÉ - 44 ALLÉE DES CINQ CONTINENTS 44120 VERTOU; SIRET 487 624 777 00040, RCS Nantes. Carte Professionnelle Transactions sur immeubles et fonds de commerce (T) et Gestion immobilière (G) n°CPI 4401 2016 000 010 388 délivrée par la CCI Nantes - Saint Nazaire. Compte séquestre n°30932508467 BPA SAINT-SEBASTIEN-SUR-LOIRE (44230). Garantie GALIAN-SMABTP - 89 rue de la Boétie, 75008 Paris - n°28137 J pour 2 000 000 euros pour T et 120 000 euros pour G. Assurance responsabilité civile professionnelle par GALIAN-SMABTP n° de police 28137.JMandat réf : 438951 - Le professionnel garantit et sécurise votre projet immobilier. Violaine BAUSSERON (EI) Agent Commercial - Numéro RSAC : SEDAN 827 581 364 - .Les informations sur les risques auxquels ce bien est exposé sont disponibles sur le site Géorisques : www. georisques. gouv. fr
148 m²
5 p
3 ch

