



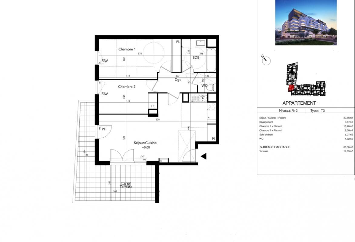
T3 67 m² deuxième étage avec terrasse de 19 m² Ouest, Béziers (Avenue du Président Wilson)
Ref. 429998HKM
BEZIERS (34500)
180 142 €
2 729 €/m²
66 m²
3 pièces
2 chambres
Séjour de 30m²
1 WC
1 salle de bain
2ème étage
Atouts
Terrasse
Ascenseur
Interphone
Autres
Informations complémentaires
Description
Situé au deuxième étage, cet appartement de près de 67 m² dispose d'une terrasse de 19 m² exposée Ouest, à proximité du Polygone et du plateau des Poètes.Séjour traversant avec cuisine ouverte, deux chambres, salle de bain indépendante et WC séparés.Résidence récente et sécurisée, avec stationnement privatif en sous-sol, offrant confort et tranquillité en centre-ville.Commodités, commerces, transports et espaces verts à proximité immédiate.Prix : 180 141,25 euros (honoraires à la charge du vendeur) DPE en cours.Pour visiter et vous accompagner dans votre projet, contactez Michel HORNECKER, au 0699405021 ou, par courriel à m.hornecker@proprietes-privees.com.Selon l'article L.561.5 du Code Monétaire et Financier, pour l'organisation de la visite, la présentation d'une pièce d'identité vous sera demandée.Cette présente annonce a été rédigée sous la responsabilité éditoriale de Michel HORNECKER agissant sous le statut d'agent commercial immatriculé au RSAC BEZIERS 493044283 auprès de SAS PROPRIETES PRIVEES, au capital de 44 920 euros, ZAC LE CHÊNE FERRÉ - 44 ALLÉE DES CINQ CONTINENTS 44120 VERTOU; SIRET 487 624 777 00040, RCS Nantes. Carte Professionnelle Transactions sur immeubles et fonds de commerce (T) et Gestion immobilière (G) n°CPI 4401 2016 000 010 388 délivrée par la CCI Nantes - Saint Nazaire. Compte séquestre n°30932508467 BPA SAINT-SEBASTIEN-SUR-LOIRE (44230). Garantie GALIAN-SMABTP - 89 rue de la Boétie, 75008 Paris - n°28137 J pour 2 000 000 euros pour T et 120 000 euros pour G. Assurance responsabilité civile professionnelle par GALIAN-SMABTP n° de police 28137.JMandat réf : 429998 Le professionnel garantit et sécurise votre projet immobilier.Copropriété de 119 lots - dont 119 lots habitation. ().Charges annuelles : 1 euros. Michel HORNECKER (EI) Agent Commercial - Numéro RSAC : BEZIERS 493044283 - .
Ce bien vous est présenté par
Michel HORNECKER

Les biens à proximité

Maison
Ref. 431944NCT
230 000 €
2 527 €/m²
BEZIERS 34500Charmante maison 2 faces année 70, 4 chambres, cuisine, séjour, salle d'eau, WC, garage.Situé dans un quartier calme et recherché, cette maison d'environ 90m² offre un cadre de vie familiale.Edifiée sur une parcelle d'environ 350m², elle dispose d'espaces extérieurs agréables avec garage et place de parking à l'avant ainsi qu'un jardin clôturé à l'arrière, permettant de profiter pleinement des beaux jours.DPE D,Chauffage électrique. Taxe foncière 1880 euros.Cette présente annonce a été rédigée sous la responsabilité éditoriale de Catherine NIVELON agissant sous le statut d'agent commercial immatriculé au RSAC Béziers 444531768 auprès de SAS PROPRIETES PRIVEES, au capital de 44 920 euros, ZAC LE CHÊNE FERRÉ - 44 ALLÉE DES CINQ CONTINENTS 44120 VERTOU; SIRET 487 624 777 00040, RCS Nantes. Carte Professionnelle Transactions sur immeubles et fonds de commerce (T) et Gestion immobilière (G) N°CPI 4401 2016 000 010 388 délivrée par la CCI Nantes - Saint Nazaire. Compte séquestre n°30932508467 BPA SAINT-SEBASTIEN-SUR-LOIRE (44230). Garantie GALIAN-SMABTP - 89 rue de la Boétie, 75008 Paris - n°28137 J pour 2 000 000 euros pour T et 120 000 euros pour G. Assurance responsabilité civile professionnelle par GALIAN-SMABTP n° de police 28137.JCATHERINE NIVELON 0634127097c.nivelon@proprietes-privees.comMandat réf : 431944Prix: 230.000 euros (honoraires à la charge du vendeur)Le professionnel garantit et sécurise votre projet immobilier.Les informations sur les risques auxquels ce bien est exposé sont disponibles sur le site Géorisques :www.georisques.gouv.fr Catherine NIVELON (EI) Agent Commercial - Numéro RSAC : Beziers 444531768 - .
91 m²
5 p
4 ch

Maison
Ref. 434786CGM
138 000 €
3 066 €/m²
Maison 2 pièces avec garage et jardin ? Béziers ? En exclusivitéEn exclusivité sur la commune de Béziers, découvrez cette charmante maison de plain-pied surélevée d'environ 50 à 55 m², idéale pour un premier achat, un investissement locatif ou un pied-à-terre dans le Sud.Elle se compose d'une pièce de vie lumineuse avec climatisation, offrant un confort optimal en toute saison, d'une chambre avec salle d'eau, d'une toilette indépendante ainsi que de menuiseries en double vitrage assurant une bonne isolation.Vous profiterez également : Un garage, une terrasse agréable, un portail électrique, un terrain clôturé d'environ 400 m², un bien en exclusivitéL'extérieur offre un beau potentiel d'aménagement (espace détente, jardin, potager?).Bien rare sur le secteur, à visiter sans tarder.Prix: 138.000 euros dont 8.000 euros Honoraires TTC inclus Charge Acquéreur, soit 130.000 euros hors honoraires.DPE: classe D - GES : classe A .Montant estimé des dépenses annuelles d'énergie pour un usage standard entre 670 et 970 euros indexées aux années 2021, 2022 et 2023 (ou 2021 uniquement)Les informations sur les risques auxquels ce bien est exposé sont disponibles sur le site Géorisques : www. Géorisques. Gouv. Fr Pour visiter et vous accompagner dans votre projet, contactez Lydie et Denis CAMPAGNE, au 0689901539 ou, par courriel à l.campagne@proprietes-privees.com. Selon l'article L.561.5 du Code Monétaire et Financier, pour l'organisation de la visite, la présentation d'une pièce d'identité vous sera demandée. Cette présente annonce a été rédigée sous la responsabilité éditoriale de Lydie et Denis CAMPAGNE agissant sous le statut d'agent commercial immatriculé au RSAC NARBONNE 328 050 059 auprès de SAS PROPRIETES PRIVEES, au capital de 44 920 euros, ZAC LE CHÊNE FERRÉ - 44 ALLÉE DES CINQ CONTINENTS 44120 VERTOU ; SIRET 487 624 777 00040, RCS Nantes. Carte Professionnelle Transactions sur immeubles et fonds de commerce (T) et Gestion immobilière (G) N°CPI 4401 2016 000 010 388 délivrée par la CCI Nantes - Saint Nazaire. Compte séquestre n°30932508467 BPA SAINT-SEBASTIEN-SUR-LOIRE (44230). Garantie GALIAN-SMABTP - 89 rue de la Boétie, 75008 Paris - n°28137 J pour 2 000 000 euros pour T et 120 000 euros pour G. Assurance responsabilité civile professionnelle par GALIAN-SMABTP n° de police 28137.J (6.15 % honoraires TTC à la charge de l'acquéreur.)Mandat réf : 434786 - Le professionnel garantit et sécurise votre projet immobilier. (6.15 % honoraires TTC à la charge de l'acquéreur.) Lydie et Denis CAMPAGNE (EI) Agent Commercial - Numéro RSAC : NARBONNE 328 050 059 - .Les informations sur les risques auxquels ce bien est exposé sont disponibles sur le site Géorisques : www. georisques. gouv. fr
45 m²
2 p
1 ch

Maison
Ref. 431309LCAS
835 000 €
2 385 €/m²
Béziers, au coeur d'un quartier recherché, se dresse un remarquable immeuble de la fin du XIX siècle, aujourd'hui aménagé en grande maison familiale. Séduisante par son authenticité et son élégance intemporelle, la bâtisse dévoile de vastes volumes, de belles hauteurs sous plafond, ainsi que des éléments d'époque soigneusement préservés : moulures délicates, cheminées anciennes, sols en carreaux de ciment ou parquet massif. La maison dispose de quatre chambres, vaste séjour avec cuisine open space aménagée et équipée, bureau, buanderie, deux grandes salles de bain, wc. Le tout est desservit par un escalier central et un ascenseur à tous les étages.La propriété s'ouvre sur une agréable cour jardin, intime et ensoleillée, offrant un véritable havre de calme en centre-ville. Elle s'accompagne également d'une dépendance indépendante de trois pièces, idéale pour accueillir famille et amis, exercer une activité professionnelle, ou envisager un revenu locatif.Cet ensemble rare allie charme, potentiel et qualité de vie, à quelques minutes seulement des commodités, des écoles et des lieux emblématiques de Béziers. Une opportunité unique pour les amateurs de belles demeures chargées d'histoire.DPE B GES AMontant estimé des dépenses annuelles d'énergie pour un usage standard entre 1740 euros et 2400 euros indexées aux années 2021.Pour visiter et vous accompagner dans votre projet, contactez Laurent CASTIES, au 0665077083 ou, par courriel à l.casties@proprietes-privees.com.Selon l'article L.561.5 du Code Monétaire et Financier, pour l'organisation de la visite, la présentation d'une pièce d'identité vous sera demandée.Cette présente annonce a été rédigée sous la responsabilité éditoriale de Laurent CASTIES agissant sous le statut d'agent commercial immatriculé au RSAC BEZIERS 350490108 auprès de SAS PROPRIETES PRIVEES, au capital de 44 920 euros, ZAC LE CHÊNE FERRÉ - 44 ALLÉE DES CINQ CONTINENTS 44120 VERTOU; SIRET 487 624 777 00040, RCS Nantes. Carte Professionnelle Transactions sur immeubles et fonds de commerce (T) et Gestion immobilière (G) n°CPI 4401 2016 000 010 388 délivrée par la CCI Nantes - Saint Nazaire. Compte séquestre n°30932508467 BPA SAINT-SEBASTIEN-SUR-LOIRE (44230). Garantie GALIAN-SMABTP - 89 rue de la Boétie, 75008 Paris - n°28137 J pour 2 000 000 euros pour T et 120 000 euros pour G. Assurance responsabilité civile professionnelle par GALIAN-SMABTP n° de police 28137.JCe bien est proposé à la vente 835000 euros honoraires charge vendeur 35000 euros TTCMandat réf 431309- Le professionnel garantit et sécurise votre projet immobilier. Laurent CASTIES (EI) Agent Commercial - Numéro RSAC : BEZIERS 350490108 - .Les informations sur les risques auxquels ce bien est exposé sont disponibles sur le site Géorisques : www. georisques. gouv. fr
350 m²
9 p
6 ch

Maison
Ref. 425758LCAS
189 000 €
821 €/m²
En exclusivité, Maison de ville atypique avec patio et terrasse panoramique.Au coeur du centre historique, découvrez cette maison de ville pleine de charme, à l'architecture atypique et au caractère affirmé.Édifiée sur plusieurs demi -niveaux, elle offre une circulation fluide et originale où chaque espace révèle une ambiance unique.Dès l'entrée, un premier salon intimiste ouvre sur un agréable patio à l'abri des regards , un véritable écrin de fraîcheur pour les beaux jours.Quelques marches plus haut, un second salon lumineux invite à la détente et à la convivialité.La maison dispose de cinq chambres aux volumes généreux, idéales pour accueillir famille et amis, ainsi que de plusieurs salles d'eau judicieusement réparties.En point d'orgue, une terrasse panoramique domine les toits de la ville et offre une vue dégagée exceptionnelle , un espace rare pour profiter du soleil ou des soirées d'été.Ce bien unique séduira les amateurs de belles pierres et d'authenticité, à la recherche d'une maison de caractère mêlant originalité, confort et art de vivre urbain.Atouts supplémentaires :* Emplacement central et calme* Belle luminosité naturelle* Nombreux rangements* Possibilités d'aménagement multiplesCe bien est proposé à 189000 euros honoraires à la charge du vendeur.DPE GES NON REQUISPour visiter et vous accompagner dans votre projet, contactez Laurent CASTIES, au 0665077083 ou, par courriel à l.casties@proprietes-privees.com.Selon l'article L.561.5 du Code Monétaire et Financier, pour l'organisation de la visite, la présentation d'une pièce d'identité vous sera demandée.Cette présente annonce a été rédigée sous la responsabilité éditoriale de Laurent CASTIES agissant sous le statut d'agent commercial immatriculé au RSAC BEZIERS 350490108 auprès de SAS PROPRIETES PRIVEES, au capital de 44 920 euros, ZAC LE CHÊNE FERRÉ - 44 ALLÉE DES CINQ CONTINENTS 44120 VERTOU; SIRET 487 624 777 00040, RCS Nantes. Carte Professionnelle Transactions sur immeubles et fonds de commerce (T) et Gestion immobilière (G) n°CPI 4401 2016 000 010 388 délivrée par la CCI Nantes - Saint Nazaire. Compte séquestre n°30932508467 BPA SAINT-SEBASTIEN-SUR-LOIRE (44230). Garantie GALIAN-SMABTP - 89 rue de la Boétie, 75008 Paris - n°28137 J pour 2 000 000 euros pour T et 120 000 euros pour G. Assurance responsabilité civile professionnelle par GALIAN-SMABTP n° de police 28137.JMandat réf 425758 - Le professionnel garantit et sécurise votre projet immobilier. Laurent CASTIES (EI) Agent Commercial - Numéro RSAC : BEZIERS 350490108 - .Les informations sur les risques auxquels ce bien est exposé sont disponibles sur le site Géorisques : www. georisques. gouv. fr
230 m²
7 p
5 ch




