



T4 86 m² troisième étage avec deux terrasses, Béziers (Avenue du Président Wilson)
Ref. 430470HKM
BEZIERS (34500)
272 454 €
3 168 €/m²
86 m²
4 pièces
3 chambres
2 WC
1 salle de bain
4ème étage
Atouts
Terrasse
Ascenseur
Interphone
Autres
Informations complémentaires
Description
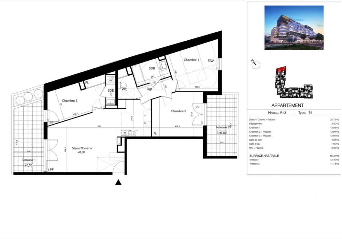
Situé au troisième étage, cet appartement de plus de 86 m² dispose de deux terrasses, à proximité du Polygone et du plateau des Poètes.Séjour traversant avec cuisine indépendante, trois chambres, dont une suite parentale avec salle d'eau, et une avec terrasse privative, salle de bain indépendante et WC séparés.Résidence récente et sécurisée, avec stationnement privatif en sous-sol, offrant confort et tranquillité en centre-ville.Commodités, commerces, transports et espaces verts à proximité immédiate.Prix : 272 453, 75 euros (honoraires à la charge du vendeur) DPE en cours.Pour visiter et vous accompagner dans votre projet, contactez Michel HORNECKER, au 0699405021 ou, par courriel à m.hornecker@proprietes-privees.com.Selon l'article L.561.5 du Code Monétaire et Financier, pour l'organisation de la visite, la présentation d'une pièce d'identité vous sera demandée.Cette présente annonce a été rédigée sous la responsabilité éditoriale de Michel HORNECKER agissant sous le statut d'agent commercial immatriculé au RSAC BEZIERS 493044283 auprès de SAS PROPRIETES PRIVEES, au capital de 44 920 euros, ZAC LE CHÊNE FERRÉ - 44 ALLÉE DES CINQ CONTINENTS 44120 VERTOU; SIRET 487 624 777 00040, RCS Nantes. Carte Professionnelle Transactions sur immeubles et fonds de commerce (T) et Gestion immobilière (G) n°CPI 4401 2016 000 010 388 délivrée par la CCI Nantes - Saint Nazaire. Compte séquestre n°30932508467 BPA SAINT-SEBASTIEN-SUR-LOIRE (44230). Garantie GALIAN-SMABTP - 89 rue de la Boétie, 75008 Paris - n°28137 J pour 2 000 000 euros pour T et 120 000 euros pour G. Assurance responsabilité civile professionnelle par GALIAN-SMABTP n° de police 28137.JMandat réf : 430470 Le professionnel garantit et sécurise votre projet immobilier.Copropriété de 119 lots - dont 119 lots habitation. ().Charges annuelles : 1 euros. Michel HORNECKER (EI) Agent Commercial - Numéro RSAC : BEZIERS 493044283 - .
Ce bien vous est présenté par
Michel HORNECKER

Les biens à proximité

Appartement
Ref. 430459HKM
272 454 €
3 027 €/m²
Situé au quatrième étage avec ascenseur, cet appartement de près de 91 m² dispose de deux terrasses, à proximité du Polygone et du plateau des Poètes.Séjour traversant avec cuisine ouverte donnant sur une terrasse, trois chambres, dont une suite parentale avec salle d'eau, et une avec terrasse privative, salle de bain indépendante et 2 WC séparés.Résidence récente et sécurisée, avec stationnement privatif en sous-sol, offrant confort et tranquillité en centre-ville.Commodités, commerces, transports et espaces verts à proximité immédiate.Prix : 272 453, 75 euros (honoraires à la charge du vendeur) DPE en cours.Pour visiter et vous accompagner dans votre projet, contactez Michel HORNECKER, au 0699405021 ou, par courriel à m.hornecker@proprietes-privees.com.Selon l'article L.561.5 du Code Monétaire et Financier, pour l'organisation de la visite, la présentation d'une pièce d'identité vous sera demandée.Cette présente annonce a été rédigée sous la responsabilité éditoriale de Michel HORNECKER agissant sous le statut d'agent commercial immatriculé au RSAC BEZIERS 493044283 auprès de SAS PROPRIETES PRIVEES, au capital de 44 920 euros, ZAC LE CHÊNE FERRÉ - 44 ALLÉE DES CINQ CONTINENTS 44120 VERTOU; SIRET 487 624 777 00040, RCS Nantes. Carte Professionnelle Transactions sur immeubles et fonds de commerce (T) et Gestion immobilière (G) n°CPI 4401 2016 000 010 388 délivrée par la CCI Nantes - Saint Nazaire. Compte séquestre n°30932508467 BPA SAINT-SEBASTIEN-SUR-LOIRE (44230). Garantie GALIAN-SMABTP - 89 rue de la Boétie, 75008 Paris - n°28137 J pour 2 000 000 euros pour T et 120 000 euros pour G. Assurance responsabilité civile professionnelle par GALIAN-SMABTP n° de police 28137.JMandat réf : 430459 Le professionnel garantit et sécurise votre projet immobilier.Copropriété de 119 lots - dont 119 lots habitation. ().Charges annuelles : 1 euros. Michel HORNECKER (EI) Agent Commercial - Numéro RSAC : BEZIERS 493044283 - .
90 m²
4 p
3 ch

Maison
Ref. 430103CBN
239 000 €
2 779 €/m²
Située dans un quartier apprécié de Béziers, à seulement 4 minutes en voiture du Polygone, cette maison de plain-pied T4 offre un cadre de vie confortable et pratique.Budget 239000 euros (honoraires a charge vendeurs)Elle développe 86 m² parfaitement agencés, comprenant un beau hall d entrée, une pièce de vie lumineuse, une cuisine fonctionnelle, trois chambres et une salle d'eau.La maison bénéficie de double vitrage, de volets roulants, de la climatisation, ainsi que de gouttières déjà installées. Une véranda apporte un espace supplémentaire très agréable, idéal pour profiter de la lumière en toute saison.Implantée sur une parcelle piscinable de 491 m², elle permet de profiter pleinement de l'extérieur,tandis que le garage de 23 m² offre un réel confort pour le stationnement et le rangement.Quelques travaux de rafraîchissement sont à prévoir, mais la maison présente une base saine, bien entretenue, et un emplacement recherché qui valorise clairement le bien.Une opportunité rare dans ce secteur prisé de Béziers.A découvrir rapidement.Mandat. 430103 (DPE :C /GES: C) Montant moyen estimé des dépenses annuelles d'énergie pour un usage standard établi à des prix de l'énergie de l'année 2021 ,2022,2023 .entre 1460 et 1960 eurosPour visiter et vous accompagner dans votre projet, contactez Candylène BUTIN, au 0651988957 par courriel à c.butin@proprietes-privees.comSelon l'article L.561.5 du Code Monétaire et Financier, pour l'organisation de la visite, la présentation d'une pièce d'identité vous sera demandée. Cette présente annonce a été rédigée sous la responsabilité éditoriale de Candylène BUTIN agissant sous le statut d'agent commercial immatriculé au RSAC BEZIERS 813 711 397 auprès de la SAS PROPRIETES PRIVEES, au capital de 40 000 euros, ZAC LE CHÊNE FERRÉ - 44 ALLÉE DES CINQ CONTINENTS 44120 VERTOU; SIRET 487 624 777 00040, RCS Nantes. Carte professionnelle Transactions sur immeubles et fonds de commerce (T) et Gestion immobilière (G) n° CPI 4401 2016 000 010 388 délivrée par la CCI Nantes - Saint Nazaire. Compte séquestre n°30932508467 BPA SAINT-SEBASTIEN-SUR-LOIRE (44230) ; Garantie GALIAN - 89 rue de la Boétie, 75008 Paris - n°28137 J pour 2 000 000 euros pour T et 120 000 euros pour G. Assurance responsabilité civile professionnelle par MMA Entreprise n° de police 120.137.405 Candylène BUTIN (EI) Agent Commercial - Numéro RSAC : BEZIERS 813 711 397 - .Les informations sur les risques auxquels ce bien est exposé sont disponibles sur le site Géorisques : www. georisques. gouv. fr
86 m²
5 p
3 ch

Maison
Ref. 426707IMIL
322 000 €
2 118 €/m²
Située dans le quartier calme et recherché du Capiscol, cette maison de type 6 allie harmonieusement espace, confort et luminosité. A seulement 15 minutes à pied du centre-ville de Béziers et des emblématiques Allées Paul Riquet, elle offre un cadre de vie privilégié, pratique et agréable, à proximité immédiate de toutes les commodités.Dès l'entrée, un vaste hall semi-ouvert vous accueille et vous guide naturellement vers le séjour et la salle à manger. Cet espace de vie, généreusement baigné de lumière, est sublimé par un poêle à bois, apportant chaleur, charme et convivialité aux soirées d'hiver. La cuisine, entièrement équipée et aménagée, est parfaitement pensée pour le quotidien et communique à la fois avec le séjour et la véranda, créant un ensemble fonctionnel et convivial.Le rez-de-chaussée propose également une suite parentale avec dressing et salle d'eau privative, bénéficiant d'un accès direct au jardin, côté terrain piscinable et sans vis-à-vis. Un WC avec buanderie ainsi qu'un garage spacieux complètent ce niveau, offrant en plus plusieurs places de stationnement sur le terrain.A l'étage, deux chambres supplémentaires ainsi qu'un bureau pouvant servir de chambre d'appoint se partagent une salle de bain et un WC indépendant.La maison est équipée pour votre confort et votre sécurité : climatisation, menuiseries double vitrage, système d'alarme et poêle à bois pour une ambiance chaleureuse et économique. Les volumes généreux, la luminosité naturelle et la qualité des prestations en font un lieu de vie accueillant, fonctionnel et bien pensé.Le terrain de 657 m² permet de profiter pleinement de l'extérieur, d'envisager une piscine ou un espace de détente, tout en restant à proximité des commerces, boulangeries et services.Une maison rare sur le marché, offrant le parfait équilibre entre tranquillité, confort et proximité du centre-ville.Budget : 322 000 euros (honoraires d agence a charge vendeurs).Mandat 426707IMIL (DPE: C /GES: A) montant moyen estimé des dépenses annuelle d énergie pour un usage standard établie a partir des pris de l énergie de l année 2021 entre 1580 euros et 2150 euros.Pour visiter et vous accompagner dans votre projet, contactez Itario Butin, au 0769450585 ou par courriel à i.milleville@proprietes-privees.comSelon l'article L.561.5 du Code Monétaire et Financier, pour l'organisation de la visite, la présentation d'une pièce d'identité vous sera demandée.Cette vente est garantie 12 mois.Cette présente annonce a été rédigée sous la responsabilité éditoriale de Itario Butin agissant sous le statut d'agent commercial immatriculé au RSAC Beziers 983 421 504 auprès de la SAS PROPRIETES PRIVEES, au capital de 40 000 euros, ZAC LE CHÊNE FERRÉ - 44 ALLÉE DES CINQ CONTINENTS 44120 VERTOU; SIRET 487 624 777 00040, RCS Nantes. Carte professionnelle Transactions sur immeubles et fonds de commerce (T) et Gestion immobilière (G) n° CPI 4401 2016 000 010 388 délivrée par la CCI Nantes - Saint Nazaire. Compte séquestre n°30932508467 BPA SAINT-SEBASTIEN-SUR-LOIRE (44230) ; Garantie GALIAN - 89 rue de la Boétie, 75008 Paris - n°28137 J pour 2 000 000 euros pour T et 120 000 euros pour G. Assurance responsabilité civile professionnelle par MMA Entreprise n° de police 120.137.405 Itario BUTIN (EI) Agent Commercial - Numéro RSAC : Beziers 983 421 504 - .Les informations sur les risques auxquels ce bien est exposé sont disponibles sur le site Géorisques : www. georisques. gouv. fr
152 m²
6 p
4 ch

Maison
Ref. 424081IMIL
460 000 €
2 628 €/m²
!! SOUS OFFRE !!A Béziers, à seulement quinze minutes à pied du Polygone et de la gare, et vingt minutes des Allées Paul Riquet, se trouve cette magnifique villa de 175 m², entièrement remodernisée tout en conservant le charme de l'ancien. Édifiée sur un terrain de 1 345 m² sans vis-à-vis, cette maison quatre faces allie authenticité, espace et confort moderne.Dès l'entrée, un vaste hall de 21 m² donne le ton : volumes généreux et belle hauteur sous plafond d'environ trois mètres. A droite se trouve la partie nuit, tandis que la partie gauche accueille les espaces de vie. Le salon et la salle à manger, d'une surface totale de 50 m², sont séparés par une élégante arche en pierre qui préserve la convivialité tout en apportant du caractère. La pièce est réchauffée par un poêle à bois, et ouverte sur une cuisine aménagée et équipée avec arrière-cuisine, offrant plus de 22 m² d'espace fonctionnel.Le rez-de-chaussée comprend également deux superbes suites parentales. La première, de 32 m², dispose d'un dressing, d'une salle d'eau, d'une baignoire et de son propre WC. La seconde, de 19 m², bénéficie elle aussi de sa salle d'eau et de ses toilettes privatives. Un WC indépendant avec lave-mains complète ce niveau.A l'étage, la troisième suite parentale de 18,4 m² profite d'un balcon privatif. Chaque chambre dispose ainsi de son confort personnel, avec salle d'eau et toilettes attenants, garantissant une indépendance rare et appréciable.Entièrement équipée d'une climatisation gainable installée en 2022, la maison offre un confort optimal en toutes saisons.A l'extérieur, le charme continue avec une piscine en dur de dix mètres de long, parfaite pour les moments de détente comme pour les amateurs de nage. Une grande terrasse permet de recevoir en toute convivialité, tandis qu'un espace potager a été aménagé pour les passionnés de nature. Le portail motorisé marque l'entrée de la propriété, qui dispose également d'un garage attenant de 25 m² avec porte motorisée.Située à seulement quinze minutes des plages et vingt minutes de Pézenas, cette villa allie élégance, authenticité et modernité. Elle séduira ceux qui recherchent une demeure au caractère affirmé, spacieuse, confortable et idéalement placée, à proximité immédiate du centre de Béziers.Budget 460 000 euros (honoraires d agence a charge vendeurs).Mandat: 424081IMIL(DPE: C et GES: A) montant des cout énergétique annuel estimé entre 1610 euros euros et 2240 euros euros.Pour visiter et vous accompagner dans votre projet, contactez Itario Butin, au 07 69 45 05 85 ou par courriel à i.milleville@proprietes-privees.comSelon l'article L.561.5 du Code Monétaire et Financier, pour l'organisation de la visite, la présentation d'une pièce d'identité vous sera demandée.Cette vente est garantie 12 mois.Cette présente annonce a été rédigée sous la responsabilité éditoriale de Itario Butin agissant sous le statut d'agent commercial immatriculé au RSAC Beziers 983 421 504 auprès de la SAS PROPRIETES PRIVEES, au capital de 40 000 euros, ZAC LE CHÊNE FERRÉ - 44 ALLÉE DES CINQ CONTINENTS 44120 VERTOU; SIRET 487 624 777 00040, RCS Nantes. Carte professionnelle Transactions sur immeubles et fonds de commerce (T) et Gestion immobilière (G) n° CPI 4401 2016 000 010 388 délivrée par la CCI Nantes - Saint Nazaire. Compte séquestre n°30932508467 BPA SAINT-SEBASTIEN-SUR-LOIRE (44230) ; Garantie GALIAN - 89 rue de la Boétie, 75008 Paris - n°28137 J pour 2 000 000 euros pour T et 120 000 euros pour G. Assurance responsabilité civile professionnelle par MMA Entreprise n° de police 120.137.405Itario Butin (EI) Agent Commercial - Numéro RSAC : Béziers 983 421 504 - .N° mandat 397930 Itario BUTIN (EI) Agent Commercial - Numéro RSAC : Beziers 983 421 504 - .Les informations sur les risques auxquels ce bien est exposé sont disponibles sur le site Géorisques : www. georisques. gouv. fr
175 m²
5 p
3 ch




