



Appartement 3 pièces avec terrasse de 40 m² Saint-Priest
Ref. 436522NGY
SAINT-PRIEST (69800)
215 000 €
3 583 €/m²
60 m²
3 pièces
2 chambres
Séjour de 23m²
1 WC
1 salle de bain
5ème étage
Atouts
Garage
Terrasse
Ascenseur
Interphone
Autres
Informations complémentaires
Classe énérgétique
Emissions GES
Description
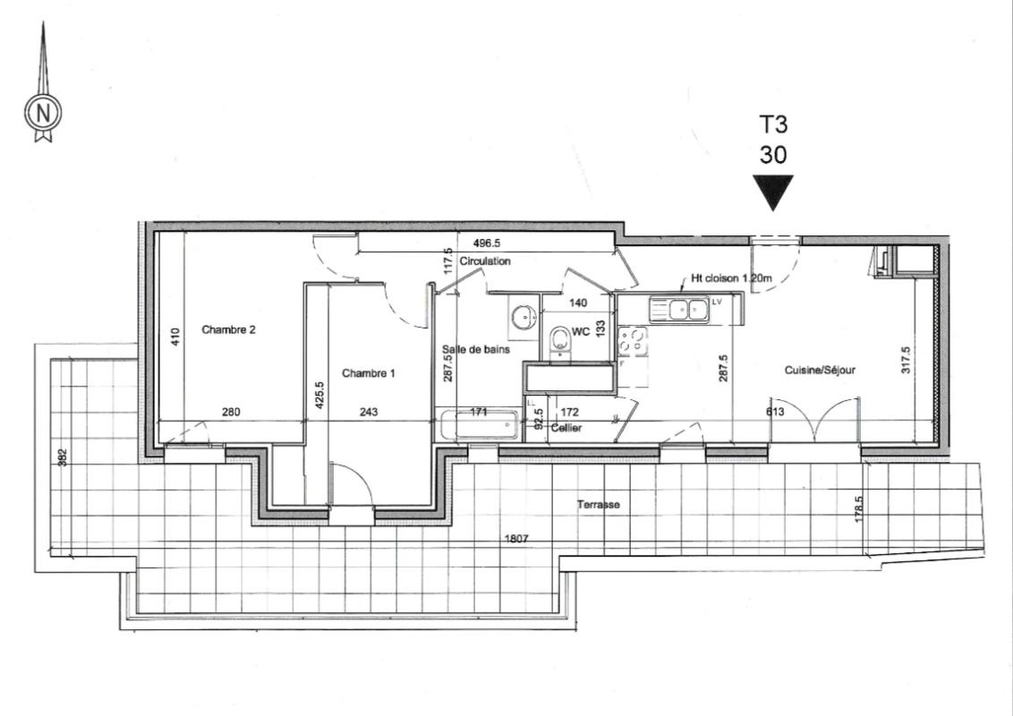
Situé au coeur de Saint-Priest, dans une copropriété de standing datant de 2016 avec jardin intérieur, ce bel appartement de 3 pièces développe une surface habitable de 61 m².Descriptif du bien : Niché au 5ème et dernier étage (avec ascenseur), ce bien bénéficie d'un agencement optimal et de prestations récentes. Il se compose d'une pièce de vie lumineuse avec cuisine ouverte sur le séjour, de deux chambres, d'une salle de bain et d'un WC indépendant. L'appartement est équipé d'un système de climatisation et ne nécessite aucun travaux de rénovation.Espaces extérieurs : Le point fort de cette habitation est sa terrasse privative d'environ 40 m². Orientée plein Sud et sans aucun vis-à-vis, elle offre un espace extérieur rare en centre-ville, propice au calme et à la détente.Environnement et accessibilité : L'emplacement est privilégié, à proximité immédiate de toutes les commodités (commerces, écoles, mairie).- Transports : Arrêts de transports en commun à moins de 2 minutes à pied.- Accès routiers : Liaison rapide vers la Rocade Est et l'autoroute A43.- Ce bien se situe dans un secteur dynamique et particulièrement recherché.Prix de vente : 215 000 euros (honoraires à la charge du vendeur).Complément : Possibilité d'acquérir un garage de type box en sus.Pour toute information complémentaire ou pour l'organisation d'une visite, contactez Trung Toam NGUYEN, au 0660022725 ou, par courriel à tt.nguyen@proprietes-privees.com.DPE : C - GES : CMontant estimé des dépenses annuelles d'énergie pour un usage standard entre 400 euros et 500 euros indexées aux années 2021, 2022 et 2023.Selon l'article L.561.5 du Code Monétaire et Financier, pour l'organisation de la visite, la présentation d'une pièce d'identité vous sera demandée.Cette présente annonce a été rédigée sous la responsabilité éditoriale de Trung Toam NGUYEN agissant sous le statut d'agent commercial immatriculé au RSAC LYON 889 789 186 auprès de SAS PROPRIETES PRIVEES, au capital de 44 920 euros, ZAC LE CHÊNE FERRÉ - 44 ALLÉE DES CINQ CONTINENTS 44120 VERTOU; SIRET 487 624 777 00040, RCS Nantes.Carte Professionnelle Transactions sur immeubles et fonds de commerce (T) et Gestion immobilière (G) n°CPI 4401 2016 000 010 388 délivrée par la CCI Nantes - Saint Nazaire. Compte séquestre n°30932508467 BPA SAINT-SEBASTIEN-SUR-LOIRE (44230).Garantie GALIAN-SMABTP - 89 rue de la Boétie, 75008 Paris - n°28137 J pour 2 000 000 euros pour T et 120 000 euros pour G. Assurance responsabilité civile professionnelle par GALIAN-SMABTP n° de police 28137.JMandat réf : 436522 - Le professionnel garantit et sécurise votre projet immobilier.Copropriété de 32 lots - dont 30 lots habitation.Charges annuelles : 1680 euros. Trung Toam NGUYEN (EI) Agent Commercial - Numéro RSAC : LYON 889 789 186 - .Les informations sur les risques auxquels ce bien est exposé sont disponibles sur le site Géorisques : www. georisques. gouv. fr
Ce bien vous est présenté par
Trung Toam NGUYEN

Les biens à proximité

Appartement
Ref. 438960NGY
189 000 €
2 953 €/m²
Saint-Priest Centre, T4 Lumineux de 64 m² (Carrez) : Le confort du neuf au prix de l'ancien !Idéalement situé en plein centre, à proximité immédiate des commerces, écoles et transports, découvrez cet appartement T4 situé au 2? étage sans ascenseur d'une résidence en pleine valorisation.L'appartement se compose de :* 3 chambres* Un séjour lumineux* Une cuisine indépendante* Une salle d'eau* WC séparésAucun travaux à prévoir à l'intérieur : le bien est prêt à être habité.La copropriété fait actuellement l'objet d'importants travaux d'amélioration déjà votés et en cours de réalisation :* Isolation par l'extérieur de l'immeuble* Remplacement des volets et fenêtres* Rénovation de l'entrée et de la cage d'escalier* Passage au chauffage urbain pour un meilleur confort thermique et une gestion maîtrisée.A l'issue des travaux, la résidence offrira un confort thermique optimisé et une valorisation patrimoniale significative. Le parking, actuellement en stationnement libre, sera prochainement fermé et réservé à la copropriété.Charges comprenant : chauffage, eau chaude, eau froide et entretien des parties communes.Un bien offrant un excellent compromis entre emplacement central, confort immédiat et fort potentiel de valorisation à court terme.Prix de vente : 189 000 euros (Honoraires à la charge du vendeur).L'avis de l'expert : Une opportunité rare à Saint-Priest. Vous achetez un appartement prêt à vivre dans une résidence entièrement réhabilitée.DPE : D - GES : DMontant estimé des dépenses annuelles d'énergie pour un usage standard entre 1260 euros et 1750 euros indexées aux années 2021, 2022 et 2023 (ou 2021 uniquement).Pour visiter et vous accompagner dans votre projet, contactez Trung Toam NGUYEN, au 0660022725 ou, par courriel à tt.nguyen@proprietes-privees.com.Selon l'article L.561.5 du Code Monétaire et Financier, pour l'organisation de la visite, la présentation d'une pièce d'identité vous sera demandée.Cette présente annonce a été rédigée sous la responsabilité éditoriale de Trung Toam NGUYEN agissant sous le statut d'agent commercial immatriculé au RSAC LYON 889 789 186 auprès de SAS PROPRIETES PRIVEES, au capital de 44 920 euros, ZAC LE CHÊNE FERRÉ - 44 ALLÉE DES CINQ CONTINENTS 44120 VERTOU; SIRET 487 624 777 00040, RCS Nantes.Carte Professionnelle Transactions sur immeubles et fonds de commerce (T) et Gestion immobilière (G) n° CPI 4401 2016 000 010 388 délivrée par la CCI Nantes - Saint Nazaire.Compte séquestre n°30932508467 BPA SAINT-SEBASTIEN-SUR-LOIRE (44230). Garantie GALIAN-SMABTP - 89 rue de la Boétie, 75008 Paris - n°28137 J pour 2 000 000 euros pour T et 120 000 euros pour G. Assurance responsabilité civile professionnelle par GALIAN-SMABTP n° de police 28137.JMandat réf : 438960 - Le professionnel garantit et sécurise votre projet immobilier.Copropriété de 150 lots - dont 597 lots habitation.Charges annuelles : 2400 euros. Trung Toam NGUYEN (EI) Agent Commercial - Numéro RSAC : LYON 889 789 186 - .Les informations sur les risques auxquels ce bien est exposé sont disponibles sur le site Géorisques : www. georisques. gouv. fr
64 m²
4 p
3 ch

Maison
Ref. 425998AGAR
356 000 €
3 016 €/m²
Située dans une impasse, cette maison Phénix de 1975 offre un environnement calme et sans vis-vis. Elle est édifiée sur une parcelle arborée de 585 m² et développe environ 118 m² habitable et 163 m2 au sol répartis sur deux niveaux.Au rez-de-chaussée, vous trouverez une pièce isolée et chauffée avec deux ouvertures, pouvant facilement être transformée en chambre, bureau ou espace indépendant, ainsi qu'une salle d'eau avec WC (avec emplacement pour machine à laver) et un garage.A l'étage, la maison propose une belle pièce de vie lumineuse avec sa cuisine ouverte, dont le salon donne sur un balcon, trois chambres confortables, une salle d'eau et un WC séparé.Des places de parking sont également disponibles à l'intérieur comme à l'extérieur, ce qui accroît la commodité pour les résidents ou les visiteurs.Le bien bénéficie d'une localisation idéale : A quelques minutes à pied du Parc Théodore Monod, parfait pour se détendre ou se promener en famille,Arrêts de bus à proximité (lignes TCL 62 et 87) pour rejoindre rapidement Vénissieux et Lyon, et les commerces + services du centre-ville accessibles à pied,Cette maison combine calme, potentiel et confort, dans une petite copropriété d'environ 33 lots.Pour visiter et vous accompagner dans votre projet, contactez Anne Marie GARRIGUES, au 0601044941 ou, par courriel à am.garrigues@proprietes-privees.com.Selon l'article L.561.5 du Code Monétaire et Financier, pour l'organisation de la visite, la présentation d'une pièce d'identité vous sera demandée.Cette présente annonce a été rédigée sous la responsabilité éditoriale de Anne Marie GARRIGUES agissant sous le statut d'agent commercial immatriculé au RSAC lyon 800346140 auprès de SAS PROPRIETES PRIVEES, au capital de 44 920 euros, ZAC LE CHÊNE FERRÉ - 44 ALLÉE DES CINQ CONTINENTS 44120 VERTOU; SIRET 487 624 777 00040, RCS Nantes. Carte Professionnelle Transactions sur immeubles et fonds de commerce (T) et Gestion immobilière (G) n°CPI 4401 2016 000 010 388 délivrée par la CCI Nantes - Saint Nazaire. Compte séquestre n°30932508467 BPA SAINT-SEBASTIEN-SUR-LOIRE (44230). Garantie GALIAN-SMABTP - 89 rue de la Boétie, 75008 Paris - n°28137 J pour 2 000 000 euros pour T et 120 000 euros pour G. Assurance responsabilité civile professionnelle par GALIAN-SMABTP n° de police 28137.JDPE : E GES : EMontant estimé des dépenses annuelles d'énergie pour un usage standard entre 3450 et 4730 euros indexées aux années 2021, 2022 et 2023 (ou 2021 uniquement) (si logement F ou G 'Logement à consommation énergétique excessive : classe F ou G') La consommation réelle est bien en dessous de ces montants annoncésMandat réf : 425998 - Le professionnel garantit et sécurise votre projet immobilier.Copropriété de 33 lots - dont 33 lots habitation.Charges annuelles : 143 euros. Anne Marie GARRIGUES (EI) Agent Commercial - Numéro RSAC : lyon 800346140 - .Les informations sur les risques auxquels ce bien est exposé sont disponibles sur le site Géorisques : www. georisques. gouv. fr
118 m²
4 p
3 ch

Appartement
Ref. 404427AGAR
240 000 €
3 157 €/m²
A découvrir sans tarder : ce bel appartement de 77 m² en rez-de-jardin avec terrasse, est situé dans une résidence moderne et bien entretenue construite en 2016, au coeur d'un environnement calme et agréable à Mions.Les atouts de ce bien :Pièce de vie lumineuse avec une cuisine ouverte, aménagée et entièrement équipée, à la fois moderne et fonctionnelle.Terrasse privative d'environ 17 m², parfaite pour profiter des beaux jours, partager un repas en extérieur ou recevoir des proches en toute convivialité.Deux chambres confortables, une salle de bain contemporaine, et des espaces de rangement pratiques dès l'entrée.Garage sécurisé en sous-sol en supplément,Local à vélos à disposition.Prestations modernes : double vitrage, volets roulants électriques, résidence sécurisée.Un cadre de vie idéal : Situé dans un quartier résidentiel paisible, tout en restant proche des commodités :Transports en commun à proximité (bus lignes 62, T36, 87) et gare de Saint-Priest à quelques minutes.Accès rapide à plusieurs supermarchés, commerces de proximité et services du quotidien.Environnement familial avec de nombreuses structures scolaires : 4 crèches, 4 écoles maternelles, 4 écoles élémentaires et 3 collèges dans la commune.Commune agréable à vivre, avec 45 % d'espaces verts, centre culturel Jean Moulin, cinéma "Ciné' Mions", et nombreux services de santé et équipements publics.Ce bien allie confort, fonctionnalité et qualité de vie dans un cadre moderne et bien desservi.N'attendez plus !!Pour visiter et vous accompagner dans votre projet, contactez Anne Marie GARRIGUES, au 0601044941 ou, par courriel à am.garrigues@proprietes-privees.com.DPE C - GES -CMontant estimé des dépenses annuelles d'énergie pour un usage standard entre 920 et 1 280 euros indexées aux années 2021, 2022 et 2023 (ou 2021 uniquement) (si logement F ou G 'Logement à consommation énergétique excessive : classe F ou G')Selon l'article L.561.5 du Code Monétaire et Financier, pour l'organisation de la visite, la présentation d'une pièce d'identité vous sera demandée.Cette présente annonce a été rédigée sous la responsabilité éditoriale de Anne Marie GARRIGUES agissant sous le statut d'agent commercial immatriculé au RSAC lyon 800346140 auprès de SAS PROPRIETES PRIVEES, au capital de 44 920 euros, ZAC LE CHÊNE FERRÉ - 44 ALLÉE DES CINQ CONTINENTS 44120 VERTOU; SIRET 487 624 777 00040, RCS Nantes. Carte Professionnelle Transactions sur immeubles et fonds de commerce (T) et Gestion immobilière (G) n°CPI 4401 2016 000 010 388 délivrée par la CCI Nantes - Saint Nazaire. Compte séquestre n°30932508467 BPA SAINT-SEBASTIEN-SUR-LOIRE (44230). Garantie GALIAN-SMABTP - 89 rue de la Boétie, 75008 Paris - n°28137 J pour 2 000 000 euros pour T et 120 000 euros pour G. Assurance responsabilité civile professionnelle par GALIAN-SMABTP n° de police 28137.JMandat réf : 404427 - Le professionnel garantit et sécurise votre projet immobilier.Copropriété de 187 lots - dont 95 lots habitation.Charges annuelles : 1400 euros. Anne Marie GARRIGUES (EI) Agent Commercial - Numéro RSAC : lyon 800346140 - .Les informations sur les risques auxquels ce bien est exposé sont disponibles sur le site Géorisques : www. georisques. gouv. fr
76 m²
4 p
2 ch

Appartement
Ref. 429617AGAR
195 000 €
2 954 €/m²
Situé dans un quartier recherché et dynamique, cet appartement T3 de 66 m² a été entièrement rénové du sol au plafond, pour offrir confort et modernité. Son exposition Ouest lui apporte une belle luminosité naturelle, pour un cadre de vie agréable et chaleureux.Vous découvrirez le séjour idéal pour se détendre ou recevoir la famille ou les amis, la cuisine séparée, neuve et équipée, permet de cuisiner en toute sérénité. L'appartement dispose de deux chambres confortables, dont une avec un grand dressing, ainsi que de nombreux rangements pour un quotidien pratique et organisé.L'immeuble, construit en 1989, est sécurisé avec une double entrée et son ascenseur, offrant confort et tranquillité. Les stationnements gratuits dans le parking collectif facilitent la vie des résidents, tandis que l'accès rapide au périphérique et à l'autoroute simplifie vos déplacements.Par ailleurs, le bien bénéficie d'un excellent DPE en lettre C, garantissant une consommation énergétique maîtrisée et un confort optimal tout au long de l'année.Enfin, vous profiterez d'une localisation privilégiée : en plein centre-ville, à deux pas du marché, des commerces et des transports. Tout est accessible à pied, pour un quotidien pratique et agréable.Cet appartement clé en main allie modernité, sécurité et praticité. N'attendez plus pour le découvrir et vous accompagner dans votre projet, contactez Anne Marie GARRIGUES, au 0601044941 ou, par courriel à am.garrigues@proprietes-privees.com.Selon l'article L.561.5 du Code Monétaire et Financier, pour l'organisation de la visite, la présentation d'une pièce d'identité vous sera demandée.Cette présente annonce a été rédigée sous la responsabilité éditoriale de Anne Marie GARRIGUES agissant sous le statut d'agent commercial immatriculé au RSAC lyon 800346140 auprès de SAS PROPRIETES PRIVEES, au capital de 44 920 euros, ZAC LE CHÊNE FERRÉ - 44 ALLÉE DES CINQ CONTINENTS 44120 VERTOU; SIRET 487 624 777 00040, RCS Nantes. Carte Professionnelle Transactions sur immeubles et fonds de commerce (T) et Gestion immobilière (G) n°CPI 4401 2016 000 010 388 délivrée par la CCI Nantes - Saint Nazaire. Compte séquestre n°30932508467 BPA SAINT-SEBASTIEN-SUR-LOIRE (44230). Garantie GALIAN-SMABTP - 89 rue de la Boétie, 75008 Paris - n°28137 J pour 2 000 000 euros pour T et 120 000 euros pour G. Assurance responsabilité civile professionnelle par GALIAN-SMABTP n° de police 28137.JMandat réf : 429617. - Le professionnel garantit et sécurise votre projet immobilier.Copropriété de 91 lots - dont 53 lots habitation.Charges annuelles : 1720 euros. Anne Marie GARRIGUES (EI) Agent Commercial - Numéro RSAC : lyon 800346140 - .Les informations sur les risques auxquels ce bien est exposé sont disponibles sur le site Géorisques : www. georisques. gouv. fr
66 m²
3 p
2 ch









