



APPARTEMENT T3 RILLIEUX LA PAPE DE 60.74 m2 premier étage
Ref. 438006TCL
RILLIEUX-LA-PAPE (69140)
292 500 €
4 875 €/m²
60 m²
3 pièces
2 chambres
Séjour de 29m²
1 WC
1 salle de bain
1er étage
Atouts
Cave
Ascenseur
Interphone
Autres
Informations complémentaires
Classe énérgétique
Description
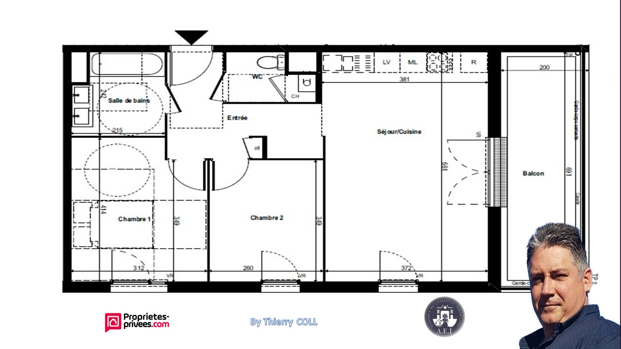
Je vous propose sur RILLIEUX LA PAPE (69140) un appartement T3 de 60.74 m² avec un balcon de 13.06 M² ainsi que 1 place de parking en sous-sol.L'appartement se situe au deuxième étage avec ascenseur et orienté EST dans une résidence arborée située au centre de la commune.Avec des volumes optimisés, des pièces lumineuses et un chez-soi agréable à vivre.La cuisine ouverte sur le salon de 24.81 M² donnant lui-même sur le balcon de 13.77m².Deux chambres de 9.07 M² et 12.29 M² .Belle salle de bain de 4.79 m² et un WC séparé de 2.52 M².3 locaux vélos au premier niveau de sous-sol totalisant plus de 92 m²Produit unique et très rare sur le secteur.Mandat n° 438006DPE ; BInvestissement Principal, Secondaire ou Locatif -Prix de vente : 292.500 eurosappartement neuf - livraison immédiate et frais de notaire réduitsLot : D15 premier étageInformations, réservations auprès de votre conseiller commercialisateur Coll Thierry pour ineuf-com au 06 62 37 23 23 ou par courriel à t.coll@proprietes-privees.com agissant sous le statut d'agent en portage salarial auprès de la SAS PROPRIETES PRIVEES ? ZAC du chêne ferré - 44 allée des cinq continents 44120 VERTOU, Carte professionnelle CPI 4401 2016 000 010 388 CCI Nantes-Saint Nazaire. RCS NANTES 487 624 777, Le professionnel vous conseille, garantit et sécurise votre projet immobilier.*voir conditions auprès de votre conseiller.Copropriété de 100 lots.
Ce bien vous est présenté par
Thierry COLL

Les biens à proximité

Maison
Ref. 439389LPAJ
275 000 €
2 835 €/m²
A NE PAS RATER ! NEGOCIE POUR VOUS ! Sur la commune de Vaulx en Velin, secteur Le Pont Des Planches limite La Rize. opportunité rare, négociée pour vous. Maison indépendante 4/5 pièces, 97,28 m² habitables (Carrez) sur deux niveaux, avec surface utile supplémentaire, sur un terrain de 384 m² . Cette maison offre une opportunité unique de personnaliser votre espace de vie selon vos envies, tout en bénéficiant d'un cadre paisible et familial. Elle se compose de 4 pièces dont 3 chambres à l'étage et vous offre la possibilité d'aménager une chambre Parentale au rez-de-chaussée (plan d'aménagement joint). Elle dispose également d'un grand et lumineux séjour familial de 53 m² orienté Est -Ouest avec cheminée et cuisine ouverte, d'une spacieuse salle de bain, un WC et de nombreux rangements.Ce bien se trouve à proximité immédiate des transports en commun (bus C3, 57, 52) de plus, le secteur bénéficiera du futur tramway T9, dont la mise en service est prévue pour début 2027. Ce projet améliorera significativement l'accessibilité vers Lyon et renforcera l'attractivité du quartier. En outre, le quartier offre déjà un cadre de vie idéal avec ses écoles maternelles et primaires, ses commerces de proximité, et ses diverses infrastructures, garantissant un quotidien pratique et agréable.A l'extérieur de la maison, profitez d'un jardin sans vis-à-vis avec un espace couvert type pergola, idéale pour partager des moments de tranquillité en famille. Un grand garage de 20 m² attenant à la maison, une grande cave, ainsi que deux places de parking dans la cour intérieure de la maison complètent ce bien.Chauffage individuel au gaz de ville.Taxe foncière : 950 euros. Charges énergétiques mensuelles d'environ 200 euros.Maison idéale pour une famille ou un professionnel cherchant un bien plein de potentiel.A noter : les photos présentées dans cette annonce sont fidèles à la réalité. Les ajustements apportés concernent uniquement le rangement et la réorganisation de l'espace pour mieux visualiser le potentiel des pièces.DPE / E - GES / DMontant estimé des dépenses annuelles d'énergie pour un usage standard entre ... indexées aux années 2021, 2022 et 2023 (ou 2021 uniquement) (si logement F ou G 'Logement à consommation énergétique excessive : classe F ou G')Pour visiter et vous accompagner dans votre projet, contactez Loubna PAJKIN, au 0763410593 ou, par courriel à l.pajkin@proprietes-privees.com.Selon l'article L.561.5 du Code Monétaire et Financier, pour l'organisation de la visite, la présentation d'une pièce d'identité vous sera demandée.Cette présente annonce a été rédigée sous la responsabilité éditoriale de Loubna PAJKIN agissant sous le statut d'agent commercial immatriculé au RSAC LYON 838642106 auprès de SAS PROPRIETES PRIVEES, au capital de 44 920 euros, ZAC LE CHÊNE FERRÉ - 44 ALLÉE DES CINQ CONTINENTS 44120 VERTOU; SIRET 487 624 777 00040, RCS Nantes. Carte Professionnelle Transactions sur immeubles et fonds de commerce (T) et Gestion immobilière (G) n°CPI 4401 2016 000 010 388 délivrée par la CCI Nantes - Saint Nazaire. Compte séquestre n°30932508467 BPA SAINT-SEBASTIEN-SUR-LOIRE (44230). Garantie GALIAN-SMABTP - 89 rue de la Boétie, 75008 Paris - n°28137 J pour 2 000 000 euros pour T et 120 000 euros pour G. Assurance responsabilité civile professionnelle par GALIAN-SMABTP n° de police 28137.JMandat réf : 439389 - Le professionnel garantit et sécurise votre projet immobilier. Loubna PAJKIN (EI) Agent Commercial - Numéro RSAC : LYON 838642106 - .Les informations sur les risques auxquels ce bien est exposé sont disponibles sur le site Géorisques : www. georisques. gouv. fr
97 m²
4 p
3 ch

Appartement
Ref. 428202TCL
299 000 €
2 902 €/m²
Vaux-en-Velin (69120) Rue Georges Dimitrov Je vous propose en exclusivité un grand appartement T5 de 103.44 m² avec 4 chambres + ascenseur + cave + box fermé.A vendre, bel appartement familial de 90 m², situé au 3? étage avec ascenseur d'une résidence bien entretenue, proche de toutes les commodités (transports, écoles, commerces). (actuellement loué avec 4 chambres indépendantes avec un revenu locatif actuel : 2 500 euros par moisCe bien se compose d'une entrée, qui dispatch ensuite les 4 chambres. Chaque chambre dispose d'un coin cuisine, d'une chambre, d'un WC et d'une salle d'eau. ( dont deux chambres avec balcon)L'appartement est exposé nord-ouest.L'appartement est vendu avec une cave et un box fermé (possibilité d'acquérir le garage en sus pour 5 000 euros).Prix de vente : 299 000 euros FAIIdéal investisseur, appartement vendu loué avec une très belle rentabilité et un emplacement recherché au coeur de Vaux-en-Velin.Idéal pour investisseur, aucuns gros travaux à prévoir.DPE : CPrix de vente : 299.000 euros, honoraires à la charge du vendeur.Pour visiter et vous accompagner dans votre projet, contactez Thierry Coll, agissant sous le statut de conseiller immobilier indépendant auprès de la SAS Propriétés privées au 06 62 37 23 23 ou par courriel à t.coll@proprietes-privees.com.Mandat n° 428202RCS 487 624 777Le professionnel vous conseille, garantit et sécurise votre projet immobilier.Ce bien est soumis au statut de copropriété. Nombre de lots de la copropriété : 92.Charges annuelles payées par le vendeur : 5280 euros.Copropriété de 257 lots - dont 92 lots habitation.Charges annuelles : 5280 euros.Les informations sur les risques auxquels ce bien est exposé sont disponibles sur le site Géorisques : www. georisques. gouv. fr
103 m²
4 p
4 ch

Maison
Ref. 421754TCL
350 000 €
3 804 €/m²
Je vous propose à la vente une maison familiale récente de 2015 à Vaulx-en-Velin de 92 M²Découvrez cette jolie maison mitoyenne de 92 m², construite en 2015, située dans un quartier calme et agréable de Vaulx-en-Velin au coeur du village.Un bien rare sur le secteur, idéal pour une famille à la recherche de confort et de modernité.Agencement de la maison :Rez-de-chaussée : vous trouverez une chambre de 10 m² exposée sud et un agréable jardin privatif de 25 m² exposé sud , parfait pour profiter des beaux jours.1er étage : une cuisine ouverte et conviviale, donnant sur un vaste séjour lumineux de 25 M², ainsi qu'un WC.2e étage : vous trouverez trois chambres avec placards muraux, une salle de bain fonctionnelle de 3,36 M² et un WC supplémentaire séparé.Les atouts :Maison récente (2015), aucun travaux à prévoir.Un box fermé + un carport et une place de parking devant la maison.Environnement calme et résidentielCoup de coeur assuré !Disponible dès maintenant, N'attendez plus et prenez rendez-vous pour une visite !DPE : CPrix de vente : 350 000 euros, honoraires à la charge du vendeur.Pour visiter et vous accompagner dans votre projet, contactez Thierry Coll, agissant sous le statut de conseiller immobilier indépendant auprès de la SAS Propriétés privées au 06 62 37 23 23 ou par courriel à t.coll@proprietes-privees.com.Mandat n° 421754RCS 487 624 777Le professionnel vous conseille, garantit et sécurise votre projet immobilier.Ce bien est soumis au statut de copropriété.Nombre de lots de la copropriété : 4 lotsCharges annuelles payées par le vendeur : 0 euros.Copropriété de 4 lots - dont 4 lots habitation.Les informations sur les risques auxquels ce bien est exposé sont disponibles sur le site Géorisques : www. georisques. gouv. fr
92 m²
5 p
4 ch

Appartement
Ref. 438003TCL
322 500 €
3 981 €/m²
Je vous propose sur RILLIEUX LA PAPE (69140) un appartement T4 de 81.05 m² avec un jardin de 51.84 M² et une terrasse de 8.18 m² ainsi que 2 places de parking en sous-sol.L'appartement se situe au rez-de-chaussée orienté EST dans une résidence arborée située au centre de la commune.Avec des volumes optimisés, des pièces lumineuses et un chez-soi agréable à vivre.La cuisine s'ouvre sur le salon donnant une pièce aérée et conviviale de 29.77m².Trois belles chambres de 9.18 M², 11.49 M² et 11.48 M² .Belle salle de bain de 5.52 m² et un WC séparé.3 locaux vélos au premier niveau de sous-sol totalisant plus de 92 m²Produit unique et très rare sur le secteur.Mandat n° 438003DPE ; BInvestissement Principal, Secondaire ou Locatif -Prix de vente : 322.500 eurosappartement neuf - livraison immédiate et frais de notaire réduitsLot : D02 RDCInformations, réservations auprès de votre conseiller commercialisateur Coll Thierry pour ineuf-com au 06 62 37 23 23 ou par courriel à t.coll@proprietes-privees.com agissant sous le statut d'agent en portage salarial auprès de la SAS PROPRIETES PRIVEES ? ZAC du chêne ferré ? 44 allée des cinq continents 44120 VERTOU, Carte professionnelle CPI 4401 2016 000 010 388 CCI Nantes-Saint Nazaire. RCS NANTES 487 624 777, Le professionnel vous conseille, garantit et sécurise votre projet immobilier.*voir conditions auprès de votre conseiller.Copropriété de 100 lots.
81 m²
4 p
3 ch

















