



Maison Saint Barthelemy D Anjou
Ref. 4393SCL
SAINT-BARTHELEMY-D'ANJOU (49124)
364 000 €
1 685 €/m²
216 m²
8 pièces
6 chambres
Terrain de 809m²
Atouts
Autres
Informations complémentaires
Classe énérgétique
Emissions GES
Description
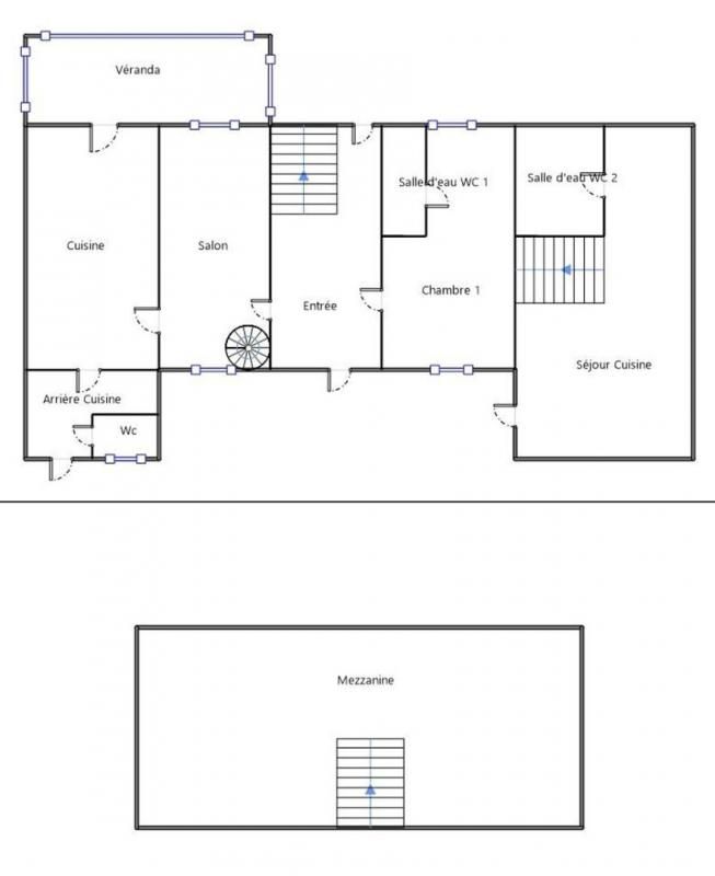
Maison de 216 m2 sur la commune de St Barthélémy d'Anjou au prix de 364000 euros FAIProjet possible de 6 logements indépendants, maison familiale à réaménager à votre goût ou un mixte des deux pour financer une partie votre projet de résidence principale.Ce bien comprend au RDC, une entrée, un salon, une cuisine, une arrière-cuisine avec wc et une chambre avec salle de douche et wc.Le premier étage se compose de 2 chambres avec salle de douche et wc dans chaque chambre et une cuisine.Le deuxième étage comprend 2 chambres avec une salle de douche et wc dans chaque chambre.Le tout complété par un studio indépendant sur un terrain clôturé de 809 m² sans vis à vis dans un environnement calme avec une terrasse plein sud.Travaux à prévoirPhotos complémentaires et adresse sur demande.DPE du 28/08/2025Audit énergétique 21/10/2025Consommation énergétique F: 413 kWh/m²/anEmission de gaz à effet de serre D : 42 CO2/m²/anMontant estimé des dépenses annuelles d'énergie pour un usage recensés entre 6350 euros et 8650 euros par an. Prix moyens des énergies indexés sur les années 2021, 2022, 2023 (abonnements compris).Les informations sur les risques auxquels ce bien est exposé sont disponibles sur le site Géorisques http://www.georisques.gouv.frPour un renseignement, une visite ou tout simplement faire une estimation (vente ou location) d'un bien immobilier contactez : Stéphane CLOCHARD au 06.01.91.03.06, s.clochard@propriétés-privees.com ayant le statut d'agent commercial, titulaire d'une assurance responsabilité civile professionnelle auprès de Galian sous le numéro de contrat MMA 127124335 ; RSAC n°824489793 et rattaché à l'agence propriétés privées 2 square de la Penthiere au lac de Maine à Angers. Nous intervenons sur différents secteurs : Centre-ville d'Angers, place de la visitation, place du Lycée, Quinconce, avenue Jeanne d'Arc, Doutre, Madeleine, Saint Léonard, Lafayette, Gare, Justice, Lac de Maine, Belle-Beille, Roseraie, Monplaisir, Haut saint Aubin ... mais aussi sur les communes extérieures.Réf mandat: 4393 SCLPrix honoraires de 14000 TTC à la charge de l'acquéreur, soit 4 % TTC du montant hors honoraires.Prix hors honoraires 350000 euros. (4.00 % honoraires TTC à la charge de l'acquéreur.) Stéphane CLOCHARD (EI) Agent Commercial - Numéro RSAC : ANGERS 824489793 - .
Ce bien vous est présenté par
Stéphane CLOCHARD

Les biens à proximité

Maison
Ref. 4420FRIAK
155 000 €
2 924 €/m²
EXCLUSIVITÉ ? PELLOUAILLES-LES-VIGNESMaison de bourg 53 m² + 40 m² aménageables ? Jardin ? Dépendances ? Garage ? a moins de10 min d'AngersA vendre : maison de bourg pleine de charme, située au coeur de Pellouailles-les-Vignes, à seulement quelques minutes d'Angers .Emplacement recherché :A 8 minutes de la gare Saint-laud et accès rapide au centre-ville d'Angers.Surfaces et potentiel :53 m² habitables de plain-pied, complétés par 40 m² de combles à aménager.A l'étage, les tomettes d'origine et la charpente apparente en chêne offrent un potentiel d'aménagement unique pour une suite parentale, un bureau ou une chambre supplémentaire.Charme de l'ancien :Poutres apparentes au niveau des combles, tomettes et charpente visibles à l'étage.Extérieur :Jardin de 30 m² exposé sud-ouest, sans vis-à-vis, clos.Annexes :Deux dépendances totalisant 43 m², idéales pour atelier, rangement ou futur studio.Garage indépendant de 22 m².Agencement :Rez-de-chaussée : entrée avec placard, salon-séjour de 20 m², cuisine semi-équipée, salle d'eau récente, WC séparé, chambre de 13 m².Étage : 40 m² de combles à finir, avec tomettes et charpente apparente.Extérieur : jardin, dépendances, garage.Informations pratiques :Prix FAI : 155 000 euros (honoraires à la charge du vendeur)Taxe foncière : 325 eurosDPE : Classe D ( isolation des combles et aménagement, devis sur demande)Libre immédiatement.Visites 7 jours sur 7.Maison rare dans un secteur très recherché.Informations réglementaires disponibles sur www.georisques.gouv.fr.Ce bien rare sur le marché n'attend plus que vous ! Contactez-moi dès maintenant pour un renseignement, une visite ou tout simplement faire une estimation d'un bien immobilier contactez : Jamel LAFRIAKH de l'agence d'Angers PROPRIETES PRIVEES.COM au 06.44.85.28.50 - RCS Angers 529134140 j.lafriakh@proprietes-privees.com. Jamal LAFRIAKH (EI) Agent Commercial - Numéro RSAC : - .
53 m²
4 p
1 ch

Maison
Ref. 4468SCL
270 000 €
2 700 €/m²
En exclusivité, maison de 100 m² aux portes d'ANGERS.Située sur la commune de TRELAZE, dans un environnement calme, venez découvrir cette maison composée au rez-de-chaussée, d'une pièce de vie traversante ouverte sur une cuisine aménagée, d'une arrière-cuisine et WC.A l'étage, un dégagement distribue 3 chambres, une pièce pouvant servir de bureau ou dressing, une salle de bain avec douche et des WC séparés.Poêle à bois récent.Ce bien bénéficie d'un garage, d'une terrasse exposée plein sud vous permettant de profiter pleinement du soleil toute l'année et de deux places de stationnements. Proximité commerces, Biocoop La Pyramide et grace aux lignes de bus (1 et 10) à moins de 400m, vous rejoignez le centre-ville et la gare d'ANGERS en quelques minutes.Photos complémentaires et adresse sur demande.DPE du 6/02/2026Consommation énergétique C : 165 kWh/m²/anEmission de gaz à effet de serre B : 6 CO2/m²/anMontant estimé des dépenses annuelles d'énergie pour un usage recensés entre 1410 euros et 1950 euros par an. Prix moyens des énergies indexés sur les années 2021, 2022, 2023 (abonnements compris).Les informations sur les risques auxquels ce bien est exposé sont disponibles sur le site Géorisques http://www.georisques.gouv.frPour un renseignement, une visite ou tout simplement faire une estimation (vente ou location) d'un bien immobilier contactez : Stéphane CLOCHARD au 06.01.91.03.06, s.clochard@propriétés-privees.com ayant le statut d'agent commercial, titulaire d'une assurance responsabilité civile professionnelle auprès de Galian sous le numéro de contrat MMA 127124335 ; RSAC n°824489793 et rattaché à l'agence propriétés privées 2 square de la Penthiere au lac de Maine à Angers. Nous intervenons sur différents secteurs : Centre-ville d'Angers, place de la visitation, place du Lycée, Quinconce, avenue Jeanne d'Arc, Doutre, Madeleine, Saint Léonard, Lafayette, Gare, Justice, Lac de Maine, Belle-Beille, Roseraie, Monplaisir, Haut saint Aubin ... mais aussi sur les communes extérieures.Réf mandat : 4468 SCLPrix honoraires de 10000 TTC à la charge de l'acquéreur, soit 3.85 % TTC du montant hors honoraires.Prix hors honoraires 260000 euros. (3.85 % honoraires TTC à la charge de l'acquéreur.) Stéphane CLOCHARD (EI) Agent Commercial - Numéro RSAC : ANGERS 824489793 - .
100 m²
5 p
3 ch

Maison
Ref. 443356ORO
518 000 €
2 893 €/m²
Cette maison spacieuse de 179 m² se niche sur un vaste terrain de 6736 m², offrant un cadre de vie paisible et agréable. Avec ses six pièces, elle dispose d'un agencement fonctionnel et lumineux, parfait pour une famille.Une vie de plain pied est possible, toutes les pièces de vie sont au RDC ainsi que les trois grandes chambres.Son salon séjour cathédrale de plus de 60 m² bénéficie d'une belle luminosité et est surplombé par un grand bureau en mezzanine qui permet d'accéder à un espace de 70 m² en partie isolé qui autorise tous les projets d'agrandissement.L'exposition ouest est permet de bénéficier d'une belle luminosité tout au long de la journée, rendant chaque espace accueillant et chaleureux. De plus, la maison est en très bon état général, prête à accueillir ses nouveaux occupants sans nécessiter de travaux.La présence de dépendances offre un espace de rangement supplémentaire, très appréciable pour les besoins du quotidien. L'absence de vis-à-vis assure une intimité appréciable, permettant de profiter pleinement des extérieurs en toute tranquillité. Située dans un environnement calme, cette maison représente une opportunité à saisir pour ceux qui recherchent un cadre de vie serein tout en restant à proximité des commodités.Le jardin clos et magnifiquement arboré bénéficie d'un puits, d'une grande allée goudronnée, d'un étang, d'un bassin et d'une belle terrasse avec son kiosque.Autre atout : Climatisation, Portail en métal galvanisé motorisation CAME, chaudière à condensation, poêle à granulés.DPE du 04/04/2023Consommation énergétique D : 133 kWh/m²/anEmission de gaz à effet de serre D : 39 CO2/m²/anMontant estimé des dépenses annuelles d'énergie pour un usage recensés entre 1910 et 2650 euros par an. Prix moyens des énergies indexés au 1 janvier 2021.Les informations sur les risques auxquels ce bien est exposé sont disponibles sur le site Géorisques http://www.georisques.gouv.frAcquéreur : Prix 518.000 euros Honoraires : 3.60 % TTC inclus charge acquéreur, soit 500.000 euros hors honoraires.Pour visiter et vous accompagner dans votre projet, contactez Olivier ROLLAND, au 0682082923 ou, par courriel à o.rolland@proprietes-privees.com.Selon l'article L.561.5 du Code Monétaire et Financier, pour l'organisation de la visite, la présentation d'une pièce d'identité vous sera demandée.Cette présente annonce a été rédigée sous la responsabilité éditoriale de Olivier ROLLAND agissant sous le statut d'agent commercial auprès de SAS PROPRIETES PRIVEES. Cette vente est garantie 12 mois.Cette présente annonce a été rédigée sous la responsabilité éditoriale de Olivier ROLLAND agissant sous le statut d'agent commercial immatriculé au RSAC ANGERS 539 116 840 auprès de SAS PROPRIETES PRIVEES, au capital de 44 920 euros, ZAC LE CHÊNE FERRÉ - 44 ALLÉE DES CINQ CONTINENTS 44120 VERTOU; SIRET 487 624 777 00040, RCS Nantes. Carte Professionnelle Transactions sur immeubles et fonds de commerce (T) et Gestion immobilière (G) n°CPI 4401 2016 000 010 388 délivrée par la CCI Nantes - Saint Nazaire. Compte séquestre n°30932508467 BPA SAINT-SEBASTIEN-SUR-LOIRE (44230). Garantie GALIAN-SMABTP - 89 rue de la Boétie, 75008 Paris - n°28137 J pour 2 000 000 euros pour T et 120 000 euros pour G. Assurance responsabilité civile professionnelle par GALIAN-SMABTP n° de police 28137.JMandat réf : 443356 - Le professionnel garantit et sécurise votre projet immobilier. (3.60 % honoraires TTC à la charge de l'acquéreur.) Olivier ROLLAND (EI) Agent Commercial - Numéro RSAC : ANGERS 539 116 840 - .
179 m²
6 p
3 ch

Maison
Ref. 4397LVC
299 990 €
2 727 €/m²
Le Plessis Grammoire - 10' d'Angers Maison du XIX ème de 140 m² de surface utile érigée sur une parcelle entièrement close de 420 m². Ce bien est composé d'un grand salon séjour de 43m², d'une cuisine ouverte, d'une lingerie et d'un wc. Le palier du premier étage dessert 2 chambres dont une avec un dressing, une salle de douche avec wc. Le second étage comprend une grande chambre de 39 m² de surface utile avec douche. Cette maison est également pourvue d'une terrasse, d'un puits et d'un hangar/atelier de 50 m² Proche de tous les commerces et transports. Accès direct voie express. Les informations sur les risques auxquels ce bien est exposé sont disponibles sur le site Géorisques http://www.georisques.gouv.fr Pour un renseignement, une visite ou tout simplement faire une estimation d'un bien immobilier contactez : Ludovic LEVENEUR au 06 74 64 48 84 ou par courriel à l.leveneur@proprietes-privees.com agissant sous le statut d'agent commercial RCS Angers 529134140 auprès de l'agence d'Angers PROPRIETES PRIVEES.COM - SAS NUNKI - 2, square de la Penthière 49000 ANGERS - Carte professionnelle Transactions sur immeubles et fonds de commerce n°CPI 49012018000031356, CCI Maine et Loire RCS- 798 297 917 R.C.S Angers - Garantie GALIAN 89, rue de Boétie 75008 Paris- n°46210 D montant de 120 000 euros. RCP auprès COVEA RISKS n° police 120137405. Mandat réf : 4397 - Le professionnel garantit et sécurise votre projet immobilier. Prix net vendeur de 285 567 euros et 14423 euros de frais d'agence à la charge de l'acquéreur. Mentions obligatoires : Consommation énergie primaire : D Valeur consommation énergie primaire : 242 kWh/m2/an Gaz Effet de Serre : B Valeur Gaz Effet de serre : 7 Kg CO2/m2/an Estimation du cout annuel en énergie pour un usage standard entre 1960 euros et 2700 euros- Prix moyens des énergies indexés sur les années 2021, 2022, 2023 (abonnements compris) (5.05 % honoraires TTC à la charge de l'acquéreur.) Ludovic LEVENEUR (EI) Agent Commercial - Numéro RSAC : ANGERS 529134140 - .
110 m²
4 p
3 ch








