



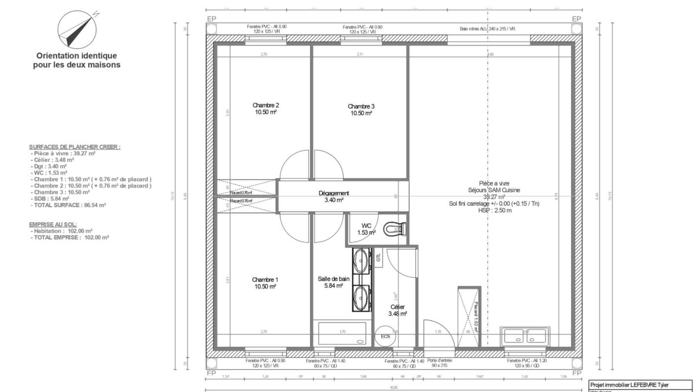
Maison neuve de 90m2 3 ch jardin RE2020 5 min de St Seurin sur l'isle
Ref. 440338BRIH
MOULIN-NEUF (24700)
147 500 €
1 638 €/m²
90 m²
5 pièces
3 chambres
Terrain de 400m²
1 WC
1 salle de bain
Atouts
Jardin privatif
Autres
Informations complémentaires
Classe énérgétique
Emissions GES
Description
Située à 5 mn de St Seurin-sur-l'isle, sur la commune de Moulin -Neuf dans un secteur calme et proche de toutes commodités.Maison clé en main - aucun travaux à prévoir -disponible immédiatement.- 90 m2 habitables- Belle pièce de vie lumineuse- 3 chambres- Salle de Bain + cellier- Terrain d'environ 400m2- Carrelage en travertin naturel- Norme RE 2020 (économie d'énergie)Environnement agréable - idéal pour une famille ou un premier achat.- Accès rapide aux commerces, écoles et axes principaux.Prix : 147 500 euros. Honoraires charges vendeurs.Excellent rapport qualité/prix sur le secteur.Contactez moi rapidement pour une visite - bien rare- ne restera pas longtemps sur le marché!5 photos générées par I.ADPE : A GES : A Montant estimé des dépenses annuelles d'énergie pour un usage standard entre .340 et 500 euros indexées aux années 2021, 2022 et 2023 (ou 2021 uniquement) (si logement F ou G 'Logement à consommation énergétique excessive : classe F ou G') Pour visiter et vous accompagner dans votre projet, contactez Chantal BRIERE, au 0625745282 ou, par courriel à ch.briere@proprietes-privees.com. Selon l'article L.561.5 du Code Monétaire et Financier, pour l'organisation de la visite, la présentation d'une pièce d'identité vous sera demandée. Cette présente annonce a été rédigée sous la responsabilité éditoriale de Chantal BRIERE agissant sous le statut d'agent commercial immatriculé au RSAC BORDEAUX 750659666 auprès de SAS PROPRIETES PRIVEES, au capital de 44 920 euros, ZAC LE CHÊNE FERRÉ - 44 ALLÉE DES CINQ CONTINENTS 44120 VERTOU ; SIRET 487 624 777 00040, RCS Nantes. Carte Professionnelle Transactions sur immeubles et fonds de commerce (T) et Gestion immobilière (G) n°CPI 4401 2016 000 010 388 délivrée par la CCI Nantes - Saint Nazaire. Compte séquestre n°30932508467 BPA SAINT-SEBASTIEN-SUR-LOIRE (44230). Garantie GALIAN-SMABTP - 89 rue de la Boétie, 75008 Paris - n°28137 J pour 2 000 000 euros pour T et 120 000 euros pour G. Assurance responsabilité civile professionnelle par GALIAN-SMABTP n° de police 28137.J Mandat réf : 440338 Le professionnel garantit et sécurise votre projet immobilier. Chantal BRIERE (EI) Agent Commercial - Numéro RSAC : BORDEAUX 750659666 - .Les informations sur les risques auxquels ce bien est exposé sont disponibles sur le site Géorisques : www. georisques. gouv. fr
Ce bien vous est présenté par
Chantal BRIERE

Les biens à proximité

Maison
Ref. 451403PDL
378 000 €
2 571 €/m²
Propriété de charme en pleine campagne , 6 hectares clôturés , Maison, gîte, hangar et dépendances, mareAu coeur d'un environnement naturel exceptionnel, sans voisin et au calme absolu, découvrez cette magnifique propriété entièrement rénovée, implantée sur plus de 6 hectares clôturés attenants.L'ensemble se compose d'une maison principale, d'un gîte indépendant, d'un hangar, garages et box, avec une mare, un sous-bois et un chemin privatif menant à la propriété.La maison d'habitation offre une belle pièce de vie lumineuse avec vue dégagée sur la nature, une cuisine ouverte aménagée et équipée, trois chambres, une salle de bains avec douche, un WC indépendant ainsi qu'une buanderie.L'ensemble a été rénové avec soin : aucun travaux à prévoir.Confort assuré grâce à un système de climatisation réversible et un poêle à bois.Le gîte indépendant comprend une cuisine ouverte sur la pièce de vie, deux chambres et une salle d'eau, idéal pour une activité touristique, accueillir famille et amis ou générer un revenu complémentaire.Une propriété rare, idéale pour les amoureux de nature, de tranquillité, de chevaux ou de projets de vie à la campagne.DPE B GES AMontant estimé des dépenses annuelles d'énergie pour un usage standard entre 1100 et 1560 euros indexées aux années 2021, 2022 et 2023 (ou 2021 uniquement) (si logement F ou G 'Logement à consommation énergétique excessive : classe F ou G')Pour visiter et vous accompagner dans votre projet, contactez Laurence PARADE, au 0643928074 ou, par courriel à l.parade@proprietes-privees.com.Selon l'article L.561.5 du Code Monétaire et Financier, pour l'organisation de la visite, la présentation d'une pièce d'identité vous sera demandée.Cette présente annonce a été rédigée sous la responsabilité éditoriale de Laurence PARADE agissant sous le statut d'agent commercial immatriculé au RSAC perigueux 851733782 auprès de SAS PROPRIETES PRIVEES, au capital de 44 920 euros, ZAC LE CHÊNE FERRÉ - 44 ALLÉE DES CINQ CONTINENTS 44120 VERTOU; SIRET 487 624 777 00040, RCS Nantes. Carte Professionnelle Transactions sur immeubles et fonds de commerce (T) et Gestion immobilière (G) n°CPI 4401 2016 000 010 388 délivrée par la CCI Nantes - Saint Nazaire. Compte séquestre n°30932508467 BPA SAINT-SEBASTIEN-SUR-LOIRE (44230). Garantie GALIAN-SMABTP - 89 rue de la Boétie, 75008 Paris - n°28137 J pour 2 000 000 euros pour T et 120 000 euros pour G. Assurance responsabilité civile professionnelle par GALIAN-SMABTP n° de police 28137.JMandat réf :451403PDL - Le professionnel garantit et sécurise votre projet immobilier. (5.00 % honoraires TTC à la charge de l'acquéreur.) Laurence PARADE (EI) Agent Commercial - Numéro RSAC : perigueux 851733782 - .
147 m²
5 p
3 ch

Maison
Ref. 452491PDL
373 000 €
1 318 €/m²
Située dans un environnement agréable, proche des premières commodités. Cette belle propriété de 283 m² offre de généreux volumes et de nombreuses possibilités.La maison principale se compose d'une vaste pièce de vie lumineuse, d'un espace repas convivial ainsi que d'une cuisine indépendante. Elle dispose de six chambres au total, dont une superbe suite parentale avec salle de bain privative comprenant douche et baignoire balnéo, wc.A l'étage, vous trouverez deux chambres supplémentaires, une salle de bains avec douche, wc.Le rez-de-chaussée accueille également trois autres chambres, accompagnées d'une salle d'eau et d'un WC.A l'extérieur, vous profiterez d'un magnifique jardin paysager soigneusement aménagé, d'une piscine, d'un jacuzzi ainsi que d'un garage. L'ensemble bénéficie d'un cadre sans vis-à-vis, idéal pour préserver votre tranquillité.La propriété comprend également deux logements indépendants, chacun disposant de son entrée privative, d'un jardinet et d'une terrasse, un parking. Actuellement loués, ils représentent un excellent potentiel de revenus locatifs.Prestations complémentaires :Double vitrageChauffage fioul et boisQuartier calme et recherchéA noter : la maison bénéficie actuellement d'un agrément du Conseil départemental pour l'accueil de personnes âgées, constituant un véritable atout pour un projet professionnel ou d'accueil spécialisé.Un bien rare offrant confort, espace, potentiel locatif et nombreuses possibilités d'exploitation.DPE D GES DMontant estimé des dépenses annuelles d'énergie pour un usage standard entre 4940et 6690 euros indexées aux années 2021, 2022 et 2023 ( ou 2021 uniquement) (si logement F ou G 'Logement à consommation énergétique excessive : classe F ou G')Pour visiter et vous accompagner dans votre projet, contactez Laurence PARADE, au 0643928074 ou, par courriel à l.parade@proprietes-privees.com.Selon l'article L.561.5 du Code Monétaire et Financier, pour l'organisation de la visite, la présentation d'une pièce d'identité vous sera demandée.Cette présente annonce a été rédigée sous la responsabilité éditoriale de Laurence PARADE agissant sous le statut d'agent commercial immatriculé au RSAC perigueux 851733782 auprès de SAS PROPRIETES PRIVEES, au capital de 44 920 euros, ZAC LE CHÊNE FERRÉ - 44 ALLÉE DES CINQ CONTINENTS 44120 VERTOU; SIRET 487 624 777 00040, RCS Nantes. Carte Professionnelle Transactions sur immeubles et fonds de commerce (T) et Gestion immobilière (G) n°CPI 4401 2016 000 010 388 délivrée par la CCI Nantes - Saint Nazaire. Compte séquestre n°30932508467 BPA SAINT-SEBASTIEN-SUR-LOIRE (44230). Garantie GALIAN-SMABTP - 89 rue de la Boétie, 75008 Paris - n°28137 J pour 2 000 000 euros pour T et 120 000 euros pour G. Assurance responsabilité civile professionnelle par GALIAN-SMABTP n° de police 28137.JMandat réf :452491PDL - Le professionnel garantit et sécurise votre projet immobilier. (5.07 % honoraires TTC à la charge de l'acquéreur.) Laurence PARADE (EI) Agent Commercial - Numéro RSAC : perigueux 851733782 - .
283 m²
8 p
6 ch

Maison
Ref. 452198PDL
235 000 €
2 350 €/m²
Découvrez cette magnifique maison 100M² moderne 2023, offrant des prestations de qualité, idéalement conçue pour votre confort et votre bien-être. Composée d'une pièce de vie spacieuse avec cuisine aménagée, équipée, donnant sur une terrasse couverte, trois chambres avec placards dont une avec dressing, salle de bains/douches, toilettes indépendantes avec lave mains, garage non attenant ( porte motorisée )Informations supplémentaires :- Double vitrage, fenêtres oscillo-battantes- Volets roulants électriques- pompe à chaleur, gainable Air zone ( Régulation de température grâce à des thermostats dans chaque pièce, produit chaleur/fraicheur )- Eclairage extérieur- Tout à L'égoutCette maison représente une opportunité rare sur le marché immobilier. Ne manquez pas cette chance d'acquérir un bien d'exception.DPE : Classe (B) GES (A): Montant moyen estimé des dépenses annuelles d'énergie pourun usage standard établi à partir des prix de l'énergie de l'année 2024 : .entre 560 euros. eurosET 800 eurosPour visiter et vous accompagner dans votre projet, contactez Laurence PARADE, au 0643928074 ou par courriel à l.parade@proprietes-privees.comSelon l'article L.561.5 du Code Monétaire et Financier, pour l'organisation de la visite, la présentation d'une pièce d'identité vous sera demandée.Cette vente est garantie 12 mois.Cette présente annonce a été rédigée sous la responsabilité éditoriale de Laurence PARADE agissant sous le statut d'agent commercial immatriculé au RSAC perigueux 851733782 auprès de la SAS PROPRIETES PRIVEES, au capital de 40 000 euros, ZAC LE CHÊNE FERRÉ - 44 ALLÉE DES CINQ CONTINENTS 44120 VERTOU; SIRET 487 624 777 00040, RCS Nantes. Carte professionnelle Transactions sur immeubles et fonds de commerce (T) et Gestion immobilière (G) n° CPI 4401 2016 000 010 388 délivrée par la CCI Nantes - Saint Nazaire. Compte séquestre n°30932508467 BPA SAINT-SEBASTIEN-SUR-LOIRE (44230) ; Garantie GALIAN - 89 rue de la Boétie, 75008 Paris - n°28137 J pour 2 000 000 euros pour T et 120 000 euros pour G. Assurance responsabilité civile professionnelle par MMA Entreprise n° de police 120.137.405Mandat réf 452198PDL- Le professionnel garantit et sécurise votre projet immobilier. (6.82 % honoraires TTC à la charge de l'acquéreur.) Laurence PARADE (EI) Agent Commercial - Numéro RSAC : perigueux 851733782 - .
100 m²
5 p
3 ch

Maison
Ref. 452199PDL
120 000 €
1 090 €/m²
Maison 110 m² à finir sur une parcelle d'environ 8120m² dont 1000 m² constructibles, à 10 mn des commoditésPour visiter et vous accompagner dans votre projet, contactez Laurence PARADE, au 0643928074 ou, par courriel à l.parade@proprietes-privees.com.Selon l'article L.561.5 du Code Monétaire et Financier, pour l'organisation de la visite, la présentation d'une pièce d'identité vous sera demandée.Cette présente annonce a été rédigée sous la responsabilité éditoriale de Laurence PARADE agissant sous le statut d'agent commercial immatriculé au RSAC perigueux 851733782 auprès de SAS PROPRIETES PRIVEES, au capital de 44 920 euros, ZAC LE CHÊNE FERRÉ - 44 ALLÉE DES CINQ CONTINENTS 44120 VERTOU; SIRET 487 624 777 00040, RCS Nantes. Carte Professionnelle Transactions sur immeubles et fonds de commerce (T) et Gestion immobilière (G) n°CPI 4401 2016 000 010 388 délivrée par la CCI Nantes - Saint Nazaire. Compte séquestre n°30932508467 BPA SAINT-SEBASTIEN-SUR-LOIRE (44230). Garantie GALIAN-SMABTP - 89 rue de la Boétie, 75008 Paris - n°28137 J pour 2 000 000 euros pour T et 120 000 euros pour G. Assurance responsabilité civile professionnelle par GALIAN-SMABTP n° de police 28137.JMandat réf : 452199- Le professionnel garantit et sécurise votre projet immobilier. (9.09 % honoraires TTC à la charge de l'acquéreur.) Laurence PARADE (EI) Agent Commercial - Numéro RSAC : perigueux 851733782 - .
110 m²
4 p
2 ch










