



Maison 4 pièces de 94 m² - Quartier Beaumont 13012
Ref. 442394PIMM
MARSEILLE-12E-ARRONDISSEMENT (13012)
495 000 €
5 265 €/m²
94 m²
4 pièces
3 chambres
Séjour de 40m²
Terrain de 268m²
2 WC
2 salles de bain
Atouts
Jardin privatif
Garage
Terrasse
Autres
Informations complémentaires
Classe énérgétique
Emissions GES
Description
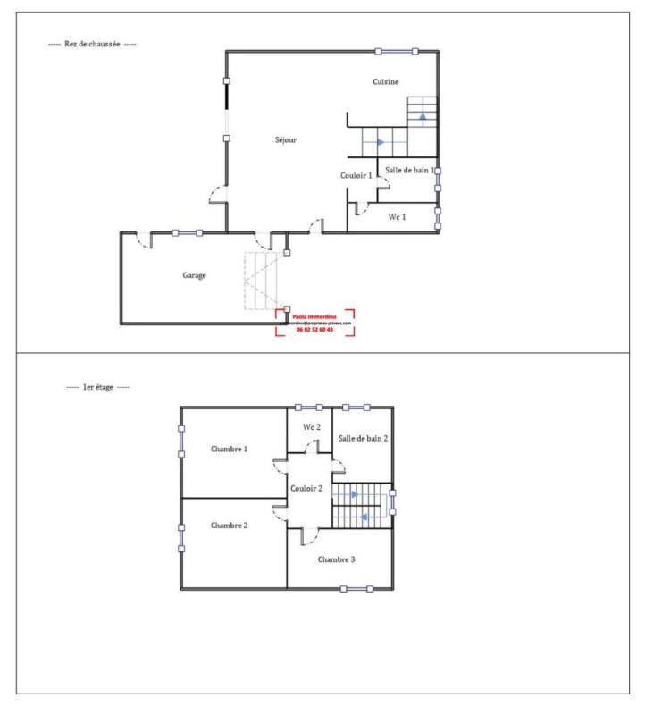
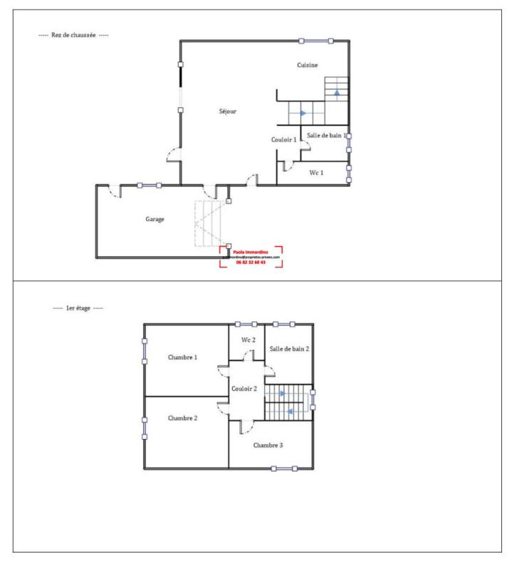
En exclusivité, venez découvrir cette charmante Bastide de 94 m² sur un terrain de 268 m², avec terrasse, jardin, garage et parking située dans un environnement paisible, à deux pas des commerces, écoles, transports et axes routiers (L2).Quartier très recherché, au calme absolu.Idéal pour une famille ou un investisseur pour faire de la colocation.Au rez-de-chaussée :- Un spacieux séjour lumineux avec de grandes baies vitrées en double vitrage, donnant accès à une terrasse carrelée exposée sud-ouest et à un joli jardin- Une cuisine ouverte, aménagée et semi-équipée- Une salle d'eau- WC séparés A l'étage :- Trois belles chambres avec placards, dont deux climatisées- Une salle de bain avec baignoire- WC indépendantsLes plus :- Grand garage (28m²) + 1 place de stationnement privée dans la propriété (total 2 véhicules)- Buanderie et cellier dans le garage- Nombreux rangements- Menuiseries PVC double vitrage avec volets électriques- Chauffage électrique- Aucune rénovation à prévoir. Maison en excellent état général- Travaux de propretés réalisés récemmentUn bien clé en main, idéal pour une vie de famille paisible dans un quartier prisé de Marseille.A visiter rapidement !Contactez-moi pour plus d'informations ou une visite !- Taxe foncière 2175 euros- Prix de vente : 495 000 euros honoraires charge vendeur.- Selon l'article L.561.5 du Code Monétaire et Financier, pour l'organisation de la visite, la présentation d'une pièce d'identité vous sera demandée ainsi qu'un bon de visite signé.DPE C - GES AMontant estimé des dépenses annuelles d'énergie pour un usage standard entre 1050 et 1480 euros indexées aux années 2021, 2022 et 2023 (abonnements compris).Pour visiter et vous accompagner dans votre projet, contactez Paola Immordino, au 06 82 32 60 43 ou, par courriel à p.immordino@proprietes-privees.com.Cette présente annonce a été rédigée sous la responsabilité éditoriale de Paola Immordino agissant sous le statut d'agent commercial immatriculé au RSAC Marseille 421 712 936 auprès de SAS PROPRIETES PRIVEES, au capital de 44 920 euros, ZAC LE CHÊNE FERRÉ - 44 ALLÉE DES CINQ CONTINENTS 44120 VERTOU; SIRET 487 624 777 00040, RCS Nantes. Carte Professionnelle Transactions sur immeubles et fonds de commerce (T) et Gestion immobilière (G) n°CPI 4401 2016 000 010 388 délivrée par la CCI Nantes - Saint Nazaire. Compte séquestre n°30932508467 BPA SAINT-SEBASTIEN-SUR-LOIRE (44230). Garantie GALIAN-SMABTP - 89 rue de la Boétie, 75008 Paris - n°28137 J pour 2 000 000 euros pour T et 120 000 euros pour G. Assurance responsabilité civile professionnelle par GALIAN-SMABTP n° de police 28137.Mandat réf : 442394 - Le professionnel garantit et sécurise votre projet immobilier.Paola IMMORDINO Agent Commercial - Numéro RSAC Marseille 421 712 936. Paola IMMORDINO (EI) Agent Commercial - Numéro RSAC : MARSEILLE 421 712 936 - .Les informations sur les risques auxquels ce bien est exposé sont disponibles sur le site Géorisques : www. georisques. gouv. fr
Ce bien vous est présenté par
Paola IMMORDINO

Les biens à proximité

Appartement
Ref. 442503HIA
257 900 €
3 393 €/m²
Situé dans le quartier recherché de Menpenti, dans le 10? arrondissement de Marseille, le bien se situe dans un quartier apprécié pour sa vie de quartier et sa situation stratégique.Cet appartement de 76 m² se trouve au 4? étage avec ascenseur d'une résidence construite en 2006.Dès l'entrée, les volumes donnent le ton. L'appartement offre une organisation fonctionnelle et confortable, adaptée à une résidence principale familiale.Le séjour, lumineux et climatisé, s'ouvre sur un balcon, permettant de profiter d'un extérieur agréable au quotidien.La cuisine et l'espace de vie offrent un cadre convivial, pensé pour la vie quotidienne.La partie nuit se compose de deux chambres, complétées par un dressing, apportant un espace de rangement appréciable.Une salle d'eau moderne ainsi que des WC séparés complètent l'ensemble.L'appartement est équipé de climatisation réversible dans toutes les pièces, assurant un confort thermique toute l'année.L'ensemble est en excellent état, ne nécessitant aucun travaux. Il est donc immédiatement habitable.Un box double est disponible en sus de l'appartement.Une vidéo de présentation du bien est disponible sur mes réseaux sociaux pour découvrir l'appartement plus en détail.Pour plus d'informations ou pour organiser une visite, contactez moi directement par mail à : t.hilaire@proprietes-privees.com ou au 06 85 70 00 62Cette présente annonce a été rédigée sous la responsabilité éditoriale de Thibault HILAIRE agissant sous le statut d'agent commercial immatriculé au RSAC sous le numéro 881 947 675.Mandat réf : 442503 - Le professionnel garantit et sécurise votre projet immobilier.Selon l'article L.561.5 du Code Monétaire et Financier, pour l'organisation de la visite, la présentation d'une pièce d'identité vous sera demandée.Les informations sur les risques auxquels ce bien est exposé sont disponibles sur le site Géorisques : www. georisques. gouv. frSAS PROPRIETES PRIVEES - ZAC du Chêne ferré - 44 Allée des Cinq Continents 44120 VERTOU. Carte professionnelle CPI 4401 2016 000 010 388 CCI Nantes - Saint Nazaire. RCS NANTES 487 624 777. Thibault HILAIRE (EI) Agent Commercial - Numéro RSAC : MARSEILLE 881 947 675 - .
76 m²
3 p
2 ch

Appartement
Ref. 448645GNEG
178 500 €
2 100 €/m²
Appartement de type 4 de 85.7 m² (LC)Il se compose d'un salon de 19 m² environ, d'une cuisine de 9.3 m², de trois chambres de 10.5, 12.55, et 15.45 m², cette dernière est équipée d'un dressing de 2.45 m², d'une salle de bain de 4.45 m², d'un toilette de 1 m², un hall d'entrée de 4 m² et d'un dégagement de 4 m², un second dressing de 2.90 m².Une loggia de 2.5 m², un balcon de 5.85 m² et une cave de 6 m² environ complètent ce bien.L'appartement est équipé de climatisation et de volets roulants électriques.Des travaux de rafraichissements sont à prévoir.La copropriété est équipée de portails électriques.La copropriété sera vous séduire par ses espaces verts et son calme.Prix 178500 euros charge acquéreur, soit 170000 euros net vendeur et 8500 euros d'honoraires d'agence.Charges mensuelles : 250euros/mois (eau froide, eau chaude, chauffage collectif, entretien copro, ascenseur)Taxe foncière 1630 eurosDPE D GES DMontant estimé des dépenses annuelles d'énergie pour un usage standard entre 880 euros et 1.240 euros indexées aux années 2021, 2022, 2023.Pour visiter et vous accompagner dans votre projet, contactez Negri Gilles, au 06.50.71.37.72 ou, par courriel à g.negri@proprietes-privees.com.Selon l'article L.561.5 du Code Monétaire et Financier, pour l'organisation de la visite, la présentation d'une pièce d'identité vous sera demandée. Cette vente est garantie 12 mois. LE PLUS : La garantie Protec+ qui vous protège contre les vices cachés et dommages aux biens vous est offerte. Une exclusivité Proprietes-privees.com Cette présente annonce a été rédigée sous la responsabilité éditoriale de Gilles NEGRI agissant sous le statut d'agent commercial immatriculé au RSAC Marseille 919955294 auprès de la SAS PROPRIETES PRIVEES, au capital de 40 000 euros, ZAC LE CHÊNE FERRÉ - 44 ALLÉE DES CINQ CONTINENTS 44120 VERTOU; SIRET 487 624 777 00040, RCS Nantes. Carte professionnelle Transactions sur immeubles et fonds de commerce (T) et Gestion immobilière (G) n° CPI 4401 2016 000 010 388 délivrée par la CCI Nantes - Saint Nazaire. Compte séquestre n°30932508467 BPA SAINT-SEBASTIEN-SUR-LOIRE (44230) ; Garantie GALIAN - 89 rue de la Boétie, 75008 Paris - n°28137 J pour 2 000 000 euros pour T et 120 000 euros pour G. Assurance responsabilité civile professionnelle par GALIAN-SMABTP Entreprise n° de police RCP_01_28137J Mandat réf : 448645GNEG - Le professionnel garantit et sécurise votre projet immobilier.Gilles NEGRI (EI) Agent Commercial - Numéro RSAC : Marseille 919955294 - .Ce bien vous est présenté parGilles NEGRIPhoto Gilles NEGRILocalisationMARSEILLEMandat réf : 448645 - Le professionnel garantit et sécurise votre projet immobilier.Copropriété de 1223 lots ().Charges annuelles : 2800 euros. (5.00 % honoraires TTC à la charge de l'acquéreur.)Copropriété de 1223 lots - dont 892 lots habitation.Charges annuelles : 150 euros. Gilles NEGRI (EI) Agent Commercial - Numéro RSAC : Marseille 919955294 - .Les informations sur les risques auxquels ce bien est exposé sont disponibles sur le site Géorisques : www. georisques. gouv. fr
85 m²
4 p
3 ch

Appartement
Ref. 446662CHEB
155 000 €
3 444 €/m²
Bel appartement VENDU LOUE, fin du bail 01/2027LOYER 873 euros CC dont 120 euros de charges locatives, soit un loyer de 753 euros.Dans une copropriété récente et fermée,Bel appartement à découvrir, avec une grande terrasse offrant la possibilité d'un coin repas et d'un coin détente.L'appartement se compose d'une entrée, une pièce à vivre avec une cuisine ouverte de 20 m² environ, une chambre spacieuse de 12 m² environ donnant sur la terrasse, une salle d'eau avec WC.Le tout est en très bon état.Taxe foncière : 1450 euros.Charges : 130 euros/mois.64 lots d'habitation.Une place de parking extérieure complètent ce lot.Prix : 155000 euros Honoraires agence inclus à la charge du vendeur.Possibilité d'acquérir en sus un double box fermé.DPE : B et GES : AMontant estimé des dépenses annuelles d'énergie pour un usage standard entre 330 et 500 euros indexées aux années 2021, 2022 et 2023Pour visiter et vous accompagner dans votre projet, contactez Christine HERAUD-BLANC, au 0617383449 ou, par courriel à c.heraud-blanc@proprietes-privees.com.Vous pouvez également contacter Gilles NEGRI au 0650713772 ou g.negri@proprietes-privees.comSelon l'article L.561.5 du Code Monétaire et Financier, pour l'organisation de la visite, la présentation d'une pièce d'identité vous sera demandée.Cette présente annonce a été rédigée sous la responsabilité éditoriale de Christine HERAUD-BLANC agissant sous le statut d'agent commercial immatriculé au RSAC Marseille 889 642 773 auprès de SAS PROPRIETES PRIVEES, au capital de 44 920 euros, ZAC LE CHÊNE FERRÉ - 44 ALLÉE DES CINQ CONTINENTS 44120 VERTOU; SIRET 487 624 777 00040, RCS Nantes. Carte Professionnelle Transactions sur immeubles et fonds de commerce (T) et Gestion immobilière (G) n°CPI 4401 2016 000 010 388 délivrée par la CCI Nantes - Saint Nazaire. Compte séquestre n°30932508467 BPA SAINT-SEBASTIEN-SUR-LOIRE (44230). Garantie GALIAN-SMABTP - 89 rue de la Boétie, 75008 Paris - n°28137 J pour 2 000 000 euros pour T et 120 000 euros pour G. Assurance responsabilité civile professionnelle par GALIAN-SMABTP n° de police 28137.JMandat réf : 446662- Le professionnel garantit et sécurise votre projet immobilier.Copropriété de 159 lots - dont 64 lots habitation.Charges annuelles : 1560 euros. Christine HERAUD-BLANC (EI) Agent Commercial - Numéro RSAC : Marseille 889 642 773 - .Les informations sur les risques auxquels ce bien est exposé sont disponibles sur le site Géorisques : www. georisques. gouv. fr
45 m²
2 p
1 ch

Appartement
Ref. 446886ORG
249 000 €
3 276 €/m²
EN EXCLUSIVITE Marjorie GORRA vous propose dans un environnement privilégié, au coeur d'un secteur résidentiel composé majoritairement de villas, découvrez ce charmant appartement T4 situé au 2? étage d'un petit immeuble de seulement 3 étages (sans ascenseur), au sein d'une petite copropriété (8 appartements). composé d'une cuisine aménagée et équipée ouverte sur le salon donnant sur un grand balcon exposé SUD, 3 chambres avec placard dont une avec un coin bureau, une salle d'eau et un WC. Dans cette petite résidence, proche des commodités (école à 2 pas), vous serez immédiatement séduit par le calme absolu qui règne dans ce cadre verdoyant, avec un joli jardin partagé, une place de parking privative, un séchoir et une cave rare dans le secteur.PRIX : 249000 euros HONORAIRES CHARGE VENDEUR. Ce bien est soumis à la copropriété. Charges : 130 euros/ mois. Lot n°22. Nbre de lots : 33. Aucune procédure en cours. ?Les informations sur les risques auxquels ce bien est exposé sont disponibles sur le site Géorisques http://www.georisques.gouv.fr'.DPE : C GES : C Montant estimé des dépenses annuelles d'énergie pour un usage standard entre 142 et 27 euros indexées aux années 2021, 2022 et 2023 (ou 2021 uniquement) (si logement F ou G 'Logement à consommation énergétique excessive : classe F ou G')Pour visiter et vous accompagner dans votre projet, contactez Marjorie GORRA, au 0652635249 ou, par courriel à m.gorra@proprietes-privees.com.Selon l'article L.561.5 du Code Monétaire et Financier, pour l'organisation de la visite, la présentation d'une pièce d'identité vous sera demandée.Cette présente annonce a été rédigée sous la responsabilité éditoriale de Marjorie GORRA agissant sous le statut d'agent commercial immatriculé au RSAC Draguignan 822 508 271 auprès de SAS PROPRIETES PRIVEES, au capital de 44 920 euros, ZAC LE CHÊNE FERRÉ - 44 ALLÉE DES CINQ CONTINENTS 44120 VERTOU; SIRET 487 624 777 00040, RCS Nantes. Carte Professionnelle Transactions sur immeubles et fonds de commerce (T) et Gestion immobilière (G) n°CPI 4401 2016 000 010 388 délivrée par la CCI Nantes - Saint Nazaire. Compte séquestre n°30932508467 BPA SAINT-SEBASTIEN-SUR-LOIRE (44230). Garantie GALIAN-SMABTP - 89 rue de la Boétie, 75008 Paris - n°28137 J pour 2 000 000 euros pour T et 120 000 euros pour G. Assurance responsabilité civile professionnelle par GALIAN-SMABTP n° de police 28137.JMandat réf : 446886 - Le professionnel garantit et sécurise votre projet immobilier.Copropriété de 33 lots - dont 8 lots habitation.Charges annuelles : 156 euros. Marjorie GORRA (EI) Agent Commercial - Numéro RSAC : Draguignan 822 508 271 - .
76 m²
4 p
3 ch















