



THIZY-LES-BOURGS (69240) Immeuble de rapport , rentabilité immédiate, monopropriété
Ref. 443653KAG
THIZY (69240)
219 000 €
564 €/m²
388 m²
15 pièces
Atouts
Autres
Informations complémentaires
Classe énérgétique
Emissions GES
Description
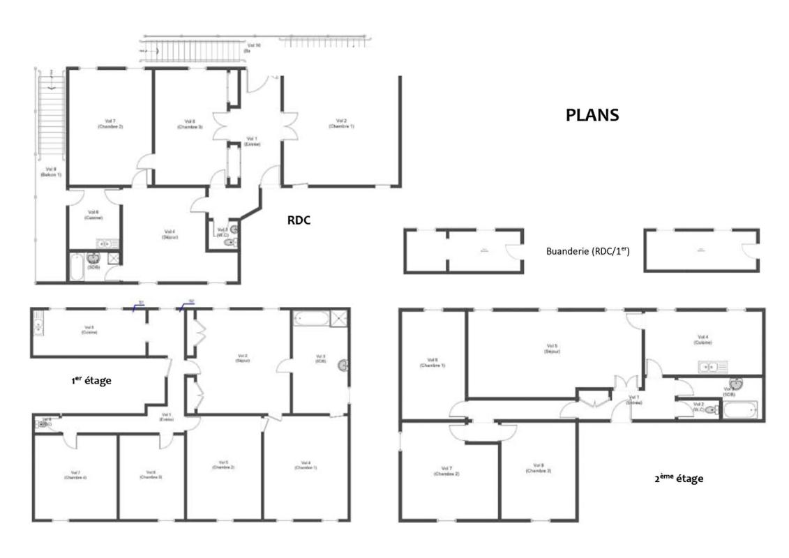
Très bien situé, au centre de Thizy-les-Bourgs, à environ 1h de Lyon, avec un niveau de rentabilité nettement plus attractif que la métropole. : immeuble de rapport en monopropriété, entièrement loué, offrant une rentabilité immédiate.L'immeuble se compose de 3 appartements :Rez-de-chaussée : T5 de 118 m² avec jardin, terrasse, dépendance et garage ? loué 693,57 euros / mois1er étage : T6 de 146 m² ? loué 581,28 euros / mois2ème étage : T5 de 119 m² ? loué 465,01 euros / moisRevenus locatifs annuels : 18 571 eurosRentabilité brute : 8.47 %Taxe foncière : 2345 eurosChaque logement dispose d'un chauffage individuel au gaz, de menuiseries bois double vitrage et d'une cave en sous-sol.Immeuble de caractère avec beaux volumes, situé dans un secteur central attractif.Produit adapté à un investissement locatif sécurisé avec potentiel d'optimisation.Gare à 10 minutes, liaison LYON avec TCL.DPE réalisé pour l'ensemble de l'immeuble (performances variables selon les logements).VIDEO de présentation et photos originales de tous les appartements sur demande.DPE E GES E - Montant estimé des dépenses annuelles d'énergie pour un usage standard entre 8820 euros et 11970 euros indexées aux années 2021, 2022 et 2023PRIX 219 000 euros, Honoraires charge vendeurPour visiter et vous accompagner dans votre projet, contactez Karine GARAYT, au 0672743646 ou, par courriel à k.garayt@proprietes-privees.com.Selon l'article L.561.5 du Code Monétaire et Financier, pour l'organisation de la visite, la présentation d'une pièce d'identité vous sera demandée.Cette présente annonce a été rédigée sous la responsabilité éditoriale de Karine GARAYT agissant sous le statut d'agent commercial immatriculé au RSAC roanne 819 403 817 auprès de SAS PROPRIETES PRIVEES, au capital de 44 920 euros, ZAC LE CHÊNE FERRÉ - 44 ALLÉE DES CINQ CONTINENTS 44120 VERTOU; SIRET 487 624 777 00040, RCS Nantes. Carte Professionnelle Transactions sur immeubles et fonds de commerce (T) et Gestion immobilière (G) n°CPI 4401 2016 000 010 388 délivrée par la CCI Nantes - Saint Nazaire. Compte séquestre n°30932508467 BPA SAINT-SEBASTIEN-SUR-LOIRE (44230). Garantie GALIAN-SMABTP - 89 rue de la Boétie, 75008 Paris - n°28137 J pour 2 000 000 euros pour T et 120 000 euros pour G. Assurance responsabilité civile professionnelle par GALIAN-SMABTP n° de police 28137.JMandat réf : 443653 - Le professionnel conseille et sécurise votre projet immobilier. Karine GARAYT (EI) Agent Commercial - Numéro RSAC : roanne 819 403 817 - .Les informations sur les risques auxquels ce bien est exposé sont disponibles sur le site Géorisques : www. georisques. gouv. fr
Ce bien vous est présenté par
Karine GARAYT

Les biens à proximité

Immeuble
Ref. 443651KAG
215 000 €
860 €/m²
Immeuble de rapport situé au centre de THIZY-LES-BOURGS (69240), à environ 1h00 de LYON, à proximité immédiate des commerces et écoles. Gare à 10 minutes et liaison LYON par TCL.Il est composé de 3 appartements et de 3 garages loués et de 2 plateaux à réhabiliter.Rez-de-chaussée : T1 avec mezzanine, DPE D1er étage : T3 avec jardin, terrasse, dépendances et entrée indépendante, DPE E2ème étage : T3 avec balcon, DPE EGarage pour 3 véhicules, rare sur le secteur.Revenus locatifs annuels: 15564 eurosRentabilité brute: 7.23 %Taxe foncière 1 285 eurosPossibilité d'optimisation du rendement après réhabilitation des plateaux et mise en copropriété.Pour les amateurs de patrimoine, le charme d'un immeuble ancien au coeur de la vie locale.VIDEO de présentation et photos complémentaires disponibles sur demande.DPE E - GES E : Montant moyen estimé des dépenses annuelles d'énergie pour un usage standard établi à partir des prix de l'énergie de l'année 2021 à 2023 : entre 1770 euros et 2440 eurosPRIX: 215 000 euros Honoraires charge vendeurPour visiter et vous accompagner dans votre projet, contactez Karine GARAYT, au 0672743646 ou, par courriel à k.garayt@proprietes-privees.com.Selon l'article L.561.5 du Code Monétaire et Financier, pour l'organisation de la visite, la présentation d'une pièce d'identité vous sera demandée.Cette présente annonce a été rédigée sous la responsabilité éditoriale de Karine GARAYT agissant sous le statut d'agent commercial immatriculé au RSAC roanne 819 403 817 auprès de SAS PROPRIETES PRIVEES, au capital de 44 920 euros, ZAC LE CHÊNE FERRÉ - 44 ALLÉE DES CINQ CONTINENTS 44120 VERTOU; SIRET 487 624 777 00040, RCS Nantes. Carte Professionnelle Transactions sur immeubles et fonds de commerce (T) et Gestion immobilière (G) n°CPI 4401 2016 000 010 388 délivrée par la CCI Nantes - Saint Nazaire. Compte séquestre n°30932508467 BPA SAINT-SEBASTIEN-SUR-LOIRE (44230). Garantie GALIAN-SMABTP - 89 rue de la Boétie, 75008 Paris - n°28137 J pour 2 000 000 euros pour T et 120 000 euros pour G. Assurance responsabilité civile professionnelle par GALIAN-SMABTP n° de police 28137.JMandat réf : 443651- Le professionnel conseille et sécurise votre projet immobilier. Karine GARAYT (EI) Agent Commercial - Numéro RSAC : roanne 819 403 817 - .Les informations sur les risques auxquels ce bien est exposé sont disponibles sur le site Géorisques : www. georisques. gouv. fr
250 m²
11 p

Immeuble
Ref. 441452KAG
168 000 €
1 112 €/m²
Immeuble en pierre offrant une belle opportunité d'investissement locatif. Il est situé à environ 1h00 de Lyon et à 10 minutes de la gare d'Amplepuis (69550) et du lac des sapins, dans un environnement calme et recherché à proximité des écoles et commerces.Composition de l'immeuble:RDC : T2 de 48 m² avec accès direct au jardin, actuellement libre (dernier loyer : 359,20 euros/mois).1er étage : T3 de 52,10 m², loué 366,69 euros/mois.2ème étage : T3 de 52,87 m², loué 367,24 euros/mois.Terrain 450 m² avec jardin arboré, caves et grenier exploitable.Menuiseries PVC double vitrage, Volets roulants électriques, chaudières individuelles gaz de villeDeux logements sont déjà loués, assurant une rentabilité immédiate. Le troisième, libre, offre un potentiel d'optimisation après rénovation.Dernier rapport locatif annuel : 13 117,56 eurosRentabilité brute : 7,8 %Taxe foncière: 1100 eurosLe DPE est collectif ; chaque appartement, bénéficiant d'équipements individuels, présentera des performances énergétiques différentes de l'étiquette globale de l'immeuble.Photos originales sur demande.DPE F - GES F - Montant estimé des dépenses annuelles d'énergie pour un usage standard entre 4640 et 6330 euros indexées aux années 2021, 2022 et 2023 . Logement à consommation énergétique excessive : classe FPRIX 168 000 euros honoraires à la charge du vendeurPour visiter et vous accompagner dans votre projet, contactez Karine GARAYT, au 0672743646 ou, par courriel à k.garayt@proprietes-privees.com.Selon l'article L.561.5 du Code Monétaire et Financier, pour l'organisation de la visite, la présentation d'une pièce d'identité vous sera demandée.Cette présente annonce a été rédigée sous la responsabilité éditoriale de Karine GARAYT agissant sous le statut d'agent commercial immatriculé au RSAC roanne 819 403 817 auprès de SAS PROPRIETES PRIVEES, au capital de 44 920 euros, ZAC LE CHÊNE FERRÉ - 44 ALLÉE DES CINQ CONTINENTS 44120 VERTOU; SIRET 487 624 777 00040, RCS Nantes. Carte Professionnelle Transactions sur immeubles et fonds de commerce (T) et Gestion immobilière (G) n°CPI 4401 2016 000 010 388 délivrée par la CCI Nantes - Saint Nazaire. Compte séquestre n°30932508467 BPA SAINT-SEBASTIEN-SUR-LOIRE (44230). Garantie GALIAN-SMABTP - 89 rue de la Boétie, 75008 Paris - n°28137 J pour 2 000 000 euros pour T et 120 000 euros pour G. Assurance responsabilité civile professionnelle par GALIAN-SMABTP n° de police 28137.JMandat réf : 441452 - Le professionnel conseille et sécurise votre projet immobilier. Karine GARAYT (EI) Agent Commercial - Numéro RSAC : roanne 819 403 817 - .Les informations sur les risques auxquels ce bien est exposé sont disponibles sur le site Géorisques : www. georisques. gouv. fr
151 m²
9 p

Immeuble
Ref. 406410KAG
65 000 €
258 €/m²
Karine GAYT vous propose, sur la commune de THIZY-LES-BOURGS, à 1h00 de LYON et 10 minutes de la gare d'AMPLEPUIS (69550): Bâtiment en pierre, idéal pour investisseur ou transformation en maison d'habitation pour passionnés de rénovation.Immeuble comprenant : 2 locaux commerciaux en rez-de-rue avec sous-sol, cave et entresol. Superficie de plancher: 128 m² sur 3 niveauxEtages avec 3 plateaux: 1er étage : 42 m² , 2ème étage: 38 m² , 3ème étage: 41 m²Budget travaux conséquent. Réhabilitation complète. Immeuble en monopropriété.Non soumis au DPE: absence de système de chauffagePRIX: 65 000 euros honoraires inclus de 5590 euros à la charge de l'acquéreur soit 9.41% soit 59 410 euros hors honorairesPour visiter et vous accompagner dans votre projet, contactez Karine GARAYT, au 0672743646 ou, par courriel à k.garayt@proprietes-privees.com.Selon l'article L.561.5 du Code Monétaire et Financier, pour l'organisation de la visite, la présentation d'une pièce d'identité vous sera demandée.Cette vente est garantie 12 moisCette présente annonce a été rédigée sous la responsabilité éditoriale de Karine GARAYT agissant sous le statut d'agent commercial immatriculé au RSAC roanne 819 403 817 auprès de SAS PROPRIETES PRIVEES, au capital de 44 920 euros, ZAC LE CHÊNE FERRÉ - 44 ALLÉE DES CINQ CONTINENTS 44120 VERTOU; SIRET 487 624 777 00040, RCS Nantes. Carte Professionnelle Transactions sur immeubles et fonds de commerce (T) et Gestion immobilière (G) n°CPI 4401 2016 000 010 388 délivrée par la CCI Nantes - Saint Nazaire. Compte séquestre n°30932508467 BPA SAINT-SEBASTIEN-SUR-LOIRE (44230). Garantie GALIAN-SMABTP - 89 rue de la Boétie, 75008 Paris - n°28137 J pour 2 000 000 euros pour T et 120 000 euros pour G. Assurance responsabilité civile professionnelle par GALIAN-SMABTP n° de police 28137.JMandat réf : 406410 - Le professionnel conseille et sécurise votre projet immobilier. (9.41 % honoraires TTC à la charge de l'acquéreur.) Karine GARAYT (EI) Agent Commercial - Numéro RSAC : roanne 819 403 817 - .Les informations sur les risques auxquels ce bien est exposé sont disponibles sur le site Géorisques : www. georisques. gouv. fr
251 m²
15 p

















