



Mini villa à 300 mètres de la plage à Sainte Lucie De Porto Vecchio 20144 - CORSE DU SUD - FRANCE
Ref. 446573KFL
ZONZA (20144)
245 000 €
7 000 €/m²
35 m²
2 pièces
1 chambres
Séjour de 17m²
Terrain de 25m²
1 WC
Atouts
Jardin privatif
Autres
Informations complémentaires
Classe énérgétique
Emissions GES
Description
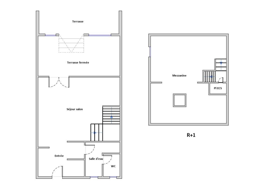
Découvrez cette charmante mini-villa en duplex offrant un cadre de vie rare à seulement 3 minutes à pied de la magnifique plage de Pinarello.Dans une résidence parfaitement entretenue, nichée au coeur d'un environnement naturel et paisibleÉdifiée sur deux niveaux (rez-de-chaussée et mezzanine), elle se compose de :Un séjour / salon lumineuxUne terrasse fermée accueillant une cuisine aménagée et entièrement équipéeUne salle d'eauUn WC indépendantL'espace nuit se situe en mezzanine avec un couchage en 160 cm. La hauteur sous plafond réduite apporte un esprit cocooning et insolite. Sous toiture, un espace complémentaire permet d'envisager un couchage pour enfant.A l'extérieur :- un jardin privatif intimiste d'environ 25 m2 idéal pour savourer la douceur du climat et les soirées d'été en toute tranquillité.- une place de stationnement privative au sein de la résidence clôturée et équipée d'unportail électrique, complète le confort de ce bien.Les atouts majeurs :A seulement 3 minutes à pied de la plageEnvironnement naturel et calmeRésidence soignéeBien confortable et fonctionnelParfait pour un couple souhaitant vivre à l'année dans un cadre privilégié, ce bien constitue également une excellente opportunité d'investissement locatif saisonnier (capacité 2 à 4 personnes).Un véritable pied-à-terre à l'atmosphère chaleureuse, où sérénité et proximité immédiate de la mer se conjuguent au quotidien.Prix de Vente : 245 000 euros. Le prix indiqué comprend les honoraires de 4.26 %, à la charge de l'acquéreur. Prix hors honoraires 235 000 eurosConsommation énergétique C 153 kwh/m²/anEmission de gaz à effet de serre A 5 kg CO2/m²/anEstimation du cout annuel en énergie pour un usage standard entre 450 euros et 620 euros (prix moyens des énergies indexées sur les années 2021, 2022,2023)Copropriété de 24 lots dont 24 lots d'habitation - charges de copropriété : 540 euros / anA propos de la copropriété : Pas de procédure en cours Statut provisoire du syndicat : Pas de procédure en coursPour visiter et vous accompagner dans votre projet, contactez Kandy et Laurent FLAJOLLET, au 0623781869 et 0662255840 ou, par courriel à k.flajollet@proprietes-privees.com et l.flajollet@proprietes-privees.comSelon l'article L.561.5 du Code Monétaire et Financier, pour l'organisation de la visite, la présentation d'une pièce d'identité vous sera demandée.Cette présente annonce a été rédigée sous la responsabilité éditoriale de Kandy et Laurent FLAJOLLET agissant sous le statut d'agent commercial immatriculé au RSAC ajaccio 498912369 et 804573459 auprès de SAS PROPRIETES PRIVEES, au capital de 44 920 euros, ZAC LE CHÊNE FERRÉ - 44 ALLÉE DES CINQ CONTINENTS 44120 VERTOU; SIRET 487 624 777 00040, RCS Nantes. Carte Professionnelle Transactions sur immeubles et fonds de commerce (T) et Gestion immobilière (G) n°CPI 4401 2016 000 010 388 délivrée par la CCI Nantes - Saint Nazaire. Compte séquestre n°30932508467 BPA SAINT-SEBASTIEN-SUR-LOIRE (44230). Garantie GALIAN-SMABTP - 89 rue de la Boétie, 75008 Paris - n°28137 J pour 2 000 000 euros pour T et 120 000 euros pour G. Assurance responsabilité civile professionnelle par GALIAN-SMABTP n° de police 28137.JMandat réf : 446573KFL - Le professionnel garantit et sécurise votre projet immobilier.(*) (Dans le cadre de la réglementation TRACFIN, le professionnel de l'immobilier a une obligation de vigilance. A ce titre, il doit être en mesure de vérifier l'identité du bénéficiaire effectif de l'opération dès la prise de contact et tout au long de la relation d'affaire.) (4.26 % honoraires TTC à la charge de l'acquéreur.)Copropriété de 24 lots - dont 24 lots habitation.Charges annuelles : 539 euros. Kandy et Laurent FLAJOLLET (EI) Agent Commercial - Numéro RSAC : ajaccio 498912369 - .Les informations sur les risques auxquels ce bien est exposé sont disponibles sur le site Géorisques : www. georisques. gouv. fr
Ce bien vous est présenté par
Kandy et Laurent FLAJOLLET

Les biens à proximité

Maison
Ref. 446599KFL
595 000 €
4 343 €/m²
Maison individuelle de plain-pied spacieuse avec ces 137 m2 entièrement clôturée et sécurisée par un portail et une porte d'accès, offrant un cadre de vie agréable et fonctionnel.Située à proximité des plages et des commerces, cette maison allie confort, charme et praticitéEspaces intérieurs :Dès l'entrée, vous serez séduit par un vaste salon-séjour agrémenté d'une cheminée pour des moments chaleureux.Une cuisine attenante, mise en valeur par une voûte pleine de cachet, offre un bel espace repas avec poutre apparente et rangements généreux.Vous trouverez également un cellier, une loggia aménagée en bureau, un WC avec lave-mains ainsi qu'une grande penderie pratique au quotidien.Espace nuit :L'espace nuit se compose de trois grandes chambres d'environ 14 m² chacune , d'une salle d'eau avec wc et d'une salle de bain.Extérieurs :Côté jardin, place à la détente :Piscine avec terrasse en bois, idéale pour les journées ensoleillées,Cuisine d'été aménagée, au charme indéniable,Espace détente convivial,Atelier fonctionnel,Grand parking privatif pouvant accueillir jusqu'à 4 véhicules,Terrain plat entièrement clôturé, facile à entretenir.Prix de Vente : 595 00 euros. Le prix indiqué comprend les honoraires de 3,66 %, à la charge de l'acquéreur. Prix hors honoraires 574 000 eurosDPE : Classe B 108 - GES : A 3 - Montant moyen estimé des dépenses annuelles d'énergie pour un usage standard établi à partir des prix de l'énergie de l'année 2021,2022,2023 : entre 943 et 1275 euros (abonnements compris) .Pour visiter et vous accompagner dans votre projet, contactez Kandy et Laurent FLAJOLLET, au 0623781869 et 0662255840 ou, par courriel à k.flajollet@proprietes-privees.com et l.flajollet@proprietes-privees.comSelon l'article L.561.5 du Code Monétaire et Financier, pour l'organisation de la visite, la présentation d'une pièce d'identité vous sera demandée.Cette présente annonce a été rédigée sous la responsabilité éditoriale de Kandy et Laurent FLAJOLLET agissant sous le statut d'agent commercial immatriculé au RSAC Ajaccio 498912369 et 804573459 auprès de SAS PROPRIETES PRIVEES, au capital de 44 920 euros, ZAC LE CHÊNE FERRÉ - 44 ALLÉE DES CINQ CONTINENTS 44120 VERTOU; SIRET 487 624 777 00040, RCS Nantes. Carte Professionnelle Transactions sur immeubles et fonds de commerce (T) et Gestion immobilière (G) n°CPI 4401 2016 000 010 388 délivrée par la CCI Nantes - Saint Nazaire. Compte séquestre n°30932508467 BPA SAINT-SEBASTIEN-SUR-LOIRE (44230). Garantie GALIAN-SMABTP - 89 rue de la Boétie, 75008 Paris - n°28137 J pour 2 000 000 euros pour T et 120 000 euros pour G. Assurance responsabilité civile professionnelle par GALIAN-SMABTP n° de police 28137.JMandat réf : 446599KFL - Le professionnel garantit et sécurise votre projet immobilier. (3.66 % honoraires TTC à la charge de l'acquéreur.) Kandy et Laurent FLAJOLLET (EI) Agent Commercial - Numéro RSAC : ajaccio 498912369 - .Les informations sur les risques auxquels ce bien est exposé sont disponibles sur le site Géorisques : www. georisques. gouv. fr
137 m²
5 p
3 ch

Maison
Ref. 444956KFL
2 990 000 €
15 654 €/m²
Villa contemporaine d'exception avec vue mer panoramique ? Sainte-Lucie de Porto-VecchioDans un environnement naturel préservé, au calme absolu et sans vis-à-vis, cette villa contemporaine de standing offre une vue mer panoramique exceptionnelle.D'une superficie d'environ 200 m² plus une cuisine d'été de 40m2 environ, elle est implantée sur un magnifique terrain paysager et arboré de 3 500 m². Les extérieurs sont sublimés par une piscine de 14 x 4 m (traitement au sel, volet roulant, pompe à chaleur), une élégante plage en bois d'ipé et un espace solarium propice à la détente.La villa se développe sur deux niveaux :?Rez-de-chaussée : quatre chambres, chacune avec sa salle d'eau privative, une buanderie, un WC indépendant et une cuisine d'été couverte?Étage : un grand séjour lumineux donnant sur une vaste terrasse avec vue mer, une cuisine moderne entièrement équipée, un cellier, ainsi qu'une suite vue mer avec salle d'eau et dressing.Située à moins de 10 minutes des commodités, cette propriété rare bénéficie d'un emplacement privilégié en zone inconstructible, garantissant intimité et sérénité.Un bien unique alliant prestations haut de gamme, confort absolu et cadre de vie exceptionnel.Consommation énergétique C 118 kwh/m²/anEmission de gaz à effet de serre A 3 kg CO2/m²/anEstimation du cout annuel en énergie pour un usage standard entre 1730 euros et 2390 eurosPrix de Vente : 2 990 000 euros - honoraires d'agence inclus à la charge du vendeurPour visiter et vous accompagner dans votre projet, contactez Kandy et Laurent FLAJOLLET, au 0623781869 ou, par courriel à k.flajollet@proprietes-privees.com ou au 06 62 25 58 40 ou, par courriel à l.flajollet@proprietes-privees.comSelon l'article L.561.5 du Code Monétaire et Financier, pour l'organisation de la visite, la présentation d'une pièce d'identité vous sera demandée.Cette présente annonce a été rédigée sous la responsabilité éditoriale de Kandy et Laurent FLAJOLLET agissant sous le statut d'agent commercial immatriculé au RSAC ajaccio 498912369 et 804573459 auprès de SAS PROPRIETES PRIVEES, au capital de 44 920 euros, ZAC LE CHÊNE FERRÉ - 44 ALLÉE DES CINQ CONTINENTS 44120 VERTOU; SIRET 487 624 777 00040, RCS Nantes. Carte Professionnelle Transactions sur immeubles et fonds de commerce (T) et Gestion immobilière (G) n°CPI 4401 2016 000 010 388 délivrée par la CCI Nantes - Saint Nazaire. Compte séquestre n°30932508467 BPA SAINT-SEBASTIEN-SUR-LOIRE (44230). Garantie GALIAN-SMABTP - 89 rue de la Boétie, 75008 Paris - n°28137 J pour 2 000 000 euros pour T et 120 000 euros pour G. Assurance responsabilité civile professionnelle par GALIAN-SMABTP n° de police 28137.JMandat réf : 444956KFL - Le professionnel garantit et sécurise votre projet immobilier.(*) (Dans le cadre de la réglementation TRACFIN, le professionnel de l'immobilier a une obligation de vigilance. A ce titre, il doit être en mesure de vérifier l'identité du bénéficiaire effectif de l'opération dès la prise de contact et tout au long de la relation d'affaire. Kandy et Laurent FLAJOLLET (EI) Agent Commercial - Numéro RSAC : ajaccio 498912369 - .
191 m²
6 p
5 ch

Maison
Ref. 426837KFL
568 000 €
5 409 €/m²
Maison neuve T4 de plain-pied - A 3 min des plages ! Rare qualité/prix !Découvrez cette maison neuve contemporaine de plain-pied, alliant confort moderne, fonctionnalité et emplacement privilégié.Située à STE LUCIE DE PORTO-VECCHIO dans un petit lotissement neuf à l'ambiance chaleueuse (chacun son indépendance), elle offre un cadre de vie agréable et paisible, à moins de 3 minutes des plages et 5 minutes de toutes les commodités.Composition :Entrée avec espace placardSpacieux séjour/salon lumineux avec hauteur sous plafond et espace cuisine à aménager selon vos enviesCellier attenantEspace nuit indépendant comprenant : trois chambres, chacune avec sa salle d'eau privative, dont une avec WCWC indépendant supplémentaireExtérieur :Sur un terrain plat d'environ 710 m² à aménager à votre goût : possibilité de créer un espace détente, terrasse, pelouse synthétique, massifs d'arbustes, haies végétales séparatives, coin pétanque ou jardin paysager personnalisé.Atouts supplémentaires :Construction neuve aux normes RT 2012 (excellente performance énergétique)Plain-pied fonctionnel et lumineuxEnvironnement calme et résidentielTrès bon rapport qualité/prix pour le secteur !FRAIS DE NOTAIRE REDUITSUn beau projet d'acquisitionIdéal pour une résidence principale, secondaire ou un investissement locatif.A visiter sans tarder - bien rare sur le marché !Prix de Vente : 568 000 euros. Le prix indiqué comprend les honoraires de 3.99 %, à la charge de l'acquéreur. Prix hors honoraires 546 200 eurosConsommation énergétique A 34 kwh/m²/anEmission de gaz à effet de serre A 1kg CO2/m²/anEstimation du cout annuel en énergie pour un usage standard entre 300 euros et 440 euros indexés à l'année 2021Pour visiter et vous accompagner dans votre projet, contactez Kandy et Laurent FLAJOLLET, au 0623781869 et 0662255840 ou, par courriel à k.flajollet@proprietes-privees.com et l.flajollet@proprietes-privees.comSelon l'article L.561.5 du Code Monétaire et Financier, pour l'organisation de la visite, la présentation d'une pièce d'identité vous sera demandée.Cette présente annonce a été rédigée sous la responsabilité éditoriale de Kandy et Laurent FLAJOLLET agissant sous le statut d'agent commercial immatriculé au RSAC ajaccio 498912369 et 804573459 auprès de SAS PROPRIETES PRIVEES, au capital de 44 920 euros, ZAC LE CHÊNE FERRÉ - 44 ALLÉE DES CINQ CONTINENTS 44120 VERTOU; SIRET 487 624 777 00040, RCS Nantes. Carte Professionnelle Transactions sur immeubles et fonds de commerce (T) et Gestion immobilière (G) n°CPI 4401 2016 000 010 388 délivrée par la CCI Nantes - Saint Nazaire. Compte séquestre n°30932508467 BPA SAINT-SEBASTIEN-SUR-LOIRE (44230). Garantie GALIAN-SMABTP - 89 rue de la Boétie, 75008 Paris - n°28137 J pour 2 000 000 euros pour T et 120 000 euros pour G. Assurance responsabilité civile professionnelle par GALIAN-SMABTP n° de police 28137.JMandat réf : 382769 - Le professionnel garantit et sécurise votre projet immobilier.(*) (Dans le cadre de la réglementation TRACFIN, le professionnel de l'immobilier a une obligation de vigilance. A ce titre, il doit être en mesure de vérifier l'identité du bénéficiaire effectif de l'opération dès la prise de contact et tout au long de la relation d'affaire.) (3.99 % honoraires TTC à la charge de l'acquéreur.)Copropriété de 12 lots - dont 12 lots habitation. Kandy et Laurent FLAJOLLET (EI) Agent Commercial - Numéro RSAC : ajaccio 498912369 - .
105 m²
4 p
3 ch

Maison
Ref. 442912VGIL
1 290 000 €
6 450 €/m²
Idéalement située à Sainte-Lucie de Porto-Vecchio, dans un environnement calme et recherché, cette élégante villa contemporaine bénéficie d'un emplacement privilégié, à seulement quelques minutes des plages préservées et du charmant village marin de Pinarello.Développant environ 200 m² habitables, cette propriété entièrement de plain-pied séduit immédiatement par son architecture contemporaine, la générosité de ses volumes et la luminosité naturelle qui baigne l'ensemble des espaces.La pièce de vie, chaleureuse et ouverte sur l'extérieur, accueille un salon avec cheminée, une salle à manger conviviale ainsi qu'une cuisine ouverte entièrement équipée. L'ensemble se prolonge harmonieusement vers une spacieuse terrasse baignée de soleil, offrant un cadre idéal pour profiter pleinement de la douceur du climat méditerranéen.L'espace nuit propose quatre chambres confortables, dont trois avec leur salle d'eau privative, ainsi qu'une suite parentale disposant de sa propre salle d'eau. Un bureau complète cet espace et peut être accessible depuis la suite ou de manière indépendante, offrant de multiples possibilités d'aménagement.Le toit-terrasse permet de profiter d'un agréable aperçu sur la mer, tandis que le terrain d'environ 1 299 m² accueille une piscine et de beaux espaces extérieurs propices à la détente, dans un environnement paisible et intimiste.A proximité immédiate de Pinarello, de ses plages emblématiques et de son atmosphère authentique, cette propriété offre un cadre de vie privilégié, entre mer et nature.Le confort rare d'une villa entièrement de plain-pied constitue ici un véritable atout, alliant élégance, fonctionnalité et douceur de vivre.DPE : 21 A GES : 0 AMontant estimé des dépenses annuelles d'énergie pour un usage standard entre 480 et 680 euros indexées aux années 2021, 2022 et 2023.Pour visiter et vous accompagner dans votre projet, contactez Virginie GILLET, au 0684973751 ou, par courriel à v.gillet@proprietes-privees.com.Selon l'article L.561.5 du Code Monétaire et Financier, pour l'organisation de la visite, la présentation d'une pièce d'identité vous sera demandée.Cette présente annonce a été rédigée sous la responsabilité éditoriale de Virginie GILLET agissant sous le statut d'agent commercial immatriculé au RSAC 793407172 AJACCIO auprès de SAS PROPRIETES PRIVEES, au capital de 44 920 euros, ZAC LE CHÊNE FERRÉ - 44 ALLÉE DES CINQ CONTINENTS 44120 VERTOU; SIRET 487 624 777 00040, RCS Nantes. Carte Professionnelle Transactions sur immeubles et fonds de commerce (T) et Gestion immobilière (G) n°CPI 4401 2016 000 010 388 délivrée par la CCI Nantes - Saint Nazaire. Compte séquestre n°30932508467 BPA SAINT-SEBASTIEN-SUR-LOIRE (44230). Garantie GALIAN-SMABTP - 89 rue de la Boétie, 75008 Paris - n°28137 J pour 2 000 000 euros pour T et 120 000 euros pour G. Assurance responsabilité civile professionnelle par GALIAN-SMABTP n° de police 28137.JMandat réf : 442912- Le professionnel garantit et sécurise votre projet immobilier.Prix : 1290000 euros commission à la charge du vendeur. Virginie GILLET (EI) Agent Commercial - Numéro RSAC : 793407172 AJACCIO - .Les informations sur les risques auxquels ce bien est exposé sont disponibles sur le site Géorisques : www. georisques. gouv. fr
200 m²
6 p
4 ch









