



Calme mais accès 2Mn pour N12 et commerces
Ref. 424554RCM
BAZAINVILLE (78550)
450 000 €
3 000 €/m²
150 m²
6 pièces
4 chambres
Terrain de 1050m²
2 WC
1 salle de bain
Atouts
Jardin privatif
Cheminée
Autres
Informations complémentaires
Classe énérgétique
Emissions GES
Description
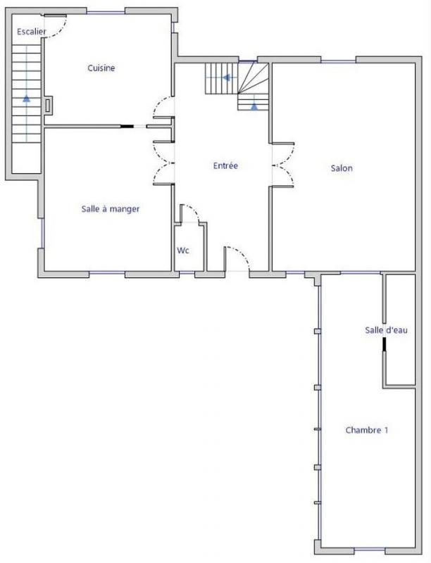
Charmante maison FAMILIALE indépendante de 150 m² environ avec des performances énergétiques maximisées ! DPE C !POMPE A CHALEUR + ballon THERMODYNAMIQUE + cheminée insert, bâti en béton cellulaire et plancher béton : la combinaison gagnante. Cette vente est garantie 12 mois !Les + :- Sans vis-à-vis- Au calme- Rénovation en 2013, aucun travaux à prévoir !- Sous-sol total avec garage, atelier, bureau, buanderie- Véranda pour profiter d'un été prolongé- Grand jardin arboré- A 2 MINUTES DES COMMODITES- Proximité (mais sans nuisances sonores) de la N12 (2mn), des transports en commun (GARE à 5 Kms) , écoles, collèges, et crèches, hypermarché (3 mn). HOUDAN à 5mn. Piscine 7 mn.- Un combles aménagé pour le bonheur des plus jeunesNe perdez pas de temps pour visiter cette belle maison qui se compose ainsi :Edifiée sur un sous-sol total avec garage, buanderie, chaufferie, un second bureau, et ateliers.Au rez-de-jardin : Entrée, Cuisine aménagée et équipée , salle à manger (possible chambre), WC, séjour cheminée avec insert, véranda.Au premier étage, le palier dessert 3 chambres avec placards, 1 bureau (ou dressing), une salle de bains + douche avec placards, et un WC séparé.Les plus jeunes s'aventureront dans le grenier isolé et aménagé pour de bons moment en toute discrétion.Les extérieurs vous raviront avec une belle terrasse, un jardin lumineux et arboré, sa vue campagne en arrière plan, abri bois et balançoire.Sur sa partie arrière, le jardin dispose d'une cabane en bois, un bassin à poissons, un chenil et un bûcher, ainsi qu'un espace potager.Chauffage par POMPE A CHALEUR, ballon THERMODYNAMIQUE et adoucisseur d'eau.Maison construite en 1981 , Exposition SUD.Ce hameau de Gambais est à 2 MINUTES DES COMMODITES, proximité de la N12 (2 mn, mais sans nuisances sonores), des transports en commun (GARE à 5 Kms) , écoles, collèges, et crèches, hypermarché (3 mn). HOUDAN à 5mn. Piscine 7 mn.PERFORMANCE ENERGETIQUE : DPE C GES AMontant estimé des dépenses annuelles d'énergie pour un usage standard entre 1320 et 1840 euros.Prix de vente 450000 euros charges vendeurs.Pour visiter et vous accompagner dans votre projet, contactez Rémi CAMUS, au 0611191364 ou par courriel à r.camus@proprietes-privees.comSelon l'article L.561.5 du Code Monétaire et Financier, pour l'organisation de la visite, la présentation d'une pièce d'identité vous sera demandée.Cette vente est garantie 12 mois.Cette présente annonce a été rédigée sous la responsabilité éditoriale de Rémi CAMUS agissant sous le statut d'agent commercial immatriculé au RSAC VERSAILLES 890 493 927 auprès de la SAS PROPRIETES PRIVEES, au capital de 44 920 euros, ZAC LE CHÊNE FERRÉ - 44 ALLÉE DES CINQ CONTINENTS 44120 VERTOU; SIRET 487 624 777 00040, RCS Nantes. Carte professionnelle Transactions sur immeubles et fonds de commerce (T) et Gestion immobilière (G) n° CPI 4401 2016 000 010 388 délivrée par la CCI Nantes - Saint Nazaire. Compte séquestre n°30932508467 BPA SAINT-SEBASTIEN-SUR-LOIRE (44230) ; Garantie GALIAN - 89 rue de la Boétie, 75008 Paris - n°28137 J pour 2 000 000 euros pour T et 120 000 euros pour G. Assurance responsabilité civile professionnelle par MMA Entreprise n° de police 120.137.405Mandat réf : 381723 - Le professionnel garantit et sécurise votre projet immobilier. Rémi CAMUS (EI) Agent Commercial - Numéro RSAC : VERSAILLES 890 493 927 - .
Ce bien vous est présenté par
Rémi CAMUS

Les biens à proximité

Maison
Ref. 406314FPOU
469 000 €
2 931 €/m²
Gambais 5 mn / Houdan 7mnDans un village recherché des Yvelines, maison lumineuse récente R+1 de 160 m2 environ comprenant au rdc : double séjour de 40 m2 avec cheminée insert, cuisine ouverte aménagée et équipée, buanderie, chambre avec salle d'eau, wc séparé, garage attenant.A l'étage : palier desservant 4 belles de chambres de 12 à 16 m2, salle de bain avec douche, wc séparé.Terrain clos de 1200 m2 environ avec portail motorisé, carport et abri de jardin.Idéalement située, avec écoles, commerces, maison médicale à pied.Environnement privilégié avec la forêt domaniale de Rambouillet à proximité.Matériaux de qualité / maison en brique rouge / PVC double vitrage / plancher béton / volets électriques centralisés / portail motorisé / fibre optique / vide sanitaire / ballon thermodynamiqueDPE : C 158 / GES : A 5Consommation énergétique annuelle estimée entre 1629 et 2203 euros ( années 2021/2022/2023 ).Bien non soumis à la copropriété.Prix : 469.000 euros honoraires d'agence inclusPour visiter et vous accompagner dans votre projet, contactez Frédéric POUZENC, au 0782727570 ou, par courriel à f.pouzenc@proprietes-privees.com.Selon l'article L.561.5 du Code Monétaire et Financier, pour l'organisation de la visite, la présentation d'une pièce d'identité vous sera demandée.Cette présente annonce a été rédigée sous la responsabilité éditoriale de Frédéric POUZENC agissant sous le statut d'agent commercial immatriculé au RSAC VERSAILLES 827506056 auprès de SAS PROPRIETES PRIVEES, au capital de 44 920 euros, ZAC LE CHÊNE FERRÉ - 44 ALLÉE DES CINQ CONTINENTS 44120 VERTOU; SIRET 487 624 777 00040, RCS Nantes. Carte Professionnelle Transactions sur immeubles et fonds de commerce (T) et Gestion immobilière (G) n°CPI 4401 2016 000 010 388 délivrée par la CCI Nantes - Saint Nazaire. Compte séquestre n°30932508467 BPA SAINT-SEBASTIEN-SUR-LOIRE (44230). Garantie GALIAN-SMABTP - 89 rue de la Boétie, 75008 Paris - n°28137 J pour 2 000 000 euros pour T et 120 000 euros pour G. Assurance responsabilité civile professionnelle par GALIAN-SMABTP n° de police 28137.JMandat réf : 406314 - Le professionnel garantit et sécurise votre projet immobilier. Frédéric POUZENC (EI) Agent Commercial - Numéro RSAC : VERSAILLES 827506056 - .
160 m²
7 p
5 ch

Appartement
Ref. 428860FPOU
235 000 €
2 155 €/m²
Gambais 3 mn / Houdan 7 mn / Magnifique appartement lumineux dans une petite copropriété parfaitement entretenue, située dans un village prisé du 78.Au 2ème et dernier étage, il comprend : entrée, pièce de vie avec cuisine ouverte de 48 m2, 4 grandes chambres ( 16 / 16,50 / 21,80 et 25,80 m2 environ ) dont 3 avec dressing, salle de bains, salle de douche, wc séparé. 2 emplacements de parking complètent le bien.Electricité refaite / Velux, ballon d'eau et radiateurs récents.Situé au calme, au centre-ville avec commerces à pied.DPE : D 241 / GES : B 7Consommation énergétique annuelle estimée entre 2000 et 2750 euros ( 2021 / 2022 / 2023).Bien en copropriété / 34 lots / charges annuelles 1365 euros.Aucune procédure en cours.Prix : 235.000 euros honoraires d'agence inclusPour visiter et vous accompagner dans votre projet, contactez Frédéric POUZENC, au 0782727570 ou, par courriel à f.pouzenc@proprietes-privees.com.Selon l'article L.561.5 du Code Monétaire et Financier, pour l'organisation de la visite, la présentation d'une pièce d'identité vous sera demandée.Cette présente annonce a été rédigée sous la responsabilité éditoriale de Frédéric POUZENC agissant sous le statut d'agent commercial immatriculé au RSAC VERSAILLES 827506056 auprès de SAS PROPRIETES PRIVEES, au capital de 44 920 euros, ZAC LE CHÊNE FERRÉ - 44 ALLÉE DES CINQ CONTINENTS 44120 VERTOU; SIRET 487 624 777 00040, RCS Nantes. Carte Professionnelle Transactions sur immeubles et fonds de commerce (T) et Gestion immobilière (G) n°CPI 4401 2016 000 010 388 délivrée par la CCI Nantes - Saint Nazaire. Compte séquestre n°30932508467 BPA SAINT-SEBASTIEN-SUR-LOIRE (44230). Garantie GALIAN-SMABTP - 89 rue de la Boétie, 75008 Paris - n°28137 J pour 2 000 000 euros pour T et 120 000 euros pour G. Assurance responsabilité civile professionnelle par GALIAN-SMABTP n° de police 28137.JMandat réf : 428860 - Le professionnel garantit et sécurise votre projet immobilier.Copropriété de 34 lots - dont 13 lots habitation. ().Charges annuelles : 1365 euros. Frédéric POUZENC (EI) Agent Commercial - Numéro RSAC : VERSAILLES 827506056 - .Les informations sur les risques auxquels ce bien est exposé sont disponibles sur le site Géorisques : www. georisques. gouv. fr
109 m²
5 p
4 ch

Maison
Ref. 424189CLS
425 000 €
3 373 €/m²
Elle a tout pour plaire LA SO PRETTY !C'est en EXCLUSIVITÉ, c'est du VIP, et c'est en plain centre de Gambais avec absolument toutes les commodités à pied !Parfaite pour une famille avec enfants cette maison d'environ 126m² habitablespropose quatre chambres dont une suite parentale élégante assortie de ses toilettes et salle de douche.Le séjour, empreint de lumière, est agrémenté d'une cheminée?insert traversante et une mezzanine valorisante.La cuisine tendance, aménagée et équipée est prête à vous accueillir.Vous bénéficierez également de plain-pied d'une salle de bains soignée et de WC séparés.Le sous?sol est un atout complet : garage, atelier, buanderie, cave/cellier, et une pièce aménagée selon vos besoins - bureau, chambre d'amis ou salle de jeux, à vous de choisir.Sur plus de 1000?m², vous profiterez d'un aménagement extérieur agréablement aménagé : carport, stationnements, espaces de détente, portique, poulailler et bûcher, dans un cadre reposant.Le vrai atout : la vie de village à portée de pas. Boulangerie, école, pharmacie accessibles à pied. Nature, forêt, balades, animations locales (fête du printemps, lampions?) tout cela à deux pas. Et pour vos autres courses, les commerces d'Intermarché et de Houdan sont à seulement 6?minutes.Gambais et son art de vivre heureux dans cette jolie maison n'attendent plus que vous !Pour en savoir plus, visiter et vous accompagner dans votre projet contactez Sandrine CAILLAUD au 06.12.32.48.06 ou par courriel à s.caillaud@proprietes-privees.com ou Carole PIHAN au 06.19.97.36.85 ou par courriel à c.pihan@proprietes-privees.comInformations énergétiques: DPE D Valeur 247 - GES B Valeur 8Montant moyen estimé des dépenses annuelles d'énergie pour un usage standard établi à partir des prix de l'énergie des années au 2021/2022/2023 : entre 2140 à 2950 euros.Selon l'article L.561.5 du Code Monétaire et Financier, pour l'organisation de la visite, la présentation d'une pièce d'identité vous sera demandée.Cette vente est garantie 12 mois.Cette présente annonce a été rédigée sous la responsabilité éditoriale de Sandrine CAILLAUD agissant sous le statut d'agent commercial immatriculé au RSAC CHARTRES 795 093 582 auprès de la SAS PROPRIETES PRIVEES, au capital de 40 000 euros, ZAC LE CHÊNE FERRÉ - 44 ALLÉE DES CINQ CONTINENTS 44120 VERTOU; SIRET 487 624 777 00040, RCS Nantes. Carte professionnelle Transactions sur immeubles et fonds de commerce (T) et Gestion immobilière (G) n° CPI 4401 2016 000 010 388 délivrée par la CCI Nantes - Saint Nazaire. Compte séquestre n°30932508467 BPA SAINT-SEBASTIEN-SUR-LOIRE (44230) ; Garantie GALIAN -SMABTP- 89 rue de la Boétie, 75008 Paris - n°28137 J pour 2 000 000 euros pour T et 120 000 euros pour G. Assurance responsabilité civile professionnelle par GALIAN-SMABTP n° de police 28137 JMandat n°424189CLS - Le professionnel garantit et sécurise votre projet immobilier.Prix: 425000 euros. Honoraires charge vendeur. Sandrine CAILLAUD (EI) Agent Commercial - Numéro RSAC : CHARTRES 795 093 582 - .Les informations sur les risques auxquels ce bien est exposé sont disponibles sur le site Géorisques : www. georisques. gouv. fr
126 m²
6 p
4 ch

Maison
Ref. 416023CLS
696 800 €
4 223 €/m²
C'est dans un secteur prisé de Gambais, à seulement 7 minutes de Houdan, proche RN12 et avec la forêt accessible à pied, que cette élégante maison contemporaine et familiale d'environ 162 m² au sol ( environ 140m² de surface habitable ) vous promet le luxe discret d'un mode de vie privilégié.Dès l'entrée, vous découvrirez des volumes généreux, une belle luminosité grâce à une triple exposition, et une distribution fluide des espaces.La pièce de vie, spacieuse chaleureuse et ouverte, se prolonge vers une cuisine sobre et actuelle, ouverte sur la terrasse côté Sud.Un cellier chaufferie complète cet espace, ainsi qu'un ancien garage réaménagé en chambre d'appoint ou salon indépendant, avec mezzanine et salle d'eau privative. WC séparés.A l'étage, le confort se poursuit avec trois belles chambres, dont une suite parentale avec sa salle de bains privative. Une seconde salle d'eau, ainsi qu'un second WC indépendant, viennent parfaire l'ensemble.A l'extérieur, le terrain de 2405 m², clos et arboré, offre un cadre de vie rare et préservé.La piscine chauffée (4x8), bordée de sa terrasse paysagée, sa pergola et ses espaces de détente, invite à la sérénité ou à la convivialité, selon l'humeur du jour.Et pour tondre tout ça ?Francky, fidèle au poste, vous file un coup de main. (A discuter avec lui, bien sûr, mais il est plutôt sympa.)Un bien rare, qui allie cadre bucolique, prestations de qualité et proximité des commodités (commerces, écoles, restaurants)État irréprochable.Et bien-sûr, la Fibre.Le luxe ici ? C'est l'évidence !Pour visiter et vous accompagner dans votre projet contactez Sandrine CAILLAUD au 06.12.32.48.06 ou par courriel à s.caillaud@proprietes-privees.comInformations énergétiques: DPE D Valeur 224 - GES D Valeur 7Montant moyen estimé des dépenses annuelles d'énergie pour un usage standard établi à partir des prix de l'énergie de l'année 2021/2022/2023 : entre 2290 euros et 3160 euros.Selon l'article L.561.5 du Code Monétaire et Financier, pour l'organisation de la visite, la présentation d'une pièce d'identité vous sera demandée.Cette présente annonce a été rédigée sous la responsabilité éditoriale de Sandrine CAILLAUD agissant sous le statut d'agent commercial immatriculé au RSAC CHARTRES 795 093 582 auprès de la SAS PROPRIETES PRIVEES, au capital de 40 000 euros, ZAC LE CHÊNE FERRÉ - 44 ALLÉE DES CINQ CONTINENTS 44120 VERTOU; SIRET 487 624 777 00040, RCS Nantes. Carte professionnelle Transactions sur immeubles et fonds de commerce (T) et Gestion immobilière (G) n° CPI 4401 2016 000 010 388 délivrée par la CCI Nantes - Saint Nazaire. Compte séquestre n°30932508467 BPA SAINT-SEBASTIEN-SUR-LOIRE (44230) ; Garantie GALIAN - 89 rue de la Boétie, 75008 Paris - n°28137 J pour 2 000 000 euros pour T et 120 000 euros pour G. Assurance responsabilité civile professionnelle par MMA Entreprise n° de police 120.137.405Mandat n°416023CLS - Le professionnel garantit et sécurise votre projet immobilier.Prix de vente: 696800 euros HAI (honoraires inclus de 26800 euros à la charge de l'acquéreur soit 4 % soit 670000 Euros hors honoraires) (4.00 % honoraires TTC à la charge de l'acquéreur.) Sandrine CAILLAUD (EI) Agent Commercial - Numéro RSAC : CHARTRES 795 093 582 - .Les informations sur les risques auxquels ce bien est exposé sont disponibles sur le site Géorisques : www. georisques. gouv. fr
165 m²
6 p
4 ch

















