

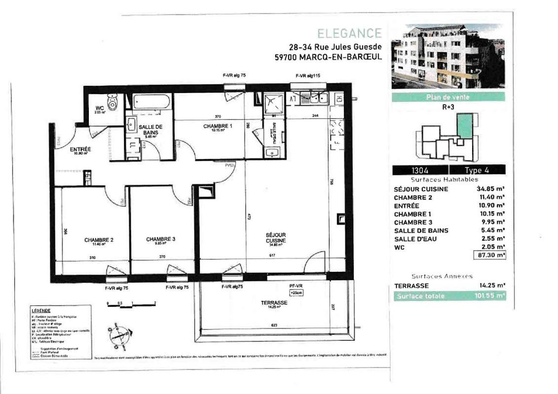
Marcq en Baroeul appartement 3 chambres
Ref. 438609CDEF
MARCQ-EN-BAROEUL (59700)
470 350 €
5 344 €/m²
88 m²
4 pièces
3 chambres
1 salle de bain
3ème étage
Atouts
Autres
Informations complémentaires
Description
Cet appartement de 101,55 m² est situé dans un immeuble récent de standing style Art Déco, rue jules Guesde à Marcq en Baroeul.Grande pièce de vie avec sa cuisine ouverte de 35m²3 chambres dont une chambre parentale avec sa salle d'eau.une salle de bains avec baignoireun WC séparéune grande entrée de 10m²Le séjour à un accès à la loggia de 14 m² .Prix: 470 350 euros honoraires à la charge du vendeurPas de DPECopropriété de 16 lots d'habitationPossibilité d'organiser une visite.Pour visiter et vous accompagner dans votre projet, contactez Corinne DEFRANCE, au 06 78 66 43 29 ou, par courriel à c.defrance@proprietes-privees.com.Cette présente annonce a été rédigée sous la responsabilité éditoriale de Corinne DEFRANCE agissant sous le statut d'agent commercial immatriculé au RSAC Douai 822355244 auprès de SAS PROPRIETES PRIVEES, au capital de 44 920 euros, ZAC LE CHÊNE FERRÉ - 44 ALLÉE DES CINQ CONTINENTS 44120 VERTOU; SIRET 487 624 777 00040, RCS Nantes. Carte Professionnelle Transactions sur immeubles et fonds de commerce (T) et Gestion immobilière (G) n°CPI 4401 2016 000 010 388 délivrée par la CCI Nantes - Saint Nazaire. Compte séquestre n°30932508467 BPA SAINT-SEBASTIEN-SUR-LOIRE (44230). Garantie GALIAN-SMABTP - 89 rue de la Boétie, 75008 Paris - n°28137 J pour 2 000 000 euros pour T et 120 000 euros pour G. Assurance responsabilité civile professionnelle par GALIAN-SMABTP n° de police 28137.JMandat réf : 438 609- Le professionnel garantit et sécurise votre projet immobilier.Copropriété de 16 lots.Charges annuelles : 1200 euros. Corinne DEFRANCE (EI) Agent Commercial - Numéro RSAC : douai 822355244 - .Les informations sur les risques auxquels ce bien est exposé sont disponibles sur le site Géorisques : www. georisques. gouv. fr
Ce bien vous est présenté par
Corinne DEFRANCE

Les biens à proximité

Maison
Ref. 410356MATG
1 165 000 €
3 989 €/m²
Magnifique maison de famille de 300m2 quartier Brossolette à Marcq en Baroeul.La maison dispose d'une grande pièce de vie lumineuse ouvrant sur une grande terrasse plein sud-ouest; très beau jardin arboré duquel le silence règne.La maison offre 6 chambres, un grand bureau, un espace parental complet (chambre dressing et salle de bains au premier étage et un grand espace de vie indépendant au second idéal pour les enfants (3 chambres, deux salles de bains et un wc.A proximité immédiate du tram, des écoles et des commerces de proximité, ce bien exceptionnel se situe dans un environnement calme, résidentiel où l'on se stationne facilement.La maison dispose également d'une grande buanderie, d'une vaste cave et de deux places de parking.Prix : 1165000 euros Honoraires : 2,64% TTC charge acquéreur, soit 1135000 euros hors honoraires.DPE: C 106 GES: C 16- Montant moyen estimé des dépenses annuelles d'énergie pour un usage standard établi à partir des prix de l'énergie de 2021 : entre 2670 et 3660 eurosPour visiter et vous accompagner dans votre projet, contactez Mathias GARAGNON, au 0672607840 ou, par courriel à m.garagnon@proprietes-privees.com.Selon l'article L.561.5 du Code Monétaire et Financier, pour l'organisation de la visite, la présentation d'une pièce d'identité vous sera demandée.Cette présente annonce a été rédigée sous la responsabilité éditoriale de Mathias GARAGNON agissant sous le statut d'agent commercial immatriculé au RSAC TOURCOING 518 125 091 auprès de SAS PROPRIETES PRIVEES, au capital de 44 920 euros, ZAC LE CHÊNE FERRÉ - 44 ALLÉE DES CINQ CONTINENTS 44120 VERTOU; SIRET 487 624 777 00040, RCS Nantes. Carte Professionnelle Transactions sur immeubles et fonds de commerce (T) et Gestion immobilière (G) n°CPI 4401 2016 000 010 388 délivrée par la CCI Nantes - Saint Nazaire. Compte séquestre n°30932508467 BPA SAINT-SEBASTIEN-SUR-LOIRE (44230). Garantie GALIAN-SMABTP - 89 rue de la Boétie, 75008 Paris - n°28137 J pour 2 000 000 euros pour T et 120 000 euros pour G. Assurance responsabilité civile professionnelle par GALIAN-SMABTP n° de police 28137.JMandat réf : 410356 - Le professionnel garantit et sécurise votre projet immobilier. (2.64 % honoraires TTC à la charge de l'acquéreur.) Mathias GARAGNON (EI) Agent Commercial - Numéro RSAC : TOURCOING 518 125 091 - .Les informations sur les risques auxquels ce bien est exposé sont disponibles sur le site Géorisques : www. georisques. gouv. fr
292 m²
8 p
6 ch

Maison
Ref. 414213MATG
549 000 €
4 990 €/m²
Nous vous invitons à venir découvrir cette charmante maison de famille individuelle idéalement située dans le paisible quartier du Quesne à Marcq en Baroeul.A quelques pas de l'église Saint Vincent et de ses commerces, vous y découvrirez un cadre idéal pour une vie de famille, les écoles, les transports et les commerces , tout y est!La maison se compose d'un bel espace de vie très lumineux, d'une cuisine donnant sur la terrasse et d'un bureau au rez de chaussée.A l'étage, vous disposerez de trois chambres spacieuses et d'une grande salle de bains avec baignoire d'angle et douche.L'extérieur offre un bel espace de verdure au calme ainsi qu'une terrasse de 30m2 orientée plein sud . Côté séjour on retrouve également un large balcon filant.Enfin en entresol vous découvrirez un espace de 70m2 pouvant héberger deux voitures , un atelier et de nombreux rangements.Techniquement la maison est en parfait état: Chaudière Wiesmann neuve, toiture récemment revue et restaurée, électricité aux normes.A visiter sans tarder!Prix : 549000 euros Honoraires : 3,58% TTC charge acquéreur, soit 530000 euros hors honoraires.DPE: E 313 148 GES: E 69- Montant moyen estimé des dépenses annuelles d'énergie pour un usage standard établi à partir des prix de l'énergie de 2021 : entre 2640 et 3630 eurosPour visiter et vous accompagner dans votre projet, contactez Mathias GARAGNON, au 0672607840 ou, par courriel à m.garagnon@proprietes-privees.com.Selon l'article L.561.5 du Code Monétaire et Financier, pour l'organisation de la visite, la présentation d'une pièce d'identité vous sera demandée.Cette présente annonce a été rédigée sous la responsabilité éditoriale de Mathias GARAGNON agissant sous le statut d'agent commercial immatriculé au RSAC TOURCOING 518 125 091 auprès de SAS PROPRIETES PRIVEES, au capital de 44 920 euros, ZAC LE CHÊNE FERRÉ - 44 ALLÉE DES CINQ CONTINENTS 44120 VERTOU; SIRET 487 624 777 00040, RCS Nantes. Carte Professionnelle Transactions sur immeubles et fonds de commerce (T) et Gestion immobilière (G) n°CPI 4401 2016 000 010 388 délivrée par la CCI Nantes - Saint Nazaire. Compte séquestre n°30932508467 BPA SAINT-SEBASTIEN-SUR-LOIRE (44230). Garantie GALIAN-SMABTP - 89 rue de la Boétie, 75008 Paris - n°28137 J pour 2 000 000 euros pour T et 120 000 euros pour G. Assurance responsabilité civile professionnelle par GALIAN-SMABTP n° de police 28137.JMandat réf :414213 - Le professionnel garantit et sécurise votre projet immobilier. (3.58 % honoraires TTC à la charge de l'acquéreur.) Mathias GARAGNON (EI) Agent Commercial - Numéro RSAC : TOURCOING 518 125 091 - .Les informations sur les risques auxquels ce bien est exposé sont disponibles sur le site Géorisques : www. georisques. gouv. fr
110 m²
5 p
3 ch

Appartement
Ref. 436286CDEF
677 000 €
6 572 €/m²
Idéalement situé au croisement du boulevard Clémenceau et de l'avenue de la République, au sein d'une résidence de standing sécurisée, découvrez ce superbe appartement traversant de 103 m², offrant des prestations de qualité et un cadre de vie recherché.Luminosité et volumes généreux :Bénéficiant d'une exposition sud-est, cet appartement séduit par sa belle luminosité et ses espaces parfaitement agencés. Son vaste séjour de plus de 36 m² constitue un véritable coeur de vie convivial, prolongé par une exceptionnelle terrasse de 52 m², idéale pour vos moments de détente ou de réception. Un espace nuit confortable :3 chambres bien répartiesUne salle de bainsUne salle de douche supplémentaireWC séparés?? Fonctionnalité au quotidien :Cuisine indépendante, cellier, nombreux rangements et dégagement optimisé viennent compléter ce bien pensé pour le confort de toute la famille. Les atouts supplémentaires :Un box fermé en sous-solLocal vélos dans la résidenceRésidence sécurisée et bien entretenue Un emplacement de choix :A proximité immédiate des commerces, des écoles et des transports, vous profitez d'un environnement pratique et dynamique, tout en conservant un cadre de vie agréable. Un bien rare sur le secteur, alliant volumes, extérieur exceptionnel et emplacement stratégique !Descriptif complet sur demandePrix: 677 000 euros FAI honoraires à la charge vendeur.Copropriété; 80 lotsPour visiter et vous accompagner dans votre projet, contactez Corinne DEFRANCE, au 0678664329 ou, par courriel à c.defrance@proprietes-privees.com.Selon l'article L.561.5 du Code Monétaire et Financier, pour l'organisation de la visite, la présentation d'une pièce d'identité vous sera demandée.Cette présente annonce a été rédigée sous la responsabilité éditoriale de Corinne DEFRANCE agissant sous le statut d'agent commercial immatriculé au RSAC douai 822355244 auprès de SAS PROPRIETES PRIVEES, au capital de 44 920 euros, ZAC LE CHÊNE FERRÉ - 44 ALLÉE DES CINQ CONTINENTS 44120 VERTOU; SIRET 487 624 777 00040, RCS Nantes. Carte Professionnelle Transactions sur immeubles et fonds de commerce (T) et Gestion immobilière (G) n°CPI 4401 2016 000 010 388 délivrée par la CCI Nantes - Saint Nazaire. Compte séquestre n°30932508467 BPA SAINT-SEBASTIEN-SUR-LOIRE (44230). Garantie GALIAN-SMABTP - 89 rue de la Boétie, 75008 Paris - n°28137 J pour 2 000 000 euros pour T et 120 000 euros pour G. Assurance responsabilité civile professionnelle par GALIAN-SMABTP n° de police 28137.JMandat réf : 436 286. - Le professionnel garantit et sécurise votre projet immobilier.Copropriété de 80 lots.Charges annuelles : 100 euros. Corinne DEFRANCE (EI) Agent Commercial - Numéro RSAC : douai 822355244 - .Les informations sur les risques auxquels ce bien est exposé sont disponibles sur le site Géorisques : www. georisques. gouv. fr
103 m²
4 p
3 ch

Appartement
Ref. 438599CDEF
465 350 €
5 003 €/m²
Appartement 3 chambres avec loggia plein Sud ? Marcq-en-Baroeul, rue Jules GuesdeSitué dans un quartier dynamique et recherché de Marcq-en-Baroeul, à proximité immédiate du nouveau cinéma, découvrez ce bel appartement au 2? étage, offrant 93 m² de confort et de modernité. Un espace de vie lumineux et convivial :Vous serez immédiatement séduit par sa grande pièce de vie de 42 m² avec cuisine ouverte, idéale pour recevoir et partager des moments en famille ou entre amis. Le séjour s'ouvre sur une agréable loggia exposée plein Sud, parfaite pour profiter de la lumière naturelle tout au long de la journée. Un espace nuit bien pensé :3 chambres, dont une suite parentale avec salle de doucheUne salle de bains indépendanteWC séparésDes prestations pratiques au quotidien :Entrée avec dégagement optimisé (7 m²), cellier et espaces de rangement pour un confort de vie optimal.Un emplacement privilégié :A deux pas des commerces, des transports et des loisirs, cet appartement bénéficie d'un environnement vivant et recherché.Un bien idéal pour une famille ou un investissement de qualité !? Plans et descriptif complet sur demande ? contactez moi pour en savoir plus.Prix: 465 350 euros honoraires inclus la charge vendeurCopropriété de 16 lots d'habitations.Pour visiter et vous accompagner dans votre projet, contactez Corinne DEFRANCE, au 0678664329 ou, par courriel à c.defrance@proprietes-privees.com.Selon l'article L.561.5 du Code Monétaire et Financier, pour l'organisation de la visite, la présentation d'une pièce d'identité vous sera demandée.Cette présente annonce a été rédigée sous la responsabilité éditoriale de Corinne DEFRANCE agissant sous le statut d'agent commercial immatriculé au RSAC douai 822355244 auprès de SAS PROPRIETES PRIVEES, au capital de 44 920 euros, ZAC LE CHÊNE FERRÉ - 44 ALLÉE DES CINQ CONTINENTS 44120 VERTOU; SIRET 487 624 777 00040, RCS Nantes. Carte Professionnelle Transactions sur immeubles et fonds de commerce (T) et Gestion immobilière (G) n°CPI 4401 2016 000 010 388 délivrée par la CCI Nantes - Saint Nazaire. Compte séquestre n°30932508467 BPA SAINT-SEBASTIEN-SUR-LOIRE (44230). Garantie GALIAN-SMABTP - 89 rue de la Boétie, 75008 Paris - n°28137 J pour 2 000 000 euros pour T et 120 000 euros pour G. Assurance responsabilité civile professionnelle par GALIAN-SMABTP n° de police 28137.JMandat réf : 438 599 - Le professionnel garantit et sécurise votre projet immobilier. Corinne DEFRANCE (EI) Agent Commercial - Numéro RSAC : douai 822355244 - .Les informations sur les risques auxquels ce bien est exposé sont disponibles sur le site Géorisques : www. georisques. gouv. fr
93 m²
4 p
3 ch

