



THIZY-LES-BOURGS (69240) Appartement T2 loué, 64 m² en centre bourg
Ref. 444386KAG
THIZY (69240)
49 000 €
765 €/m²
64 m²
2 pièces
1 chambres
Séjour de 30m²
1 WC
1 salle de bain
2ème étage
Atouts
Cave
Ascenseur
Interphone
Autres
Informations complémentaires
Classe énérgétique
Emissions GES
Description
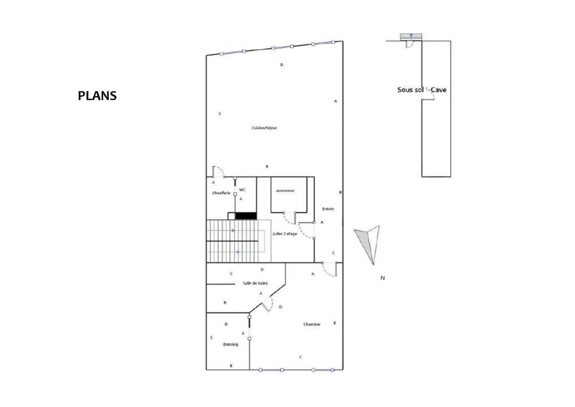
Exclusivité, idéal investisseur, rentabilité immédiate 8.7 %Appartement T2 de 64 m² loi Carrez situé au 2ème étage d'une petite copropriété avec ascenseur PMR, en plein centre bourg.Idéalement placé, à environ 1 heure de Lyon et à seulement 10 minutes de la gare d'Amplepuis (69550, ligne LYON-ROANNE).L'appartement se compose d'une pièce de vie lumineuse avec cuisine ouverte, d'une chambre, d'un dressing, d'une salle d'eau, d'un WC indépendant ainsi que d'un cellier. Une cave à usage privatif complète ce bien.En excellent état, il a été entièrement rénové et mis aux normes en 2018. Aucun travaux n'est à prévoir.Chauffage individuel au gaz de villeIdéal pour un investissement locatif ou un premier achat. Locataire sérieux en place.Loyer mensuel de 355,44 euros + 30 euros de provisions sur charges.Rapport locatif annuel : 4265.28 eurosTaxe foncière : 431 eurosRentabilité brute: 8.7 %VIDEO de présentation sur demandeCe bien est sous garantie 12 mois Protec+Possibilité d'acquérir un autre appartement déjà loué au sein de la même copropriété.Copropriété de 5 lots . Pas de procédure en cours. Charges annuelles : 1020,40 euros (dont ascenseur, dont environ 644,57 euros récupérables). Syndic bénévole.DPE C GES CMontant estimé des dépenses annuelles d'énergie pour un usage standard entre 650 et 910 euros indexées aux années 2021, 2022 et 2023PRIX: 49000 euros Honoraires charge vendeurPour visiter et vous accompagner dans votre projet, contactez Karine GARAYT, au 0672743646 ou, par courriel à k.garayt@proprietes-privees.com.Selon l'article L.561.5 du Code Monétaire et Financier, pour l'organisation de la visite, la présentation d'une pièce d'identité vous sera demandée.Cette présente annonce a été rédigée sous la responsabilité éditoriale de Karine GARAYT agissant sous le statut d'agent commercial immatriculé au RSAC roanne 819 403 817 auprès de SAS PROPRIETES PRIVEES, au capital de 44 920 euros, ZAC LE CHÊNE FERRÉ - 44 ALLÉE DES CINQ CONTINENTS 44120 VERTOU; SIRET 487 624 777 00040, RCS Nantes. Carte Professionnelle Transactions sur immeubles et fonds de commerce (T) et Gestion immobilière (G) n°CPI 4401 2016 000 010 388 délivrée par la CCI Nantes - Saint Nazaire. Compte séquestre n°30932508467 BPA SAINT-SEBASTIEN-SUR-LOIRE (44230). Garantie GALIAN-SMABTP - 89 rue de la Boétie, 75008 Paris - n°28137 J pour 2 000 000 euros pour T et 120 000 euros pour G. Assurance responsabilité civile professionnelle par GALIAN-SMABTP n° de police 28137.JMandat réf : 444386 - Le professionnel conseille et sécurise votre projet immobilier.Copropriété de 5 lots - dont 5 lots habitation.Charges annuelles : 1020.4 euros. Karine GARAYT (EI) Agent Commercial - Numéro RSAC : roanne 819 403 817 - .Les informations sur les risques auxquels ce bien est exposé sont disponibles sur le site Géorisques : www. georisques. gouv. fr
Ce bien vous est présenté par
Karine GARAYT

Les biens à proximité

Maison
Ref. 444310KAG
229 000 €
2 063 €/m²
EXCLUSIVITE: Située dans un environnement calme et agréable, à environ 1 heure de Lyon et à 10 minutes de la gare d'Amplepuis (69550), maison individuelle de plain-pied d'une surface habitable de 111 m². Elle se compose d'une pièce de vie lumineuse avec vue dégagée, d'une cuisine récente, de trois chambres dont une suite parentale, d'une salle de bains avec baignoire et douche, d'un WC indépendant, ainsi que d'un espace dressing et d'un bureau.Le sous-sol semi enterré dispose d'un grand garage et d'un vide sanitaire aménagé avec une buanderie/chaufferie et deux caves. un abri de jardin et une annexe viennent compléter l'ensemble.La maison a bénéficié de travaux récents: cuisine équipée, isolation, menuiseries PVC double vitrage, volets roulants électriques, et dispose d'équipements performants : pompe à chaleur air/eau, poêle à granulés et chauffe-eau solaire.Une maison est fonctionnelle et agréable à vivre, idéale pour une première acquisition ou une famille recherchant le calme et la proximité des écoles et commerces.VIDEO de présentation sur demandeDPE D GES BMontant estimé des dépenses annuelles d'énergie pour un usage standard entre 2270 et 3120 euros indexées aux années 2021, 2022 et 2023PRIX: 229 000 euros Honoraires charge vendeurPour visiter et vous accompagner dans votre projet, contactez Karine GARAYT, au 0672743646 ou, par courriel à k.garayt@proprietes-privees.com.Selon l'article L.561.5 du Code Monétaire et Financier, pour l'organisation de la visite, la présentation d'une pièce d'identité vous sera demandée.Cette présente annonce a été rédigée sous la responsabilité éditoriale de Karine GARAYT agissant sous le statut d'agent commercial immatriculé au RSAC roanne 819 403 817 auprès de SAS PROPRIETES PRIVEES, au capital de 44 920 euros, ZAC LE CHÊNE FERRÉ - 44 ALLÉE DES CINQ CONTINENTS 44120 VERTOU; SIRET 487 624 777 00040, RCS Nantes. Carte Professionnelle Transactions sur immeubles et fonds de commerce (T) et Gestion immobilière (G) n°CPI 4401 2016 000 010 388 délivrée par la CCI Nantes - Saint Nazaire. Compte séquestre n°30932508467 BPA SAINT-SEBASTIEN-SUR-LOIRE (44230). Garantie GALIAN-SMABTP - 89 rue de la Boétie, 75008 Paris - n°28137 J pour 2 000 000 euros pour T et 120 000 euros pour G. Assurance responsabilité civile professionnelle par GALIAN-SMABTP n° de police 28137.JMandat réf : 444310 - Le professionnel conseille et sécurise votre projet immobilier. Karine GARAYT (EI) Agent Commercial - Numéro RSAC : roanne 819 403 817 - .Les informations sur les risques auxquels ce bien est exposé sont disponibles sur le site Géorisques : www. georisques. gouv. fr
111 m²
6 p
3 ch

Maison
Ref. 439940KAG
250 000 €
781 €/m²
Vaste maison bourgeoise édifiée sur quatre niveaux avec jardin 800 m² et appartement indépendant pour une surface totale de 481 m², surface utile comprise. Elle est située en centre bourgs, à environ 1h10 de Lyon, 10 minutes de la gare d'AMPLEPUIS (69550) et du lac des Sapins (CUBLIZE).Elle comprend une habitation principale d'environ 254 m² habitables comprenant un hall d'entrée, un salon, une salle à manger, un bureau, une cuisine aménagée, un WC , 5 chambres dont une suite parentale avec salle d'eau privative, une salle de bains avec douche, une lingerie, un WC indépendant, et 2 greniers.En rez-de-jardin: un appartement avec entrée indépendante d'environ 66 m² habitablescomprenant: entrée, séjour / cuisine, 2 chambres, une salle d'eau, un WC indépendant. Idéal pour un logement locatif, une activité professionnelle ou un espace pour un parent ou un jeune adulte.La maison dispose également d'un garage, une buanderie, une chaufferie et 2 caves.La propriété est en excellent état général et peut être habité immédiatement.Elle a conservé le charme de l'ancien: boiseries, menuiseries de caractère, belles hauteurs sous plafond.Fenêtres double vitrage, chaudière au gaz de ville.Par sa configuration et ses accès distincts, cette maison peut convenir à une grande famille, à un habitat partagé ou à un projet de division.DPE E GES E - Montant estimé des dépenses annuelles d'énergie pour un usage standard entre 7620 euros et 10340 euros indexées aux années 2021, 2022 et 2023PRIX: 250 000 euros (honoraires à la charge du vendeur)Pour visiter et vous accompagner dans votre projet, contactez Karine GARAYT, au 0672743646 ou, par courriel à k.garayt@proprietes-privees.com.Selon l'article L.561.5 du Code Monétaire et Financier, pour l'organisation de la visite, la présentation d'une pièce d'identité vous sera demandée.Cette présente annonce a été rédigée sous la responsabilité éditoriale de Karine GARAYT agissant sous le statut d'agent commercial immatriculé au RSAC roanne 819 403 817 auprès de SAS PROPRIETES PRIVEES, au capital de 44 920 euros, ZAC LE CHÊNE FERRÉ - 44 ALLÉE DES CINQ CONTINENTS 44120 VERTOU; SIRET 487 624 777 00040, RCS Nantes. Carte Professionnelle Transactions sur immeubles et fonds de commerce (T) et Gestion immobilière (G) n°CPI 4401 2016 000 010 388 délivrée par la CCI Nantes - Saint Nazaire. Compte séquestre n°30932508467 BPA SAINT-SEBASTIEN-SUR-LOIRE (44230). Garantie GALIAN-SMABTP - 89 rue de la Boétie, 75008 Paris - n°28137 J pour 2 000 000 euros pour T et 120 000 euros pour G. Assurance responsabilité civile professionnelle par GALIAN-SMABTP n° de police 28137.JMandat réf : 439940 - Le professionnel conseille et sécurise votre projet immobilier. Karine GARAYT (EI) Agent Commercial - Numéro RSAC : roanne 819 403 817 - .Les informations sur les risques auxquels ce bien est exposé sont disponibles sur le site Géorisques : www. georisques. gouv. fr
320 m²
14 p
6 ch

Maison
Ref. 441267KAG
279 000 €
1 251 €/m²
A environ 1h de Lyon et 10 minutes d'Amplepuis (69550), de sa gare et du Lac des Sapins, découvrez cette propriété de caractère implantée sur un magnifique terrain paysager d'environ 2 000 m².Dans un environnement calme, elle bénéficie d'une vue dégagée et d'un jardin entièrement arboré et fleuri, soigneusement entretenu.La maison offre de beaux volumes habitables et une distribution fonctionnelle.En rez-de-jardin : entrée, cuisine indépendante, salle à manger, séjour avec cheminée et bibliothèque. Un espace nuit comprenant deux chambres, salle de bains, WC et lingerie.A l'étage : deux chambres supplémentaires dont une avec dressing et point d'eau, une salle d'eau avec WC, ainsi que deux greniers offrant un potentiel d'aménagement supplémentaire.Le sous-sol semi-enterré constitue un véritable atout avec une seconde entrée, trois garages, un atelier, une chaufferie et une cave.Volumes généreux, nombreux points d'eau, configuration modulable : ce bien s'adapte aussi bien à une grande famille qu'à une activité professionnelle ou artisanale nécessitant espace et stockage.Menuiseries en double et simple vitrage, chauffage gaz de ville.Un bien rare sur le secteur, alliant qualité de construction, environnement privilégié et potentiel.DPE E GES E - Montant estimé des dépenses annuelles d'énergie pour un usage standard indexées aux années 2021, 2022 et 2023Consommation réelle sur facture: 3495, 22 euros Abonnement comprisPRIX 279 000 euros Honoraires à la charge du vendeurPour visiter et vous accompagner dans votre projet, contactez Karine GARAYT, au 0672743646 ou, par courriel à k.garayt@proprietes-privees.com.Selon l'article L.561.5 du Code Monétaire et Financier, pour l'organisation de la visite, la présentation d'une pièce d'identité vous sera demandée.Cette présente annonce a été rédigée sous la responsabilité éditoriale de Karine GARAYT agissant sous le statut d'agent commercial immatriculé au RSAC roanne 819 403 817 auprès de SAS PROPRIETES PRIVEES, au capital de 44 920 euros, ZAC LE CHÊNE FERRÉ - 44 ALLÉE DES CINQ CONTINENTS 44120 VERTOU; SIRET 487 624 777 00040, RCS Nantes. Carte Professionnelle Transactions sur immeubles et fonds de commerce (T) et Gestion immobilière (G) n°CPI 4401 2016 000 010 388 délivrée par la CCI Nantes - Saint Nazaire. Compte séquestre n°30932508467 BPA SAINT-SEBASTIEN-SUR-LOIRE (44230). Garantie GALIAN-SMABTP - 89 rue de la Boétie, 75008 Paris - n°28137 J pour 2 000 000 euros pour T et 120 000 euros pour G. Assurance responsabilité civile professionnelle par GALIAN-SMABTP n° de police 28137.JMandat réf : 441267 - Le professionnel conseille et sécurise votre projet immobilier. Karine GARAYT (EI) Agent Commercial - Numéro RSAC : roanne 819 403 817 - .Les informations sur les risques auxquels ce bien est exposé sont disponibles sur le site Géorisques : www. georisques. gouv. fr
223 m²
8 p
4 ch

Appartement
Ref. 443202KAG
99 000 €
717 €/m²
Opportunité d'investissement : ensemble de deux appartements loués, rénovés, situés dans une petite copropriété avec ascenseur.Situés en centre bourg, à environ 1 heure de Lyon et 10 minutes de la gare d'Amplepuis (69550, liaison LYON), ces appartements représentent une opportunité intéressante pour un placement avec revenus immédiats.Les deux logements se trouvent au 1er et 2ème étage d'une petite copropriété avec ascenseur PMR. Ils ont été entièrement rénovés et mis aux normes en 2018 et sont en excellent état, sans travaux à prévoir.Chaque appartement comprend : une pièce de vie avec cuisine ouverte, une chambre, une pièce (bureau/dressing) , une salle d'eau, un WC indépendant, un cellier, ainsi qu'une cave à usage privatif.Ils sont actuellement loués à des locataires sérieux, garantissant une rentabilité immédiate.Chaudières individuelles au gaz de villeRevenus locatifs annuels : 8930.28 eurosRentabilité brute : 9.02 %Taxe foncière : 862 eurosIdéal pour un investisseur souhaitant acquérir un petit ensemble locatif sécurisé.Petite copropriété de 5 lots, sans procédure en cours. Charges annuelles : 2127.63 euros (dont ascenseur, dont charges récupérables: environ 1343 euros) . Syndic bénévole.DPE C GES CMontant estimé des dépenses annuelles d'énergie pour un usage standard entre 850 et 1180 euros indexées aux années 2021, 2022 et 2023PRIX: 99 000 euros Honoraires charge vendeurPour visiter et vous accompagner dans votre projet, contactez Karine GARAYT, au 0672743646 ou, par courriel à k.garayt@proprietes-privees.com.Selon l'article L.561.5 du Code Monétaire et Financier, pour l'organisation de la visite, la présentation d'une pièce d'identité vous sera demandée.Cette présente annonce a été rédigée sous la responsabilité éditoriale de Karine GARAYT agissant sous le statut d'agent commercial immatriculé au RSAC roanne 819 403 817 auprès de SAS PROPRIETES PRIVEES, au capital de 44 920 euros, ZAC LE CHÊNE FERRÉ - 44 ALLÉE DES CINQ CONTINENTS 44120 VERTOU; SIRET 487 624 777 00040, RCS Nantes. Carte Professionnelle Transactions sur immeubles et fonds de commerce (T) et Gestion immobilière (G) n°CPI 4401 2016 000 010 388 délivrée par la CCI Nantes - Saint Nazaire. Compte séquestre n°30932508467 BPA SAINT-SEBASTIEN-SUR-LOIRE (44230). Garantie GALIAN-SMABTP - 89 rue de la Boétie, 75008 Paris - n°28137 J pour 2 000 000 euros pour T et 120 000 euros pour G. Assurance responsabilité civile professionnelle par GALIAN-SMABTP n° de police 28137.JMandat réf : 443202 - Le professionnel conseille et sécurise votre projet immobilier.Copropriété de 5 lots - dont 5 lots habitation.Charges annuelles : 2127.63 euros. Karine GARAYT (EI) Agent Commercial - Numéro RSAC : roanne 819 403 817 - .Les informations sur les risques auxquels ce bien est exposé sont disponibles sur le site Géorisques : www. georisques. gouv. fr
138 m²
7 p
3 ch









