



Maison Macornay 3 pièce(s)
Ref. 429405NRAM
MACORNAY (39570)
65 000 €
1 354 €/m²
48 m²
3 pièces
1 chambres
Terrain de 1000m²
Atouts
Jardin privatif
Autres
Informations complémentaires
Classe énérgétique
Emissions GES
Description
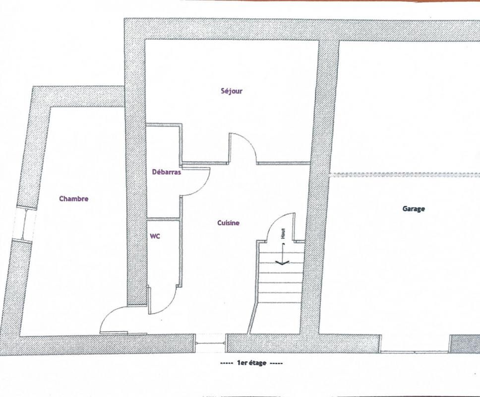
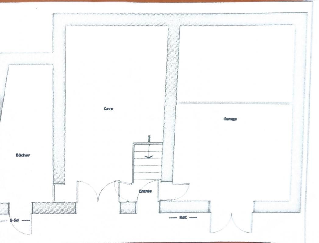
A proximité de Lons le Saunier, dans village avec écoles et nombreux commerces, maison de village en pierre composée de 3 pièces offrant un beau potentiel de rénovation sur 2 niveaux . La grange permet de belles possibilités d'agrandissement. Vous trouverez également une cave. En complément, un jardin non attenant d'environ 890 m² pour potager ou verger.Prix de vente : 65 000 euros. Honoraires : 12.07% TTC inclus charge acquéreur soit 58 000 euros hors honoraires.DPE : G 433 - GES : G 12 - Montant estimé des dépenses annuelles d'énergie pour un usage standard entre 750 euros et 1 040 euros indexées aux années 2021, 2022 et 2023 (abonnement compris). Logement à consommation énergétique excessive.Pour visiter et vous accompagner dans votre projet, contactez Nathalie RAMAUX, au 0677515661 ou, par courriel à n.ramaux@proprietes-privees.com.Selon l'article L.561.5 du Code Monétaire et Financier, pour l'organisation de la visite, la présentation d'une pièce d'identité vous sera demandée.Cette présente annonce a été rédigée sous la responsabilité éditoriale de Nathalie RAMAUX agissant sous le statut d'agent commercial immatriculé au RSAC LONS LE SAULNIER 535 148 613 auprès de SAS PROPRIETES PRIVEES, au capital de 44 920 euros, ZAC LE CHÊNE FERRÉ - 44 ALLÉE DES CINQ CONTINENTS 44120 VERTOU; SIRET 487 624 777 00040, RCS Nantes. Carte Professionnelle Transactions sur immeubles et fonds de commerce (T) et Gestion immobilière (G) n°CPI 4401 2016 000 010 388 délivrée par la CCI Nantes - Saint Nazaire. Compte séquestre n°30932508467 BPA SAINT-SEBASTIEN-SUR-LOIRE (44230). Garantie GALIAN-SMABTP - 89 rue de la Boétie, 75008 Paris - n°28137 J pour 2 000 000 euros pour T et 120 000 euros pour G. Assurance responsabilité civile professionnelle par GALIAN-SMABTP n° de police 28137.JMandat réf : 429405 - Le professionnel garantit et sécurise votre projet immobilier. (12.07 % honoraires TTC à la charge de l'acquéreur.) Nathalie RAMAUX (EI) Agent Commercial - Numéro RSAC : LONS LE SAULNIER 535 148 613 - .Les informations sur les risques auxquels ce bien est exposé sont disponibles sur le site Géorisques : www. georisques. gouv. fr
Ce bien vous est présenté par
Nathalie RAMAUX

Les biens à proximité

Maison
Ref. 417910NRAM
232 000 €
1 657 €/m²
A proximité du Centre Ville, venez découvrir cette belle maison des années 70 très lumineuse, située dans un quartier calme comprenant de plain pied, hall d'entrée, séjour salon donnant sur terrasse, cuisine aménagée et équipée, 2 chambres dont une donnant sur le jardin, salle de bain et wc indépendant. A l'étage, mezzanine, 2 chambres, salle d'eau, wc indépendant et grenier. Au sous-sol semi-enterré, un hall qui dessert une pièce pouvant servir de bureau, une cave et un garage. Terrain arboré et sans vis à vis. A découvrir sans tarder !Prix de vente : 232 000 euros. Honoraires : 5.45% TTC inclus charge acquéreur soit 220 000 euros hors honoraires.DPE : F 303 - GES : F 95Montant estimé des dépenses annuelles d'énergie pour un usage standard entre 5 375 euros et 7 271 euros indexées aux années 2021, 2022 et 2023 ) Logement à consommation énergétique excessivePour visiter et vous accompagner dans votre projet, contactez Nathalie RAMAUX, au 0677515661 ou, par courriel à n.ramaux@proprietes-privees.com.Selon l'article L.561.5 du Code Monétaire et Financier, pour l'organisation de la visite, la présentation d'une pièce d'identité vous sera demandée.Cette présente annonce a été rédigée sous la responsabilité éditoriale de Nathalie RAMAUX agissant sous le statut d'agent commercial immatriculé au RSAC LONS LE SAULNIER 535 148 613 auprès de SAS PROPRIETES PRIVEES, au capital de 44 920 euros, ZAC LE CHÊNE FERRÉ - 44 ALLÉE DES CINQ CONTINENTS 44120 VERTOU; SIRET 487 624 777 00040, RCS Nantes. Carte Professionnelle Transactions sur immeubles et fonds de commerce (T) et Gestion immobilière (G) n°CPI 4401 2016 000 010 388 délivrée par la CCI Nantes - Saint Nazaire. Compte séquestre n°30932508467 BPA SAINT-SEBASTIEN-SUR-LOIRE (44230). Garantie GALIAN-SMABTP - 89 rue de la Boétie, 75008 Paris - n°28137 J pour 2 000 000 euros pour T et 120 000 euros pour G. Assurance responsabilité civile professionnelle par GALIAN-SMABTP n° de police 28137.JMandat réf : 417910- Le professionnel garantit et sécurise votre projet immobilier. (5.45 % honoraires TTC à la charge de l'acquéreur.) Nathalie RAMAUX (EI) Agent Commercial - Numéro RSAC : LONS LE SAULNIER 535 148 613 - .Les informations sur les risques auxquels ce bien est exposé sont disponibles sur le site Géorisques : www. georisques. gouv. fr
140 m²
6 p
4 ch

Appartement
Ref. 427484NRAM
78 000 €
728 €/m²
Secteur Macornay, dans une copropriété de 4 logements, bel appartement actuellement loué comprenant cuisine, séjour salon, 2 chambres dont une borne, salle d'eau, wc. Le + : Au grenier, une pièce de 21 m² avec placard est à disposition pour bureau ou atelier. Cave et espace commun. Stationnement dans cour privée. Idéal investisseur.Prix de vente : 78 000 euros . Honoraires : 6.85% TTC inclus à charge acquéreur soit 73 000 euros hors honoraires.DPE : E 288 - GES : E 9Montant estimé des dépenses annuelles d'énergie pour un usage standard entre 2370 euros et 3240 euros indexées aux années 2021, 2022 et 2023 (abonnements compris)Pour visiter et vous accompagner dans votre projet, contactez Nathalie RAMAUX, au 0677515661 ou, par courriel à n.ramaux@proprietes-privees.com.Selon l'article L.561.5 du Code Monétaire et Financier, pour l'organisation de la visite, la présentation d'une pièce d'identité vous sera demandée.Cette présente annonce a été rédigée sous la responsabilité éditoriale de Nathalie RAMAUX agissant sous le statut d'agent commercial immatriculé au RSAC LONS LE SAULNIER 535 148 613 auprès de SAS PROPRIETES PRIVEES, au capital de 44 920 euros, ZAC LE CHÊNE FERRÉ - 44 ALLÉE DES CINQ CONTINENTS 44120 VERTOU; SIRET 487 624 777 00040, RCS Nantes. Carte Professionnelle Transactions sur immeubles et fonds de commerce (T) et Gestion immobilière (G) n°CPI 4401 2016 000 010 388 délivrée par la CCI Nantes - Saint Nazaire. Compte séquestre n°30932508467 BPA SAINT-SEBASTIEN-SUR-LOIRE (44230). Garantie GALIAN-SMABTP - 89 rue de la Boétie, 75008 Paris - n°28137 J pour 2 000 000 euros pour T et 120 000 euros pour G. Assurance responsabilité civile professionnelle par GALIAN-SMABTP n° de police 28137.JMandat réf : 427484 - Le professionnel garantit et sécurise votre projet immobilier. (6.85 % honoraires TTC à la charge de l'acquéreur.)Copropriété de 5 lots - dont 4 lots habitation. ().Charges annuelles : 120 euros. Nathalie RAMAUX (EI) Agent Commercial - Numéro RSAC : LONS LE SAULNIER 535 148 613 - .Les informations sur les risques auxquels ce bien est exposé sont disponibles sur le site Géorisques : www. georisques. gouv. fr
107 m²
4 p
2 ch

Maison
Ref. 410503NRAM
210 000 €
1 875 €/m²
Secteur Macornay, au calme, belle maison de village avec du charme composée à l'étage d'une pièce à vivre lumineuse donnant directement sur une terrasse et jardin, 3 chambres et une salle de bain. A l'étage supérieur, une chambre et un grenier aménageable. Au rez de chaussée, un garage et une buanderie. En dépendances, une grange transformée en garage et une cave voûtée complètent le bien ainsi qu'une cour gravillonnée pour stationner.Pour visiter et vous accompagner dans votre projet, contactez Nathalie RAMAUX, au 0677515661 ou par courriel à n.ramaux@proprietes-privees.comPrix de vente : 210 000 euros Honoraires à charge vendeurDPE : C 173 - GES : C 27 -Montant moyen estimé des dépenses annuelles d'énergie pour un usage standard établi à partir des prix de l'énergie de l'année 2021entre 1386 euros et 1876 eurosLes informations sur les risques auxquels ce bien est exposé sont disponibles sur le site Georisques : www.georisques.gouv.frSelon l'article L.561.5 du Code Monétaire et Financier, pour l'organisation de la visite, la présentation d'une pièce d'identité vous sera demandée.Cette présente annonce a été rédigée sous la responsabilité éditoriale de Nathalie RAMAUX agissant sous le statut d'agent commercial immatriculé au RSAC LONS LE SAULNIER 535 148 613 auprès de SAS PROPRIETES PRIVEES, au capital de 44 920 euros, ZAC LE CHÊNE FERRÉ - 44 ALLÉE DES CINQ CONTINENTS 44120 VERTOU; SIRET 487 624 777 00040, RCS Nantes. Carte Professionnelle Transactions sur immeubles et fonds de commerce (T) et Gestion immobilière (G) n°CPI 4401 2016 000 010 388 délivrée par la CCI Nantes - Saint Nazaire. Compte séquestre n°30932508467 BPA SAINT-SEBASTIEN-SUR-LOIRE (44230). Garantie GALIAN-SMABTP - 89 rue de la Boétie, 75008 Paris - n°28137 J pour 2 000 000 euros pour T et 120 000 euros pour G. Assurance responsabilité civile professionnelle par GALIAN-SMABTP n° de police 28137.JMandat réf : 410503 - Le professionnel garantit et sécurise votre projet immobilier. Nathalie RAMAUX (EI) Agent Commercial - Numéro RSAC : LONS LE SAULNIER 535 148 613 - .
112 m²
6 p
4 ch

Maison
Ref. 406833NRAM
445 000 €
2 966 €/m²
Aux portes de Lons le Saunier dans village avec commerces et écoles, maison offrant de beaux volumes et de belles prestations comprenant de plain pied une belle pièce à vivre avec véranda donnant directement sur la terrasse avec pergola et solarium, une chambre avec placard, salle d'eau et cellier. A l'étage, 3 chambres dont 2 avec placards intégrés et une suite parentale avec sa salle d'eau et sa terrasse. A l'extérieur vous profiterez d'une piscine et d'un jardin entièrement clos. Egalement, un garage et un carport complètent cette maison.Prix de vente : 445 000 euros Honoraires à charge vendeurDPE : C 100 et GES : C 13Montant moyen estimé des dépenses annuelles d'énergie pour un usage standard établi à partir des prix de l'énergie des années 2021, 2022, 2023 : entre 1400 euros et 1980 eurosPour visiter et vous accompagner dans votre projet, contactez Nathalie RAMAUX, au 0677515661 ou, par courriel à n.ramaux@proprietes-privees.com.Selon l'article L.561.5 du Code Monétaire et Financier, pour l'organisation de la visite, la présentation d'une pièce d'identité vous sera demandée.Cette présente annonce a été rédigée sous la responsabilité éditoriale de Nathalie RAMAUX agissant sous le statut d'agent commercial immatriculé au RSAC LONS LE SAULNIER 535 148 613 auprès de SAS PROPRIETES PRIVEES, au capital de 44 920 euros, ZAC LE CHÊNE FERRÉ - 44 ALLÉE DES CINQ CONTINENTS 44120 VERTOU; SIRET 487 624 777 00040, RCS Nantes. Carte Professionnelle Transactions sur immeubles et fonds de commerce (T) et Gestion immobilière (G) n°CPI 4401 2016 000 010 388 délivrée par la CCI Nantes - Saint Nazaire. Compte séquestre n°30932508467 BPA SAINT-SEBASTIEN-SUR-LOIRE (44230). Garantie GALIAN-SMABTP - 89 rue de la Boétie, 75008 Paris - n°28137 J pour 2 000 000 euros pour T et 120 000 euros pour G. Assurance responsabilité civile professionnelle par GALIAN-SMABTP n° de police 28137.JMandat réf : 406833 - Le professionnel garantit et sécurise votre projet immobilier. Nathalie RAMAUX (EI) Agent Commercial - Numéro RSAC : LONS LE SAULNIER 535 148 613 - .Les informations sur les risques auxquels ce bien est exposé sont disponibles sur le site Géorisques : www. georisques. gouv. fr
150 m²
7 p
4 ch



